4.9
Рейтинг на основании 120 отзывов
Дмитров
Опорный проезд 28Б
(индустриальный парк Ниагара)
Бренд "Дмитров-Дело" c 2008 года на рынке строительства в Дмитрове
Звоните 9:00 до 18:00 8 (915) 055-33-61
Бренд "Дмитров-Дело" c 2008 года на рынке строительства в Дмитрове

002-2021-АР

Стоимость проекта от:
64 800 ₽
БЕСПЛАТНО! ПРИ ЗАКАЗЕ СТРОИТЕЛЬСТВА
Стоимость строительства от:
10 169 280 ₽
Артикул ART-15573
Дата 25.12.2025
Архитектурный стиль Классический
Количество надземных этажей 1
Круглогодичное проживание Да
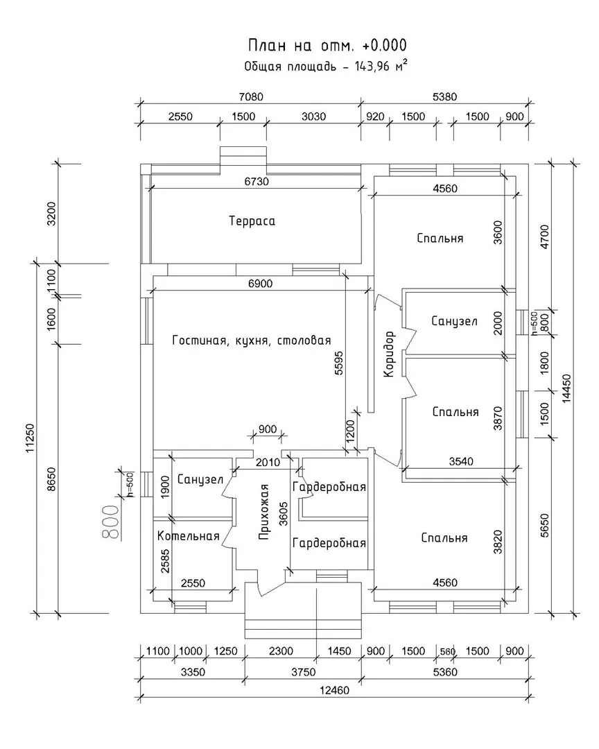
Площадь дома 144 м2
Санузлы 2
Спальни 3

Описание

Объект 002‑2021‑АР – воплощение классической гармонии и уюта. На первом надземном этаже возведён уютный дом, где каждая деталь продумана до последнего штриха. Стены из крепкого кирпича не только гарантируют долговечность и теплоизоляцию, но и создают ощущение надёжного укрытия, в котором будет приятно обитать круглый год. Классический архитектурный стиль подчёркивает простоту линий, элегантность фасада и благородный вид, придавая дому статус истинного семейного очага. Дом оборудован просторной террасой, где можно наслаждаться свежим воздухом, устраивать романтические ужины на открытом воздухе или устраивать семейные барбекю. Хотя балконы и веранда отсутствуют, открытая площадка компенсирует это своей функциональностью и удобством. Крыша в четырёхскатном (вальмовом) стиле не только придаёт дому характерный силуэт, но и обеспечивает надёжную защиту от сурового климата. В отсутствие прикрытого гаража предусмотрено удобное размещение транспортных средств на прилегающей стоянке, предоставляя свободу передвижения и простоту организации семейных дел. Таким образом, 002‑2021‑АР – это сочетание классики, практичности и уюта, где каждый момент станет частью безмятежной семейной атмосферы. Это дом, в котором хочется возвращаться каждый раз, зная, что здесь найдётся всё необходимое для комфортного проживания и радостных воспоминаний.

Характеристики дома

Архитектурный стиль
Автоматизированное регулирование параметров теплоносителя
Нет
Балконы/лоджии
Отсутствуют
Чердачное помещение
Нет
Датчики протечки воды
Нет
Эксплуатируемая или зеленая кровля
Нет
Электроснабжение
Центральное
Газоснабжение
Центральное
Изоляция воздушного шума
Нет
Камин
Нет
Класс энергоэффективности
-
Класс энергосбережения
-
Количество надземных этажей
1
Круглогодичное проживание
Да
Материал кровли
Металлочерепица
Материал перекрытий
Деревянные
Материал внешних стен
Материал внутренних перегородок
Кирпичные
Модульное строительство с конструкциями заводского изготовления
Нет
Объем надземной части
-
Основной материал фасадов
Облицовочный кирпич
Отопление
Индивидуальное
Площадь дома
144 м2
Площадь застройки
176 м2
Подвальное помещение
Да
Показатель компактности здания
-
Приборы учета тепловой энергии
Нет
Пристроенный гараж/крытая автостоянка
Нет
Противопожарная система
Нет
Санузлы
2
Совмещенная кухня-гостиная
Да
Спальни
3
Терраса
Да
Тип фундамента
Плитный
Толщина внешних стен
400 мм
Толщина внутренних перегородок
100 мм
Улучшенные шумовые характеристики
Нет
Вентиляция
Естественная
Веранда
Нет
Водоотведение
Центральное
Водоснабжение
Центральное
Высота дома
6.19 м
Высота потолков
3 м

Планировка

Фасад дома

Александр

Закажите выезд инженера

Александр

Выездной инженер
Закажите выезд инженера для точной диагностики и профессиональной консультации по инженерным системам. Специалист приедет в удобное время, проведёт осмотр, рассчитает стоимость работ и подберёт оптимальные решения для вашего дома.


    Похожие проекты

    Ипотека и
    рассрочка
    Барнхаус № 3
    Стоимость от:
    6 078 930
    Проект от: 49 050
    Этажей 1
    Санузлы 1
    Спальни 3
    Смотреть
    Ипотека и
    рассрочка
    Загородный дом Фрея
    Стоимость от:
    7 544 640
    Проект от: 47 700
    Этажей 2
    Санузлы 2
    Спальни 3
    Смотреть
    Ипотека и
    рассрочка
    Одноэтажный дом с большой кухней-гостинной
    Стоимость от:
    6 537 410
    Проект от: 46 350
    Этажей 1
    Санузлы 2
    Спальни 3
    Смотреть
    Ипотека и
    рассрочка
    2х этажный жилой дом №10-06-21 ЭП
    Стоимость от:
    9 573 120
    Проект от: 57 600
    Этажей 2
    Санузлы 2
    Спальни 3
    Смотреть
    Ипотека и
    рассрочка
    Проект одноэтажного дома КБ-1
    Стоимость от:
    6 923 510
    Проект от: 50 850
    Этажей 1
    Санузлы 1
    Спальни 3
    Смотреть
    Ипотека и
    рассрочка
    Уютный островок S-100
    Стоимость от:
    7 641 920
    Проект от: 43 200
    Этажей 1
    Санузлы 1
    Спальни 3
    Смотреть

    Как узнать стоимость дома

    back
    Оставляете заявку
    Вы заполняете форму на сайте или звоните нам. Менеджер Лайвкрафт связывается с вами для уточнения деталей: тип дома, площадь, материалы, участок строительства.
    back
    Консультация и подбор решения
    Наш специалист помогает выбрать оптимальный тип дома и конструкцию с учётом бюджета, сроков и целей — будь то дом для постоянного проживания или дача.
    back
    Расчёт предварительной стоимости
    Инженер делает первичный расчёт стоимости строительства по вашим параметрам: фундамент, коробка, кровля, отделка. Вы получаете смету с разбивкой по этапам.
    back
    Корректировка и утверждение сметы
    При необходимости вносим изменения — например, замену материалов или сокращение этапов. После согласования формируется окончательная фиксированная смета.
    back
    Заключение договора и старт работ
    После утверждения сметы заключаем официальный договор с гарантией. Вы получаете прозрачный график и точную стоимость — без скрытых расходов.

    Заказать конусльтацию по:002-2021-АР

    Фото 1 002-2021-АР


      Наши
      контакты

      Дмитров
      Опорный проезд 28Б
      (индустриальный парк Ниагара)
      9:00 до 18:00

      Корзина