4.9
Рейтинг на основании 120 отзывов
Дмитров
Опорный проезд 28Б
(индустриальный парк Ниагара)
Бренд "Дмитров-Дело" c 2008 года на рынке строительства в Дмитрове
Звоните 9:00 до 18:00 8 (915) 055-33-61
Бренд "Дмитров-Дело" c 2008 года на рынке строительства в Дмитрове

17АЗ11.00 IZHORA

Стоимость проекта от:
47 700 ₽
БЕСПЛАТНО! ПРИ ЗАКАЗЕ СТРОИТЕЛЬСТВА
Стоимость строительства от:
6 344 100 ₽
Артикул ART-17300
Дата 26.12.2025
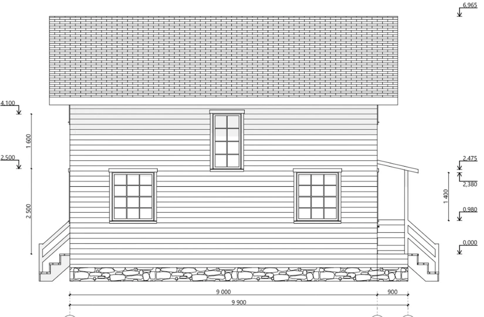
Архитектурный стиль Классический
Количество надземных этажей 2
Круглогодичное проживание Да
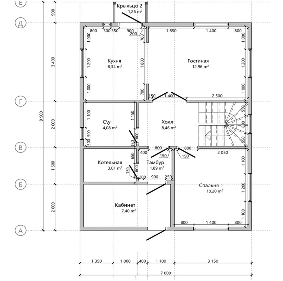
Площадь дома 106 м2
Санузлы 2
Спальни 4

Описание

Ищете уютный уголок, где традиции встречаются с комфортом? Дом 17АЗ11.00 «Ижора» – это воплощение классического стиля, придавшее каждой детали особую гармонию и тепло. Две надземные этажи, построенные на прочном деревянном каркасе, предлагают просторные комнаты с высокими окнами, позволяющими наслаждаться светом и природными видами в любое время года. Двускатный крыша укрывает пространство от непогоды, а архитектура в духе настоящего элегантного дома создаёт атмосферу спокойствия и уюта. В «Ижоре» вы найдёте всё, чтобы чувствовать себя как дома: просторные гостиные, светлые спальни и уютные кухонные зоны – идеальная комбинация функциональности и эстетики. Откройте дверь и пополнитесь вдохновением от тёплого деревянного интерьера, создающего ощущение домашнего гнезда. Погуляйте вокруг, и вы увидите, как каждый уголок пронизан вниманием к деталям и продуманной планировкой. Дом 17АЗ11.00 «Ижора» – это ваш шанс обрести неповторимый стиль жизни, где классика и современность идут рука об руку.

Характеристики дома

Архитектурный стиль
Автоматизированное регулирование параметров теплоносителя
Нет
Балконы/лоджии
Отсутствуют
Чердачное помещение
Нет
Датчики протечки воды
Нет
Эксплуатируемая или зеленая кровля
Нет
Электроснабжение
Центральное
Газоснабжение
Не предусмотрено
Изоляция воздушного шума
Нет
Камин
Нет
Класс энергоэффективности
-
Класс энергосбережения
-
Количество надземных этажей
2
Круглогодичное проживание
Да
Материал кровли
Металлочерепица
Материал перекрытий
Деревянные
Материал внешних стен
Материал внутренних перегородок
Деревянные
Модульное строительство с конструкциями заводского изготовления
Нет
Объем надземной части
764 м3
Основной материал фасадов
Дерево
Отопление
Индивидуальное
Площадь дома
106 м2
Площадь застройки
64 м2
Подвальное помещение
Нет
Показатель компактности здания
-
Приборы учета тепловой энергии
Нет
Пристроенный гараж/крытая автостоянка
Нет
Противопожарная система
Нет
Санузлы
2
Совмещенная кухня-гостиная
Нет
Спальни
4
Терраса
Нет
Тип фундамента
Свайно-винтовой
Тип кровли
Толщина внешних стен
150 мм
Толщина внутренних перегородок
100 мм
Улучшенные шумовые характеристики
Нет
Вентиляция
Естественная
Веранда
Нет
Водоотведение
Локальные очистные сооружения
Водоснабжение
Центральное
Высота дома
6.96 м
Высота потолков
2.8 м

Планировка

Фасад дома

Александр

Закажите выезд инженера

Александр

Выездной инженер
Закажите выезд инженера для точной диагностики и профессиональной консультации по инженерным системам. Специалист приедет в удобное время, проведёт осмотр, рассчитает стоимость работ и подберёт оптимальные решения для вашего дома.


    Похожие проекты

    Ипотека и
    рассрочка
    Двухэтажный дом- Канада 99
    Стоимость от:
    5 937 360
    Проект от: 44 550
    Этажей 2
    Санузлы 2
    Спальни 3
    Смотреть
    Ипотека и
    рассрочка
    Дом с мансардным этажом «Невада»
    Стоимость от:
    7 822 080
    Проект от: 50 400
    Этажей 2
    Санузлы 2
    Спальни 4
    Смотреть
    Ипотека и
    рассрочка
    Асылъяр М-103-100 (ОШ)
    Стоимость от:
    7 368 020
    Проект от: 45 450
    Этажей 1
    Санузлы 2
    Спальни 3
    Смотреть
    Ипотека и
    рассрочка
    D134
    Стоимость от:
    9 465 720
    Проект от: 56 700
    Этажей 1
    Санузлы 2
    Спальни 2
    Смотреть
    Ипотека и
    рассрочка
    FORMEHOUSE K84
    Стоимость от:
    7 626 960
    Проект от: 48 600
    Этажей 1
    Санузлы 1
    Спальни 2
    Смотреть
    Ипотека и
    рассрочка
    Просторный одноэтажный дом «Simple+»
    Стоимость от:
    8 023 400
    Проект от: 49 500
    Этажей 1
    Санузлы 2
    Спальни 3
    Смотреть

    Как узнать стоимость дома

    back
    Оставляете заявку
    Вы заполняете форму на сайте или звоните нам. Менеджер Лайвкрафт связывается с вами для уточнения деталей: тип дома, площадь, материалы, участок строительства.
    back
    Консультация и подбор решения
    Наш специалист помогает выбрать оптимальный тип дома и конструкцию с учётом бюджета, сроков и целей — будь то дом для постоянного проживания или дача.
    back
    Расчёт предварительной стоимости
    Инженер делает первичный расчёт стоимости строительства по вашим параметрам: фундамент, коробка, кровля, отделка. Вы получаете смету с разбивкой по этапам.
    back
    Корректировка и утверждение сметы
    При необходимости вносим изменения — например, замену материалов или сокращение этапов. После согласования формируется окончательная фиксированная смета.
    back
    Заключение договора и старт работ
    После утверждения сметы заключаем официальный договор с гарантией. Вы получаете прозрачный график и точную стоимость — без скрытых расходов.

    Заказать конусльтацию по:17АЗ11.00 IZHORA

    Фото 1 17АЗ11.00 IZHORA


      Наши
      контакты

      Дмитров
      Опорный проезд 28Б
      (индустриальный парк Ниагара)
      9:00 до 18:00

      Корзина