4.9
Рейтинг на основании 120 отзывов
Дмитров
Опорный проезд 28Б
(индустриальный парк Ниагара)
Бренд "Дмитров-Дело" c 2008 года на рынке строительства в Дмитрове
Звоните 9:00 до 18:00 8 (915) 055-33-61
Бренд "Дмитров-Дело" c 2008 года на рынке строительства в Дмитрове

1ЁК90

Стоимость проекта от:
40 500 ₽
БЕСПЛАТНО! ПРИ ЗАКАЗЕ СТРОИТЕЛЬСТВА
Стоимость строительства от:
6 765 000 ₽
Артикул ART-5514
Дата 26.12.2025
Архитектурный стиль Классический
Количество надземных этажей 1
Круглогодичное проживание Да
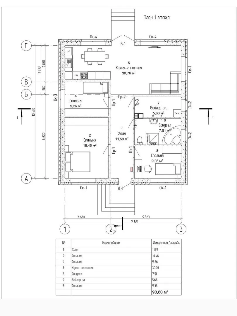
Площадь дома 90 м2
Санузлы 1
Спальни 3

Описание

Добро пожаловать в уютный уголок, где традиционная эстетика встречается с современным комфортом. Этот элегантный одноэтажный дом в классическом стиле создан для круглогодичного проживания, чтобы вы могли наслаждаться спокойствием в любое время года. Изысканные газобетонные блоки внешних стен гарантируют отличную термоизоляцию и шумоизоляцию, а двускатная крыша придаёт фасаду строгость и изящество. Внутри вы найдёте светлые, просторные зоны, где каждая деталь продумана до мелочей. Чердачное помещение, доступное с внутренней стороны, открывает дополнительные возможности: уютный кабинет, игровая комната для детей или просто просторное место для хранения. Отсутствие пристроенных гаражей и веранд не отменяют практичности – автостоянка может быть организована отдельно, а открытое пространство вокруг дома подарит дополнительный комфорт и свободу в выборе планировки. Такой дом – идеальное решение для тех, кто ценит качество, тепло и традиционный шарм. Здесь каждый элемент говорит о заботе о будущем поколении: от прочных материалов и надёжной кровли до продуманной планировки. Окунитесь в гармония, которую создаст сочетание классической эстетики и современных удобств – ваш новый дом ждёт.

Характеристики дома

Архитектурный стиль
Автоматизированное регулирование параметров теплоносителя
-
Балконы/лоджии
Отсутствуют
Чердачное помещение
Да
Датчики протечки воды
-
Эксплуатируемая или зеленая кровля
-
Электроснабжение
Центральное
Газоснабжение
Центральное
Изоляция воздушного шума
-
Камин
Нет
Класс энергоэффективности
-
Класс энергосбережения
-
Количество надземных этажей
1
Круглогодичное проживание
Да
Материал кровли
Металлочерепица
Материал перекрытий
Деревянные
Материал внешних стен
Материал внутренних перегородок
Пенобетонные
Модульное строительство с конструкциями заводского изготовления
Нет
Объем надземной части
280 м3
Основной материал фасадов
Облицовочный кирпич
Отопление
Центральное
Площадь дома
90 м2
Площадь застройки
115 м2
Подвальное помещение
Нет
Показатель компактности здания
-
Приборы учета тепловой энергии
-
Пристроенный гараж/крытая автостоянка
Нет
Противопожарная система
Нет
Санузлы
1
Совмещенная кухня-гостиная
Да
Спальни
3
Терраса
Нет
Тип фундамента
Свайно-ростверковый
Тип кровли
Толщина внешних стен
300 мм
Толщина внутренних перегородок
200 мм
Улучшенные шумовые характеристики
-
Вентиляция
Естественная
Веранда
Нет
Водоотведение
Центральное
Водоснабжение
Центральное
Высота дома
5.5 м
Высота потолков
3 м

Планировка

Фасад дома

Александр

Закажите выезд инженера

Александр

Выездной инженер
Закажите выезд инженера для точной диагностики и профессиональной консультации по инженерным системам. Специалист приедет в удобное время, проведёт осмотр, рассчитает стоимость работ и подберёт оптимальные решения для вашего дома.


    Похожие проекты

    Ипотека и
    рассрочка
    S 2-88
    Стоимость от:
    5 875 440
    Проект от: 36 450
    Этажей 2
    Санузлы 2
    Спальни 3
    Смотреть
    Ипотека и
    рассрочка
    Одноэтажный дом Швеция 130
    Стоимость от:
    11 107 250
    Проект от: 78 750
    Этажей 1
    Санузлы 2
    Спальни 4
    Смотреть
    Ипотека и
    рассрочка
    Проект дома 51 м.кв 2 спальни НД-М15 из газобетона
    Стоимость от:
    4 068 020
    Проект от: 22 950
    Этажей 1
    Санузлы 1
    Спальни 2
    Смотреть
    Ипотека и
    рассрочка
    Индивидуальный Сибитный дом 24-09-05
    Стоимость от:
    5 790 840
    Проект от: 36 900
    Этажей 1
    Санузлы 1
    Спальни 3
    Смотреть
    Ипотека и
    рассрочка
    Каркасный дом 6х6,5м
    Стоимость от:
    1 896 180
    Проект от: 15 300
    Этажей 1
    Санузлы 1
    Спальни 1
    Смотреть
    Ипотека и
    рассрочка
    Найт
    Стоимость от:
    8 355 600
    Проект от: 54 000
    Этажей 1
    Санузлы 2
    Спальни 3
    Смотреть

    Как узнать стоимость дома

    back
    Оставляете заявку
    Вы заполняете форму на сайте или звоните нам. Менеджер Лайвкрафт связывается с вами для уточнения деталей: тип дома, площадь, материалы, участок строительства.
    back
    Консультация и подбор решения
    Наш специалист помогает выбрать оптимальный тип дома и конструкцию с учётом бюджета, сроков и целей — будь то дом для постоянного проживания или дача.
    back
    Расчёт предварительной стоимости
    Инженер делает первичный расчёт стоимости строительства по вашим параметрам: фундамент, коробка, кровля, отделка. Вы получаете смету с разбивкой по этапам.
    back
    Корректировка и утверждение сметы
    При необходимости вносим изменения — например, замену материалов или сокращение этапов. После согласования формируется окончательная фиксированная смета.
    back
    Заключение договора и старт работ
    После утверждения сметы заключаем официальный договор с гарантией. Вы получаете прозрачный график и точную стоимость — без скрытых расходов.

    Заказать конусльтацию по:1ЁК90

    Фото 1 1ЁК90


      Наши
      контакты

      Дмитров
      Опорный проезд 28Б
      (индустриальный парк Ниагара)
      9:00 до 18:00

      Корзина