4.9
Рейтинг на основании 120 отзывов
Дмитров
Опорный проезд 28Б
(индустриальный парк Ниагара)
Бренд "Дмитров-Дело" c 2008 года на рынке строительства в Дмитрове
Звоните 9:00 до 18:00 8 (915) 055-33-61
Бренд "Дмитров-Дело" c 2008 года на рынке строительства в Дмитрове

2-х этажный кирпичный дом 147 кв.м.

Стоимость проекта от:
66 150 ₽
БЕСПЛАТНО! ПРИ ЗАКАЗЕ СТРОИТЕЛЬСТВА
Стоимость строительства от:
10 643 280 ₽
Артикул ART-18355
Дата 26.12.2025
Архитектурный стиль Классический
Количество надземных этажей 2
Круглогодичное проживание Да
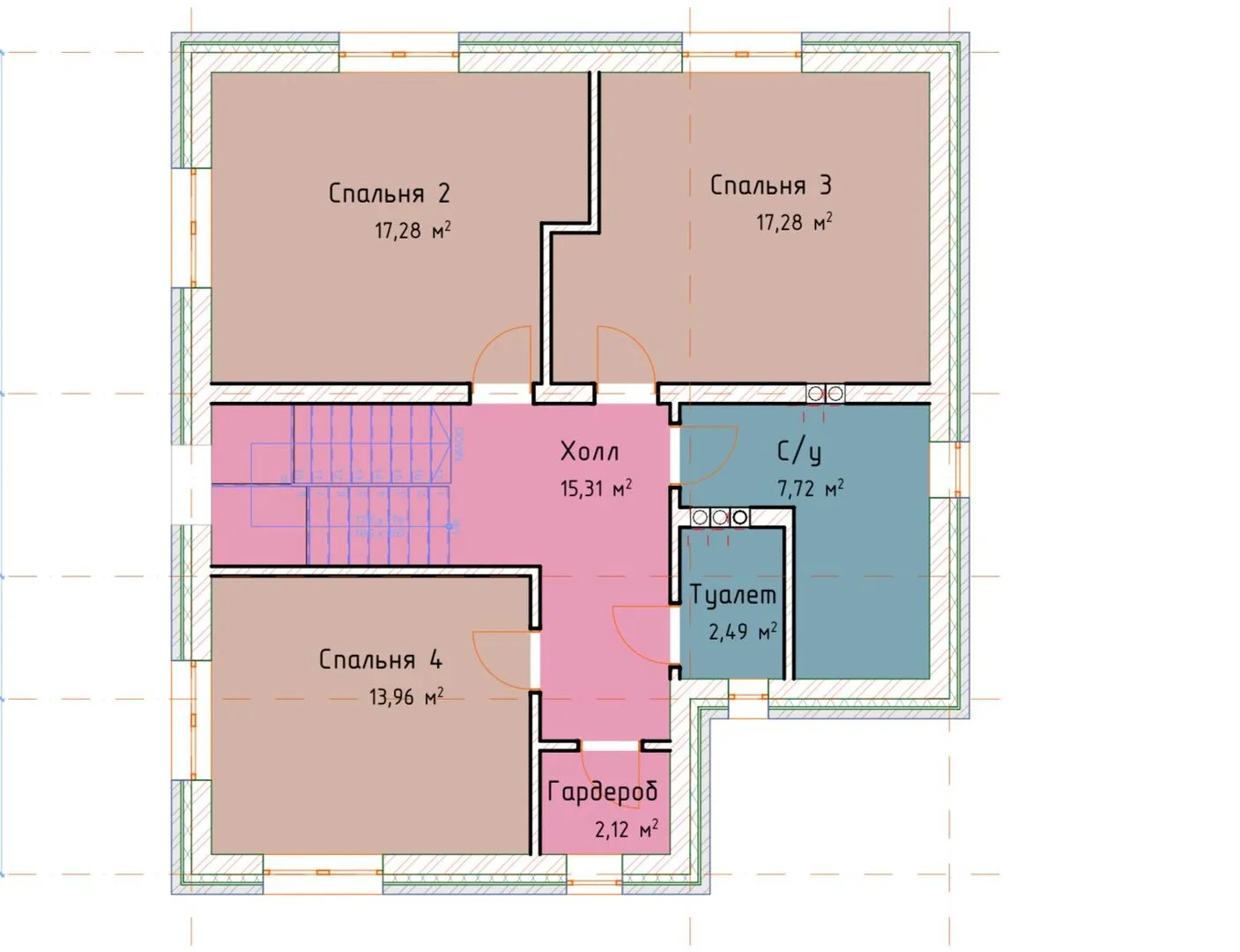
Площадь дома 147 м2
Санузлы 2
Спальни 4

Описание

Откройте для себя настоящий уголок уюта и комфорта — полностью готовый к круглогодичному проживанию 2‑этажный кирпичный дом площадью 147 м², выполненный в строгом классическом стиле. Его фасад, выполненный из качественного кирпича, не только поражает эстетикой, но и гарантирует теплоизоляцию, а прочная четырёхскатная кровля обеспечивает надёжность и долговечность в любой погоде. Дом создан так, чтобы каждый уголок сразу ощущался как домашний, а чистые линии и симметрия придают дому статус и благородство. Внутри вы найдёте продуманный план, который позволяет комфортно размещать всю семью. Два просторных уровня с плавно переходящими с залом, уютными спальнями и функциональной кухней создают идеальную среду для совместных вечеров и частных уединений. Отсутствие балконов, веранды и прибрежных помещений — это не компромисс, а упрощённое, но при этом изысканное решение, которое подчёркивает скромную элегантность дома. Покупая этот дом, вы инвестируете в спокойствие и спокойную атмосферу, где каждый сантиметрт обустроен с учётом ваших потребностей. Если вам важен высокий стандарт, простота в обслуживании и неприхотливость — этот кирпичный дом станет вашим идеальным домом, где комфорт сочетается с безупречной архитектурой.

Характеристики дома

Архитектурный стиль
Автоматизированное регулирование параметров теплоносителя
Нет
Балконы/лоджии
Отсутствуют
Чердачное помещение
Нет
Датчики протечки воды
Нет
Эксплуатируемая или зеленая кровля
Нет
Электроснабжение
Центральное
Газоснабжение
Центральное
Изоляция воздушного шума
Нет
Камин
Нет
Класс энергоэффективности
-
Класс энергосбережения
-
Количество надземных этажей
2
Круглогодичное проживание
Да
Материал кровли
Металлочерепица
Материал перекрытий
Сборные железобетонные многопустотные плиты
Материал внешних стен
Материал внутренних перегородок
Кирпичные
Модульное строительство с конструкциями заводского изготовления
Нет
Объем надземной части
300 м3
Основной материал фасадов
Облицовочный кирпич
Отопление
Индивидуальное
Площадь дома
147 м2
Площадь застройки
108 м2
Подвальное помещение
Нет
Показатель компактности здания
-
Приборы учета тепловой энергии
Нет
Пристроенный гараж/крытая автостоянка
Нет
Противопожарная система
Нет
Санузлы
2
Совмещенная кухня-гостиная
Да
Спальни
4
Терраса
Нет
Тип фундамента
Свайно-ростверковый
Толщина внешних стен
500 мм
Толщина внутренних перегородок
120 мм
Улучшенные шумовые характеристики
Нет
Вентиляция
Естественная
Веранда
Нет
Водоотведение
Центральное
Водоснабжение
Центральное
Высота дома
9 м
Высота потолков
3 м

Планировка

Фасад дома

Александр

Закажите выезд инженера

Александр

Выездной инженер
Закажите выезд инженера для точной диагностики и профессиональной консультации по инженерным системам. Специалист приедет в удобное время, проведёт осмотр, рассчитает стоимость работ и подберёт оптимальные решения для вашего дома.


    Похожие проекты

    Ипотека и
    рассрочка
    Загородный дом «Онежино-120»
    Стоимость от:
    10 028 040
    Проект от: 63 900
    Этажей 1
    Санузлы 3
    Спальни 3
    Смотреть
    Ипотека и
    рассрочка
    Горный-59
    Стоимость от:
    8 860 560
    Проект от: 58 050
    Этажей 2
    Санузлы 2
    Спальни 5
    Смотреть
    Ипотека и
    рассрочка
    Двухэтажный жилой дом ЛЬЕЖ
    Стоимость от:
    9 198 480
    Проект от: 57 150
    Этажей 2
    Санузлы 1
    Спальни 2
    Смотреть
    Ипотека и
    рассрочка
    Трехкомнатный дом, площадью 73 кв.м., проект №65
    Стоимость от:
    4 994 660
    Проект от: 32 850
    Этажей 1
    Санузлы 1
    Спальни 2
    Смотреть
    Ипотека и
    рассрочка
    Индивидуальный жилой дом площадью площадью 105 м2
    Стоимость от:
    8 356 700
    Проект от: 47 250
    Этажей 1
    Санузлы 2
    Спальни 3
    Смотреть
    Ипотека и
    рассрочка
    Дом из арболита №3
    Стоимость от:
    9 463 080
    Проект от: 60 300
    Этажей 1
    Санузлы 1
    Спальни 3
    Смотреть

    Как узнать стоимость дома

    back
    Оставляете заявку
    Вы заполняете форму на сайте или звоните нам. Менеджер Лайвкрафт связывается с вами для уточнения деталей: тип дома, площадь, материалы, участок строительства.
    back
    Консультация и подбор решения
    Наш специалист помогает выбрать оптимальный тип дома и конструкцию с учётом бюджета, сроков и целей — будь то дом для постоянного проживания или дача.
    back
    Расчёт предварительной стоимости
    Инженер делает первичный расчёт стоимости строительства по вашим параметрам: фундамент, коробка, кровля, отделка. Вы получаете смету с разбивкой по этапам.
    back
    Корректировка и утверждение сметы
    При необходимости вносим изменения — например, замену материалов или сокращение этапов. После согласования формируется окончательная фиксированная смета.
    back
    Заключение договора и старт работ
    После утверждения сметы заключаем официальный договор с гарантией. Вы получаете прозрачный график и точную стоимость — без скрытых расходов.

    Заказать конусльтацию по:2-х этажный кирпичный дом 147 кв.м.

    Фото 1 2-х этажный кирпичный дом 147 кв.м.


      Наши
      контакты

      Дмитров
      Опорный проезд 28Б
      (индустриальный парк Ниагара)
      9:00 до 18:00

      Корзина