4.9
Рейтинг на основании 120 отзывов
Дмитров
Опорный проезд 28Б
(индустриальный парк Ниагара)
Бренд "Дмитров-Дело" c 2008 года на рынке строительства в Дмитрове
Звоните 9:00 до 18:00 8 (915) 055-33-61
Бренд "Дмитров-Дело" c 2008 года на рынке строительства в Дмитрове

219-П

Стоимость проекта от:
103 950 ₽
БЕСПЛАТНО! ПРИ ЗАКАЗЕ СТРОИТЕЛЬСТВА
Стоимость строительства от:
17 855 420 ₽
Артикул ART-17590
Дата 26.12.2025
Архитектурный стиль Хайтек
Количество надземных этажей 1
Круглогодичное проживание Да
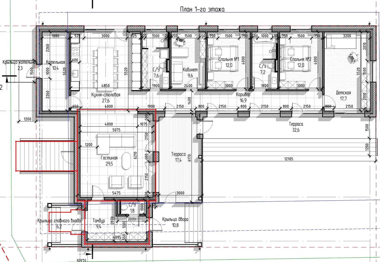
Площадь дома 231 м2
Санузлы 3
Спальни 3

Описание

**Дом 219‑П** – это настоящий архитектурный шедевр, где строгая геометрия хай‑тек стиля сочетается с теплотой современного комфортного жилья. Одноэтажный, круглогодичный дом, построенный из монолитного железобетона на плоской крыше, обещает надёжность и безопасность на протяжении всех сезонов. Его лаконичные линии и бесшовные поверхности создают ощущение простора даже внутри компактных помещений. Роскошная веранда и просторная терраса становятся главным акцентом внешнего вида: они открывают панорамный вид на окрестности, создавая естественную связь между вашим домом и природой. Несмотря на отсутствие балконов и гаража, дом компенсирует это продуманными внутренними решениями: функциональные комнаты, интегрированные зоны отдыха и кухня с открытой планировкой. 219‑П – идеальный выбор для тех, кто ценит эстетику, простоту и современный комфорт без лишней суеты.

Характеристики дома

Архитектурный стиль
Автоматизированное регулирование параметров теплоносителя
Да
Балконы/лоджии
Отсутствуют
Чердачное помещение
Нет
Датчики протечки воды
Нет
Эксплуатируемая или зеленая кровля
Нет
Электроснабжение
Центральное
Газоснабжение
Центральное
Изоляция воздушного шума
Да
Камин
Нет
Класс энергоэффективности
A
Класс энергосбережения
A++
Количество надземных этажей
1
Круглогодичное проживание
Да
Материал кровли
ПВХ мембраны
Материал перекрытий
Монолитные железобетонные
Материал внешних стен
Материал внутренних перегородок
Блочные
Модульное строительство с конструкциями заводского изготовления
Нет
Объем надземной части
1067 м3
Основной материал фасадов
Штукатурка
Отопление
Индивидуальное
Площадь дома
231 м2
Площадь застройки
250 м2
Подвальное помещение
Да
Показатель компактности здания
0.97
Приборы учета тепловой энергии
Да
Пристроенный гараж/крытая автостоянка
Нет
Противопожарная система
Нет
Санузлы
3
Совмещенная кухня-гостиная
Да
Спальни
3
Терраса
Да
Тип фундамента
Ленточный
Тип кровли
Толщина внешних стен
200 мм
Толщина внутренних перегородок
120 мм
Улучшенные шумовые характеристики
Да
Вентиляция
Рекуперация
Веранда
Да
Водоотведение
2 варианта
Водоснабжение
2 варианта
Высота дома
4.27 м
Высота потолков
3.22 м

Планировка

Фасад дома

Александр

Закажите выезд инженера

Александр

Выездной инженер
Закажите выезд инженера для точной диагностики и профессиональной консультации по инженерным системам. Специалист приедет в удобное время, проведёт осмотр, рассчитает стоимость работ и подберёт оптимальные решения для вашего дома.


    Похожие проекты

    Ипотека и
    рассрочка
    Одноэтажный барнхаус 127м2
    Стоимость от:
    7 082 790
    Проект от: 57 150
    Этажей 1
    Санузлы 2
    Спальни 3
    Смотреть
    Ипотека и
    рассрочка
    Загородный дом Фрита
    Стоимость от:
    8 902 800
    Проект от: 56 250
    Этажей 2
    Санузлы 2
    Спальни 4
    Смотреть
    Ипотека и
    рассрочка
    «Шустов»
    Стоимость от:
    6 885 960
    Проект от: 51 750
    Этажей 2
    Санузлы 2
    Спальни 4
    Смотреть
    Ипотека и
    рассрочка
    Антверпен
    Стоимость от:
    8 890 560
    Проект от: 60 300
    Этажей 2
    Санузлы 2
    Спальни 4
    Смотреть
    Ипотека и
    рассрочка
    K 2-101-2
    Стоимость от:
    7 031 280
    Проект от: 43 650
    Этажей 2
    Санузлы 2
    Спальни 4
    Смотреть
    Ипотека и
    рассрочка
    Дом №1_г. Краснослободск пер.Спортивный 1
    Стоимость от:
    8 533 140
    Проект от: 52 650
    Этажей 1
    Санузлы 2
    Спальни 3
    Смотреть

    Как узнать стоимость дома

    back
    Оставляете заявку
    Вы заполняете форму на сайте или звоните нам. Менеджер Лайвкрафт связывается с вами для уточнения деталей: тип дома, площадь, материалы, участок строительства.
    back
    Консультация и подбор решения
    Наш специалист помогает выбрать оптимальный тип дома и конструкцию с учётом бюджета, сроков и целей — будь то дом для постоянного проживания или дача.
    back
    Расчёт предварительной стоимости
    Инженер делает первичный расчёт стоимости строительства по вашим параметрам: фундамент, коробка, кровля, отделка. Вы получаете смету с разбивкой по этапам.
    back
    Корректировка и утверждение сметы
    При необходимости вносим изменения — например, замену материалов или сокращение этапов. После согласования формируется окончательная фиксированная смета.
    back
    Заключение договора и старт работ
    После утверждения сметы заключаем официальный договор с гарантией. Вы получаете прозрачный график и точную стоимость — без скрытых расходов.

    Заказать конусльтацию по:219-П

    Фото 1 219-П


      Наши
      контакты

      Дмитров
      Опорный проезд 28Б
      (индустриальный парк Ниагара)
      9:00 до 18:00

      Корзина