4.9
Рейтинг на основании 120 отзывов
Дмитров
Опорный проезд 28Б
(индустриальный парк Ниагара)
Бренд "Дмитров-Дело" c 2008 года на рынке строительства в Дмитрове
Звоните 9:00 до 18:00 8 (915) 055-33-61
Бренд "Дмитров-Дело" c 2008 года на рынке строительства в Дмитрове

21МН01.00 OKKERVIL

Стоимость проекта от:
31 950 ₽
БЕСПЛАТНО! ПРИ ЗАКАЗЕ СТРОИТЕЛЬСТВА
Стоимость строительства от:
4 494 655 ₽
Артикул ART-13154
Дата 25.12.2025
Архитектурный стиль Барнхаус
Количество надземных этажей 1
Круглогодичное проживание Да
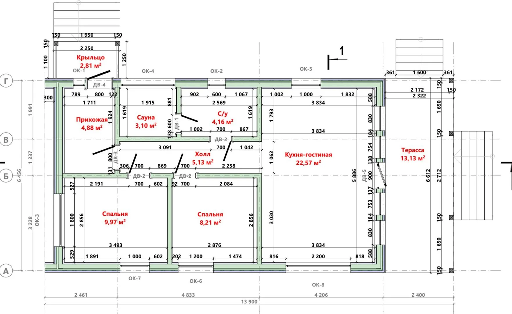
Площадь дома 71 м2
Санузлы 1
Спальни 2

Описание

Станьте обладателем уюта и стиля в доме 21МН01.00 OKKERVIL – настоящей жемчужины среди современных коттеджей. Уже при первом взгляде на фасад привлекает внимание барнхаус‑стилистика: простые, но выразительные линии, большие окна, которые зачеркиваемый контраст деревянных блоков. Внутри каждый уголок пропитан теплом естественного дерева, а открытая планировка создаёт ощущение простора и свободы. Дом рассчитан на круглогодичную жизнь, поэтому каждый элемент архитектуры – от плотных стен до ровных крыш, гарантирует комфорт в любую погоду. Одним из самых приятных плюсов является просторная терраса, идеально подходящая для летних барбекю, уютных вечеров на открытом воздухе и семейных посиделок. Фасадные стены из прочных деревянных блоков не только изначально дарят ощущение природы, но и обеспечивают теплоизоляцию, делая ваш дом энергоэффективным и экономичным. Нежная двускатная крыша подчёркивает романтичный облик, одновременно защищая от суровых климатических реалий. Уникальность 21МН01.00 в том, что он предлагает вам все преимущества современной жизни без лишних конструкций: нет балконов, веранд и пригороженных гаражей, что делает ваш дом более открытым, свободным и гармоничным. Вы сможете наслаждаться настоящей приватностью, не отказываясь от эстетики и комфорта. Забудьте о заботах – ваше новое домик уже ждет, чтобы стать уютным уголком вашего спокойствия и вдохновения.

Характеристики дома

Архитектурный стиль
Автоматизированное регулирование параметров теплоносителя
Нет
Балконы/лоджии
Отсутствуют
Чердачное помещение
Нет
Датчики протечки воды
Нет
Эксплуатируемая или зеленая кровля
Нет
Электроснабжение
Центральное
Газоснабжение
Не предусмотрено
Изоляция воздушного шума
Нет
Камин
Нет
Класс энергоэффективности
-
Класс энергосбережения
-
Количество надземных этажей
1
Круглогодичное проживание
Да
Материал кровли
Металлочерепица
Материал перекрытий
Деревянные
Материал внешних стен
Материал внутренних перегородок
Деревянные
Модульное строительство с конструкциями заводского изготовления
Нет
Объем надземной части
228 м3
Основной материал фасадов
Дерево
Отопление
Индивидуальное
Площадь дома
71 м2
Площадь застройки
94 м2
Подвальное помещение
Нет
Показатель компактности здания
-
Приборы учета тепловой энергии
Нет
Пристроенный гараж/крытая автостоянка
Нет
Противопожарная система
Нет
Санузлы
1
Совмещенная кухня-гостиная
Да
Спальни
2
Терраса
Да
Тип фундамента
Свайно-винтовой
Тип кровли
Толщина внешних стен
363 мм
Толщина внутренних перегородок
174 мм
Улучшенные шумовые характеристики
Нет
Вентиляция
Естественная
Веранда
Нет
Водоотведение
Центральное
Водоснабжение
Центральное
Высота дома
3.94 м
Высота потолков
3.3 м

Планировка

Фасад дома

Александр

Закажите выезд инженера

Александр

Выездной инженер
Закажите выезд инженера для точной диагностики и профессиональной консультации по инженерным системам. Специалист приедет в удобное время, проведёт осмотр, рассчитает стоимость работ и подберёт оптимальные решения для вашего дома.


    Похожие проекты

    Ипотека и
    рассрочка
    БарнХаус 115²
    Стоимость от:
    6 413 550
    Проект от: 51 750
    Этажей 1
    Санузлы 2
    Спальни 3
    Смотреть
    Ипотека и
    рассрочка
    БАРНХАУС 104м2
    Стоимость от:
    6 229 080
    Проект от: 44 550
    Этажей 1
    Санузлы 2
    Спальни 3
    Смотреть
    Ипотека и
    рассрочка
    Марматер 96
    Стоимость от:
    5 745 600
    Проект от: 43 200
    Этажей 2
    Санузлы 2
    Спальни 4
    Смотреть
    Ипотека и
    рассрочка
    P-4
    Стоимость от:
    8 441 510
    Проект от: 59 850
    Этажей 1
    Санузлы 2
    Спальни 3
    Смотреть
    Ипотека и
    рассрочка
    Проект одноэтажного дома Виченса
    Стоимость от:
    6 220 060
    Проект от: 44 100
    Этажей 1
    Санузлы 1
    Спальни 3
    Смотреть
    Ипотека и
    рассрочка
    Атлантий
    Стоимость от:
    6 314 880
    Проект от: 37 800
    Этажей 1
    Санузлы 1
    Спальни 3
    Смотреть

    Как узнать стоимость дома

    back
    Оставляете заявку
    Вы заполняете форму на сайте или звоните нам. Менеджер Лайвкрафт связывается с вами для уточнения деталей: тип дома, площадь, материалы, участок строительства.
    back
    Консультация и подбор решения
    Наш специалист помогает выбрать оптимальный тип дома и конструкцию с учётом бюджета, сроков и целей — будь то дом для постоянного проживания или дача.
    back
    Расчёт предварительной стоимости
    Инженер делает первичный расчёт стоимости строительства по вашим параметрам: фундамент, коробка, кровля, отделка. Вы получаете смету с разбивкой по этапам.
    back
    Корректировка и утверждение сметы
    При необходимости вносим изменения — например, замену материалов или сокращение этапов. После согласования формируется окончательная фиксированная смета.
    back
    Заключение договора и старт работ
    После утверждения сметы заключаем официальный договор с гарантией. Вы получаете прозрачный график и точную стоимость — без скрытых расходов.

    Заказать конусльтацию по:21МН01.00 OKKERVIL

    Фото 1 21МН01.00 OKKERVIL


      Наши
      контакты

      Дмитров
      Опорный проезд 28Б
      (индустриальный парк Ниагара)
      9:00 до 18:00

      Корзина