4.9
Рейтинг на основании 120 отзывов
Дмитров
Опорный проезд 28Б
(индустриальный парк Ниагара)
Бренд "Дмитров-Дело" c 2008 года на рынке строительства в Дмитрове
Звоните 9:00 до 18:00 8 (915) 055-33-61
Бренд "Дмитров-Дело" c 2008 года на рынке строительства в Дмитрове

23НШ11.00 KOPORE

Стоимость проекта от:
55 350 ₽
БЕСПЛАТНО! ПРИ ЗАКАЗЕ СТРОИТЕЛЬСТВА
Стоимость строительства от:
6 839 415 ₽
Артикул ART-13194
Дата 25.12.2025
Архитектурный стиль Барнхаус
Количество надземных этажей 1
Круглогодичное проживание Да
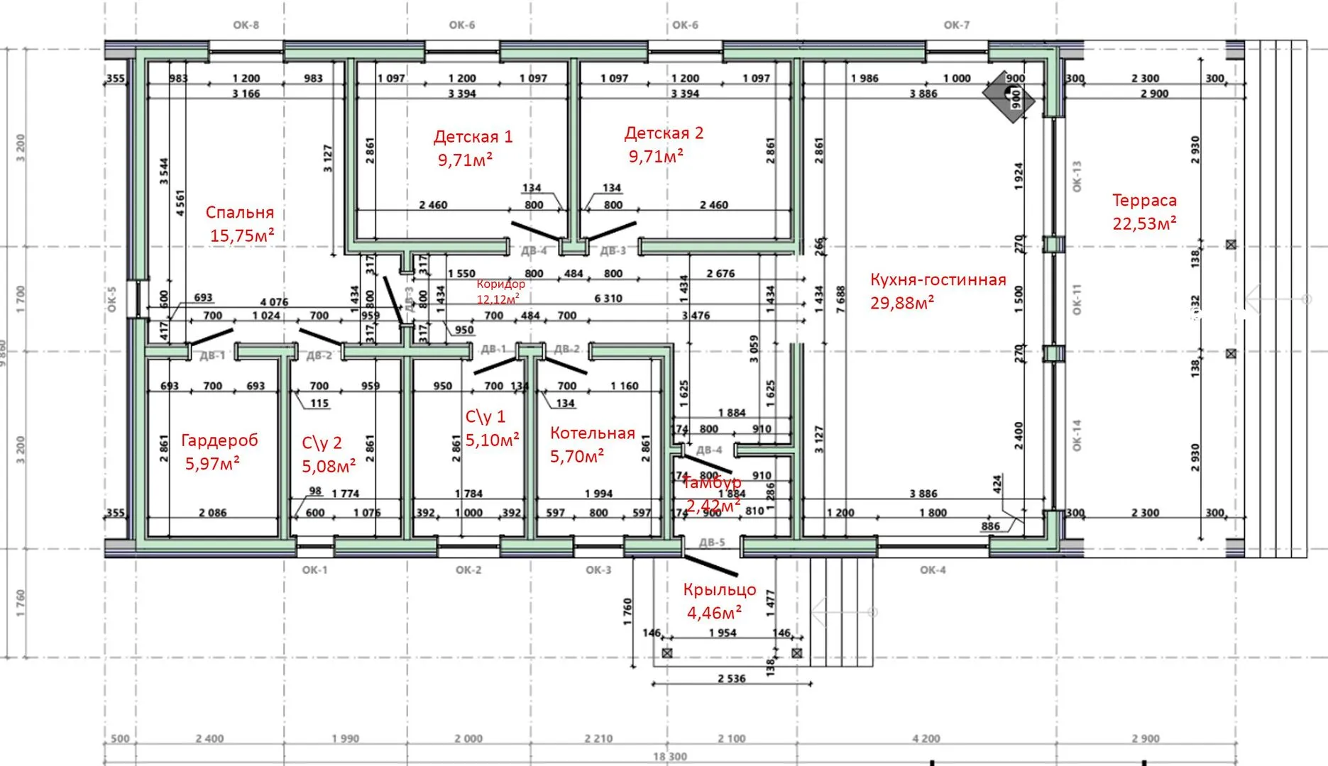
Площадь дома 123 м2
Санузлы 2
Спальни 3

Описание

23НШ11.00 KOPORE – это очаровательный одноэтажный дом в стиле барнхаус, созданный для того, чтобы каждый день дарил уют и спокойствие. В деревянном каркасном корпусе ощущается тёплая традиционность, а простота формы и изысканные детали придают ему неповторимый шарм. Здесь каждый уголок пропитан атмосферой уюта, а большие окна наполняют комнаты естественным светом, превращая ваш дом в светлое гнездышко. Тёплые и гостеприимные, дома в этом корпусе изготавливаются с учётом круглогодичного проживания — от зимних снежных пиков до летних ласковых дней. Бетонный фундамент, утепленные стенки и качественная двухскатная кровля гарантируют комфорт в любое время года. Чердачное помещение, превращенное в гостиную, творческую студию или личный кабинет, открывает новые возможности для развития вашего пространства. А уютная терраса, окружённая зеленью, приглашает проводить вечера в компании близких и друзей. В каждой детали этого дома чувствуется любовь к качеству и внимательность к потребностям современных хозяев. Если вы ищете гармоничную комбинацию традиционной эстетики и современного комфорта — 23НШ11.00 KOPORE станет идеальным выбором для вашего нового дома.

Характеристики дома

Архитектурный стиль
Автоматизированное регулирование параметров теплоносителя
Нет
Балконы/лоджии
Отсутствуют
Чердачное помещение
Да
Датчики протечки воды
Нет
Эксплуатируемая или зеленая кровля
Нет
Электроснабжение
Центральное
Газоснабжение
Не предусмотрено
Изоляция воздушного шума
Нет
Камин
Нет
Класс энергоэффективности
-
Класс энергосбережения
-
Количество надземных этажей
1
Круглогодичное проживание
Да
Материал кровли
Металлические листовые гофрированные профили
Материал перекрытий
Деревянные
Материал внешних стен
Материал внутренних перегородок
Деревянные
Модульное строительство с конструкциями заводского изготовления
Нет
Объем надземной части
534 м3
Основной материал фасадов
Дерево
Отопление
Индивидуальное
Площадь дома
123 м2
Площадь застройки
156 м2
Подвальное помещение
Нет
Показатель компактности здания
-
Приборы учета тепловой энергии
Нет
Пристроенный гараж/крытая автостоянка
Нет
Противопожарная система
Нет
Санузлы
2
Совмещенная кухня-гостиная
Да
Спальни
3
Терраса
Да
Тип фундамента
Свайно-винтовой
Тип кровли
Толщина внешних стен
370 мм
Толщина внутренних перегородок
290 мм
Улучшенные шумовые характеристики
Нет
Вентиляция
Естественная
Веранда
Нет
Водоотведение
Центральное
Водоснабжение
Центральное
Высота дома
5.27 м
Высота потолков
2.8 м

Планировка

Фасад дома

Александр

Закажите выезд инженера

Александр

Выездной инженер
Закажите выезд инженера для точной диагностики и профессиональной консультации по инженерным системам. Специалист приедет в удобное время, проведёт осмотр, рассчитает стоимость работ и подберёт оптимальные решения для вашего дома.


    Похожие проекты

    Ипотека и
    рассрочка
    Ддом-99
    Стоимость от:
    13 347 180
    Проект от: 85 050
    Этажей 1
    Санузлы 2
    Спальни 3
    Смотреть
    Ипотека и
    рассрочка
    Проект A017
    Стоимость от:
    5 649 120
    Проект от: 35 100
    Этажей 2
    Санузлы 2
    Спальни 2
    Смотреть
    Ипотека и
    рассрочка
    Брум
    Стоимость от:
    5 549 280
    Проект от: 43 200
    Этажей 1
    Санузлы 1
    Спальни 2
    Смотреть
    Ипотека и
    рассрочка
    1ЁШ83
    Стоимость от:
    6 239 860
    Проект от: 37 350
    Этажей 1
    Санузлы 1
    Спальни 3
    Смотреть
    Ипотека и
    рассрочка
    Кульсеитово-166
    Стоимость от:
    14 666 400
    Проект от: 94 500
    Этажей 2
    Санузлы 3
    Спальни 6
    Смотреть
    Ипотека и
    рассрочка
    Современное шале из арболита-Мечта
    Стоимость от:
    7 252 520
    Проект от: 47 700
    Этажей 1
    Санузлы 2
    Спальни 3
    Смотреть

    Как узнать стоимость дома

    back
    Оставляете заявку
    Вы заполняете форму на сайте или звоните нам. Менеджер Лайвкрафт связывается с вами для уточнения деталей: тип дома, площадь, материалы, участок строительства.
    back
    Консультация и подбор решения
    Наш специалист помогает выбрать оптимальный тип дома и конструкцию с учётом бюджета, сроков и целей — будь то дом для постоянного проживания или дача.
    back
    Расчёт предварительной стоимости
    Инженер делает первичный расчёт стоимости строительства по вашим параметрам: фундамент, коробка, кровля, отделка. Вы получаете смету с разбивкой по этапам.
    back
    Корректировка и утверждение сметы
    При необходимости вносим изменения — например, замену материалов или сокращение этапов. После согласования формируется окончательная фиксированная смета.
    back
    Заключение договора и старт работ
    После утверждения сметы заключаем официальный договор с гарантией. Вы получаете прозрачный график и точную стоимость — без скрытых расходов.

    Заказать конусльтацию по:23НШ11.00 KOPORE

    Фото 1 23НШ11.00 KOPORE


      Наши
      контакты

      Дмитров
      Опорный проезд 28Б
      (индустриальный парк Ниагара)
      9:00 до 18:00

      Корзина