4.9
Рейтинг на основании 120 отзывов
Дмитров
Опорный проезд 28Б
(индустриальный парк Ниагара)
Бренд "Дмитров-Дело" c 2008 года на рынке строительства в Дмитрове
Звоните 9:00 до 18:00 8 (915) 055-33-61
Бренд "Дмитров-Дело" c 2008 года на рынке строительства в Дмитрове

23НШ18 SIMAGINO

Стоимость проекта от:
66 600 ₽
БЕСПЛАТНО! ПРИ ЗАКАЗЕ СТРОИТЕЛЬСТВА
Стоимость строительства от:
8 680 200 ₽
Артикул ART-13824
Дата 25.12.2025
Архитектурный стиль Барнхаус
Количество надземных этажей 2
Круглогодичное проживание Да
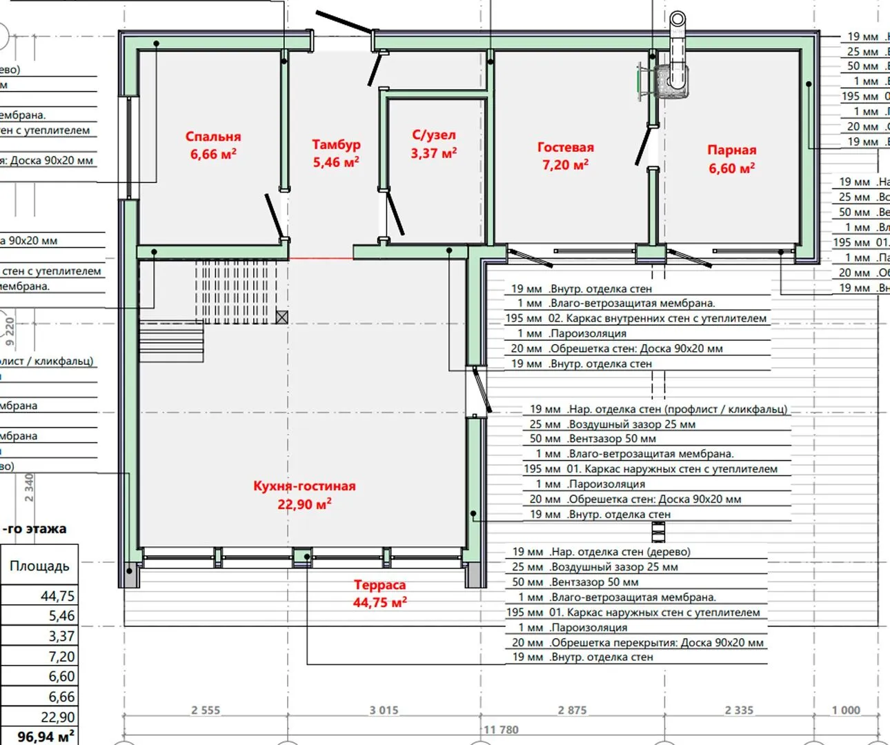
Площадь дома 148 м2
Санузлы 1
Спальни 2

Описание

23НШ18 SIMAGINO — это настоящий уголок уюта, сочетающий в себе неподвластную времени эстетику барнхаус и современные требования к комфорту. Две надземные план зоны, открывающиеся к живописному пейзажу, создают ощущение простора и свободы. Современные деревянные каркасные стены и комбинированная кровля гарантируют тепло и защиту от непогоды, позволяя проживать здесь круглый год без усилий. Особое внимание стоит обратить на большие балконы и просторную террасу, которые становятся идеальным местом для рассветных чашек кофе, аутдор‑обедов или просто тихих вечеров, наслаждающихся видом на природу. Внутренний интерьер — это открытые пространства, большие окна и светлые, воздушные цвета, которые вместе создают атмосферу легкости и свежести, характерную для стиля барнхаус. Необходимые детали, которые важны для каждого потенциального владельца: нет прицепленных гаражей, но зато предусмотрено место под автомобиль и дополнительные площадки для отдыха. SIMAGINO – это не просто дом, а приглашение к жизни, где каждый день начинается с вдохновения, а заканчивается спокойствием в уютном доме, созданном для тех, кто ценит гармонию между архитектурным стилем и практической функцией.

Характеристики дома

Архитектурный стиль
Автоматизированное регулирование параметров теплоносителя
Нет
Балконы/лоджии
2
Чердачное помещение
Нет
Датчики протечки воды
Нет
Эксплуатируемая или зеленая кровля
Да
Электроснабжение
Центральное
Газоснабжение
Не предусмотрено
Изоляция воздушного шума
Нет
Камин
Нет
Класс энергоэффективности
-
Класс энергосбережения
-
Количество надземных этажей
2
Круглогодичное проживание
Да
Материал кровли
Металлические листовые гофрированные профили
Материал перекрытий
Деревянные
Материал внешних стен
Материал внутренних перегородок
Деревянные
Модульное строительство с конструкциями заводского изготовления
Нет
Объем надземной части
646 м3
Основной материал фасадов
Дерево
Отопление
Индивидуальное
Площадь дома
148 м2
Площадь застройки
108 м2
Подвальное помещение
Нет
Показатель компактности здания
-
Приборы учета тепловой энергии
Нет
Пристроенный гараж/крытая автостоянка
Нет
Противопожарная система
Нет
Санузлы
1
Совмещенная кухня-гостиная
Да
Спальни
2
Терраса
Да
Тип фундамента
Свайно-винтовой
Тип кровли
Толщина внешних стен
330 мм
Толщина внутренних перегородок
135 мм
Улучшенные шумовые характеристики
Нет
Вентиляция
Естественная
Веранда
Нет
Водоотведение
Центральное
Водоснабжение
Центральное
Высота дома
5.99 м
Высота потолков
2.5 м

Планировка

Фасад дома

Александр

Закажите выезд инженера

Александр

Выездной инженер
Закажите выезд инженера для точной диагностики и профессиональной консультации по инженерным системам. Специалист приедет в удобное время, проведёт осмотр, рассчитает стоимость работ и подберёт оптимальные решения для вашего дома.


    Похожие проекты

    Ипотека и
    рассрочка
    КД «Рязань»
    Стоимость от:
    4 378 920
    Проект от: 32 850
    Этажей 2
    Санузлы 1
    Спальни 4
    Смотреть
    Ипотека и
    рассрочка
    SVOBODA-77
    Стоимость от:
    5 789 740
    Проект от: 34 650
    Этажей 1
    Санузлы 1
    Спальни 2
    Смотреть
    Ипотека и
    рассрочка
    Арболитовый Комфорт с гаражом и террасой
    Стоимость от:
    9 284 000
    Проект от: 54 000
    Этажей 1
    Санузлы 1
    Спальни 2
    Смотреть
    Ипотека и
    рассрочка
    Кульсеитово-166
    Стоимость от:
    14 666 400
    Проект от: 94 500
    Этажей 2
    Санузлы 3
    Спальни 6
    Смотреть
    Ипотека и
    рассрочка
    BS144
    Стоимость от:
    10 365 960
    Проект от: 62 100
    Этажей 1
    Санузлы 2
    Спальни 4
    Смотреть
    Ипотека и
    рассрочка
    SH «Давинчи»
    Стоимость от:
    8 416 200
    Проект от: 58 500
    Этажей 2
    Санузлы 3
    Спальни 4
    Смотреть

    Как узнать стоимость дома

    back
    Оставляете заявку
    Вы заполняете форму на сайте или звоните нам. Менеджер Лайвкрафт связывается с вами для уточнения деталей: тип дома, площадь, материалы, участок строительства.
    back
    Консультация и подбор решения
    Наш специалист помогает выбрать оптимальный тип дома и конструкцию с учётом бюджета, сроков и целей — будь то дом для постоянного проживания или дача.
    back
    Расчёт предварительной стоимости
    Инженер делает первичный расчёт стоимости строительства по вашим параметрам: фундамент, коробка, кровля, отделка. Вы получаете смету с разбивкой по этапам.
    back
    Корректировка и утверждение сметы
    При необходимости вносим изменения — например, замену материалов или сокращение этапов. После согласования формируется окончательная фиксированная смета.
    back
    Заключение договора и старт работ
    После утверждения сметы заключаем официальный договор с гарантией. Вы получаете прозрачный график и точную стоимость — без скрытых расходов.

    Заказать конусльтацию по:23НШ18 SIMAGINO

    Фото 1 23НШ18 SIMAGINO


      Наши
      контакты

      Дмитров
      Опорный проезд 28Б
      (индустриальный парк Ниагара)
      9:00 до 18:00

      Корзина