4.9
Рейтинг на основании 120 отзывов
Дмитров
Опорный проезд 28Б
(индустриальный парк Ниагара)
Бренд "Дмитров-Дело" c 2008 года на рынке строительства в Дмитрове
Звоните 9:00 до 18:00 8 (915) 055-33-61
Бренд "Дмитров-Дело" c 2008 года на рынке строительства в Дмитрове

24-334 Виста

Стоимость проекта от:
61 200 ₽
БЕСПЛАТНО! ПРИ ЗАКАЗЕ СТРОИТЕЛЬСТВА
Стоимость строительства от:
7 883 920 ₽
Артикул ART-11038
Дата 25.12.2025
Архитектурный стиль Классический
Количество надземных этажей 1
Круглогодичное проживание Да
Площадь дома 136 м2
Санузлы 2
Спальни 3

Описание

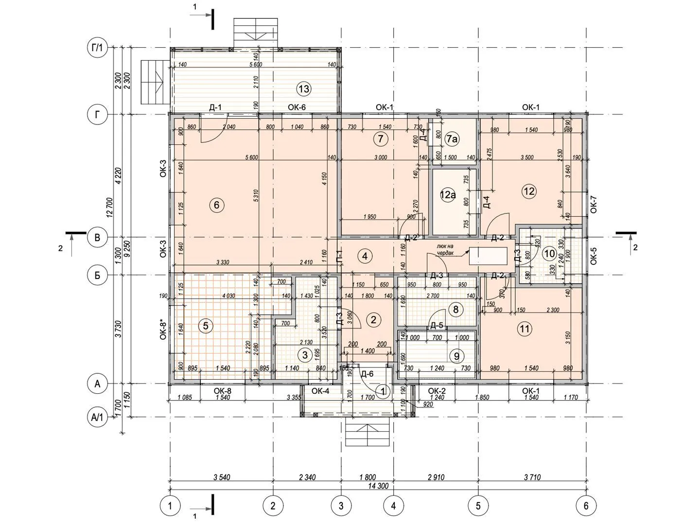
Дом «24‑334 Vista» — это воплощение спокойной элегантности в классическом стиле, созданное для того, чтобы каждый день стал истинным праздником уюта. Один надземный этаж, выполненный из высококачественного деревянного каркаса, дарит тепло и ощущение природной гармонии, а двускатная крыша придает зданию изящные линии и защиту от атмосферных факторов. Круглогодичное проживание здесь стало реальностью благодаря продуманной теплоизоляции и современным коммуникациям, которые скромно вписаны в историчный облик дома. Ограничивая простор на открытой террасе, «Vista» приглашает на бесконечные вечерние прогулки и спокойные беседы с близкими. Чёрдак, как скрытый уголок для творчества или тихого отдыха, добавляет дому многофункциональности и романтического шарма. Здесь нет балконов, веранд и пригороженных гаражей, но это лишь подчеркивает чистоту и лаконичность архитектурного решения, оставаясь при этом достаточно практичным для городской жизни, где каждый элемент обдуман до мелочей. Выбирая «24‑334 Vista» вы обретаете не просто жильё, а место, где классика встречается с комфортом, а каждый новый рассвет раскрывает перед вами открытые пространства, способные вдохновлять и успокаивать одновременно. Это дом, созданный для тех, кто ценит простоту, качество и неповторимый характер каждого уголка.

Характеристики дома

Архитектурный стиль
Автоматизированное регулирование параметров теплоносителя
-
Балконы/лоджии
Отсутствуют
Чердачное помещение
Да
Датчики протечки воды
-
Эксплуатируемая или зеленая кровля
-
Электроснабжение
Центральное
Газоснабжение
Не предусмотрено
Изоляция воздушного шума
-
Камин
Нет
Класс энергоэффективности
-
Класс энергосбережения
-
Количество надземных этажей
1
Круглогодичное проживание
Да
Материал кровли
Металлочерепица
Материал перекрытий
Деревянные
Материал внешних стен
Материал внутренних перегородок
Деревянные
Модульное строительство с конструкциями заводского изготовления
Нет
Объем надземной части
660 м3
Основной материал фасадов
Сайдинг
Отопление
Индивидуальное
Площадь дома
136 м2
Площадь застройки
162 м2
Подвальное помещение
Нет
Показатель компактности здания
-
Приборы учета тепловой энергии
-
Пристроенный гараж/крытая автостоянка
Нет
Противопожарная система
Нет
Санузлы
2
Совмещенная кухня-гостиная
Да
Спальни
3
Терраса
Да
Тип фундамента
Свайный
Тип кровли
Толщина внешних стен
275 мм
Толщина внутренних перегородок
210 мм
Улучшенные шумовые характеристики
-
Вентиляция
Естественная
Веранда
Нет
Водоотведение
Не предусмотрено
Водоснабжение
Не предусмотрено
Высота дома
5 м
Высота потолков
2.7 м

Планировка

Фасад дома

Александр

Закажите выезд инженера

Александр

Выездной инженер
Закажите выезд инженера для точной диагностики и профессиональной консультации по инженерным системам. Специалист приедет в удобное время, проведёт осмотр, рассчитает стоимость работ и подберёт оптимальные решения для вашего дома.


    Похожие проекты

    Ипотека и
    рассрочка
    «Волжанин 5К» 6х9 м. с террасой 2х9 м
    Стоимость от:
    5 937 360
    Проект от: 44 550
    Этажей 2
    Санузлы 1
    Спальни 3
    Смотреть
    Ипотека и
    рассрочка
    Жилой дом s-100
    Стоимость от:
    9 315 680
    Проект от: 55 800
    Этажей 1
    Санузлы 2
    Спальни 3
    Смотреть
    Ипотека и
    рассрочка
    АСТИ
    Стоимость от:
    4 521 660
    Проект от: 35 100
    Этажей 1
    Санузлы 1
    Спальни 2
    Смотреть
    Ипотека и
    рассрочка
    Богатырь
    Стоимость от:
    3 526 105
    Проект от: 27 450
    Этажей 1
    Санузлы 1
    Спальни 2
    Смотреть
    Ипотека и
    рассрочка
    Одноэтажный дом Шойкир-90
    Стоимость от:
    6 779 520
    Проект от: 43 200
    Этажей 1
    Санузлы 2
    Спальни 3
    Смотреть
    Ипотека и
    рассрочка
    Корнфилд 107
    Стоимость от:
    6 407 160
    Проект от: 48 150
    Этажей 2
    Санузлы 2
    Спальни 4
    Смотреть

    Как узнать стоимость дома

    back
    Оставляете заявку
    Вы заполняете форму на сайте или звоните нам. Менеджер Лайвкрафт связывается с вами для уточнения деталей: тип дома, площадь, материалы, участок строительства.
    back
    Консультация и подбор решения
    Наш специалист помогает выбрать оптимальный тип дома и конструкцию с учётом бюджета, сроков и целей — будь то дом для постоянного проживания или дача.
    back
    Расчёт предварительной стоимости
    Инженер делает первичный расчёт стоимости строительства по вашим параметрам: фундамент, коробка, кровля, отделка. Вы получаете смету с разбивкой по этапам.
    back
    Корректировка и утверждение сметы
    При необходимости вносим изменения — например, замену материалов или сокращение этапов. После согласования формируется окончательная фиксированная смета.
    back
    Заключение договора и старт работ
    После утверждения сметы заключаем официальный договор с гарантией. Вы получаете прозрачный график и точную стоимость — без скрытых расходов.

    Заказать конусльтацию по:24-334 Виста

    Фото 1 24-334 Виста


      Наши
      контакты

      Дмитров
      Опорный проезд 28Б
      (индустриальный парк Ниагара)
      9:00 до 18:00

      Корзина