4.9
Рейтинг на основании 120 отзывов
Дмитров
Опорный проезд 28Б
(индустриальный парк Ниагара)
Бренд "Дмитров-Дело" c 2008 года на рынке строительства в Дмитрове
Звоните 9:00 до 18:00 8 (915) 055-33-61
Бренд "Дмитров-Дело" c 2008 года на рынке строительства в Дмитрове

24ПФ06.00 Дом от Строй и Живи

Стоимость проекта от:
52 650 ₽
БЕСПЛАТНО! ПРИ ЗАКАЗЕ СТРОИТЕЛЬСТВА
Стоимость строительства от:
6 782 490 ₽
Артикул ART-17576
Дата 26.12.2025
Архитектурный стиль Европейский
Количество надземных этажей 1
Круглогодичное проживание Да
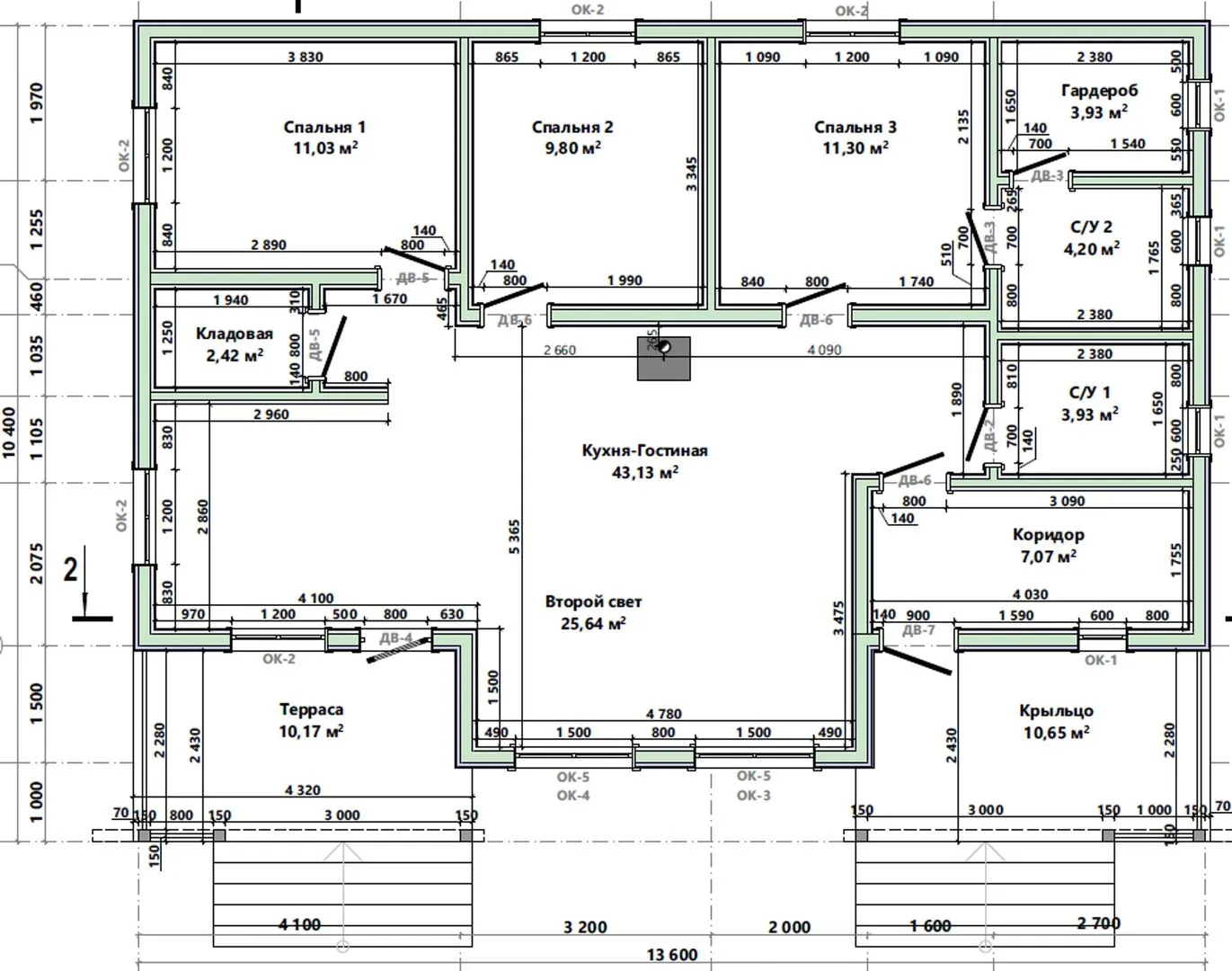
Площадь дома 117 м2
Санузлы 2
Спальни 3

Описание

**Дом 24ПФ06.00 от «Строй и Живи»** – это воплощение европейского шика в уютном деревенском стиле, который радует глаз своей элегантностью и простотой. С одним надземным этажом он предлагает просторное и светлое пространство, где каждый уголок наполнен теплом и гармонией. Благодаря круглогодичному дизайну дома вы будете наслаждаться комфортом даже в самые холодные зимние дни, а в летнюю жару прохлада сохраняется внутри благодаря продуманной теплоизоляции деревянного каркаса. Внутри интерьера преобладает мягкое сочетание натуральных материалов: древесные панели, эко-обои и качественные отделочные решения делают каждый зал словно оазис спокойствия. Отсутствие балконов и веранд не снимает шарма; напротив, просторная терраса внизу становится идеальным местом для рассветных чашек кофе, вечеров с друзьями и садовых вечеринок. Комбинированная кровля придает дому изящный профиль, а стеклянные конические панели привлекают свет, мягко озаряя внутреннее убранство. Для тех, кто ценит функциональность и стиль, «Строй и Живи» предлагает дом с деревянным каркасом – один из самых устойчивых и экологичных материалов. Удобное расположение, отсутствие крытых автостоянок и чердачных помещений подчеркивают простоту, как в архитектуре, так и в жизни. Дом 24ПФ06.00 – ваш новый образ жизни, где каждая деталь продумана до мелочей, а атмосфера всегда открывающей и вдохновляющей.

Характеристики дома

Архитектурный стиль
Автоматизированное регулирование параметров теплоносителя
Да
Балконы/лоджии
Отсутствуют
Чердачное помещение
Нет
Датчики протечки воды
Нет
Эксплуатируемая или зеленая кровля
Нет
Электроснабжение
Центральное
Газоснабжение
Не предусмотрено
Изоляция воздушного шума
Нет
Камин
Нет
Класс энергоэффективности
-
Класс энергосбережения
-
Количество надземных этажей
1
Круглогодичное проживание
Да
Материал кровли
Металлочерепица
Материал перекрытий
Деревянные
Материал внешних стен
Материал внутренних перегородок
Деревянные
Модульное строительство с конструкциями заводского изготовления
Нет
Объем надземной части
350 м3
Основной материал фасадов
Сайдинг
Отопление
Индивидуальное
Площадь дома
117 м2
Площадь застройки
137 м2
Подвальное помещение
Нет
Показатель компактности здания
-
Приборы учета тепловой энергии
Нет
Пристроенный гараж/крытая автостоянка
Нет
Противопожарная система
Нет
Санузлы
2
Совмещенная кухня-гостиная
Да
Спальни
3
Терраса
Да
Тип фундамента
Свайный
Тип кровли
Толщина внешних стен
150 мм
Толщина внутренних перегородок
100 мм
Улучшенные шумовые характеристики
Нет
Вентиляция
Естественная
Веранда
Нет
Водоотведение
Локальные очистные сооружения
Водоснабжение
Индивидуальное
Высота дома
5.5 м
Высота потолков
2.7 м

Планировка

Фасад дома

Александр

Закажите выезд инженера

Александр

Выездной инженер
Закажите выезд инженера для точной диагностики и профессиональной консультации по инженерным системам. Специалист приедет в удобное время, проведёт осмотр, рассчитает стоимость работ и подберёт оптимальные решения для вашего дома.


    Похожие проекты

    Ипотека и
    рассрочка
    Суслов24
    Стоимость от:
    15 581 520
    Проект от: 100 350
    Этажей 2
    Санузлы 3
    Спальни 4
    Смотреть
    Ипотека и
    рассрочка
    Проект загородного дома NHD-135
    Стоимость от:
    6 389 900
    Проект от: 38 250
    Этажей 1
    Санузлы 1
    Спальни 3
    Смотреть
    Ипотека и
    рассрочка
    Классик 8х8
    Стоимость от:
    7 912 080
    Проект от: 59 400
    Этажей 2
    Санузлы 2
    Спальни 5
    Смотреть
    Ипотека и
    рассрочка
    Усадебный деревянный 2х-этажный дом
    Стоимость от:
    13 690 320
    Проект от: 82 350
    Этажей 2
    Санузлы 1
    Спальни 2
    Смотреть
    Ипотека и
    рассрочка
    Одноэтажный коттедж Комфортный КИТ -1/90
    Стоимость от:
    5 500 220
    Проект от: 31 950
    Этажей 1
    Санузлы 1
    Спальни 2
    Смотреть
    Ипотека и
    рассрочка
    Мансардный дом З-365
    Стоимость от:
    25 561 440
    Проект от: 164 700
    Этажей 2
    Санузлы 2
    Спальни 3
    Смотреть

    Как узнать стоимость дома

    back
    Оставляете заявку
    Вы заполняете форму на сайте или звоните нам. Менеджер Лайвкрафт связывается с вами для уточнения деталей: тип дома, площадь, материалы, участок строительства.
    back
    Консультация и подбор решения
    Наш специалист помогает выбрать оптимальный тип дома и конструкцию с учётом бюджета, сроков и целей — будь то дом для постоянного проживания или дача.
    back
    Расчёт предварительной стоимости
    Инженер делает первичный расчёт стоимости строительства по вашим параметрам: фундамент, коробка, кровля, отделка. Вы получаете смету с разбивкой по этапам.
    back
    Корректировка и утверждение сметы
    При необходимости вносим изменения — например, замену материалов или сокращение этапов. После согласования формируется окончательная фиксированная смета.
    back
    Заключение договора и старт работ
    После утверждения сметы заключаем официальный договор с гарантией. Вы получаете прозрачный график и точную стоимость — без скрытых расходов.

    Заказать конусльтацию по:24ПФ06.00 Дом от Строй и Живи

    Фото 1 24ПФ06.00 Дом от Строй и Живи


      Наши
      контакты

      Дмитров
      Опорный проезд 28Б
      (индустриальный парк Ниагара)
      9:00 до 18:00

      Корзина