4.9
Рейтинг на основании 120 отзывов
Дмитров
Опорный проезд 28Б
(индустриальный парк Ниагара)
Бренд "Дмитров-Дело" c 2008 года на рынке строительства в Дмитрове
Звоните 9:00 до 18:00 8 (915) 055-33-61
Бренд "Дмитров-Дело" c 2008 года на рынке строительства в Дмитрове

24ПФ06.00 Дом от Строй и Живи

Стоимость проекта от:
52 650 ₽
БЕСПЛАТНО! ПРИ ЗАКАЗЕ СТРОИТЕЛЬСТВА
Стоимость строительства от:
6 782 490 ₽
Артикул ART-15710
Дата 25.12.2025
Архитектурный стиль Европейский
Количество надземных этажей 1
Круглогодичное проживание Да
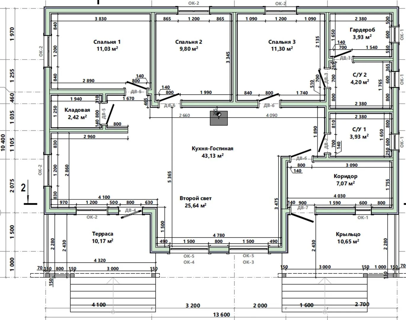
Площадь дома 117 м2
Санузлы 2
Спальни 3

Описание

Добро пожаловать в уютный уголок европейской элегантности — Дом от Строй и Живи 24ПФ06.00. Это неповторимое сочетание традиционной древесной конструкции и современного дизайна, которое приглашает вас ощутить спокойствие и гармонию прямо у порога. Просторный, светлый интерьер, завершённый в стиле, отсылающем к швейцарским шале, дарит ощущение безмятежности, а один надземный этаж позволяет легко адаптировать пространство под любой жизненный ритм. Крыша комплекса выполнена в комбинированном стиле, где классический деревянный каркас гармонично сочетается с ровными плоскими участками, создавая не только эстетическое удовольствие, но и защищая ваш дом от непогоды. Внешний вид придает изысканную силуэт, а терраса, обрамленная деревянными деталями, приглашает проводить вечера в компании теплого заката и свежего воздуха. Здесь нет балконов, веранд или пристроенного гаража, но каждый элемент продуман так, чтобы каждый день в доме ощущался как домашний праздник: круглогодичное проживание, открытость к природе и простота ухода. Станьте частью жизни, где каждая деталь — от швейцарской надёжности древесных стен до лаконичности внешнего профиля — напоминает, что дом это не просто стены, а место, где сердце находит покой. Погрузитесь в атмосферу европейской теплоты, почувствуйте, как уютно и удобно жить в таком доме, и откройте для себя новый стиль жизни, где комфорт всегда рядом.

Характеристики дома

Архитектурный стиль
Автоматизированное регулирование параметров теплоносителя
Да
Балконы/лоджии
Отсутствуют
Чердачное помещение
Нет
Датчики протечки воды
Нет
Эксплуатируемая или зеленая кровля
Нет
Электроснабжение
Центральное
Газоснабжение
Не предусмотрено
Изоляция воздушного шума
Нет
Камин
Нет
Класс энергоэффективности
-
Класс энергосбережения
-
Количество надземных этажей
1
Круглогодичное проживание
Да
Материал кровли
Металлочерепица
Материал перекрытий
Деревянные
Материал внешних стен
Материал внутренних перегородок
Деревянные
Модульное строительство с конструкциями заводского изготовления
Нет
Объем надземной части
350 м3
Основной материал фасадов
Дерево
Отопление
Не предусмотрено
Площадь дома
117 м2
Площадь застройки
137 м2
Подвальное помещение
Нет
Показатель компактности здания
-
Приборы учета тепловой энергии
Нет
Пристроенный гараж/крытая автостоянка
Нет
Противопожарная система
Нет
Санузлы
2
Совмещенная кухня-гостиная
Да
Спальни
3
Терраса
Да
Тип фундамента
Свайный
Тип кровли
Толщина внешних стен
150 мм
Толщина внутренних перегородок
100 мм
Улучшенные шумовые характеристики
Нет
Вентиляция
Естественная
Веранда
Нет
Водоотведение
Локальные очистные сооружения
Водоснабжение
2 варианта
Высота дома
5.5 м
Высота потолков
2.7 м

Планировка

Фасад дома

Александр

Закажите выезд инженера

Александр

Выездной инженер
Закажите выезд инженера для точной диагностики и профессиональной консультации по инженерным системам. Специалист приедет в удобное время, проведёт осмотр, рассчитает стоимость работ и подберёт оптимальные решения для вашего дома.


    Похожие проекты

    Ипотека и
    рассрочка
    Нива
    Стоимость от:
    9 865 440
    Проект от: 65 700
    Этажей 2
    Санузлы 2
    Спальни 4
    Смотреть
    Ипотека и
    рассрочка
    Проект Одноэтажный BARN 72
    Стоимость от:
    4 015 440
    Проект от: 32 400
    Этажей 1
    Санузлы 1
    Спальни 2
    Смотреть
    Ипотека и
    рассрочка
    Хвоя дом 1
    Стоимость от:
    5 029 035
    Проект от: 39 150
    Этажей 1
    Санузлы 1
    Спальни 3
    Смотреть
    Ипотека и
    рассрочка
    05-c-2024
    Стоимость от:
    5 338 740
    Проект от: 30 150
    Этажей 1
    Санузлы 1
    Спальни 3
    Смотреть
    Ипотека и
    рассрочка
    Арина
    Стоимость от:
    5 881 920
    Проект от: 43 200
    Этажей 1
    Санузлы 1
    Спальни 3
    Смотреть
    Ипотека и
    рассрочка
    Одноэтажный дом с двумя большими спальнями КБ81
    Стоимость от:
    6 089 820
    Проект от: 36 450
    Этажей 1
    Санузлы 2
    Спальни 2
    Смотреть

    Как узнать стоимость дома

    back
    Оставляете заявку
    Вы заполняете форму на сайте или звоните нам. Менеджер Лайвкрафт связывается с вами для уточнения деталей: тип дома, площадь, материалы, участок строительства.
    back
    Консультация и подбор решения
    Наш специалист помогает выбрать оптимальный тип дома и конструкцию с учётом бюджета, сроков и целей — будь то дом для постоянного проживания или дача.
    back
    Расчёт предварительной стоимости
    Инженер делает первичный расчёт стоимости строительства по вашим параметрам: фундамент, коробка, кровля, отделка. Вы получаете смету с разбивкой по этапам.
    back
    Корректировка и утверждение сметы
    При необходимости вносим изменения — например, замену материалов или сокращение этапов. После согласования формируется окончательная фиксированная смета.
    back
    Заключение договора и старт работ
    После утверждения сметы заключаем официальный договор с гарантией. Вы получаете прозрачный график и точную стоимость — без скрытых расходов.

    Заказать конусльтацию по:24ПФ06.00 Дом от Строй и Живи

    Фото 1 24ПФ06.00 Дом от Строй и Живи


      Наши
      контакты

      Дмитров
      Опорный проезд 28Б
      (индустриальный парк Ниагара)
      9:00 до 18:00

      Корзина