4.9
Рейтинг на основании 120 отзывов
Дмитров
Опорный проезд 28Б
(индустриальный парк Ниагара)
Бренд "Дмитров-Дело" c 2008 года на рынке строительства в Дмитрове
Звоните 9:00 до 18:00 8 (915) 055-33-61
Бренд "Дмитров-Дело" c 2008 года на рынке строительства в Дмитрове

81-12/24С

Стоимость проекта от:
49 500 ₽
БЕСПЛАТНО! ПРИ ЗАКАЗЕ СТРОИТЕЛЬСТВА
Стоимость строительства от:
8 229 600 ₽
Артикул ART-19963
Дата 26.12.2025
Архитектурный стиль Европейский
Количество надземных этажей 2
Круглогодичное проживание Да
Площадь дома 110 м2
Санузлы 2
Спальни 3

Описание

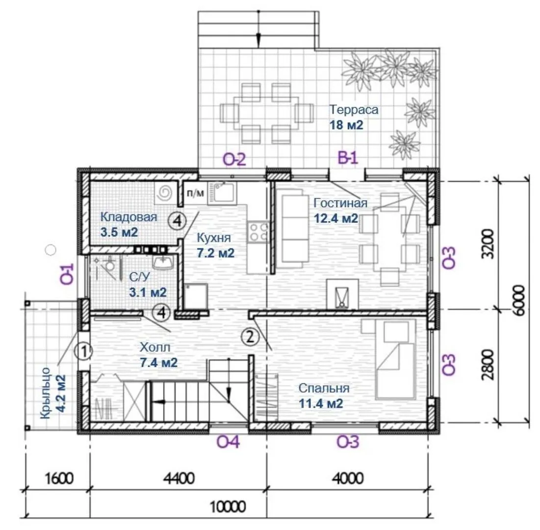
Сочетая элегантность европейского стиля с практичностью современного жилья, этот двухэтажный дом 81‑12/24С – настоящий оазис уюта и комфорта для круглогодичного проживания. Выходя из просторной гостиной, вы шагомерет в светлый зал с двумя боковыми окнами, а за стенами открывается яркое солнечное пространство на просторной террасе, где можно наслаждаться свежим воздухом и ароматом садовых растений. Внутри дом пропитан уютом: высокие потолки, открытая планировка и большие окна с открытой проекцией света, подчеркивая атмосферную легкость и простоту. Тщательно продуманный архитектурный план включает один изысканный балкон/лоджию, где можно провести утренний кофе или вечерние беседы под звёздами. Внешние стены, выполненные из керамзитобетонных блоков, дарят тепло и энергоэффективность, а двойственная крыша с классическим двускатным профилем защищает жильё от непогоды, сохраняя при этом элегантный вид. Без привязки к автостоянке это сделает ваш дом более свободным от лишних шумов, а отсутствие чердачного пространства позволяет полностью сосредоточиться на функциональности и дизайне. Эта недвижимость – идеальное место для тех, кто ценит комфорт круглый год, сочетание европейской эстетики и современных удобств. Продается в полностью обустроенном виде, готово к мгновенному заселению. Воспользуйтесь шансом стать владельцем этого уютного уголка, где каждая деталь создана для вашего удовольствия и спокойствия.

Характеристики дома

Архитектурный стиль
Автоматизированное регулирование параметров теплоносителя
Нет
Балконы/лоджии
1
Чердачное помещение
Нет
Датчики протечки воды
Нет
Эксплуатируемая или зеленая кровля
Нет
Электроснабжение
Не предусмотрено
Газоснабжение
Не предусмотрено
Изоляция воздушного шума
Нет
Камин
Нет
Класс энергоэффективности
-
Класс энергосбережения
-
Количество надземных этажей
2
Круглогодичное проживание
Да
Материал кровли
Металлочерепица
Материал перекрытий
Деревянные
Материал внешних стен
Материал внутренних перегородок
Блочные
Модульное строительство с конструкциями заводского изготовления
Нет
Объем надземной части
400 м3
Основной материал фасадов
Штукатурка
Отопление
Не предусмотрено
Площадь дома
110 м2
Площадь застройки
67 м2
Подвальное помещение
Нет
Показатель компактности здания
-
Приборы учета тепловой энергии
Нет
Пристроенный гараж/крытая автостоянка
Нет
Противопожарная система
Нет
Санузлы
2
Совмещенная кухня-гостиная
Нет
Спальни
3
Терраса
Да
Тип фундамента
Ленточный
Тип кровли
Толщина внешних стен
200 мм
Толщина внутренних перегородок
100 мм
Улучшенные шумовые характеристики
Нет
Вентиляция
Естественная
Веранда
Нет
Водоотведение
Не предусмотрено
Водоснабжение
Не предусмотрено
Высота дома
7.6 м
Высота потолков
2.8 м

Планировка

Фасад дома

Александр

Закажите выезд инженера

Александр

Выездной инженер
Закажите выезд инженера для точной диагностики и профессиональной консультации по инженерным системам. Специалист приедет в удобное время, проведёт осмотр, рассчитает стоимость работ и подберёт оптимальные решения для вашего дома.


    Похожие проекты

    Ипотека и
    рассрочка
    ОД- 288
    Стоимость от:
    8 455 260
    Проект от: 62 100
    Этажей 1
    Санузлы 2
    Спальни 3
    Смотреть
    Ипотека и
    рассрочка
    ОН- 1/136 Шале
    Стоимость от:
    10 028 040
    Проект от: 63 900
    Этажей 1
    Санузлы 3
    Спальни 4
    Смотреть
    Ипотека и
    рассрочка
    Загородный дом АС-202
    Стоимость от:
    20 183 900
    Проект от: 132 750
    Этажей 1
    Санузлы 2
    Спальни 2
    Смотреть
    Ипотека и
    рассрочка
    Одноэтажный кирпичный дом PREMIUM — 158 m2 Красный облицовочный кирпич
    Стоимость от:
    9 548 000
    Проект от: 54 000
    Этажей 1
    Санузлы 2
    Спальни 3
    Смотреть
    Ипотека и
    рассрочка
    Загородный дом Малахит
    Стоимость от:
    8 191 920
    Проект от: 52 200
    Этажей 1
    Санузлы 3
    Спальни 3
    Смотреть
    Ипотека и
    рассрочка
    Двухэтажный загородный дом «ЗС 507-22»
    Стоимость от:
    15 375 360
    Проект от: 100 800
    Этажей 2
    Санузлы 2
    Спальни 4
    Смотреть

    Как узнать стоимость дома

    back
    Оставляете заявку
    Вы заполняете форму на сайте или звоните нам. Менеджер Лайвкрафт связывается с вами для уточнения деталей: тип дома, площадь, материалы, участок строительства.
    back
    Консультация и подбор решения
    Наш специалист помогает выбрать оптимальный тип дома и конструкцию с учётом бюджета, сроков и целей — будь то дом для постоянного проживания или дача.
    back
    Расчёт предварительной стоимости
    Инженер делает первичный расчёт стоимости строительства по вашим параметрам: фундамент, коробка, кровля, отделка. Вы получаете смету с разбивкой по этапам.
    back
    Корректировка и утверждение сметы
    При необходимости вносим изменения — например, замену материалов или сокращение этапов. После согласования формируется окончательная фиксированная смета.
    back
    Заключение договора и старт работ
    После утверждения сметы заключаем официальный договор с гарантией. Вы получаете прозрачный график и точную стоимость — без скрытых расходов.

    Заказать конусльтацию по:81-12/24С

    Фото 1 81-12/24С


      Наши
      контакты

      Дмитров
      Опорный проезд 28Б
      (индустриальный парк Ниагара)
      9:00 до 18:00

      Корзина