4.9
Рейтинг на основании 120 отзывов
Дмитров
Опорный проезд 28Б
(индустриальный парк Ниагара)
Бренд "Дмитров-Дело" c 2008 года на рынке строительства в Дмитрове
Звоните 9:00 до 18:00 8 (915) 055-33-61
Бренд "Дмитров-Дело" c 2008 года на рынке строительства в Дмитрове

88-24

Стоимость проекта от:
69 750 ₽
БЕСПЛАТНО! ПРИ ЗАКАЗЕ СТРОИТЕЛЬСТВА
Стоимость строительства от:
9 837 850 ₽
Артикул ART-18813
Дата 26.12.2025
Архитектурный стиль Скандинавский
Количество надземных этажей 1
Круглогодичное проживание Да
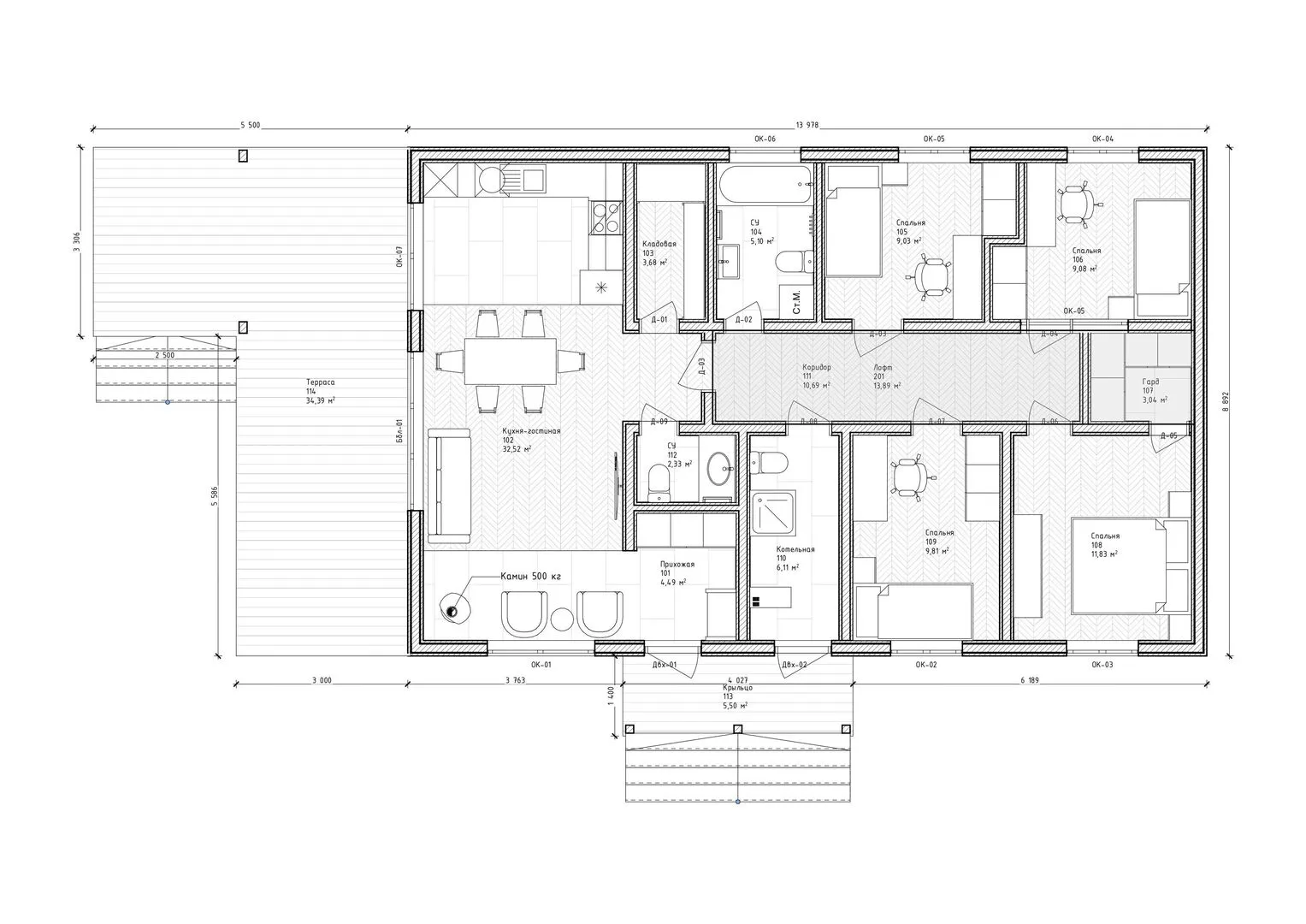
Площадь дома 155 м2
Санузлы 2
Спальни 4

Описание

**Скандинавский очаровательный дом‑одноэтажный 88‑24** Этот уютный дом сочетает в себе строгую скандинавскую простоту и современный комфорт. Его облик подчёркивает лаконичные линии, светлые тона и изысканные детали, создавая атмосферу чистоты и спокойствия. Благодаря высококачественным SIP‑панелям внешние стены обеспечивают энергоэффективность и долгую службу без лишних забот. Комбинированная крыша с легкими конструкциями сохраняет тепло в зимний период и защищает от жары в летние дни. Многопользовательская площадь с открытой террасой приглашает гостеприимных хозяев на летние барбекю или тихие зимние вечера с чашей горячего чая. Отсутствие балконов и веранд не мешает ощущать свежий воздух — пространство организовано так, чтобы наружный вид всегда был виден изнутри, а приватность — гарантирована. Поскольку в доме нет пристроенного гаража, жильё сохраняет чистоту и порядок. Этот дом идеально подходит тем, кто ценит функциональность и экологичность: круглогодичное проживание, простота уборки и низкие эксплуатационные расходы делают 88‑24 идеальным выбором для семей, пар и тех, кто ищет современный, но экономичный вариант жилья. Приглашаем вас открыть для себя уникальное сочетание стиля, практичности и комфорта в одном из самых привлекательных проектов на рынке.

Характеристики дома

Архитектурный стиль
Автоматизированное регулирование параметров теплоносителя
Нет
Балконы/лоджии
Отсутствуют
Чердачное помещение
Нет
Датчики протечки воды
Нет
Эксплуатируемая или зеленая кровля
Нет
Электроснабжение
Центральное
Газоснабжение
Индивидуальное
Изоляция воздушного шума
Нет
Камин
Да
Класс энергоэффективности
-
Класс энергосбережения
-
Количество надземных этажей
1
Круглогодичное проживание
Да
Материал кровли
Металлочерепица
Материал перекрытий
Деревянные
Материал внешних стен
Материал внутренних перегородок
Деревянные
Модульное строительство с конструкциями заводского изготовления
Нет
Объем надземной части
403 м3
Основной материал фасадов
Сайдинг
Отопление
Индивидуальное
Площадь дома
155 м2
Площадь застройки
161 м2
Подвальное помещение
Нет
Показатель компактности здания
-
Приборы учета тепловой энергии
Нет
Пристроенный гараж/крытая автостоянка
Нет
Противопожарная система
Нет
Санузлы
2
Совмещенная кухня-гостиная
Да
Спальни
4
Терраса
Да
Тип фундамента
Свайный
Тип кровли
Толщина внешних стен
221 мм
Толщина внутренних перегородок
145 мм
Улучшенные шумовые характеристики
Нет
Вентиляция
Естественная
Веранда
Нет
Водоотведение
Локальные очистные сооружения
Водоснабжение
Индивидуальное
Высота дома
5.17 м
Высота потолков
2.5 м

Планировка

Фасад дома

Александр

Закажите выезд инженера

Александр

Выездной инженер
Закажите выезд инженера для точной диагностики и профессиональной консультации по инженерным системам. Специалист приедет в удобное время, проведёт осмотр, рассчитает стоимость работ и подберёт оптимальные решения для вашего дома.


    Похожие проекты

    Ипотека и
    рассрочка
    Плёс 2
    Стоимость от:
    6 291 780
    Проект от: 35 550
    Этажей 1
    Санузлы 2
    Спальни 3
    Смотреть
    Ипотека и
    рассрочка
    Современное шале с навесом для 2х машин №247
    Стоимость от:
    13 409 280
    Проект от: 86 400
    Этажей 2
    Санузлы 2
    Спальни 4
    Смотреть
    Ипотека и
    рассрочка
    24ЯС06.01 RUF+ +
    Стоимость от:
    2 502 225
    Проект от: 20 250
    Этажей 1
    Санузлы 1
    Спальни 1
    Смотреть
    Ипотека и
    рассрочка
    Двухэтажный жилой дом с террасой Н-137
    Стоимость от:
    10 256 880
    Проект от: 61 650
    Этажей 2
    Санузлы 2
    Спальни 4
    Смотреть
    Ипотека и
    рассрочка
    Одноэтажный дом К-76
    Стоимость от:
    5 199 920
    Проект от: 34 200
    Этажей 1
    Санузлы 1
    Спальни 3
    Смотреть
    Ипотека и
    рассрочка
    Райт Готика 53
    Стоимость от:
    3 614 160
    Проект от: 21 600
    Этажей 1
    Санузлы 1
    Спальни 2
    Смотреть

    Как узнать стоимость дома

    back
    Оставляете заявку
    Вы заполняете форму на сайте или звоните нам. Менеджер Лайвкрафт связывается с вами для уточнения деталей: тип дома, площадь, материалы, участок строительства.
    back
    Консультация и подбор решения
    Наш специалист помогает выбрать оптимальный тип дома и конструкцию с учётом бюджета, сроков и целей — будь то дом для постоянного проживания или дача.
    back
    Расчёт предварительной стоимости
    Инженер делает первичный расчёт стоимости строительства по вашим параметрам: фундамент, коробка, кровля, отделка. Вы получаете смету с разбивкой по этапам.
    back
    Корректировка и утверждение сметы
    При необходимости вносим изменения — например, замену материалов или сокращение этапов. После согласования формируется окончательная фиксированная смета.
    back
    Заключение договора и старт работ
    После утверждения сметы заключаем официальный договор с гарантией. Вы получаете прозрачный график и точную стоимость — без скрытых расходов.

    Заказать конусльтацию по:88-24

    Фото 1 88-24


      Наши
      контакты

      Дмитров
      Опорный проезд 28Б
      (индустриальный парк Ниагара)
      9:00 до 18:00

      Корзина