4.9
Рейтинг на основании 120 отзывов
Дмитров
Опорный проезд 28Б
(индустриальный парк Ниагара)
Бренд "Дмитров-Дело" c 2008 года на рынке строительства в Дмитрове
Звоните 9:00 до 18:00 8 (915) 055-33-61
Бренд "Дмитров-Дело" c 2008 года на рынке строительства в Дмитрове

A-frame LN-244

Стоимость проекта от:
31 050 ₽
БЕСПЛАТНО! ПРИ ЗАКАЗЕ СТРОИТЕЛЬСТВА
Стоимость строительства от:
4 055 160 ₽
Артикул ART-19416
Дата 26.12.2025
Архитектурный стиль Американский/Канадский
Количество надземных этажей 2
Круглогодичное проживание Да
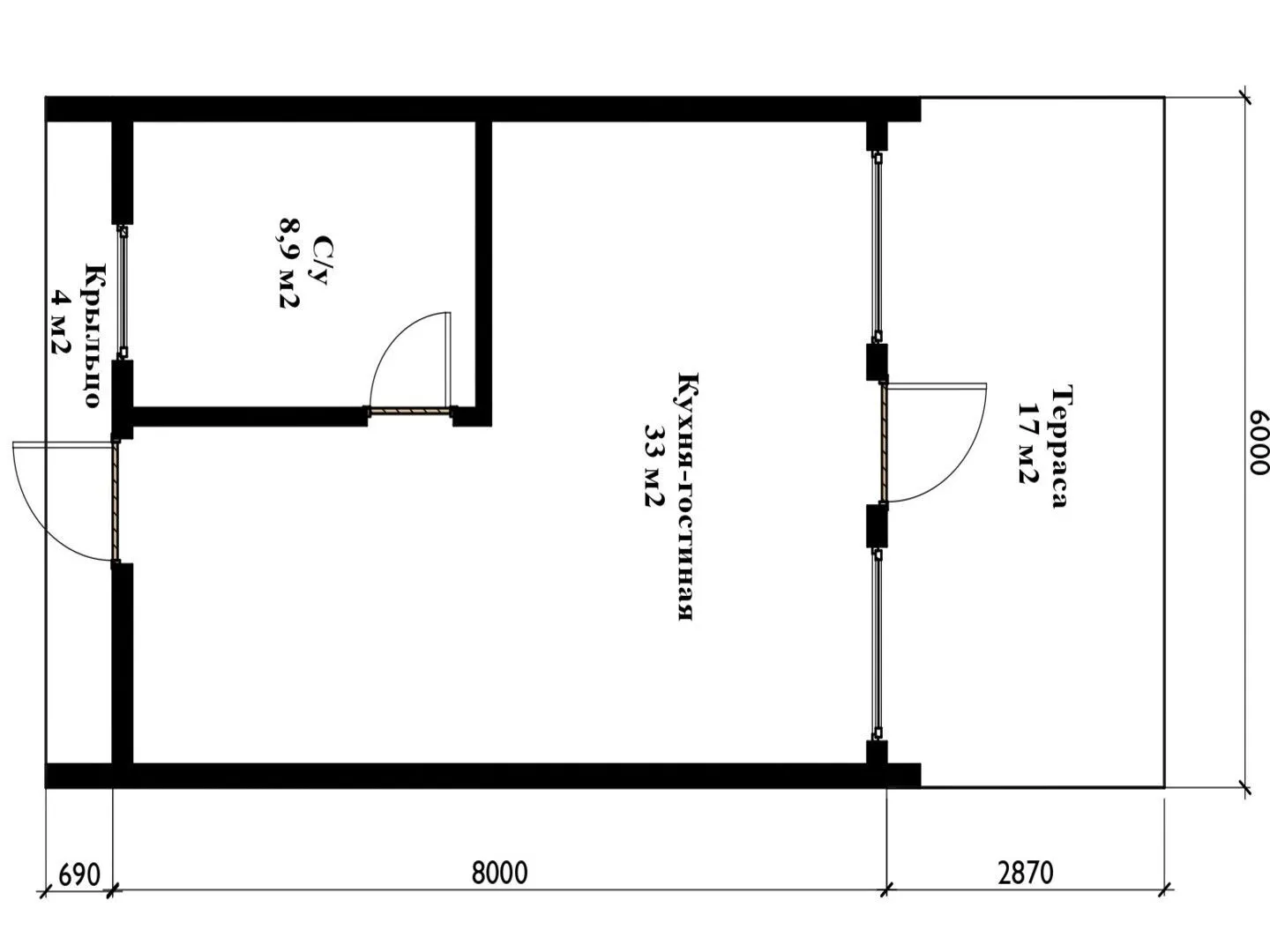
Площадь дома 69 м2
Санузлы 1
Спальни 1

Описание

**A‑frame LN‑244** – это дом, в котором каждый уголок вдохновляет и согревает. Его архитектура, выполненная в стиле американского и канадского логга, привносит в пространство естественную простоту и тепло. Двухэтажный дом располаг­ается на приподнятой площадке, где каждая комната открывается на обширную террасу, даря возможность наслаждаться панорамными видами и свежим воздухом. У стены дома – прочный деревянный каркас, который не только обеспечивает надежную защиту от непогоды, но и создаёт ощущение уюта и гармонии с природой. Двускатная крыша подчёркивает лаконичность линии арочной формы, а наличие террасы позволяет провести в любой момент времени вечер в окружении живописных пейзажей. Благодаря продуманной внутренней планировке, в доме предусмотрено достаточно места для комфортного проживания круглый год: уютные спальни, светлые ванные комнаты и просторная кухня с панорамными окнами, открывающими вид на природу. Если вы цените аутентичность и функциональность, A‑frame LN‑244 – идеальный выбор. Он соединяет в себе традиционный стиль с новейшими удобствами, создавая идеальное место для семейной жизни, отдыха и вдохновения. В этом доме вы ощутите гармонию с природой и уверенность в каждом дне, ведь всё сделано так, чтобы вам было легко и комфортно жить.*

Характеристики дома

Архитектурный стиль
Автоматизированное регулирование параметров теплоносителя
Да
Балконы/лоджии
Отсутствуют
Чердачное помещение
Нет
Датчики протечки воды
Нет
Эксплуатируемая или зеленая кровля
Нет
Электроснабжение
Центральное
Газоснабжение
Не предусмотрено
Изоляция воздушного шума
Нет
Камин
Нет
Класс энергоэффективности
-
Класс энергосбережения
-
Количество надземных этажей
2
Круглогодичное проживание
Да
Материал кровли
Фальцевая кровля Кликфальц
Материал перекрытий
Деревянные
Материал внешних стен
Материал внутренних перегородок
Деревянные
Модульное строительство с конструкциями заводского изготовления
Нет
Объем надземной части
250 м3
Основной материал фасадов
Планкен
Отопление
Индивидуальное
Площадь дома
69 м2
Площадь застройки
48 м2
Подвальное помещение
Нет
Показатель компактности здания
-
Приборы учета тепловой энергии
Нет
Пристроенный гараж/крытая автостоянка
Нет
Противопожарная система
Нет
Санузлы
1
Совмещенная кухня-гостиная
Да
Спальни
1
Терраса
Да
Тип фундамента
Свайный
Тип кровли
Толщина внешних стен
300 мм
Толщина внутренних перегородок
150 мм
Улучшенные шумовые характеристики
Да
Вентиляция
Естественная
Веранда
Нет
Водоотведение
Не предусмотрено
Водоснабжение
Не предусмотрено
Высота дома
5.39 м
Высота потолков
2.5 м

Планировка

Фасад дома

Александр

Закажите выезд инженера

Александр

Выездной инженер
Закажите выезд инженера для точной диагностики и профессиональной консультации по инженерным системам. Специалист приедет в удобное время, проведёт осмотр, рассчитает стоимость работ и подберёт оптимальные решения для вашего дома.


    Похожие проекты

    Ипотека и
    рассрочка
    Загородный дом HT-267
    Стоимость от:
    17 789 200
    Проект от: 117 000
    Этажей 1
    Санузлы 2
    Спальни 4
    Смотреть
    Ипотека и
    рассрочка
    FK-178
    Стоимость от:
    12 616 560
    Проект от: 75 600
    Этажей 1
    Санузлы 2
    Спальни 4
    Смотреть
    Ипотека и
    рассрочка
    Одноэтажный сканди Н-1
    Стоимость от:
    7 184 100
    Проект от: 47 250
    Этажей 1
    Санузлы 1
    Спальни 3
    Смотреть
    Ипотека и
    рассрочка
    Двухэтажный дом №8
    Стоимость от:
    13 093 200
    Проект от: 78 750
    Этажей 2
    Санузлы 3
    Спальни 5
    Смотреть
    Ипотека и
    рассрочка
    Проект КД-113
    Стоимость от:
    6 550 610
    Проект от: 50 850
    Этажей 1
    Санузлы 2
    Спальни 3
    Смотреть
    Ипотека и
    рассрочка
    Одноэтажный дом ПГ — 1
    Стоимость от:
    5 039 540
    Проект от: 30 150
    Этажей 1
    Санузлы 1
    Спальни 2
    Смотреть

    Как узнать стоимость дома

    back
    Оставляете заявку
    Вы заполняете форму на сайте или звоните нам. Менеджер Лайвкрафт связывается с вами для уточнения деталей: тип дома, площадь, материалы, участок строительства.
    back
    Консультация и подбор решения
    Наш специалист помогает выбрать оптимальный тип дома и конструкцию с учётом бюджета, сроков и целей — будь то дом для постоянного проживания или дача.
    back
    Расчёт предварительной стоимости
    Инженер делает первичный расчёт стоимости строительства по вашим параметрам: фундамент, коробка, кровля, отделка. Вы получаете смету с разбивкой по этапам.
    back
    Корректировка и утверждение сметы
    При необходимости вносим изменения — например, замену материалов или сокращение этапов. После согласования формируется окончательная фиксированная смета.
    back
    Заключение договора и старт работ
    После утверждения сметы заключаем официальный договор с гарантией. Вы получаете прозрачный график и точную стоимость — без скрытых расходов.

    Заказать конусльтацию по:A-frame LN-244

    Фото 1 A-frame LN-244


      Наши
      контакты

      Дмитров
      Опорный проезд 28Б
      (индустриальный парк Ниагара)
      9:00 до 18:00

      Корзина