4.9
Рейтинг на основании 120 отзывов
Дмитров
Опорный проезд 28Б
(индустриальный парк Ниагара)
Бренд "Дмитров-Дело" c 2008 года на рынке строительства в Дмитрове
Звоните 9:00 до 18:00 8 (915) 055-33-61
Бренд "Дмитров-Дело" c 2008 года на рынке строительства в Дмитрове

А7-21

Стоимость проекта от:
151 650 ₽
БЕСПЛАТНО! ПРИ ЗАКАЗЕ СТРОИТЕЛЬСТВА
Стоимость строительства от:
23 963 280 ₽
Артикул ART-19180
Дата 26.12.2025
Архитектурный стиль Классический
Количество надземных этажей 2
Круглогодичное проживание Да
Площадь дома 337 м2
Санузлы 3
Спальни 4

Описание

**Шик и уют в каждом углу** Дом А7‑21 приглашает своих будущих владельцев в атмосферу истинного классического комфорта. Вышедший в 2024 года, он построен из высококачественных керамических блоков, которые не только придают фасаду элегантный вид, но и защищают от перепадов температур – идеальное решение для круглогодичного проживания. Два целых этажа, просторные комнаты как в доме, так и на втором этаже, создают идеальное пространство для вашей семьи, где каждый найдет свою уютную нишу. **Удобства, которые делают жизнь проще** Уникальный четырёхскатный крышевой профиль придает дому неповторимый вид, подчёркивая его классическую архитектуру. Застекленные двери и панорамные окна дарят свет и ощущение простора, а терраса, выходящая от главного этажа, становится вашим личным уголком для летних барбекю и уютных вечеров под открытым небом. Пристроенный гараж обеспечивает безопасное хранение автомобиля и освобождает дом от лишних загромождений. В доме отсутствуют балконы и веранда, но именно это позволяет сохранить чистоту и лаконичность линий интерьера, а просторные внутренние помещения дают максимум свободы для творчества и организации пространства. **Стабильность и стиль в одном комплексе** Этот дом сочетает в себе проверенное решение – классический стиль, долговечные материалы и продуманную планировку. Он идеален как для тех, кто ценит традиционный уют, так и для тех, кто ищет современного дома с характером. Здесь каждая деталь продуманна на максимум комфорта, а стильный вид и удобства делают А7‑21 настоящим выбором для вашего семейного гнезда.

Характеристики дома

Архитектурный стиль
Автоматизированное регулирование параметров теплоносителя
Да
Балконы/лоджии
Отсутствуют
Чердачное помещение
Нет
Датчики протечки воды
Да
Эксплуатируемая или зеленая кровля
Нет
Электроснабжение
Центральное
Газоснабжение
Центральное
Изоляция воздушного шума
Да
Камин
Да
Класс энергоэффективности
-
Класс энергосбережения
-
Количество надземных этажей
2
Круглогодичное проживание
Да
Материал кровли
Композитная черепица
Материал перекрытий
Сборные железобетонные
Материал внешних стен
Материал внутренних перегородок
Кирпичные
Модульное строительство с конструкциями заводского изготовления
Нет
Объем надземной части
2002 м3
Основной материал фасадов
Облицовочный кирпич
Отопление
Центральное
Площадь дома
337 м2
Площадь застройки
637 м2
Подвальное помещение
Нет
Показатель компактности здания
-
Приборы учета тепловой энергии
Да
Пристроенный гараж/крытая автостоянка
Да
Противопожарная система
Да
Санузлы
3
Совмещенная кухня-гостиная
Да
Спальни
4
Терраса
Да
Тип фундамента
Свайно-ростверковый
Толщина внешних стен
510 мм
Толщина внутренних перегородок
120 мм
Улучшенные шумовые характеристики
Да
Вентиляция
Рекуперация
Веранда
Нет
Водоотведение
2 варианта
Водоснабжение
Центральное
Высота дома
6.28 м
Высота потолков
3.1 м

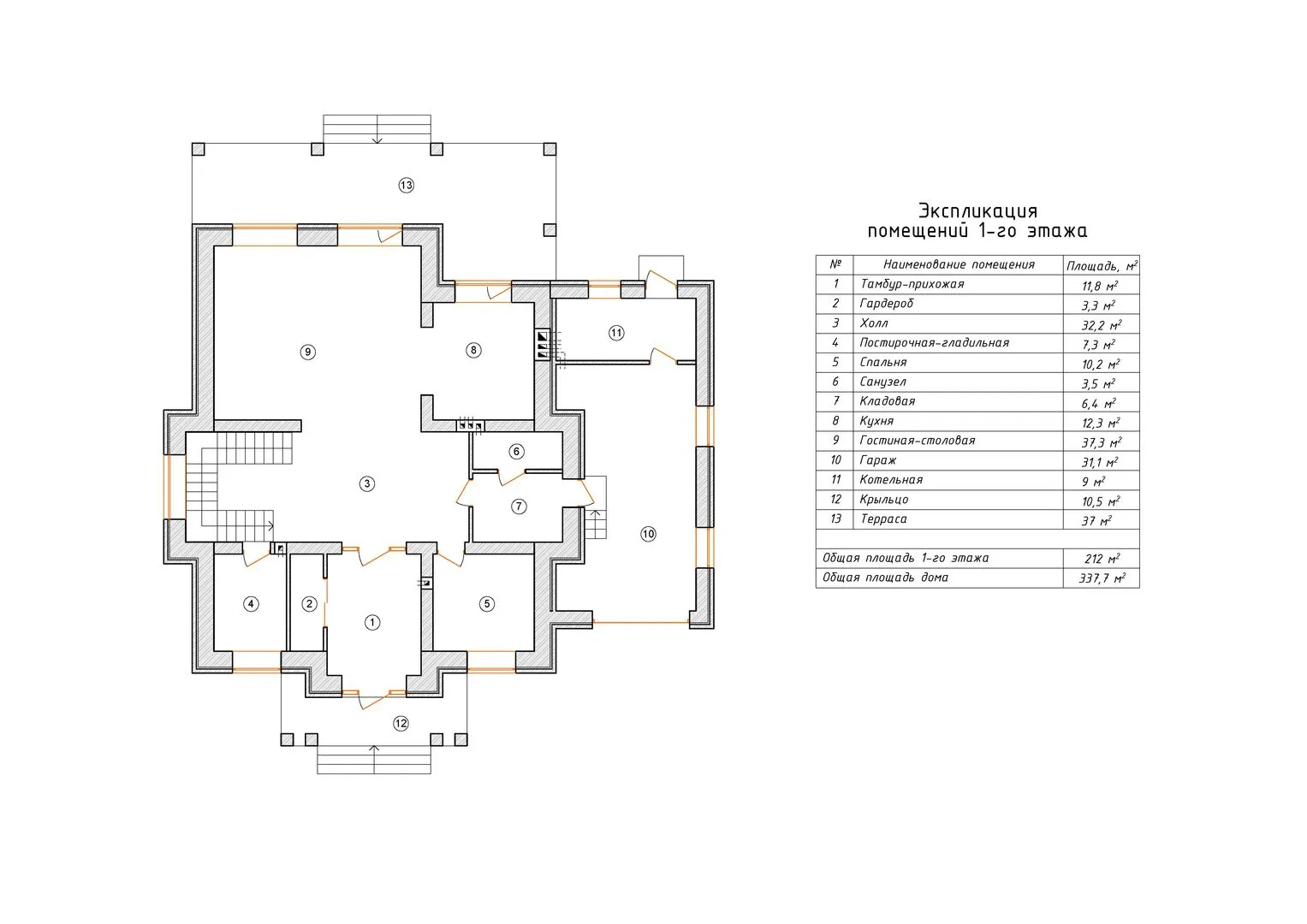
Планировка

Фасад дома

Александр

Закажите выезд инженера

Александр

Выездной инженер
Закажите выезд инженера для точной диагностики и профессиональной консультации по инженерным системам. Специалист приедет в удобное время, проведёт осмотр, рассчитает стоимость работ и подберёт оптимальные решения для вашего дома.


    Похожие проекты

    Ипотека и
    рассрочка
    Проект одноэтажного дома Луч
    Стоимость от:
    12 316 480
    Проект от: 73 800
    Этажей 1
    Санузлы 2
    Спальни 3
    Смотреть
    Ипотека и
    рассрочка
    Дом с оцилиндрованного бревна
    Стоимость от:
    3 666 300
    Проект от: 27 000
    Этажей 1
    Санузлы 1
    Спальни 2
    Смотреть
    Ипотека и
    рассрочка
    Одноэтажный дом А012
    Стоимость от:
    6 089 820
    Проект от: 36 450
    Этажей 1
    Санузлы 1
    Спальни 3
    Смотреть
    Ипотека и
    рассрочка
    Беседина
    Стоимость от:
    4 889 500
    Проект от: 29 250
    Этажей 1
    Санузлы 1
    Спальни 3
    Смотреть
    Ипотека и
    рассрочка
    Одноэтажный дом FK-98 Пятидворье
    Стоимость от:
    7 365 160
    Проект от: 44 100
    Этажей 1
    Санузлы 2
    Спальни 3
    Смотреть
    Ипотека и
    рассрочка
    Загородный дом «Жемчужина»
    Стоимость от:
    5 939 780
    Проект от: 35 550
    Этажей 1
    Санузлы 1
    Спальни 3
    Смотреть

    Как узнать стоимость дома

    back
    Оставляете заявку
    Вы заполняете форму на сайте или звоните нам. Менеджер Лайвкрафт связывается с вами для уточнения деталей: тип дома, площадь, материалы, участок строительства.
    back
    Консультация и подбор решения
    Наш специалист помогает выбрать оптимальный тип дома и конструкцию с учётом бюджета, сроков и целей — будь то дом для постоянного проживания или дача.
    back
    Расчёт предварительной стоимости
    Инженер делает первичный расчёт стоимости строительства по вашим параметрам: фундамент, коробка, кровля, отделка. Вы получаете смету с разбивкой по этапам.
    back
    Корректировка и утверждение сметы
    При необходимости вносим изменения — например, замену материалов или сокращение этапов. После согласования формируется окончательная фиксированная смета.
    back
    Заключение договора и старт работ
    После утверждения сметы заключаем официальный договор с гарантией. Вы получаете прозрачный график и точную стоимость — без скрытых расходов.

    Заказать конусльтацию по:А7-21

    Фото 1 А7-21


      Наши
      контакты

      Дмитров
      Опорный проезд 28Б
      (индустриальный парк Ниагара)
      9:00 до 18:00

      Корзина