4.9
Рейтинг на основании 120 отзывов
Дмитров
Опорный проезд 28Б
(индустриальный парк Ниагара)
Бренд "Дмитров-Дело" c 2008 года на рынке строительства в Дмитрове
Звоните 9:00 до 18:00 8 (915) 055-33-61
Бренд "Дмитров-Дело" c 2008 года на рынке строительства в Дмитрове

«Ахмадуллина»

Стоимость проекта от:
26 550 ₽
БЕСПЛАТНО! ПРИ ЗАКАЗЕ СТРОИТЕЛЬСТВА
Стоимость строительства от:
3 534 360 ₽
Артикул ART-16563
Дата 26.12.2025
Архитектурный стиль Классический
Количество надземных этажей 2
Круглогодичное проживание Да
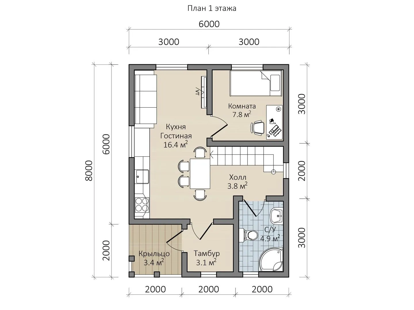
Площадь дома 59 м2
Санузлы 1
Спальни 3

Описание

Представляем вашему вниманию элегантный двухэтажный дом «Ахмадуллина» – воплощение гармонии и уюта в классическом стиле. Его деревянный каркас, обрамлённый традиционной гофровой отделкой, придаёт фасаду нежную теплоту, а двускатная крыша создает атмосферу уюта даже в самые прохладные дни. Благодаря продуманному внутреннему планированию, дом подходит для круглогодичного проживания, позволяя комфорту соседствовать со стихией. Внутреннее пространство «Ахмадуллины» открывает широкие залы, обставленные в мягких, естественных тонах. Отсутствие внешних балконов и веранд подчеркивает акцент на внутреннем уединении, где каждая деталь — от высоких потолков до панельных обрамлений — создают атмосферу истинного уюта и спокойствия. Дом идеально подходит как для семейного уединения, так и для проведения уютных вечеров с близкими. Простая, но продуманная конструкция с непритязательным внешним обликом дарит вам ощущение надёжности и тепла, сохраняя при этом современный комфорт. Оставьте заботы о доме «Ахмадуллина», и вы получите настоящий уголок счастья, где каждый день наполнен спокойствием и гармонией с природой.

Характеристики дома

Архитектурный стиль
Автоматизированное регулирование параметров теплоносителя
Нет
Балконы/лоджии
Отсутствуют
Чердачное помещение
Нет
Датчики протечки воды
Нет
Эксплуатируемая или зеленая кровля
Нет
Электроснабжение
Индивидуальное
Газоснабжение
Индивидуальное
Изоляция воздушного шума
Нет
Камин
Нет
Класс энергоэффективности
-
Класс энергосбережения
-
Количество надземных этажей
2
Круглогодичное проживание
Да
Материал кровли
Металлочерепица
Материал перекрытий
Деревянные
Материал внешних стен
Материал внутренних перегородок
Деревянные
Модульное строительство с конструкциями заводского изготовления
Нет
Объем надземной части
-
Основной материал фасадов
Дерево
Отопление
Индивидуальное
Площадь дома
59 м2
Площадь застройки
48 м2
Подвальное помещение
Нет
Показатель компактности здания
-
Приборы учета тепловой энергии
Нет
Пристроенный гараж/крытая автостоянка
Нет
Противопожарная система
Нет
Санузлы
1
Совмещенная кухня-гостиная
Да
Спальни
3
Терраса
Нет
Тип фундамента
Свайно-винтовой
Тип кровли
Толщина внешних стен
241 мм
Толщина внутренних перегородок
165 мм
Улучшенные шумовые характеристики
Да
Вентиляция
Естественная
Веранда
Нет
Водоотведение
Локальные очистные сооружения
Водоснабжение
Индивидуальное
Высота дома
6.4 м
Высота потолков
2.5 м

Планировка

Фасад дома

Александр

Закажите выезд инженера

Александр

Выездной инженер
Закажите выезд инженера для точной диагностики и профессиональной консультации по инженерным системам. Специалист приедет в удобное время, проведёт осмотр, рассчитает стоимость работ и подберёт оптимальные решения для вашего дома.


    Похожие проекты

    Ипотека и
    рассрочка
    Комфорт+
    Стоимость от:
    10 140 900
    Проект от: 60 750
    Этажей 1
    Санузлы 1
    Спальни 3
    Смотреть
    Ипотека и
    рассрочка
    Двухэтажный дом Сойка
    Стоимость от:
    8 043 840
    Проект от: 56 700
    Этажей 2
    Санузлы 2
    Спальни 5
    Смотреть
    Ипотека и
    рассрочка
    «Grey Dream»
    Стоимость от:
    5 394 950
    Проект от: 38 250
    Этажей 1
    Санузлы 2
    Спальни 2
    Смотреть
    Ипотека и
    рассрочка
    Двухэтажный загородный дом SS-129
    Стоимость от:
    8 038 800
    Проект от: 51 750
    Этажей 2
    Санузлы 2
    Спальни 4
    Смотреть
    Ипотека и
    рассрочка
    Загородный дом ИСЛАНДИЯ 90
    Стоимость от:
    9 236 700
    Проект от: 60 750
    Этажей 1
    Санузлы 2
    Спальни 2
    Смотреть
    Ипотека и
    рассрочка
    Одноэтажный дом с выступом УД8
    Стоимость от:
    6 371 200
    Проект от: 36 000
    Этажей 1
    Санузлы 1
    Спальни 2
    Смотреть

    Как узнать стоимость дома

    back
    Оставляете заявку
    Вы заполняете форму на сайте или звоните нам. Менеджер Лайвкрафт связывается с вами для уточнения деталей: тип дома, площадь, материалы, участок строительства.
    back
    Консультация и подбор решения
    Наш специалист помогает выбрать оптимальный тип дома и конструкцию с учётом бюджета, сроков и целей — будь то дом для постоянного проживания или дача.
    back
    Расчёт предварительной стоимости
    Инженер делает первичный расчёт стоимости строительства по вашим параметрам: фундамент, коробка, кровля, отделка. Вы получаете смету с разбивкой по этапам.
    back
    Корректировка и утверждение сметы
    При необходимости вносим изменения — например, замену материалов или сокращение этапов. После согласования формируется окончательная фиксированная смета.
    back
    Заключение договора и старт работ
    После утверждения сметы заключаем официальный договор с гарантией. Вы получаете прозрачный график и точную стоимость — без скрытых расходов.

    Заказать конусльтацию по:«Ахмадуллина»

    Фото 1 «Ахмадуллина»


      Наши
      контакты

      Дмитров
      Опорный проезд 28Б
      (индустриальный парк Ниагара)
      9:00 до 18:00

      Корзина