4.9
Рейтинг на основании 120 отзывов
Дмитров
Опорный проезд 28Б
(индустриальный парк Ниагара)
Бренд "Дмитров-Дело" c 2008 года на рынке строительства в Дмитрове
Звоните 9:00 до 18:00 8 (915) 055-33-61
Бренд "Дмитров-Дело" c 2008 года на рынке строительства в Дмитрове

Акватория

Стоимость проекта от:
31 500 ₽
БЕСПЛАТНО! ПРИ ЗАКАЗЕ СТРОИТЕЛЬСТВА
Стоимость строительства от:
4 789 400 ₽
Артикул ART-12478
Дата 25.12.2025
Архитектурный стиль Скандинавский
Количество надземных этажей 1
Круглогодичное проживание Да
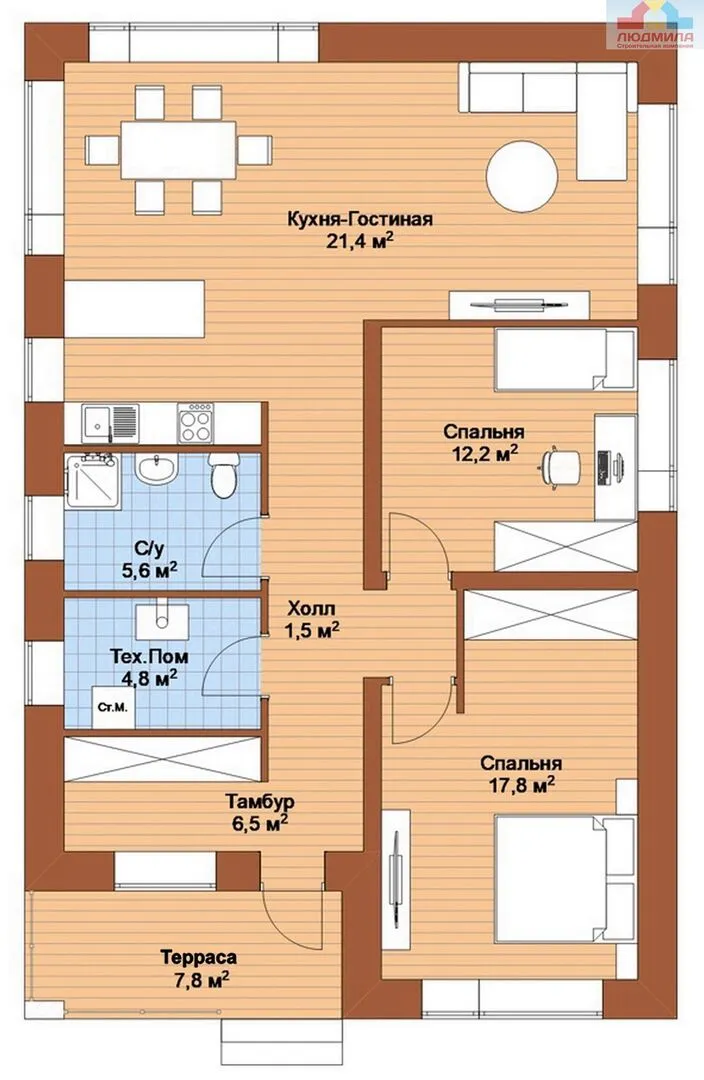
Площадь дома 70 м2
Санузлы 1
Спальни 2

Описание

Добро пожаловать во “Акваторию” – ваш новый дом, где крошечный надземный этаж раскрывает простоту и открывает пространство для жизни без суеты. Архитектурный стиль скандинавского минимализма придает интерьеру лёгкость и свет, а ровные линии и нежно-голубые акценты создают атмосферу гармоничности. Здесь, в любое время года, тепло и уют гарантированы: утепленный газобетонный фундамент, надёжная четырехскатная (вальмовая) крыша и утепленные стеклопакеты обеспечивают комфорт независимо от погоды. Дом пропитан светом и воздухом: просторный открытый двор с террасой приглашает к жарким летним вечерам и романтическим обедам на свежем воздухе, а чердачное помещение превращается в уединённый уголок для творчества, хранения или дополнительной спальни. Отсутствие балконов и веранд не мешает вам наслаждаться внешним пространством – всё, что нужно, находится в одном уровне. Пристроенный гараж и крытая автостоянка отсутствуют, но они подчеркивают открытость дизайна и дают место для зелёных растений или небольшого садика. “Акватория” – это идеальное сочетание современного комфорта и простора, которое легко адаптируется под ваш образ жизни. Прекрасное место для семьи, где каждая часть дома рассказывает историю о простоте, естественности и теплом доме. Пусть ваш новый дом станет началом новых счастливых лет!

Характеристики дома

Архитектурный стиль
Автоматизированное регулирование параметров теплоносителя
Да
Балконы/лоджии
Отсутствуют
Чердачное помещение
Да
Датчики протечки воды
Нет
Эксплуатируемая или зеленая кровля
Нет
Электроснабжение
Центральное
Газоснабжение
Центральное
Изоляция воздушного шума
Нет
Камин
Нет
Класс энергоэффективности
-
Класс энергосбережения
-
Количество надземных этажей
1
Круглогодичное проживание
Да
Материал кровли
Фальцевая кровля из алюминиевых листов
Материал перекрытий
Деревянные
Материал внешних стен
Материал внутренних перегородок
Блочные
Модульное строительство с конструкциями заводского изготовления
Нет
Объем надземной части
527 м3
Основной материал фасадов
Штукатурка
Отопление
Индивидуальное
Площадь дома
70 м2
Площадь застройки
156 м2
Подвальное помещение
Да
Показатель компактности здания
-
Приборы учета тепловой энергии
Нет
Пристроенный гараж/крытая автостоянка
Нет
Противопожарная система
Нет
Санузлы
1
Совмещенная кухня-гостиная
Да
Спальни
2
Терраса
Да
Тип фундамента
Плитный
Толщина внешних стен
390 мм
Толщина внутренних перегородок
100 мм
Улучшенные шумовые характеристики
Да
Вентиляция
Рекуперация
Веранда
Нет
Водоотведение
Центральное
Водоснабжение
Центральное
Высота дома
5.25 м
Высота потолков
3 м

Планировка

Фасад дома

Александр

Закажите выезд инженера

Александр

Выездной инженер
Закажите выезд инженера для точной диагностики и профессиональной консультации по инженерным системам. Специалист приедет в удобное время, проведёт осмотр, рассчитает стоимость работ и подберёт оптимальные решения для вашего дома.


    Похожие проекты

    Ипотека и
    рассрочка
    Таврия
    Стоимость от:
    17 141 520
    Проект от: 104 850
    Этажей 2
    Санузлы 2
    Спальни 3
    Смотреть
    Ипотека и
    рассрочка
    Быстровозводимый капитальный одноэтажный дом из арболита
    Стоимость от:
    6 275 720
    Проект от: 38 700
    Этажей 1
    Санузлы 2
    Спальни 2
    Смотреть
    Ипотека и
    рассрочка
    Каркасный дом по проекту Барн «Оптима»
    Стоимость от:
    5 817 360
    Проект от: 44 550
    Этажей 2
    Санузлы 2
    Спальни 3
    Смотреть
    Ипотека и
    рассрочка
    Одноэтажный дом F-14093
    Стоимость от:
    4 941 640
    Проект от: 27 900
    Этажей 1
    Санузлы 1
    Спальни 2
    Смотреть
    Ипотека и
    рассрочка
    Одноэтажный дом Е-88
    Стоимость от:
    6 639 820
    Проект от: 40 950
    Этажей 1
    Санузлы 1
    Спальни 2
    Смотреть
    Ипотека и
    рассрочка
    Скандинавский кирпич
    Стоимость от:
    10 262 780
    Проект от: 58 050
    Этажей 1
    Санузлы 2
    Спальни 3
    Смотреть

    Как узнать стоимость дома

    back
    Оставляете заявку
    Вы заполняете форму на сайте или звоните нам. Менеджер Лайвкрафт связывается с вами для уточнения деталей: тип дома, площадь, материалы, участок строительства.
    back
    Консультация и подбор решения
    Наш специалист помогает выбрать оптимальный тип дома и конструкцию с учётом бюджета, сроков и целей — будь то дом для постоянного проживания или дача.
    back
    Расчёт предварительной стоимости
    Инженер делает первичный расчёт стоимости строительства по вашим параметрам: фундамент, коробка, кровля, отделка. Вы получаете смету с разбивкой по этапам.
    back
    Корректировка и утверждение сметы
    При необходимости вносим изменения — например, замену материалов или сокращение этапов. После согласования формируется окончательная фиксированная смета.
    back
    Заключение договора и старт работ
    После утверждения сметы заключаем официальный договор с гарантией. Вы получаете прозрачный график и точную стоимость — без скрытых расходов.

    Заказать конусльтацию по:Акватория

    Фото 1 Акватория


      Наши
      контакты

      Дмитров
      Опорный проезд 28Б
      (индустриальный парк Ниагара)
      9:00 до 18:00

      Корзина