4.9
Рейтинг на основании 120 отзывов
Дмитров
Опорный проезд 28Б
(индустриальный парк Ниагара)
Бренд "Дмитров-Дело" c 2008 года на рынке строительства в Дмитрове
Звоните 9:00 до 18:00 8 (915) 055-33-61
Бренд "Дмитров-Дело" c 2008 года на рынке строительства в Дмитрове

Алабама

Стоимость проекта от:
75 600 ₽
БЕСПЛАТНО! ПРИ ЗАКАЗЕ СТРОИТЕЛЬСТВА
Стоимость строительства от:
11 733 120 ₽
Артикул ART-17239
Дата 26.12.2025
Архитектурный стиль Американский/Канадский
Количество надземных этажей 2
Круглогодичное проживание Да
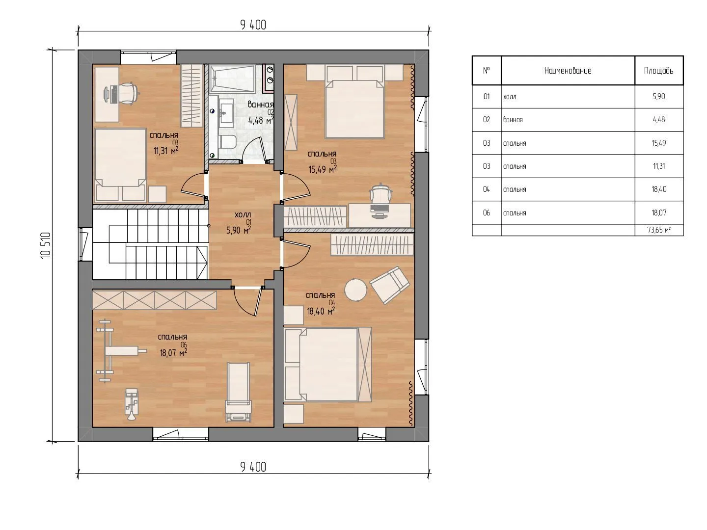
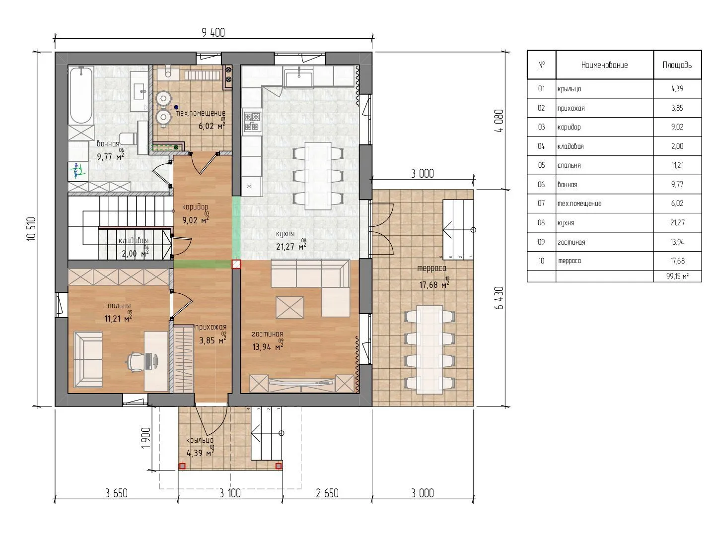
Площадь дома 168 м2
Санузлы 2
Спальни 5

Описание

Представляем вам уютный двухэтажный дом в стиле Американской/Канадской архитектуры, созданный для комфорта и уюта на протяжении всего года. Просторное планировочное решение сочетает открытые зоны гостиной и кухни с удобными спальнями, а керамические блоки наружных стен гарантируют отличную теплоизоляцию и прочность, сохраняя тёплый климат в любое время. На каждом из этажей – собственный набор удобств, а от пола до потолка открывается ощущение простора и свободы. Особое внимание уделено практичной и эстетичной крышей четырёхскатной (вальмовой), которая не только придаёт дому характерный «хижинный» облик, но и обеспечивает надёжную защиту от непогоды. Чёрдачное помещение открывает перспективы для удобного хранения вещей или даже небольшого контура для будущего креативного ремонта. Внешняя терраса приглашает наслаждаться восходами и закатами, отдыхая на свежем воздухе, где нет ни балконов, ни веранд – здесь вы сами создадите идеальное место для личных удовольствий и семейных встреч. Идеально подходит для тех, кто ценит прочность, функциональность и гармонию в интерьере, но при этом ищет возможность живого взаимодействия с природой. Этот дом – ваш новый оазис уюта, где каждый элемент продуман до мелочей, а атмосфера благополучия и спокойствия всегда рядом. Приглашаем вас открыть для себя уникальное сочетание традиций и современных удобств, которые сделают вашу жизнь здесь по-настоящему особенной.

Характеристики дома

Архитектурный стиль
Автоматизированное регулирование параметров теплоносителя
Да
Балконы/лоджии
Отсутствуют
Чердачное помещение
Да
Датчики протечки воды
Нет
Эксплуатируемая или зеленая кровля
Нет
Электроснабжение
Центральное
Газоснабжение
Центральное
Изоляция воздушного шума
Нет
Камин
Нет
Класс энергоэффективности
-
Класс энергосбережения
-
Количество надземных этажей
2
Круглогодичное проживание
Да
Материал кровли
Металлочерепица
Материал перекрытий
Сборные железобетонные предварительно напряженные пустотные плиты
Материал внешних стен
Материал внутренних перегородок
Кирпичные
Модульное строительство с конструкциями заводского изготовления
Нет
Объем надземной части
505 м3
Основной материал фасадов
Штукатурка
Отопление
Индивидуальное
Площадь дома
168 м2
Площадь застройки
120 м2
Подвальное помещение
Нет
Показатель компактности здания
-
Приборы учета тепловой энергии
Да
Пристроенный гараж/крытая автостоянка
Нет
Противопожарная система
Нет
Санузлы
2
Совмещенная кухня-гостиная
Да
Спальни
5
Терраса
Да
Тип фундамента
Плитный
Толщина внешних стен
380 мм
Толщина внутренних перегородок
250 мм
Улучшенные шумовые характеристики
Да
Вентиляция
Принудительная
Веранда
Нет
Водоотведение
Локальные очистные сооружения
Водоснабжение
Индивидуальное
Высота дома
9.7 м
Высота потолков
3 м

Планировка

Фасад дома

Александр

Закажите выезд инженера

Александр

Выездной инженер
Закажите выезд инженера для точной диагностики и профессиональной консультации по инженерным системам. Специалист приедет в удобное время, проведёт осмотр, рассчитает стоимость работ и подберёт оптимальные решения для вашего дома.


    Похожие проекты

    Ипотека и
    рассрочка
    Ай-Петри
    Стоимость от:
    7 140 100
    Проект от: 42 750
    Этажей 1
    Санузлы 2
    Спальни 3
    Смотреть
    Ипотека и
    рассрочка
    Двухэтажный дом 121м2 HALLAND
    Стоимость от:
    8 916 240
    Проект от: 54 450
    Этажей 2
    Санузлы 3
    Спальни 3
    Смотреть
    Ипотека и
    рассрочка
    Проект загородного дома NHD-104
    Стоимость от:
    7 065 080
    Проект от: 42 300
    Этажей 1
    Санузлы 1
    Спальни 3
    Смотреть
    Ипотека и
    рассрочка
    ИНДИВИДУАЛЬНЫЙ ЖИЛОЙ ДОМ“MIKEA5 FRONT”
    Стоимость от:
    12 862 960
    Проект от: 84 600
    Этажей 1
    Санузлы 2
    Спальни 4
    Смотреть
    Ипотека и
    рассрочка
    Проект дома 001-13
    Стоимость от:
    16 575 120
    Проект от: 104 850
    Этажей 2
    Санузлы 3
    Спальни 5
    Смотреть
    Ипотека и
    рассрочка
    Одноэтажный дом из газобетона «БС-120»
    Стоимость от:
    4 532 880
    Проект от: 28 800
    Этажей 1
    Санузлы 1
    Спальни 2
    Смотреть

    Как узнать стоимость дома

    back
    Оставляете заявку
    Вы заполняете форму на сайте или звоните нам. Менеджер Лайвкрафт связывается с вами для уточнения деталей: тип дома, площадь, материалы, участок строительства.
    back
    Консультация и подбор решения
    Наш специалист помогает выбрать оптимальный тип дома и конструкцию с учётом бюджета, сроков и целей — будь то дом для постоянного проживания или дача.
    back
    Расчёт предварительной стоимости
    Инженер делает первичный расчёт стоимости строительства по вашим параметрам: фундамент, коробка, кровля, отделка. Вы получаете смету с разбивкой по этапам.
    back
    Корректировка и утверждение сметы
    При необходимости вносим изменения — например, замену материалов или сокращение этапов. После согласования формируется окончательная фиксированная смета.
    back
    Заключение договора и старт работ
    После утверждения сметы заключаем официальный договор с гарантией. Вы получаете прозрачный график и точную стоимость — без скрытых расходов.

    Заказать конусльтацию по:Алабама

    Фото 1 Алабама


      Наши
      контакты

      Дмитров
      Опорный проезд 28Б
      (индустриальный парк Ниагара)
      9:00 до 18:00

      Корзина