4.9
Рейтинг на основании 120 отзывов
Дмитров
Опорный проезд 28Б
(индустриальный парк Ниагара)
Бренд "Дмитров-Дело" c 2008 года на рынке строительства в Дмитрове
Звоните 9:00 до 18:00 8 (915) 055-33-61
Бренд "Дмитров-Дело" c 2008 года на рынке строительства в Дмитрове

ALM-104

Стоимость проекта от:
44 550 ₽
БЕСПЛАТНО! ПРИ ЗАКАЗЕ СТРОИТЕЛЬСТВА
Стоимость строительства от:
7 880 180 ₽
Артикул ART-5702
Дата 26.12.2025
Архитектурный стиль Классический
Количество надземных этажей 1
Круглогодичное проживание Да
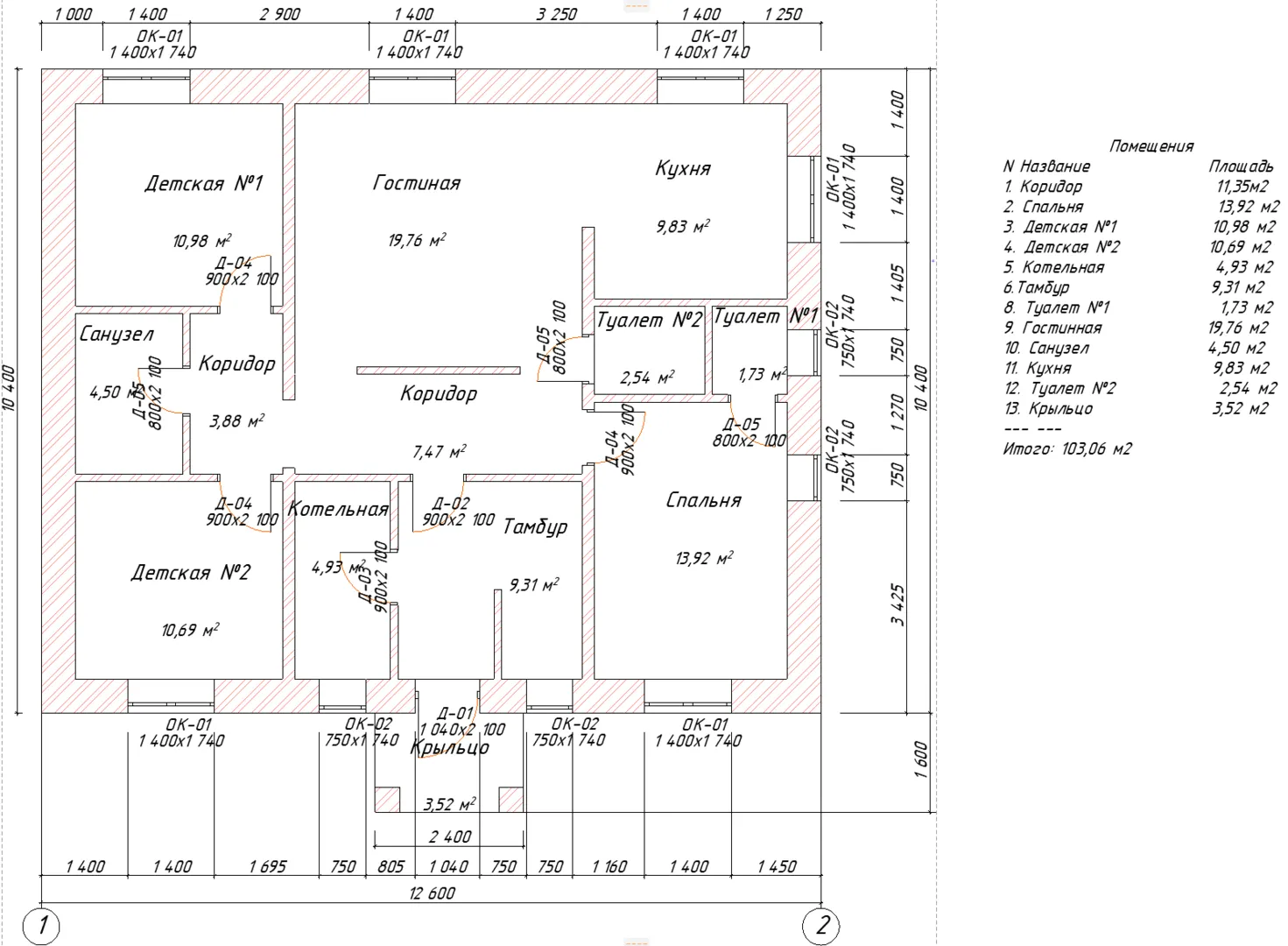
Площадь дома 99 м2
Санузлы 3
Спальни 3

Описание

Представляем вашему вниманию уникальное жилище – дом модели ALM‑104. Эта элегантная одноэтажная постройка в классическом стиле сочетает в себе строгую гармонию линий и уютную атмосферу, создавая идеальное пространство для круглогодичного проживания. Внешние стены выполнены из высококлассных газобетонных блоков, которые обеспечивают теплоизоляцию и энергоэффективность, а массивная четырехскатная (валовая) крыша придаёт зданию особую «северную» изящество, защищая от непогоды и создавая неповторимый силуэт. Внутри вы найдёте продуманное планировочное решение, которое позволяет комфортно обустроить семейный уголок без лишних перегородок. Большие окна наполняют помещение естественным светом, а чистые, светлые цвета придают ощущение простора. Чёрдачное помещение, выходящее на крыше, открывает дополнительные возможности: это может стать уютным патио, студией для творчества, или просторным уголком для хранения. В доме отсутствуют балконы, лоджии и веранда, что позволяет сосредоточиться на максимальном использовании жилого пространства и создании гармоничной атмосферы. Дом ALM‑104 – это практичность, классика и комфорт, которые вы сможете оценить во всех его деталях. Лаконичность наружного вида сочетается с функциональностью интерьера, а материалы высокого качества гарантируют надёжность и долговечность. Если вы ищете спокойный уголок, где каждый день начинается с уюта и завершается ощущением домашнего тепла, то этот дом станет вашим идеальным выбором. Позвоните нам уже сегодня, чтобы узнать подробнее о возможных вариантах обустройства и сделать первый шаг к своей мечте.

Характеристики дома

Архитектурный стиль
Автоматизированное регулирование параметров теплоносителя
Нет
Балконы/лоджии
Отсутствуют
Чердачное помещение
Да
Датчики протечки воды
Нет
Эксплуатируемая или зеленая кровля
Нет
Электроснабжение
Не предусмотрено
Газоснабжение
Не предусмотрено
Изоляция воздушного шума
Нет
Камин
Нет
Класс энергоэффективности
-
Класс энергосбережения
-
Количество надземных этажей
1
Круглогодичное проживание
Да
Материал кровли
Металлочерепица
Материал перекрытий
Деревянные
Материал внешних стен
Материал внутренних перегородок
Кирпичные
Модульное строительство с конструкциями заводского изготовления
Нет
Объем надземной части
550 м3
Основной материал фасадов
Облицовочный кирпич
Отопление
Не предусмотрено
Площадь дома
99 м2
Площадь застройки
135 м2
Подвальное помещение
Нет
Показатель компактности здания
-
Приборы учета тепловой энергии
Нет
Пристроенный гараж/крытая автостоянка
Нет
Противопожарная система
Нет
Санузлы
3
Совмещенная кухня-гостиная
Да
Спальни
3
Терраса
Нет
Тип фундамента
Ленточный
Толщина внешних стен
550 мм
Толщина внутренних перегородок
120 мм
Улучшенные шумовые характеристики
Да
Вентиляция
Естественная
Веранда
Нет
Водоотведение
Локальные очистные сооружения
Водоснабжение
Индивидуальное
Высота дома
6 м
Высота потолков
3 м

Планировка

Фасад дома

Александр

Закажите выезд инженера

Александр

Выездной инженер
Закажите выезд инженера для точной диагностики и профессиональной консультации по инженерным системам. Специалист приедет в удобное время, проведёт осмотр, рассчитает стоимость работ и подберёт оптимальные решения для вашего дома.


    Похожие проекты

    Ипотека и
    рассрочка
    Дом Хайтэк 1 этаж 75
    Стоимость от:
    4 652 560
    Проект от: 30 600
    Этажей 1
    Санузлы 2
    Спальни 2
    Смотреть
    Ипотека и
    рассрочка
    НОРВИЧ
    Стоимость от:
    8 166 345
    Проект от: 58 050
    Этажей 1
    Санузлы 2
    Спальни 3
    Смотреть
    Ипотека и
    рассрочка
    Загородный жилой дом №3
    Стоимость от:
    8 940 580
    Проект от: 53 550
    Этажей 1
    Санузлы 3
    Спальни 2
    Смотреть
    Ипотека и
    рассрочка
    Классик
    Стоимость от:
    6 748 170
    Проект от: 54 450
    Этажей 1
    Санузлы 1
    Спальни 3
    Смотреть
    Ипотека и
    рассрочка
    ЧС-134
    Стоимость от:
    10 020 960
    Проект от: 60 300
    Этажей 2
    Санузлы 2
    Спальни 5
    Смотреть
    Ипотека и
    рассрочка
    Найт
    Стоимость от:
    8 355 600
    Проект от: 54 000
    Этажей 1
    Санузлы 2
    Спальни 3
    Смотреть

    Как узнать стоимость дома

    back
    Оставляете заявку
    Вы заполняете форму на сайте или звоните нам. Менеджер Лайвкрафт связывается с вами для уточнения деталей: тип дома, площадь, материалы, участок строительства.
    back
    Консультация и подбор решения
    Наш специалист помогает выбрать оптимальный тип дома и конструкцию с учётом бюджета, сроков и целей — будь то дом для постоянного проживания или дача.
    back
    Расчёт предварительной стоимости
    Инженер делает первичный расчёт стоимости строительства по вашим параметрам: фундамент, коробка, кровля, отделка. Вы получаете смету с разбивкой по этапам.
    back
    Корректировка и утверждение сметы
    При необходимости вносим изменения — например, замену материалов или сокращение этапов. После согласования формируется окончательная фиксированная смета.
    back
    Заключение договора и старт работ
    После утверждения сметы заключаем официальный договор с гарантией. Вы получаете прозрачный график и точную стоимость — без скрытых расходов.

    Заказать конусльтацию по:ALM-104

    Фото 1 ALM-104


      Наши
      контакты

      Дмитров
      Опорный проезд 28Б
      (индустриальный парк Ниагара)
      9:00 до 18:00

      Корзина