4.9
Рейтинг на основании 120 отзывов
Дмитров
Опорный проезд 28Б
(индустриальный парк Ниагара)
Бренд "Дмитров-Дело" c 2008 года на рынке строительства в Дмитрове
Звоните 9:00 до 18:00 8 (915) 055-33-61
Бренд "Дмитров-Дело" c 2008 года на рынке строительства в Дмитрове

Альматея

Стоимость проекта от:
22 050 ₽
БЕСПЛАТНО! ПРИ ЗАКАЗЕ СТРОИТЕЛЬСТВА
Стоимость строительства от:
3 460 380 ₽
Артикул ART-1444
Дата 25.12.2025
Архитектурный стиль Европейский
Количество надземных этажей 1
Круглогодичное проживание Да
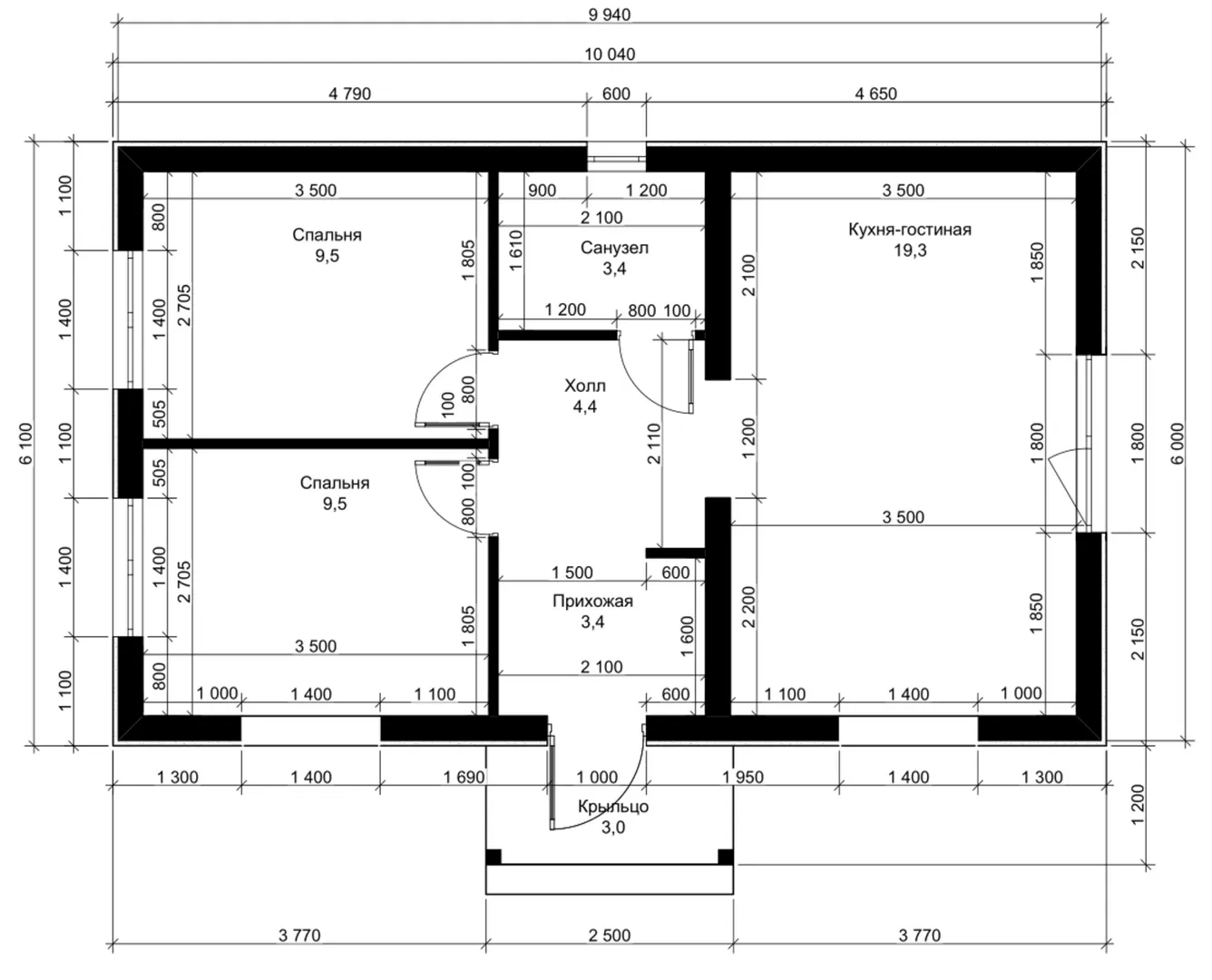
Площадь дома 49 м2
Санузлы 1
Спальни 2

Описание

Ваша мечта о уютном, но современном доме может стать реальностью в этом изысканном одноэтажном проекте. Зимний холод и летний жар перестают быть вопросом – в доме предусмотрено круглогодичное проживание, а европейский стиль и лаконичные линии создают атмосферу благородства и комфорта. Внутри просторные комнаты открываются через светлые окна, а тепло, проходящее сквозь толстые керамзитобетонные блоки, сохраняет уют даже в самые прохладные дни. Несмотря на отсутствует балконы, веранды и дополнительные помещения типа гаража или чердача, проект выделяется своей функциональностью и эстетику простых решений: двойноскатная крыша придаёт дому характер и защищает от непредсказуемых погодных условий. Это не просто дом – это ваш личный оазис, где каждая деталь продумана для беспрецедентного комфорта и стиля жизни. Выбирая этот проект, вы инвестируете в архитектуру, где качество, тепло и элегантность объединены в одной гармоничной форме.

Характеристики дома

Архитектурный стиль
Автоматизированное регулирование параметров теплоносителя
Да
Балконы/лоджии
Отсутствуют
Чердачное помещение
Нет
Датчики протечки воды
Нет
Эксплуатируемая или зеленая кровля
Нет
Электроснабжение
Центральное
Газоснабжение
Центральное
Изоляция воздушного шума
Да
Камин
Нет
Класс энергоэффективности
A
Класс энергосбережения
A
Количество надземных этажей
1
Круглогодичное проживание
Да
Материал кровли
Металлочерепица
Материал перекрытий
Деревянные
Материал внешних стен
Материал внутренних перегородок
Блочные
Модульное строительство с конструкциями заводского изготовления
Нет
Объем надземной части
200 м3
Основной материал фасадов
Штукатурка
Отопление
Индивидуальное
Площадь дома
49 м2
Площадь застройки
63 м2
Подвальное помещение
Нет
Показатель компактности здания
1.1
Приборы учета тепловой энергии
Да
Пристроенный гараж/крытая автостоянка
Нет
Противопожарная система
Нет
Санузлы
1
Совмещенная кухня-гостиная
Да
Спальни
2
Терраса
Нет
Тип фундамента
Плитный
Тип кровли
Толщина внешних стен
390 мм
Толщина внутренних перегородок
100 мм
Улучшенные шумовые характеристики
Да
Вентиляция
Естественная
Веранда
Нет
Водоотведение
Локальные очистные сооружения
Водоснабжение
Индивидуальное
Высота дома
4.52 м
Высота потолков
2.8 м

Планировка

Фасад дома

Александр

Закажите выезд инженера

Александр

Выездной инженер
Закажите выезд инженера для точной диагностики и профессиональной консультации по инженерным системам. Специалист приедет в удобное время, проведёт осмотр, рассчитает стоимость работ и подберёт оптимальные решения для вашего дома.


    Похожие проекты

    Ипотека и
    рассрочка
    Прайм
    Стоимость от:
    8 533 140
    Проект от: 52 650
    Этажей 1
    Санузлы 2
    Спальни 3
    Смотреть
    Ипотека и
    рассрочка
    Одноэтажный дом Сканди Валдай 130 ВМ
    Стоимость от:
    8 521 590
    Проект от: 66 150
    Этажей 1
    Санузлы 2
    Спальни 2
    Смотреть
    Ипотека и
    рассрочка
    Одноэтажный дом FIXPLANS — 0656
    Стоимость от:
    8 474 400
    Проект от: 54 000
    Этажей 1
    Санузлы 4
    Спальни 3
    Смотреть
    Ипотека и
    рассрочка
    Гармония 150
    Стоимость от:
    10 194 580
    Проект от: 67 050
    Этажей 1
    Санузлы 2
    Спальни 3
    Смотреть
    Ипотека и
    рассрочка
    FK-70
    Стоимость от:
    5 189 580
    Проект от: 31 050
    Этажей 1
    Санузлы 1
    Спальни 2
    Смотреть
    Ипотека и
    рассрочка
    Одноэтажный каркасный дом ДК-68
    Стоимость от:
    5 795 680
    Проект от: 40 050
    Этажей 1
    Санузлы 1
    Спальни 3
    Смотреть

    Как узнать стоимость дома

    back
    Оставляете заявку
    Вы заполняете форму на сайте или звоните нам. Менеджер Лайвкрафт связывается с вами для уточнения деталей: тип дома, площадь, материалы, участок строительства.
    back
    Консультация и подбор решения
    Наш специалист помогает выбрать оптимальный тип дома и конструкцию с учётом бюджета, сроков и целей — будь то дом для постоянного проживания или дача.
    back
    Расчёт предварительной стоимости
    Инженер делает первичный расчёт стоимости строительства по вашим параметрам: фундамент, коробка, кровля, отделка. Вы получаете смету с разбивкой по этапам.
    back
    Корректировка и утверждение сметы
    При необходимости вносим изменения — например, замену материалов или сокращение этапов. После согласования формируется окончательная фиксированная смета.
    back
    Заключение договора и старт работ
    После утверждения сметы заключаем официальный договор с гарантией. Вы получаете прозрачный график и точную стоимость — без скрытых расходов.

    Заказать конусльтацию по:Альматея

    Фото 1 Альматея


      Наши
      контакты

      Дмитров
      Опорный проезд 28Б
      (индустриальный парк Ниагара)
      9:00 до 18:00

      Корзина