4.9
Рейтинг на основании 120 отзывов
Дмитров
Опорный проезд 28Б
(индустриальный парк Ниагара)
Бренд "Дмитров-Дело" c 2008 года на рынке строительства в Дмитрове
Звоните 9:00 до 18:00 8 (915) 055-33-61
Бренд "Дмитров-Дело" c 2008 года на рынке строительства в Дмитрове

АР-20-05 Проект двухэтажного кирпичного дома с гаражом

Стоимость проекта от:
82 350 ₽
БЕСПЛАТНО! ПРИ ЗАКАЗЕ СТРОИТЕЛЬСТВА
Стоимость строительства от:
13 469 520 ₽
Артикул ART-12753
Дата 25.12.2025
Архитектурный стиль Русский
Количество надземных этажей 2
Круглогодичное проживание Да
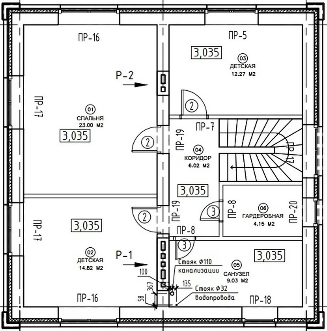
Площадь дома 183 м2
Санузлы 2
Спальни 4

Описание

Незаконченный образ традиционного русского стиля оживает в каждом элементе проекта **АР‑20‑05** — двухэтажного кирпичного дома с прицепным гаражом. Его крепкие кирпичные стены не только гарантируют тепло и защищенность, но и дарят ощущение спокойствия и уюта, присущих классическому русскому дому. Двухэтажная планировка оптимально распределяет пространство: в первом этаже находятся зоны гостеприимства – просторная гостиная, обеденная комната и уютная кухня, а во втором — приватные спальни и комфортный санузел. Подчеркнутый четырёхскатный (валмовой) крыша придаёт дому величественность и гармонию, а благодаря круглогодичному проживанию вы сможете наслаждаться комфортом в любое время года. Особенностью проекта является полностью вложенное пространство: пристроенный гараж обеспечивает непрерывную связь между жилой зоной и транспортом, исключая необходимость в открытых улицах для парковки. Отсутствие балконов, лоджий, веранд и террас не только упрощает уход за доме, но и подчёркивает лаконичность и чистоту линий, характерную для русского architectural revival. Тем самым вы получаете простой, но в то же время изысканный и функциональный дом, где каждая деталь продумана до мелочей. Всё, что нужно — это ваше видение и наши материалы. Мы поможем воплотить ваш идеальный семейный дом, сделав его теплом, надежностью и культурной ценностью. Окунитесь в атмосферу русского дома, где каждый кирпич хранит историю, а простор и свет делают каждый день особенным.

Характеристики дома

Архитектурный стиль
Автоматизированное регулирование параметров теплоносителя
Да
Балконы/лоджии
Отсутствуют
Чердачное помещение
Нет
Датчики протечки воды
Нет
Эксплуатируемая или зеленая кровля
Нет
Электроснабжение
2 варианта
Газоснабжение
Центральное
Изоляция воздушного шума
Да
Камин
Нет
Класс энергоэффективности
A+
Класс энергосбережения
A+
Количество надземных этажей
2
Круглогодичное проживание
Да
Материал кровли
Металлические листовые гофрированные профили
Материал перекрытий
Монолитные железобетонные
Материал внешних стен
Материал внутренних перегородок
Кирпичные
Модульное строительство с конструкциями заводского изготовления
Нет
Объем надземной части
801 м3
Основной материал фасадов
Облицовочный кирпич
Отопление
Индивидуальное
Площадь дома
183 м2
Площадь застройки
296 м2
Подвальное помещение
Нет
Показатель компактности здания
0.9
Приборы учета тепловой энергии
Да
Пристроенный гараж/крытая автостоянка
Да
Противопожарная система
Нет
Санузлы
2
Совмещенная кухня-гостиная
Да
Спальни
4
Терраса
Нет
Тип фундамента
Ленточный
Толщина внешних стен
630 мм
Толщина внутренних перегородок
120 мм
Улучшенные шумовые характеристики
Да
Вентиляция
3 варианта
Веранда
Нет
Водоотведение
2 варианта
Водоснабжение
2 варианта
Высота дома
10 м
Высота потолков
3 м

Планировка

Фасад дома

Александр

Закажите выезд инженера

Александр

Выездной инженер
Закажите выезд инженера для точной диагностики и профессиональной консультации по инженерным системам. Специалист приедет в удобное время, проведёт осмотр, рассчитает стоимость работ и подберёт оптимальные решения для вашего дома.


    Похожие проекты

    Ипотека и
    рассрочка
    Проект 01-24
    Стоимость от:
    11 256 960
    Проект от: 73 800
    Этажей 2
    Санузлы 2
    Спальни 3
    Смотреть
    Ипотека и
    рассрочка
    Загородный дом 91 м2
    Стоимость от:
    5 941 440
    Проект от: 40 950
    Этажей 2
    Санузлы 1
    Спальни 3
    Смотреть
    Ипотека и
    рассрочка
    Линейка «Современная Европа» . Проект «Добрый Дом».
    Стоимость от:
    7 215 120
    Проект от: 43 200
    Этажей 1
    Санузлы 2
    Спальни 2
    Смотреть
    Ипотека и
    рассрочка
    Дом Фахверк два этажа — MAXI UP
    Стоимость от:
    14 506 800
    Проект от: 99 000
    Этажей 2
    Санузлы 4
    Спальни 4
    Смотреть
    Ипотека и
    рассрочка
    Загородный дом «БарнХаус 8,5х17,0»
    Стоимость от:
    7 250 100
    Проект от: 58 500
    Этажей 1
    Санузлы 2
    Спальни 3
    Смотреть
    Ипотека и
    рассрочка
    БД 1454
    Стоимость от:
    4 802 160
    Проект от: 30 600
    Этажей 1
    Санузлы 1
    Спальни 2
    Смотреть

    Как узнать стоимость дома

    back
    Оставляете заявку
    Вы заполняете форму на сайте или звоните нам. Менеджер Лайвкрафт связывается с вами для уточнения деталей: тип дома, площадь, материалы, участок строительства.
    back
    Консультация и подбор решения
    Наш специалист помогает выбрать оптимальный тип дома и конструкцию с учётом бюджета, сроков и целей — будь то дом для постоянного проживания или дача.
    back
    Расчёт предварительной стоимости
    Инженер делает первичный расчёт стоимости строительства по вашим параметрам: фундамент, коробка, кровля, отделка. Вы получаете смету с разбивкой по этапам.
    back
    Корректировка и утверждение сметы
    При необходимости вносим изменения — например, замену материалов или сокращение этапов. После согласования формируется окончательная фиксированная смета.
    back
    Заключение договора и старт работ
    После утверждения сметы заключаем официальный договор с гарантией. Вы получаете прозрачный график и точную стоимость — без скрытых расходов.

    Заказать конусльтацию по:АР-20-05 Проект двухэтажного кирпичного дома с гаражом

    Фото 1 АР-20-05 Проект двухэтажного кирпичного дома с гаражом


      Наши
      контакты

      Дмитров
      Опорный проезд 28Б
      (индустриальный парк Ниагара)
      9:00 до 18:00

      Корзина