4.9
Рейтинг на основании 120 отзывов
Дмитров
Опорный проезд 28Б
(индустриальный парк Ниагара)
Бренд "Дмитров-Дело" c 2008 года на рынке строительства в Дмитрове
Звоните 9:00 до 18:00 8 (915) 055-33-61
Бренд "Дмитров-Дело" c 2008 года на рынке строительства в Дмитрове

АС-2474

Стоимость проекта от:
46 800 ₽
БЕСПЛАТНО! ПРИ ЗАКАЗЕ СТРОИТЕЛЬСТВА
Стоимость строительства от:
7 781 760 ₽
Артикул ART-17713
Дата 26.12.2025
Архитектурный стиль Классический
Количество надземных этажей 2
Круглогодичное проживание Да
Площадь дома 104 м2
Санузлы 2
Спальни 5

Описание

Добро пожаловать в уютный дом AS‑2474, где классический стиль встречается с современными потребностями. Точная пропорция и элегантные линии фасада создают впечатление надёжности и спокойствия, а два надземных этажа обеспечивают достаточное пространство для всей семьи. Внутреннее пространство распланировано так, чтобы каждая комната чувствовалась открытой, светлой и теплой, а не требу­ется лишних балконов и террас – здесь ценятся уютные, но практичные зонирования. Годовое проживание в этом доме гарантируется изысканной тепло- и звукоизоляцией газобетонных блоков, а двускатная крыша подчёркивает его классический облик и одновременно защищает от атмосферных осадков. Внутри вас ждёт просторный холл, открытая кухня‑обеденная зона, где можно наслаждаться семейными вечерами, и уютные гостинцы, которые сразу же поднимают настроение. Если вам хочется личного пространства, то в придомовой зоне можно обустроить тихую беседку или мини‑сад, а автостоянка и гараж можно легко разместить в отдельном застроившемся пункте по вашему вкусу. Этот дом – идеальный выбор для тех, кто ценит комфорт, тепло и элегантную атмосферу классики. Звук проникает, пространство открывает, а каждый уголок дарит ощущение уюта. Приходите и убедитесь сами, что классический эстетический стиль может быть вашим ежедневным убежищем, где каждый день наполнен гармонией и уютом.

Характеристики дома

Архитектурный стиль
Автоматизированное регулирование параметров теплоносителя
Нет
Балконы/лоджии
Отсутствуют
Чердачное помещение
Нет
Датчики протечки воды
Нет
Эксплуатируемая или зеленая кровля
Нет
Электроснабжение
Индивидуальное
Газоснабжение
Не предусмотрено
Изоляция воздушного шума
Нет
Камин
Нет
Класс энергоэффективности
-
Класс энергосбережения
-
Количество надземных этажей
2
Круглогодичное проживание
Да
Материал кровли
Металлочерепица
Материал перекрытий
Сборно-монолитные железобетонные
Материал внешних стен
Материал внутренних перегородок
Блочные
Модульное строительство с конструкциями заводского изготовления
Нет
Объем надземной части
451 м3
Основной материал фасадов
Штукатурка
Отопление
Индивидуальное
Площадь дома
104 м2
Площадь застройки
73 м2
Подвальное помещение
Нет
Показатель компактности здания
-
Приборы учета тепловой энергии
Нет
Пристроенный гараж/крытая автостоянка
Нет
Противопожарная система
Нет
Санузлы
2
Совмещенная кухня-гостиная
Да
Спальни
5
Терраса
Нет
Тип фундамента
Ленточный
Тип кровли
Толщина внешних стен
380 мм
Толщина внутренних перегородок
180 мм
Улучшенные шумовые характеристики
Нет
Вентиляция
Естественная
Веранда
Нет
Водоотведение
Локальные очистные сооружения
Водоснабжение
Индивидуальное
Высота дома
7.6 м
Высота потолков
2.7 м

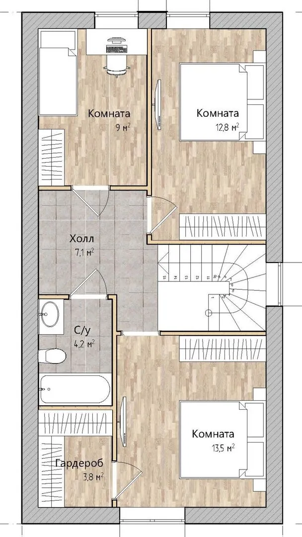
Планировка

Фасад дома

Александр

Закажите выезд инженера

Александр

Выездной инженер
Закажите выезд инженера для точной диагностики и профессиональной консультации по инженерным системам. Специалист приедет в удобное время, проведёт осмотр, рассчитает стоимость работ и подберёт оптимальные решения для вашего дома.


    Похожие проекты

    Ипотека и
    рассрочка
    ДОМ СП-15GD
    Стоимость от:
    6 779 520
    Проект от: 43 200
    Этажей 1
    Санузлы 1
    Спальни 2
    Смотреть
    Ипотека и
    рассрочка
    Одноэтажный дом «ЭВБЕЯ»
    Стоимость от:
    9 510 380
    Проект от: 62 550
    Этажей 1
    Санузлы 2
    Спальни 3
    Смотреть
    Ипотека и
    рассрочка
    Миранда
    Стоимость от:
    8 972 160
    Проект от: 55 800
    Этажей 2
    Санузлы 2
    Спальни 5
    Смотреть
    Ипотека и
    рассрочка
    Загородный дом «Сандал»
    Стоимость от:
    9 519 360
    Проект от: 67 050
    Этажей 2
    Санузлы 2
    Спальни 5
    Смотреть
    Ипотека и
    рассрочка
    Купри — ИД
    Стоимость от:
    4 637 600
    Проект от: 36 000
    Этажей 1
    Санузлы 2
    Спальни 3
    Смотреть
    Ипотека и
    рассрочка
    Берлин-120-114-Б
    Стоимость от:
    11 986 700
    Проект от: 69 750
    Этажей 1
    Санузлы 1
    Спальни 3
    Смотреть

    Как узнать стоимость дома

    back
    Оставляете заявку
    Вы заполняете форму на сайте или звоните нам. Менеджер Лайвкрафт связывается с вами для уточнения деталей: тип дома, площадь, материалы, участок строительства.
    back
    Консультация и подбор решения
    Наш специалист помогает выбрать оптимальный тип дома и конструкцию с учётом бюджета, сроков и целей — будь то дом для постоянного проживания или дача.
    back
    Расчёт предварительной стоимости
    Инженер делает первичный расчёт стоимости строительства по вашим параметрам: фундамент, коробка, кровля, отделка. Вы получаете смету с разбивкой по этапам.
    back
    Корректировка и утверждение сметы
    При необходимости вносим изменения — например, замену материалов или сокращение этапов. После согласования формируется окончательная фиксированная смета.
    back
    Заключение договора и старт работ
    После утверждения сметы заключаем официальный договор с гарантией. Вы получаете прозрачный график и точную стоимость — без скрытых расходов.

    Заказать конусльтацию по:АС-2474

    Фото 1 АС-2474


      Наши
      контакты

      Дмитров
      Опорный проезд 28Б
      (индустриальный парк Ниагара)
      9:00 до 18:00

      Корзина