4.9
Рейтинг на основании 120 отзывов
Дмитров
Опорный проезд 28Б
(индустриальный парк Ниагара)
Бренд "Дмитров-Дело" c 2008 года на рынке строительства в Дмитрове
Звоните 9:00 до 18:00 8 (915) 055-33-61
Бренд "Дмитров-Дело" c 2008 года на рынке строительства в Дмитрове

ASPEN — 127

Стоимость проекта от:
35 550 ₽
Стоимость строительства от:
4 579 630 ₽
Артикул ART-10420
Дата 25.12.2025
Архитектурный стиль Скандинавский
Количество надземных этажей 1
Круглогодичное проживание Да
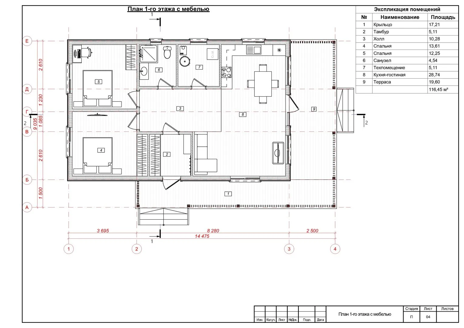
Площадь дома 79 м2
Санузлы 1
Спальни 2

Описание

Добро пожаловать в ASPEN – уютный, одинуровневый дом, созданный для тех, кто ценит простоту и теплоту северной архитектуры. Его площадь в 127 м² раскрывает просторный интерьер, где каждая деталь проработана до мелочей: от светлых деревянных панелей до тщательно продуманных перегородок, которые придают ощущение легкости и открытости. Невозможно не заметить северное очарование – стиль «Скандинавский» пронизывает пространство, создавая атмосферу спокойствия и уюта, которые ощущаются даже в холодную пору года благодаря продуманной теплоизоляции. Внутри ASPEN приглашает к жизни своей открытой планировкой, при которой естественный свет проникает из больших больших окон, делая каждый уголок домашнего пространства живым и ярким. Приглушённые оттенки дерева и нежные акценты в интерьере создают гармоничную атмосферу, идеальную как для семейных вечеров, так и для романтических моментов. Большая терраса, выходящая из гостиной, становится любимым уголком для летних барбекю, утренних чашек кофе или просто наблюдения за рассветом. Этот дом – настоящий оазис комфорта и практичности. Премиальный деревянный каркас обеспечивает энергоэффективность и простоту ухода, а отсутствие пристроенного гаража и крытой стоянки делает жизнь в ASPEN максимально свободной и гибкой – вы можете сами решать, где разместить свой автомобиль. Зимы и лета здесь одинаково приветливы благодаря высококлассной системе утепления и двускатной крыше, которая обеспечивает надежный защиту от атмосферных осадков. Если вы ищете сочетание нордического минимализма, природных материалов и практической уюта, ASPEN станет идеальной точкой фокуса вашего нового жилья.

Характеристики дома

Архитектурный стиль
Скандинавский
Автоматизированное регулирование параметров теплоносителя
Нет
Балконы/лоджии
Отсутствуют
Чердачное помещение
Нет
Датчики протечки воды
Нет
Эксплуатируемая или зеленая кровля
Нет
Электроснабжение
Не предусмотрено
Газоснабжение
Не предусмотрено
Изоляция воздушного шума
Нет
Камин
Нет
Класс энергоэффективности
-
Класс энергосбережения
-
Количество надземных этажей
1
Круглогодичное проживание
Да
Материал кровли
Металлочерепица
Материал перекрытий
Деревянные
Материал внешних стен
Деревянные каркасные
Материал внутренних перегородок
Деревянные
Модульное строительство с конструкциями заводского изготовления
Нет
Объем надземной части
100 м3
Основной материал фасадов
Сайдинг
Отопление
Не предусмотрено
Площадь дома
79 м2
Площадь застройки
127 м2
Подвальное помещение
Нет
Показатель компактности здания
-
Приборы учета тепловой энергии
Нет
Пристроенный гараж/крытая автостоянка
Нет
Противопожарная система
Нет
Санузлы
1
Совмещенная кухня-гостиная
Да
Спальни
2
Терраса
Да
Тип фундамента
Свайный
Тип кровли
Двускатная
Толщина внешних стен
200 мм
Толщина внутренних перегородок
100 мм
Улучшенные шумовые характеристики
Нет
Вентиляция
Естественная
Веранда
Нет
Водоотведение
Не предусмотрено
Водоснабжение
Не предусмотрено
Высота дома
5 м
Высота потолков
4 м

Планировка

Фасад дома

Александр

Закажите выезд инженера

Александр

Выездной инженер
Закажите выезд инженера для точной диагностики и профессиональной консультации по инженерным системам. Специалист приедет в удобное время, проведёт осмотр, рассчитает стоимость работ и подберёт оптимальные решения для вашего дома.


    Похожие проекты

    Ипотека и
    рассрочка
    Проект ГБ-324-24
    Стоимость от:
    22 565 520
    Проект от: 145 350
    Этажей 2
    Санузлы 3
    Спальни 5
    Смотреть
    Ипотека и
    рассрочка
    Дом из газобетона Мирамар-М
    Стоимость от:
    7 619 760
    Проект от: 49 050
    Этажей 2
    Санузлы 2
    Спальни 4
    Смотреть
    Ипотека и
    рассрочка
    Авторский проект «Талгар»
    Стоимость от:
    6 002 700
    Проект от: 38 250
    Этажей 1
    Санузлы 2
    Спальни 3
    Смотреть
    Ипотека и
    рассрочка
    Жилой дом 86м²
    Стоимость от:
    6 847 720
    Проект от: 38 700
    Этажей 1
    Санузлы 1
    Спальни 4
    Смотреть
    Ипотека и
    рассрочка
    Твинхаус 192
    Стоимость от:
    14 350 080
    Проект от: 86 400
    Этажей 2
    Санузлы 3
    Спальни 6
    Смотреть
    Ипотека и
    рассрочка
    Одноэтажный проект Эльм 91
    Стоимость от:
    7 320 940
    Проект от: 48 150
    Этажей 1
    Санузлы 2
    Спальни 2
    Смотреть

    Как узнать стоимость дома

    back
    Оставляете заявку
    Вы заполняете форму на сайте или звоните нам. Менеджер Лайвкрафт связывается с вами для уточнения деталей: тип дома, площадь, материалы, участок строительства.
    back
    Консультация и подбор решения
    Наш специалист помогает выбрать оптимальный тип дома и конструкцию с учётом бюджета, сроков и целей — будь то дом для постоянного проживания или дача.
    back
    Расчёт предварительной стоимости
    Инженер делает первичный расчёт стоимости строительства по вашим параметрам: фундамент, коробка, кровля, отделка. Вы получаете смету с разбивкой по этапам.
    back
    Корректировка и утверждение сметы
    При необходимости вносим изменения — например, замену материалов или сокращение этапов. После согласования формируется окончательная фиксированная смета.
    back
    Заключение договора и старт работ
    После утверждения сметы заключаем официальный договор с гарантией. Вы получаете прозрачный график и точную стоимость — без скрытых расходов.

    Заказать конусльтацию по:ASPEN — 127

    Фото 1 ASPEN — 127


      Наши
      контакты

      Дмитров
      Опорный проезд 28Б
      (индустриальный парк Ниагара)
      9:00 до 18:00

      Корзина