4.9
Рейтинг на основании 120 отзывов
Дмитров
Опорный проезд 28Б
(индустриальный парк Ниагара)
Бренд "Дмитров-Дело" c 2008 года на рынке строительства в Дмитрове
Звоните 9:00 до 18:00 8 (915) 055-33-61
Бренд "Дмитров-Дело" c 2008 года на рынке строительства в Дмитрове

Автомобилист-63 со вторым светом и антресольным этажом

Стоимость проекта от:
34 650 ₽
БЕСПЛАТНО! ПРИ ЗАКАЗЕ СТРОИТЕЛЬСТВА
Стоимость строительства от:
4 611 660 ₽
Артикул ART-19581
Дата 26.12.2025
Архитектурный стиль Скандинавский
Количество надземных этажей 2
Круглогодичное проживание Да
Площадь дома 77 м2
Санузлы 1
Спальни 2

Описание

Станьте хозяином этого очаровательного стиля «Автомобилист‑63», где каждая деталь пропитана духом настоящей северной простоты и уюта. Дом объединяет в себе простоту скандинавского дизайна и практическую эргономику: два открытых уровня позволяют вам гибко распоряжаться пространством, а вторая «светлая» полуторная зона на антресольном этаже открывает дополнительные возможности для творчества, хранения или уютного рабочего уголка. Внутреннее пространство гармонично освещается, благодаря чему каждая комната дышит светом и воздухом. Экстерьер выполнен в лаконичной деревянной каркасной конструкции, которая придает дому тепло и одновременно легко вписывается в любую природную среду, будь то тихий парк или живописные холмы. Плоская подвеска двускатной крыши не только подчёркивает строгую геометрию, но и обеспечивает отличную звукоизоляцию, позволяя вам наслаждаться тишиной и спокойствием даже в городском окружении. Тёплый камин в гостиной, просторные окна и небольшая терраса обеспечат вас всеми плюсами круглогодичного проживания, а отсутствие навесных гаражей сделает ваш дом еще более открытым и свободным. Весь комплекс продуман до мелочей: от планировки комнат до использования качественных материалов, каждый элемент создан для того, чтобы подарить вам максимальный комфорт и вдохновение. Это не просто дом – это ваш личный уголок, где современность встречается с традицией, а стиль оживает в каждой детали. Приглашаем вас открыть двери в этот уютный мир и превратить его в свой собственный дом.

Характеристики дома

Архитектурный стиль
Автоматизированное регулирование параметров теплоносителя
Нет
Балконы/лоджии
Отсутствуют
Чердачное помещение
Да
Датчики протечки воды
Нет
Эксплуатируемая или зеленая кровля
Нет
Электроснабжение
Не предусмотрено
Газоснабжение
Не предусмотрено
Изоляция воздушного шума
Нет
Камин
Нет
Класс энергоэффективности
-
Класс энергосбережения
-
Количество надземных этажей
2
Круглогодичное проживание
Да
Материал кровли
Металлочерепица
Материал перекрытий
Деревянные
Материал внешних стен
Материал внутренних перегородок
Деревянные
Модульное строительство с конструкциями заводского изготовления
Нет
Объем надземной части
180 м3
Основной материал фасадов
Сайдинг
Отопление
Не предусмотрено
Площадь дома
77 м2
Площадь застройки
63 м2
Подвальное помещение
Нет
Показатель компактности здания
-
Приборы учета тепловой энергии
Нет
Пристроенный гараж/крытая автостоянка
Нет
Противопожарная система
Нет
Санузлы
1
Совмещенная кухня-гостиная
Да
Спальни
2
Терраса
Да
Тип фундамента
Свайно-винтовой
Тип кровли
Толщина внешних стен
200 мм
Толщина внутренних перегородок
100 мм
Улучшенные шумовые характеристики
Нет
Вентиляция
Естественная
Веранда
Нет
Водоотведение
Не предусмотрено
Водоснабжение
Не предусмотрено
Высота дома
5.9 м
Высота потолков
2.7 м

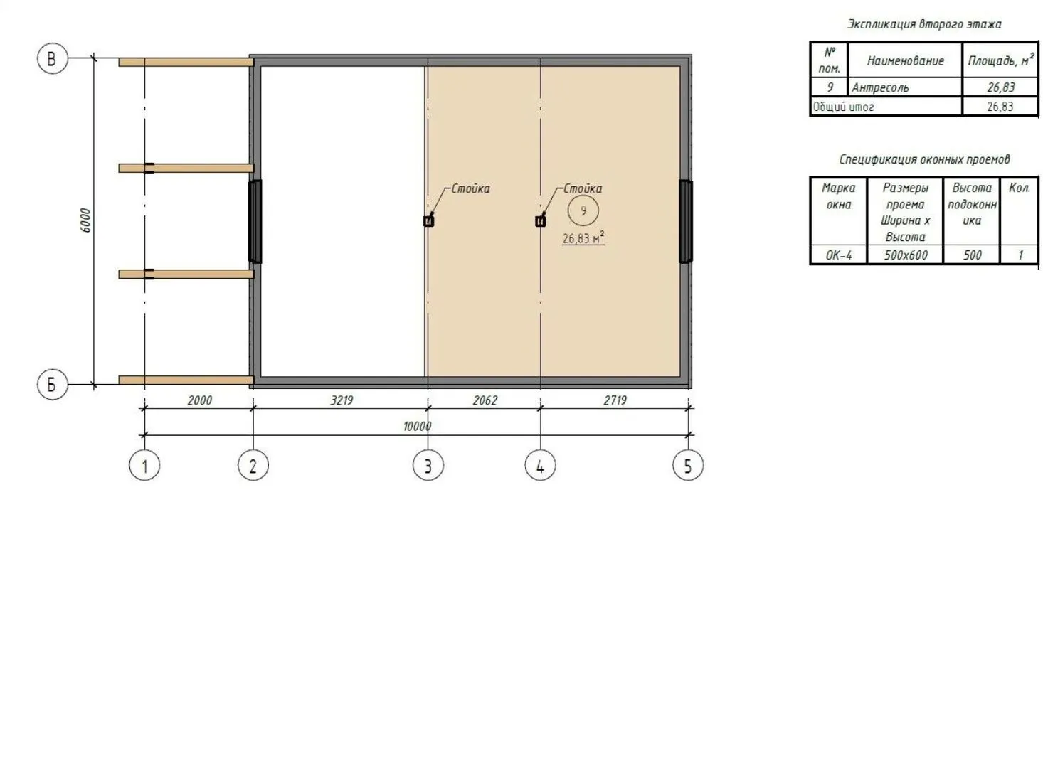
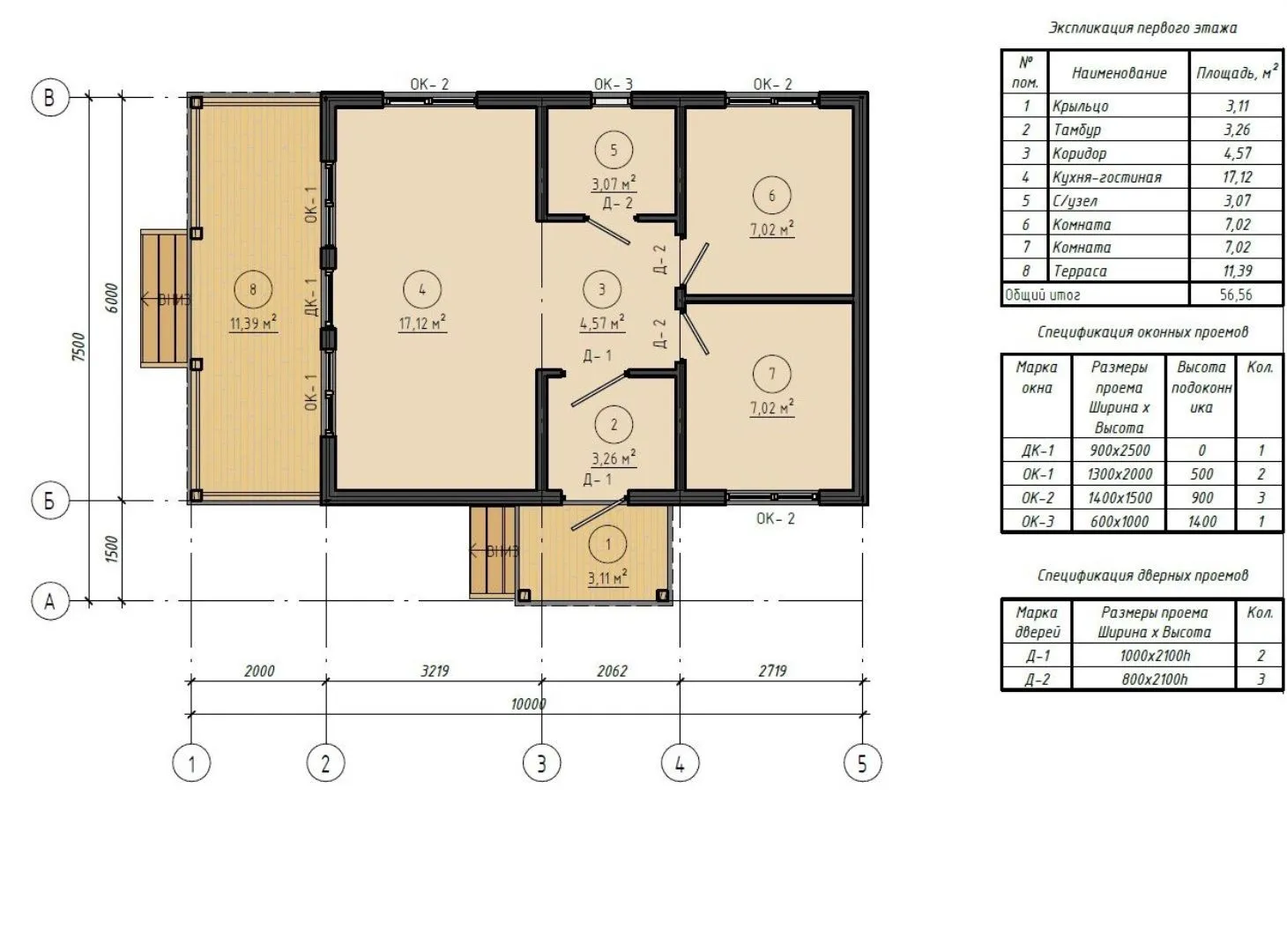
Планировка

Фасад дома

Александр

Закажите выезд инженера

Александр

Выездной инженер
Закажите выезд инженера для точной диагностики и профессиональной консультации по инженерным системам. Специалист приедет в удобное время, проведёт осмотр, рассчитает стоимость работ и подберёт оптимальные решения для вашего дома.


    Похожие проекты

    Ипотека и
    рассрочка
    НОРВЕГИЯ 150
    Стоимость от:
    11 331 600
    Проект от: 74 250
    Этажей 2
    Санузлы 2
    Спальни 3
    Смотреть
    Ипотека и
    рассрочка
    Дом из клееного бруса «Пересвет»
    Стоимость от:
    6 862 240
    Проект от: 50 400
    Этажей 1
    Санузлы 1
    Спальни 1
    Смотреть
    Ипотека и
    рассрочка
    СД-97
    Стоимость от:
    8 005 140
    Проект от: 52 650
    Этажей 1
    Санузлы 2
    Спальни 2
    Смотреть
    Ипотека и
    рассрочка
    Классический дом ДМ-01
    Стоимость от:
    5 507 535
    Проект от: 39 150
    Этажей 1
    Санузлы 1
    Спальни 3
    Смотреть
    Ипотека и
    рассрочка
    Дом из клееного бруса БД-103
    Стоимость от:
    6 283 530
    Проект от: 44 550
    Этажей 1
    Санузлы 2
    Спальни 3
    Смотреть
    Ипотека и
    рассрочка
    Вилла для ЖИЗНИ
    Стоимость от:
    38 944 320
    Проект от: 246 600
    Этажей 2
    Санузлы 5
    Спальни 5
    Смотреть

    Как узнать стоимость дома

    back
    Оставляете заявку
    Вы заполняете форму на сайте или звоните нам. Менеджер Лайвкрафт связывается с вами для уточнения деталей: тип дома, площадь, материалы, участок строительства.
    back
    Консультация и подбор решения
    Наш специалист помогает выбрать оптимальный тип дома и конструкцию с учётом бюджета, сроков и целей — будь то дом для постоянного проживания или дача.
    back
    Расчёт предварительной стоимости
    Инженер делает первичный расчёт стоимости строительства по вашим параметрам: фундамент, коробка, кровля, отделка. Вы получаете смету с разбивкой по этапам.
    back
    Корректировка и утверждение сметы
    При необходимости вносим изменения — например, замену материалов или сокращение этапов. После согласования формируется окончательная фиксированная смета.
    back
    Заключение договора и старт работ
    После утверждения сметы заключаем официальный договор с гарантией. Вы получаете прозрачный график и точную стоимость — без скрытых расходов.

    Заказать конусльтацию по:Автомобилист-63 со вторым светом и антресольным этажом

    Фото 1 Автомобилист-63 со вторым светом и антресольным этажом


      Наши
      контакты

      Дмитров
      Опорный проезд 28Б
      (индустриальный парк Ниагара)
      9:00 до 18:00

      Корзина