4.9
Рейтинг на основании 120 отзывов
Дмитров
Опорный проезд 28Б
(индустриальный парк Ниагара)
Бренд "Дмитров-Дело" c 2008 года на рынке строительства в Дмитрове
Звоните 9:00 до 18:00 8 (915) 055-33-61
Бренд "Дмитров-Дело" c 2008 года на рынке строительства в Дмитрове

Авторский проект «Акбет»

Стоимость проекта от:
50 400 ₽
БЕСПЛАТНО! ПРИ ЗАКАЗЕ СТРОИТЕЛЬСТВА
Стоимость строительства от:
7 822 080 ₽
Артикул ART-6073
Дата 26.12.2025
Архитектурный стиль Европейский
Количество надземных этажей 2
Круглогодичное проживание Да
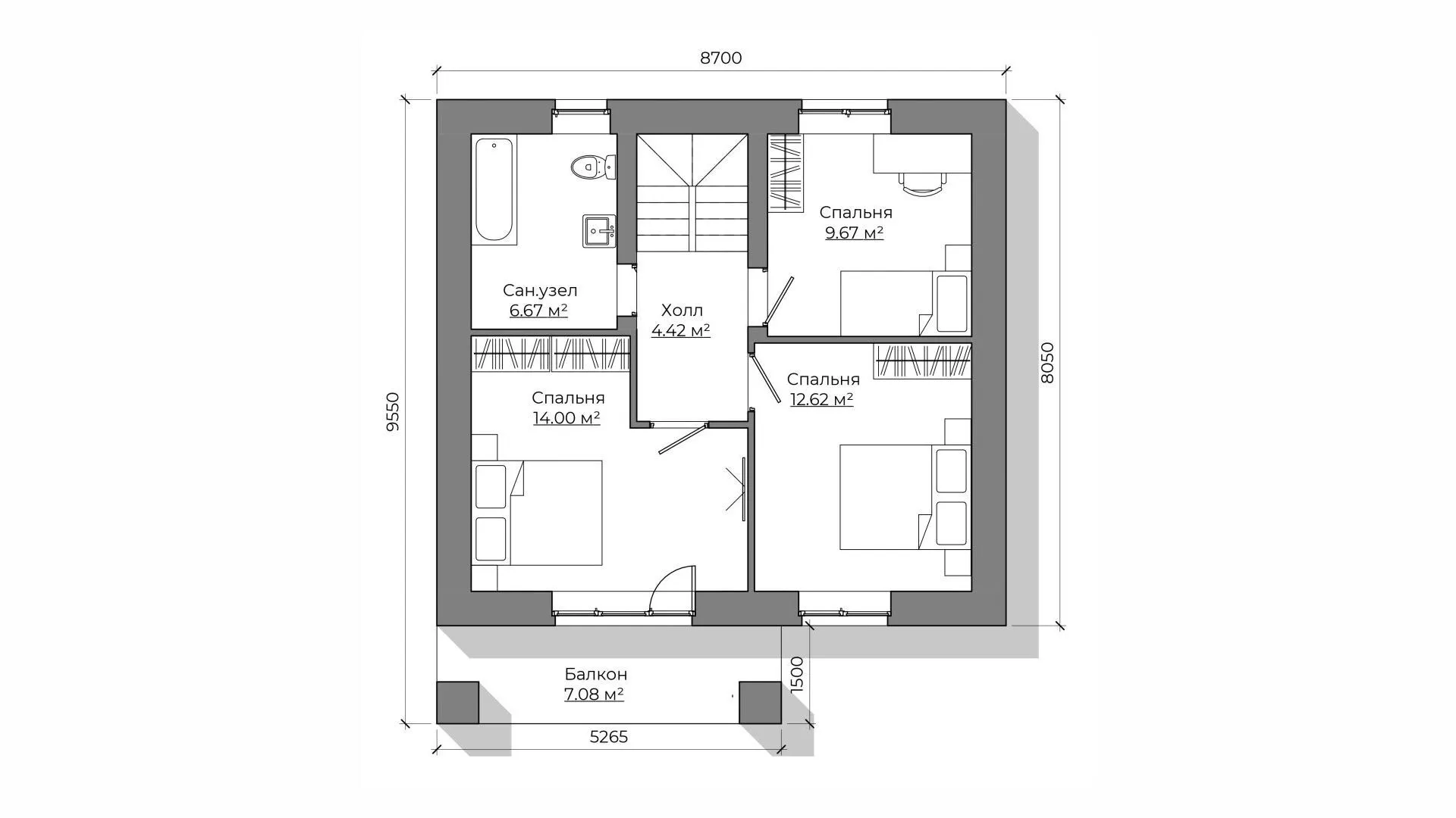
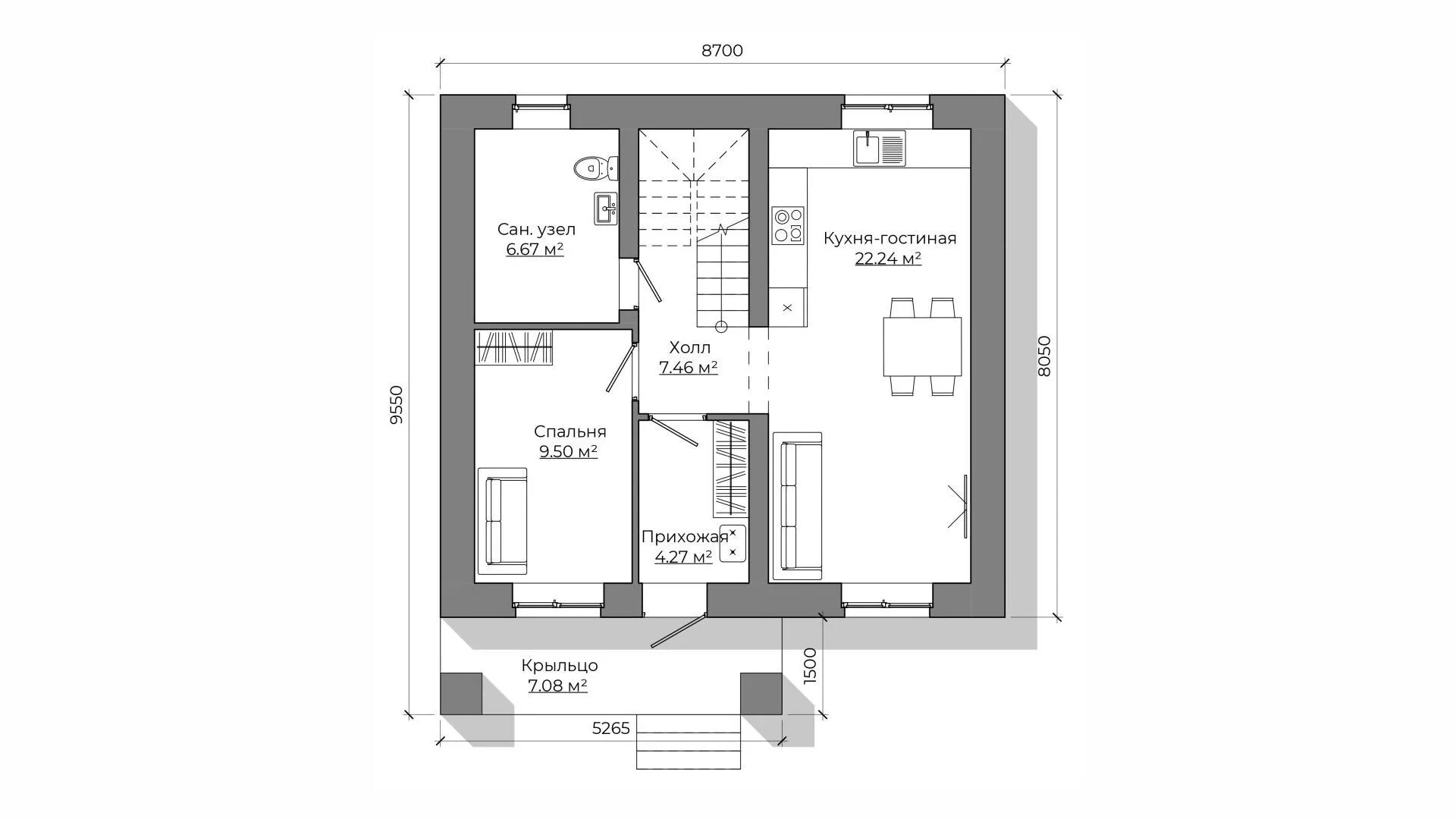
Площадь дома 112 м2
Санузлы 2
Спальни 4

Описание

**Авторский проект «Акбет»** – это истинное воплощение европейского дизайна, скрупулезно сбалансированное с природой и удобством современного быта. Дом выполнен в классическом двухэтажном стиле, обеспечивая круглогодичное проживание, которое не уступает ни одному из лучших резиденций страны. Его гладкие, газобетонные стены излучают тепло и энергоэффективность, а традиционная двускатная крыша добавляет не только эстетической привлекательности, но и практичности, защищая от дождя, снега и ветра. Внутри «Акбет» раскрывает гармонию простоты и уюта. Одно открывающееся окнавая панель балкона приглашается к дневным прогулкам, позволяя наслаждаться видом и свежим воздухом прямо из гостиной. Отдельный простор для кухни и обеденной зоны создаёт ощущение лёгкости и свободы, в то время как уютный спальник с просторными шкафами гарантирует достаточность личной территории. В каждом уголке проработана светлость и открытость — от светового потока, проникающего сквозь большие окна, до воздушной атмосферы, которую создают материал и цвет внешних стен. Здесь каждый элемент продуман так, чтобы обеспечить комфорт и спокойствие. Наличие балкона даёт возможность проводить время на свежем воздухе, а отсутствие лишних элементов, таких как веранда или чердачное помещение, делает архитектуру лаконичной и лаконичной, а значит, и экономной. Этот дом — настоящий оазис, где простота встречается с элегантностью, а современное удобство с европейской изысканностью. Выбирая «Акбет», вы выбираете уникальный образ жизни, который прославит ваш дом в сердцах всех, кто его увидит.

Характеристики дома

Архитектурный стиль
Автоматизированное регулирование параметров теплоносителя
Нет
Балконы/лоджии
1
Чердачное помещение
Нет
Датчики протечки воды
Нет
Эксплуатируемая или зеленая кровля
Нет
Электроснабжение
2 варианта
Газоснабжение
2 варианта
Изоляция воздушного шума
Нет
Камин
Нет
Класс энергоэффективности
-
Класс энергосбережения
-
Количество надземных этажей
2
Круглогодичное проживание
Да
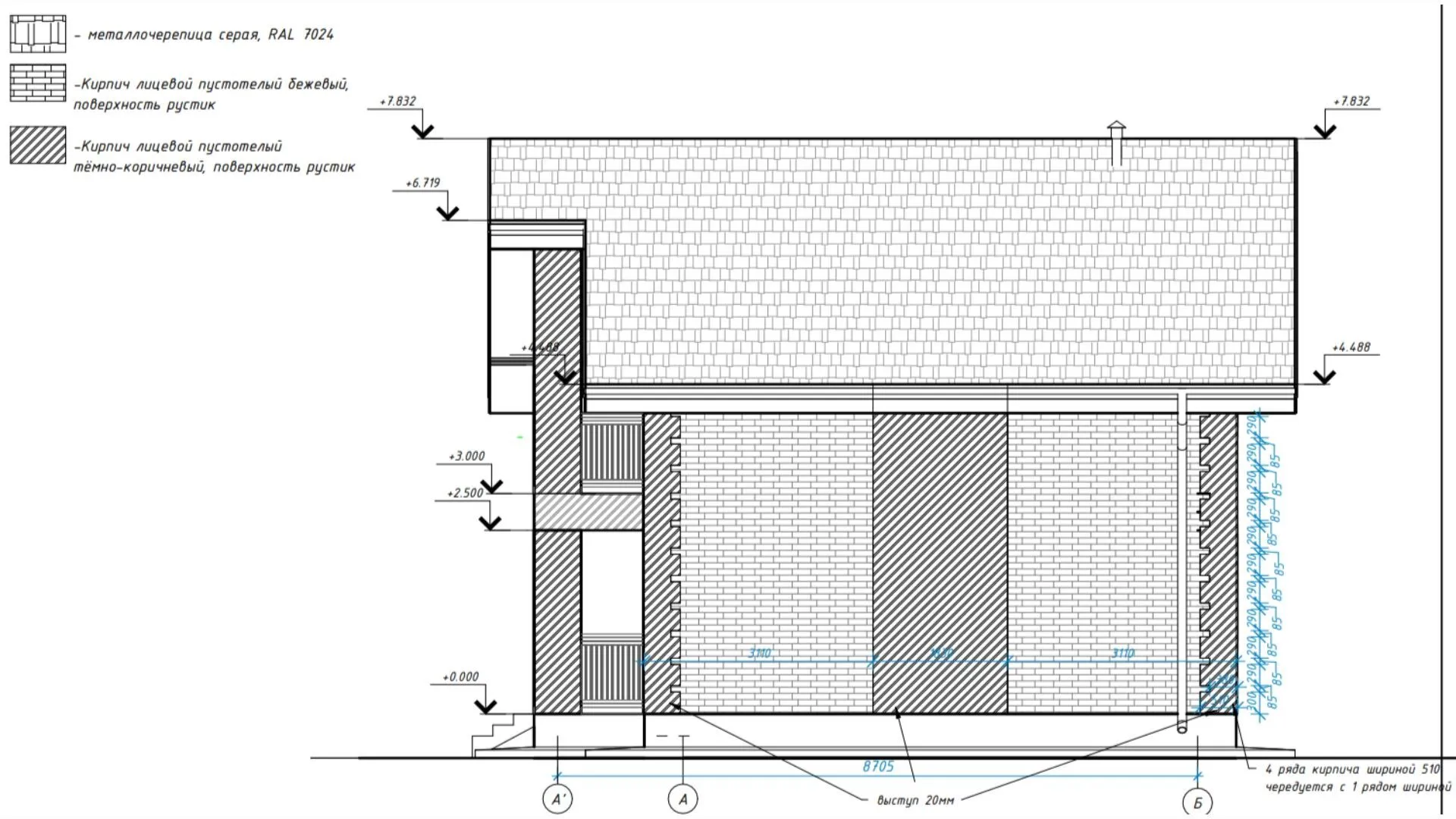
Материал кровли
Металлочерепица
Материал перекрытий
Монолитные железобетонные
Материал внешних стен
Материал внутренних перегородок
Блочные
Модульное строительство с конструкциями заводского изготовления
Нет
Объем надземной части
-
Основной материал фасадов
Облицовочный кирпич
Отопление
2 варианта
Площадь дома
112 м2
Площадь застройки
147 м2
Подвальное помещение
Нет
Показатель компактности здания
-
Приборы учета тепловой энергии
Нет
Пристроенный гараж/крытая автостоянка
Нет
Противопожарная система
Нет
Санузлы
2
Совмещенная кухня-гостиная
Да
Спальни
4
Терраса
Нет
Тип фундамента
Плитный
Тип кровли
Толщина внешних стен
375 мм
Толщина внутренних перегородок
100 мм
Улучшенные шумовые характеристики
Нет
Вентиляция
2 варианта
Веранда
Нет
Водоотведение
2 варианта
Водоснабжение
2 варианта
Высота дома
8 м
Высота потолков
2.7 м

Планировка

Фасад дома

Александр

Закажите выезд инженера

Александр

Выездной инженер
Закажите выезд инженера для точной диагностики и профессиональной консультации по инженерным системам. Специалист приедет в удобное время, проведёт осмотр, рассчитает стоимость работ и подберёт оптимальные решения для вашего дома.


    Похожие проекты

    Ипотека и
    рассрочка
    Афина
    Стоимость от:
    5 735 840
    Проект от: 32 400
    Этажей 1
    Санузлы 1
    Спальни 3
    Смотреть
    Ипотека и
    рассрочка
    Каркасный одноэтажный дом «ДК 303»
    Стоимость от:
    5 780 500
    Проект от: 45 000
    Этажей 1
    Санузлы 1
    Спальни 2
    Смотреть
    Ипотека и
    рассрочка
    S 2-101-2
    Стоимость от:
    7 093 920
    Проект от: 44 100
    Этажей 2
    Санузлы 2
    Спальни 4
    Смотреть
    Ипотека и
    рассрочка
    Дом с мансардным этажом «Акбет»
    Стоимость от:
    250 800
    Проект от: 42 750
    Этажей 2
    Санузлы 2
    Спальни 4
    Смотреть
    Ипотека и
    рассрочка
    Фьюжн
    Стоимость от:
    7 586 480
    Проект от: 46 800
    Этажей 1
    Санузлы 1
    Спальни 2
    Смотреть
    Ипотека и
    рассрочка
    Strong house
    Стоимость от:
    8 674 380
    Проект от: 49 050
    Этажей 1
    Санузлы 2
    Спальни 3
    Смотреть

    Как узнать стоимость дома

    back
    Оставляете заявку
    Вы заполняете форму на сайте или звоните нам. Менеджер Лайвкрафт связывается с вами для уточнения деталей: тип дома, площадь, материалы, участок строительства.
    back
    Консультация и подбор решения
    Наш специалист помогает выбрать оптимальный тип дома и конструкцию с учётом бюджета, сроков и целей — будь то дом для постоянного проживания или дача.
    back
    Расчёт предварительной стоимости
    Инженер делает первичный расчёт стоимости строительства по вашим параметрам: фундамент, коробка, кровля, отделка. Вы получаете смету с разбивкой по этапам.
    back
    Корректировка и утверждение сметы
    При необходимости вносим изменения — например, замену материалов или сокращение этапов. После согласования формируется окончательная фиксированная смета.
    back
    Заключение договора и старт работ
    После утверждения сметы заключаем официальный договор с гарантией. Вы получаете прозрачный график и точную стоимость — без скрытых расходов.

    Заказать конусльтацию по:Авторский проект «Акбет»

    Фото 1 Авторский проект «Акбет»


      Наши
      контакты

      Дмитров
      Опорный проезд 28Б
      (индустриальный парк Ниагара)
      9:00 до 18:00

      Корзина