4.9
Рейтинг на основании 120 отзывов
Дмитров
Опорный проезд 28Б
(индустриальный парк Ниагара)
Бренд "Дмитров-Дело" c 2008 года на рынке строительства в Дмитрове
Звоните 9:00 до 18:00 8 (915) 055-33-61
Бренд "Дмитров-Дело" c 2008 года на рынке строительства в Дмитрове

Авторский проект «Демир»

Стоимость проекта от:
40 500 ₽
БЕСПЛАТНО! ПРИ ЗАКАЗЕ СТРОИТЕЛЬСТВА
Стоимость строительства от:
6 355 800 ₽
Артикул ART-6099
Дата 26.12.2025
Архитектурный стиль Американский/Канадский
Количество надземных этажей 1
Круглогодичное проживание Да
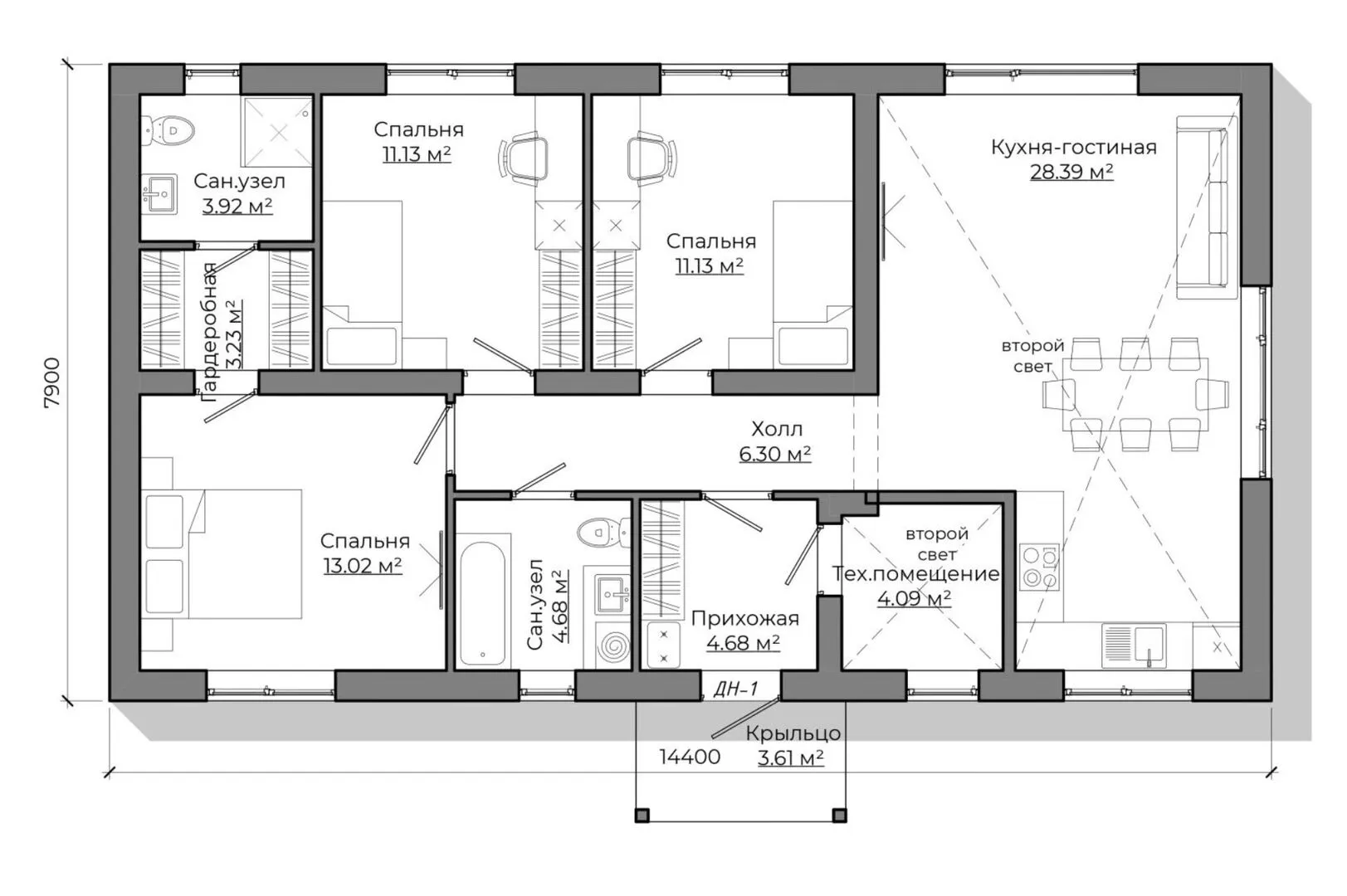
Площадь дома 90 м2
Санузлы 2
Спальни 3

Описание

**Авторский проект «Демир»** Пусть ваш дом станет настоящим уголком уюта и комфорта. «Демир» — это современный одноэтажный дом в стиле американской и канадской архитектуры, созданный с душой и вниманием ко всем деталям. Его ровный, двускатный чертеж обрамлен газобетонными блоками, которые не только дарят теплый, но и приятный на ощупь внешний вид, но и обеспечивают теплоизоляцию и долгий срок службы. Благодаря продуманной геометрии дома вы сможете наслаждаться кристально чистыми видами даже в зимнее время года — круглогодичное проживание без компромиссов. В «Демире» нет балконов и веранд, а нет и прибрежного гаража, но это только подчёркивает чистоту и лаконичность решения: пространство продумано так, чтобы всё необходимое находилось под рукой, а изысканный дизайн придаёт дому неповторимый характер. Проект идеально подходит для тех, кто ценит простоту, но не готов жертвовать уютом и практичностью. Каждый сантиметр «Демира» спроектирован так, чтобы создать живое ощущение домашнего тепла, позволяя вам полностью отдаться приятной жизни в собственной крепости.

Характеристики дома

Архитектурный стиль
Автоматизированное регулирование параметров теплоносителя
Нет
Балконы/лоджии
Отсутствуют
Чердачное помещение
Нет
Датчики протечки воды
Нет
Эксплуатируемая или зеленая кровля
Нет
Электроснабжение
2 варианта
Газоснабжение
2 варианта
Изоляция воздушного шума
Нет
Камин
Нет
Класс энергоэффективности
-
Класс энергосбережения
-
Количество надземных этажей
1
Круглогодичное проживание
Да
Материал кровли
Металлочерепица
Материал перекрытий
Монолитные железобетонные
Материал внешних стен
Материал внутренних перегородок
Блочные
Модульное строительство с конструкциями заводского изготовления
Нет
Объем надземной части
-
Основной материал фасадов
Штукатурка
Отопление
2 варианта
Площадь дома
90 м2
Площадь застройки
117 м2
Подвальное помещение
Нет
Показатель компактности здания
-
Приборы учета тепловой энергии
Нет
Пристроенный гараж/крытая автостоянка
Нет
Противопожарная система
Нет
Санузлы
2
Совмещенная кухня-гостиная
Да
Спальни
3
Терраса
Нет
Тип фундамента
Плитный
Тип кровли
Толщина внешних стен
375 мм
Толщина внутренних перегородок
100 мм
Улучшенные шумовые характеристики
Нет
Вентиляция
2 варианта
Веранда
Нет
Водоотведение
2 варианта
Водоснабжение
2 варианта
Высота дома
5.2 м
Высота потолков
2.7 м

Планировка

Фасад дома

Александр

Закажите выезд инженера

Александр

Выездной инженер
Закажите выезд инженера для точной диагностики и профессиональной консультации по инженерным системам. Специалист приедет в удобное время, проведёт осмотр, рассчитает стоимость работ и подберёт оптимальные решения для вашего дома.


    Похожие проекты

    Ипотека и
    рассрочка
    Сахалин 80
    Стоимость от:
    5 209 600
    Проект от: 36 000
    Этажей 1
    Санузлы 1
    Спальни 3
    Смотреть
    Ипотека и
    рассрочка
    Садовод 8х8,5 Барн
    Стоимость от:
    3 526 105
    Проект от: 27 450
    Этажей 1
    Санузлы 1
    Спальни 1
    Смотреть
    Ипотека и
    рассрочка
    Каркасный дом «Арго»
    Стоимость от:
    176 880
    Проект от: 30 150
    Этажей 2
    Санузлы 1
    Спальни 2
    Смотреть
    Ипотека и
    рассрочка
    Бунгало-135
    Стоимость от:
    14 710 300
    Проект от: 83 250
    Этажей 1
    Санузлы 2
    Спальни 4
    Смотреть
    Ипотека и
    рассрочка
    Двухэтажный дом с террасами на двух уровнях S3-137 (Zx73)
    Стоимость от:
    10 091 280
    Проект от: 61 650
    Этажей 2
    Санузлы 3
    Спальни 3
    Смотреть
    Ипотека и
    рассрочка
    Проект 102
    Стоимость от:
    7 641 920
    Проект от: 43 200
    Этажей 1
    Санузлы 1
    Спальни 3
    Смотреть

    Как узнать стоимость дома

    back
    Оставляете заявку
    Вы заполняете форму на сайте или звоните нам. Менеджер Лайвкрафт связывается с вами для уточнения деталей: тип дома, площадь, материалы, участок строительства.
    back
    Консультация и подбор решения
    Наш специалист помогает выбрать оптимальный тип дома и конструкцию с учётом бюджета, сроков и целей — будь то дом для постоянного проживания или дача.
    back
    Расчёт предварительной стоимости
    Инженер делает первичный расчёт стоимости строительства по вашим параметрам: фундамент, коробка, кровля, отделка. Вы получаете смету с разбивкой по этапам.
    back
    Корректировка и утверждение сметы
    При необходимости вносим изменения — например, замену материалов или сокращение этапов. После согласования формируется окончательная фиксированная смета.
    back
    Заключение договора и старт работ
    После утверждения сметы заключаем официальный договор с гарантией. Вы получаете прозрачный график и точную стоимость — без скрытых расходов.

    Заказать конусльтацию по:Авторский проект «Демир»

    Фото 1 Авторский проект «Демир»


      Наши
      контакты

      Дмитров
      Опорный проезд 28Б
      (индустриальный парк Ниагара)
      9:00 до 18:00

      Корзина