4.9
Рейтинг на основании 120 отзывов
Дмитров
Опорный проезд 28Б
(индустриальный парк Ниагара)
Бренд "Дмитров-Дело" c 2008 года на рынке строительства в Дмитрове
Звоните 9:00 до 18:00 8 (915) 055-33-61
Бренд "Дмитров-Дело" c 2008 года на рынке строительства в Дмитрове

Авторский проект «Лелия 1.0»

Стоимость проекта от:
37 350 ₽
БЕСПЛАТНО! ПРИ ЗАКАЗЕ СТРОИТЕЛЬСТВА
Стоимость строительства от:
5 803 920 ₽
Артикул ART-6096
Дата 26.12.2025
Архитектурный стиль Европейский
Количество надземных этажей 2
Круглогодичное проживание Да
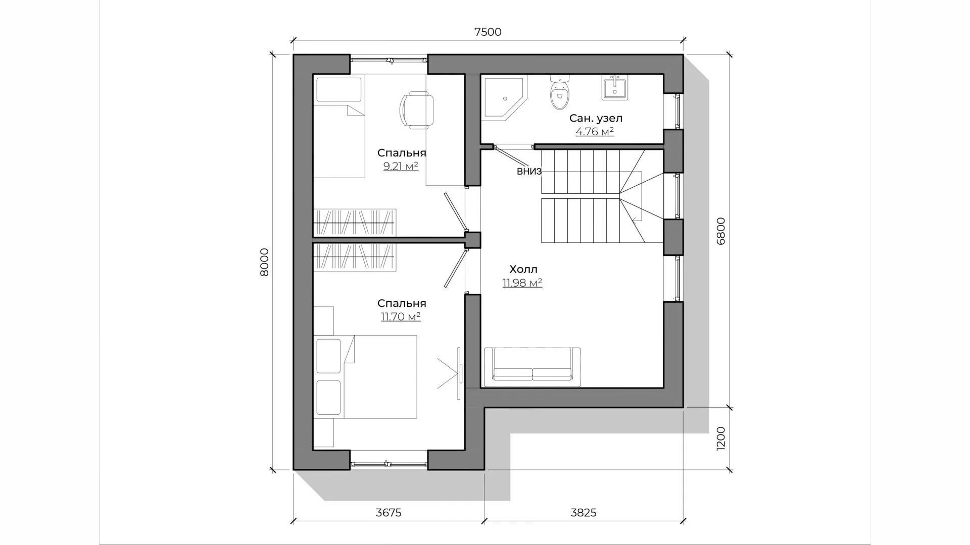
Площадь дома 83 м2
Санузлы 2
Спальни 2

Описание

**Авторский проект «Лелия 1.0» – ваше уютное европейское убежище** Во дворе, где природа встречается с комфортом, стоит наш новый дом. Два надземных этажа, выполненные в строгом европейском стиле, сочетают традиционность и современность. Просторные открытые планы на каждом уровне, созданные из газобетонных блоков, обеспечивают тепло, акустическую изоляцию и долговечность. Благодаря комбинированной кровле дом выглядит элегантно и надежно, а его конструктивная простота позволяет вести комфортную жизнь круглый год – без лишних «временных» сооружений, таких как балконы, веранда или лоджия. В «Лелии 1.0» каждый уголок задуман так, чтобы вы могли наслаждаться тихим семейным уютом, не беспокоясь о внешних деталях. Отсутствие прикрытой автостоянки, гаража и чердачных помещений не мешает – наоборот, освобождает пространство для свободного внутреннего планирования: от открытой кухни до светлых спальников. Все материалы и инженерные решения подобраны так, чтобы вы чувствовали себя дома в любое время года, не оглядываясь на сезоны. Выбирая «Лелию 1.0», вы выбираете качество, простоту и атмосферу настоящего европейского дизайна. Прекрасно подходит для тех, кто ценит уют, гармонию и практичность в одном архитектурном пакете. Позвольте себе воплотить в реальность именно такой дом – сделайте первый шаг к своему новому уюту уже сегодня.

Характеристики дома

Архитектурный стиль
Автоматизированное регулирование параметров теплоносителя
Нет
Балконы/лоджии
Отсутствуют
Чердачное помещение
Нет
Датчики протечки воды
Нет
Эксплуатируемая или зеленая кровля
Нет
Электроснабжение
2 варианта
Газоснабжение
2 варианта
Изоляция воздушного шума
Нет
Камин
Нет
Класс энергоэффективности
-
Класс энергосбережения
-
Количество надземных этажей
2
Круглогодичное проживание
Да
Материал кровли
Металлочерепица
Материал перекрытий
Монолитные железобетонные
Материал внешних стен
Материал внутренних перегородок
Блочные
Модульное строительство с конструкциями заводского изготовления
Нет
Объем надземной части
-
Основной материал фасадов
Облицовочный кирпич
Отопление
2 варианта
Площадь дома
83 м2
Площадь застройки
116 м2
Подвальное помещение
Нет
Показатель компактности здания
-
Приборы учета тепловой энергии
Нет
Пристроенный гараж/крытая автостоянка
Нет
Противопожарная система
Нет
Санузлы
2
Совмещенная кухня-гостиная
Да
Спальни
2
Терраса
Нет
Тип фундамента
Плитный
Тип кровли
Толщина внешних стен
375 мм
Толщина внутренних перегородок
100 мм
Улучшенные шумовые характеристики
Нет
Вентиляция
2 варианта
Веранда
Нет
Водоотведение
2 варианта
Водоснабжение
2 варианта
Высота дома
5 м
Высота потолков
2.7 м

Планировка

Фасад дома

Александр

Закажите выезд инженера

Александр

Выездной инженер
Закажите выезд инженера для точной диагностики и профессиональной консультации по инженерным системам. Специалист приедет в удобное время, проведёт осмотр, рассчитает стоимость работ и подберёт оптимальные решения для вашего дома.


    Похожие проекты

    Ипотека и
    рассрочка
    Босфор 125
    Стоимость от:
    9 315 680
    Проект от: 55 800
    Этажей 1
    Санузлы 2
    Спальни 3
    Смотреть
    Ипотека и
    рассрочка
    Загородный дом 74м2
    Стоимость от:
    5 564 680
    Проект от: 33 300
    Этажей 1
    Санузлы 1
    Спальни 2
    Смотреть
    Ипотека и
    рассрочка
    Проект ГБ-253
    Стоимость от:
    17 371 920
    Проект от: 113 850
    Этажей 2
    Санузлы 3
    Спальни 4
    Смотреть
    Ипотека и
    рассрочка
    GP-барн-F
    Стоимость от:
    4 869 480
    Проект от: 37 800
    Этажей 1
    Санузлы 1
    Спальни 2
    Смотреть
    Ипотека и
    рассрочка
    Двухэтажный дом с мансардой «Бавария 2М»
    Стоимость от:
    10 420 800
    Проект от: 72 000
    Этажей 2
    Санузлы 2
    Спальни 4
    Смотреть
    Ипотека и
    рассрочка
    Каркасный дом «ДК-192»
    Стоимость от:
    7 450 560
    Проект от: 57 150
    Этажей 2
    Санузлы 1
    Спальни 4
    Смотреть

    Как узнать стоимость дома

    back
    Оставляете заявку
    Вы заполняете форму на сайте или звоните нам. Менеджер Лайвкрафт связывается с вами для уточнения деталей: тип дома, площадь, материалы, участок строительства.
    back
    Консультация и подбор решения
    Наш специалист помогает выбрать оптимальный тип дома и конструкцию с учётом бюджета, сроков и целей — будь то дом для постоянного проживания или дача.
    back
    Расчёт предварительной стоимости
    Инженер делает первичный расчёт стоимости строительства по вашим параметрам: фундамент, коробка, кровля, отделка. Вы получаете смету с разбивкой по этапам.
    back
    Корректировка и утверждение сметы
    При необходимости вносим изменения — например, замену материалов или сокращение этапов. После согласования формируется окончательная фиксированная смета.
    back
    Заключение договора и старт работ
    После утверждения сметы заключаем официальный договор с гарантией. Вы получаете прозрачный график и точную стоимость — без скрытых расходов.

    Заказать конусльтацию по:Авторский проект «Лелия 1.0»

    Фото 1 Авторский проект «Лелия 1.0»


      Наши
      контакты

      Дмитров
      Опорный проезд 28Б
      (индустриальный парк Ниагара)
      9:00 до 18:00

      Корзина