4.9
Рейтинг на основании 120 отзывов
Дмитров
Опорный проезд 28Б
(индустриальный парк Ниагара)
Бренд "Дмитров-Дело" c 2008 года на рынке строительства в Дмитрове
Звоните 9:00 до 18:00 8 (915) 055-33-61
Бренд "Дмитров-Дело" c 2008 года на рынке строительства в Дмитрове

Авторский проект «Мембет»

Стоимость проекта от:
76 050 ₽
Стоимость строительства от:
11 934 780 ₽
Артикул ART-6505
Дата 26.12.2025
Архитектурный стиль Американский/Канадский
Количество надземных этажей 1
Круглогодичное проживание Да
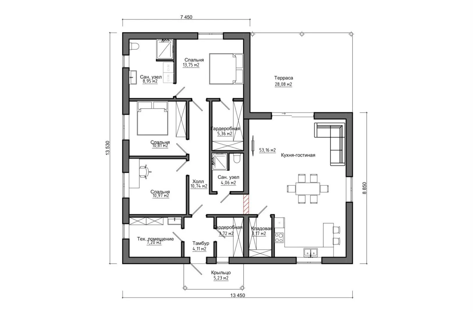
Площадь дома 169 м2
Санузлы 2
Спальни 3

Описание

Добро пожаловать в авторский дом «Мембет» — место, где сочетание современности и уюта воплотилось в ярко выраженном американско–канадском стиле. Это уютное одноэтажное пространство, спроектированное для круглогодичного проживания, создано так, чтобы каждая деталь подчеркивала комфорт и естественность. Здесь нет лишних балконов и веранд, а открытая терраса становится вашим личным уголком отдыха, где можно наслаждаться свежим воздухом и красивыми видами. Дом построен из газобетонных блоков, что гарантирует теплоизоляцию и долговечность конструкций, а четырёхскатная (вальмовая) кровля обеспечивает элегантный силуэт и надежную защиту от атмосферных воздействий. Просторные внутренние помещения, аккуратные линии и естественный свет создают атмосферу, приглашающую к семейным мероприятиям и уютным вечерним беседам. Здесь каждая зона продумана: кухня с современным оборудованием, светлая гостиная, удобная спальня и практичные ванные, а отсутствие крытой автостоянки даёт возможность наслаждаться природой и свободой от парковки. Выбирая «Мембет», вы выбираете не просто дом, а идеальный союз архитектурного стиля, качества строительства и безупречного дизайна. Позвольте себе комфорт и вдохновение, которые подарит этот дом, и начните новую главу вашей жизни в атмосфере уюта и элегантности. К нам можно обратиться прямо сейчас, чтобы обсудить детали и получить доступ к эксклюзивным условиям покупки.

Характеристики дома

Архитектурный стиль
Американский/Канадский
Автоматизированное регулирование параметров теплоносителя
Нет
Балконы/лоджии
Отсутствуют
Чердачное помещение
Нет
Датчики протечки воды
Нет
Эксплуатируемая или зеленая кровля
Нет
Электроснабжение
2 варианта
Газоснабжение
2 варианта
Изоляция воздушного шума
Нет
Камин
Нет
Класс энергоэффективности
-
Класс энергосбережения
-
Количество надземных этажей
1
Круглогодичное проживание
Да
Материал кровли
Металлочерепица
Материал перекрытий
Монолитные железобетонные
Материал внешних стен
Газобетонные блоки
Материал внутренних перегородок
Блочные
Модульное строительство с конструкциями заводского изготовления
Нет
Объем надземной части
-
Основной материал фасадов
Штукатурка
Отопление
2 варианта
Площадь дома
169 м2
Площадь застройки
182 м2
Подвальное помещение
Нет
Показатель компактности здания
-
Приборы учета тепловой энергии
Нет
Пристроенный гараж/крытая автостоянка
Нет
Противопожарная система
Нет
Санузлы
2
Совмещенная кухня-гостиная
Да
Спальни
3
Терраса
Да
Тип фундамента
Плитный
Тип кровли
Четырехскатная (вальмовая)
Толщина внешних стен
375 мм
Толщина внутренних перегородок
100 мм
Улучшенные шумовые характеристики
Нет
Вентиляция
2 варианта
Веранда
Нет
Водоотведение
2 варианта
Водоснабжение
2 варианта
Высота дома
5 м
Высота потолков
2.7 м

Планировка

Фасад дома

Александр

Закажите выезд инженера

Александр

Выездной инженер
Закажите выезд инженера для точной диагностики и профессиональной консультации по инженерным системам. Специалист приедет в удобное время, проведёт осмотр, рассчитает стоимость работ и подберёт оптимальные решения для вашего дома.


    Похожие проекты

    Ипотека и
    рассрочка
    SH «Малевич»
    Стоимость от:
    15 440 040
    Проект от: 113 400
    Этажей 1
    Санузлы 3
    Спальни 4
    Смотреть
    Ипотека и
    рассрочка
    Каркасный дом Валенсия 98
    Стоимость от:
    6 703 200
    Проект от: 50 400
    Этажей 2
    Санузлы 2
    Спальни 4
    Смотреть
    Ипотека и
    рассрочка
    Современный дом с плоской кровлей в стиле Хай-Тек S-219-1
    Стоимость от:
    18 316 560
    Проект от: 112 050
    Этажей 2
    Санузлы 3
    Спальни 4
    Смотреть
    Ипотека и
    рассрочка
    Katalina
    Стоимость от:
    7 959 600
    Проект от: 45 000
    Этажей 1
    Санузлы 1
    Спальни 3
    Смотреть
    Ипотека и
    рассрочка
    Адмирал
    Стоимость от:
    12 291 000
    Проект от: 92 250
    Этажей 2
    Санузлы 2
    Спальни 4
    Смотреть
    Ипотека и
    рассрочка
    Софья
    Стоимость от:
    9 071 480
    Проект от: 51 300
    Этажей 1
    Санузлы 1
    Спальни 3
    Смотреть

    Как узнать стоимость дома

    back
    Оставляете заявку
    Вы заполняете форму на сайте или звоните нам. Менеджер Лайвкрафт связывается с вами для уточнения деталей: тип дома, площадь, материалы, участок строительства.
    back
    Консультация и подбор решения
    Наш специалист помогает выбрать оптимальный тип дома и конструкцию с учётом бюджета, сроков и целей — будь то дом для постоянного проживания или дача.
    back
    Расчёт предварительной стоимости
    Инженер делает первичный расчёт стоимости строительства по вашим параметрам: фундамент, коробка, кровля, отделка. Вы получаете смету с разбивкой по этапам.
    back
    Корректировка и утверждение сметы
    При необходимости вносим изменения — например, замену материалов или сокращение этапов. После согласования формируется окончательная фиксированная смета.
    back
    Заключение договора и старт работ
    После утверждения сметы заключаем официальный договор с гарантией. Вы получаете прозрачный график и точную стоимость — без скрытых расходов.

    Заказать конусльтацию по:Авторский проект «Мембет»

    Фото 1 Авторский проект «Мембет»


      Наши
      контакты

      Дмитров
      Опорный проезд 28Б
      (индустриальный парк Ниагара)
      9:00 до 18:00

      Корзина