4.9
Рейтинг на основании 120 отзывов
Дмитров
Опорный проезд 28Б
(индустриальный парк Ниагара)
Бренд "Дмитров-Дело" c 2008 года на рынке строительства в Дмитрове
Звоните 9:00 до 18:00 8 (915) 055-33-61
Бренд "Дмитров-Дело" c 2008 года на рынке строительства в Дмитрове

Авторский проект «Нантай»

Стоимость проекта от:
69 750 ₽
БЕСПЛАТНО! ПРИ ЗАКАЗЕ СТРОИТЕЛЬСТВА
Стоимость строительства от:
10 832 400 ₽
Артикул ART-6077
Дата 26.12.2025
Архитектурный стиль Европейский
Количество надземных этажей 2
Круглогодичное проживание Да
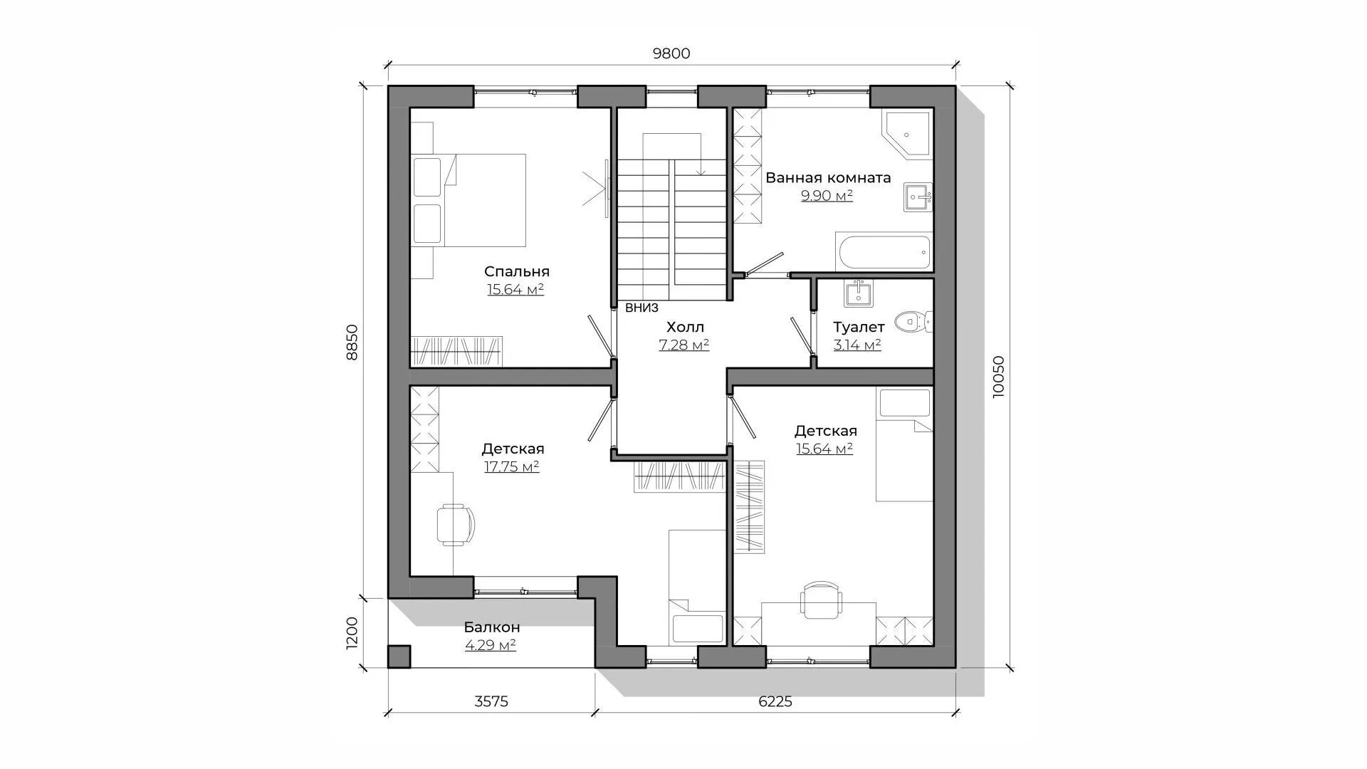
Площадь дома 155 м2
Санузлы 4
Спальни 3

Описание

Приглашаем вас открыть для себя уникальный авторский проект «Нантай» – истинное воплощение европейского стиля в компактной, но уютной, двухэтажной резиденции. Двухкратный подход к пространству создает не только функциональность, но и ощущение баланса, где каждая деталь продумана до мелочей: от изящных балконов до просторной террасы, идеально подходящей для летних вечеров и уединённых встреч с природой. Благодаря газобетонным блокам стен дома остаются тепло- и звукоизолированными, сохраняя комфорт в любое время года, а дваскатная крыша придаёт дому строгую, но элегантную внешность, напоминая классику европейского жилья. Новый «Нантай» сочетает простоту и элегантность, делая его идеальным выбором для тех, кто ценит спокойствие и эстетичность в городской среде, где важен баланс между уютом и практичностью. Терраса и балкон дают возможность наслаждаться свежим воздухом, а отсутствие прицепных гаражей и чердачных помещений освобождает пространство от лишних структур, оставляя лишь ощущение открытости и лёгкости. Вы можете организовать там уголок для чтения, небольшой садик или просто смотреть на закат, не беспокоясь о парковке. Этот дом – более чем просто жильё. Это ваш личный уголок, где каждая стена, каждый уголок пропитан заботой о комфорте и стиле. «Нантай» приглашает в мир, где европейская элегантность соединяется с современными удобствами, создавая идеальную обстановку для жизни, отдыха и семейных праздников. Приходите и убедитесь сами: здесь рождается уют, где время идёт в ритме вашей семейной гармонии.

Характеристики дома

Архитектурный стиль
Автоматизированное регулирование параметров теплоносителя
Нет
Балконы/лоджии
1
Чердачное помещение
Нет
Датчики протечки воды
Нет
Эксплуатируемая или зеленая кровля
Нет
Электроснабжение
2 варианта
Газоснабжение
2 варианта
Изоляция воздушного шума
Нет
Камин
Нет
Класс энергоэффективности
-
Класс энергосбережения
-
Количество надземных этажей
2
Круглогодичное проживание
Да
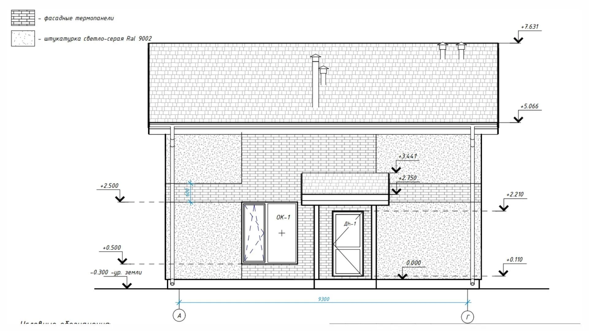
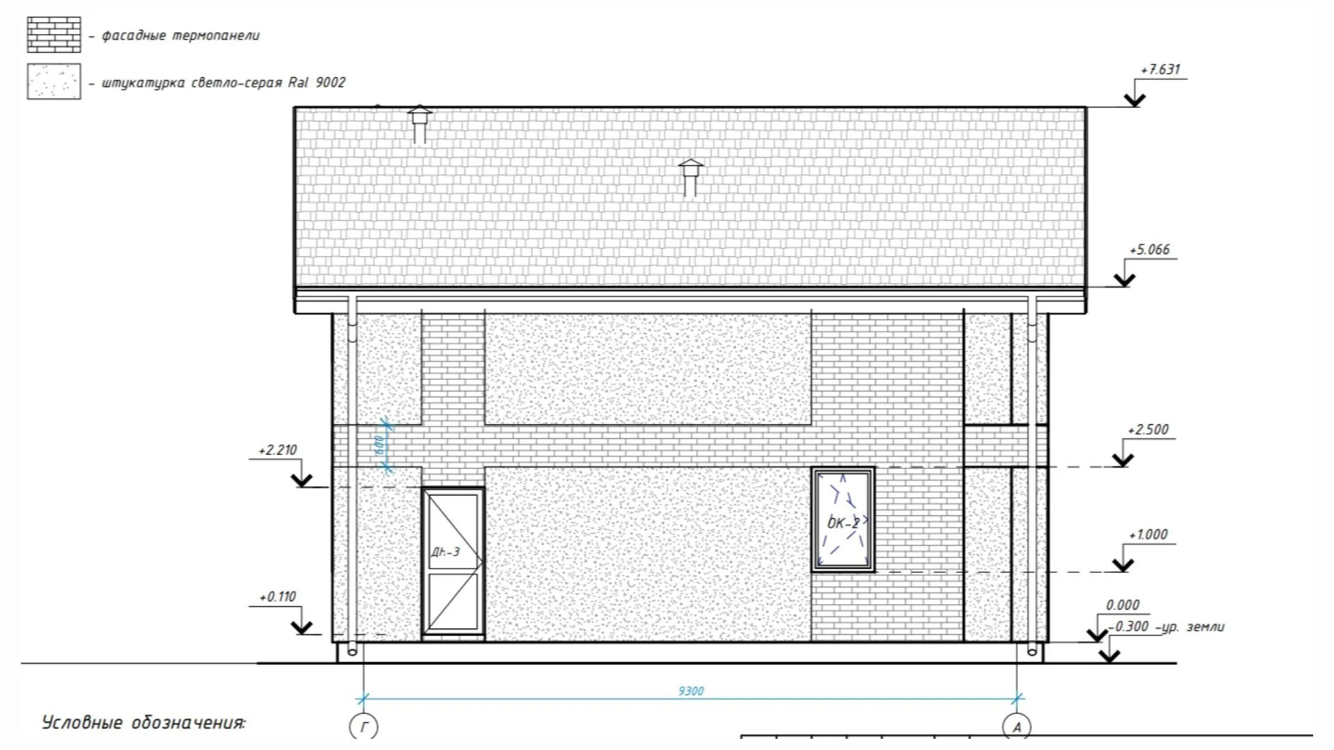
Материал кровли
Металлочерепица
Материал перекрытий
Монолитные железобетонные
Материал внешних стен
Материал внутренних перегородок
Блочные
Модульное строительство с конструкциями заводского изготовления
Нет
Объем надземной части
-
Основной материал фасадов
Штукатурка
Отопление
2 варианта
Площадь дома
155 м2
Площадь застройки
196 м2
Подвальное помещение
Нет
Показатель компактности здания
-
Приборы учета тепловой энергии
Нет
Пристроенный гараж/крытая автостоянка
Нет
Противопожарная система
Нет
Санузлы
4
Совмещенная кухня-гостиная
Да
Спальни
3
Терраса
Да
Тип фундамента
Плитный
Тип кровли
Толщина внешних стен
375 мм
Толщина внутренних перегородок
100 мм
Улучшенные шумовые характеристики
Нет
Вентиляция
2 варианта
Веранда
Нет
Водоотведение
2 варианта
Водоснабжение
2 варианта
Высота дома
8 м
Высота потолков
2.7 м

Планировка

Фасад дома

Александр

Закажите выезд инженера

Александр

Выездной инженер
Закажите выезд инженера для точной диагностики и профессиональной консультации по инженерным системам. Специалист приедет в удобное время, проведёт осмотр, рассчитает стоимость работ и подберёт оптимальные решения для вашего дома.


    Похожие проекты

    Ипотека и
    рассрочка
    Алабама
    Стоимость от:
    11 733 120
    Проект от: 75 600
    Этажей 2
    Санузлы 2
    Спальни 5
    Смотреть
    Ипотека и
    рассрочка
    125
    Стоимость от:
    9 390 700
    Проект от: 56 250
    Этажей 1
    Санузлы 2
    Спальни 3
    Смотреть
    Ипотека и
    рассрочка
    Мадрид
    Стоимость от:
    8 869 410
    Проект от: 68 850
    Этажей 1
    Санузлы 2
    Спальни 1
    Смотреть
    Ипотека и
    рассрочка
    Проект «Авангад Барн»
    Стоимость от:
    10 415 900
    Проект от: 76 500
    Этажей 1
    Санузлы 3
    Спальни 4
    Смотреть
    Ипотека и
    рассрочка
    Проект ИЖД 35-08-2022-АР
    Стоимость от:
    8 940 580
    Проект от: 53 550
    Этажей 1
    Санузлы 1
    Спальни 3
    Смотреть
    Ипотека и
    рассрочка
    Каркасный дом по проекту Рим
    Стоимость от:
    5 217 300
    Проект от: 40 500
    Этажей 1
    Санузлы 1
    Спальни 3
    Смотреть

    Как узнать стоимость дома

    back
    Оставляете заявку
    Вы заполняете форму на сайте или звоните нам. Менеджер Лайвкрафт связывается с вами для уточнения деталей: тип дома, площадь, материалы, участок строительства.
    back
    Консультация и подбор решения
    Наш специалист помогает выбрать оптимальный тип дома и конструкцию с учётом бюджета, сроков и целей — будь то дом для постоянного проживания или дача.
    back
    Расчёт предварительной стоимости
    Инженер делает первичный расчёт стоимости строительства по вашим параметрам: фундамент, коробка, кровля, отделка. Вы получаете смету с разбивкой по этапам.
    back
    Корректировка и утверждение сметы
    При необходимости вносим изменения — например, замену материалов или сокращение этапов. После согласования формируется окончательная фиксированная смета.
    back
    Заключение договора и старт работ
    После утверждения сметы заключаем официальный договор с гарантией. Вы получаете прозрачный график и точную стоимость — без скрытых расходов.

    Заказать конусльтацию по:Авторский проект «Нантай»

    Фото 1 Авторский проект «Нантай»


      Наши
      контакты

      Дмитров
      Опорный проезд 28Б
      (индустриальный парк Ниагара)
      9:00 до 18:00

      Корзина