4.9
Рейтинг на основании 120 отзывов
Дмитров
Опорный проезд 28Б
(индустриальный парк Ниагара)
Бренд "Дмитров-Дело" c 2008 года на рынке строительства в Дмитрове
Звоните 9:00 до 18:00 8 (915) 055-33-61
Бренд "Дмитров-Дело" c 2008 года на рынке строительства в Дмитрове

Авторский проект «Сапун»

Стоимость проекта от:
48 600 ₽
Стоимость строительства от:
7 626 960 ₽
Артикул ART-6399
Дата 26.12.2025
Архитектурный стиль Американский/Канадский
Количество надземных этажей 1
Круглогодичное проживание Да
Площадь дома 108 м2
Санузлы 1
Спальни 3

Описание

**Добро пожаловать в «Сапун» – ваш уголок уюта и современного дизайна** Эта авторская односепельная резиденция воплощает тепло и простоту американского/канадского архитектурного стиля. Просторные открытые помещения придают дому ощущение свободы, а изысканный внешний облик из газобетонных блоков дарит надежную защиту от холода и непогоды на протяжении всего года. Благодаря продуманному планированию вы всегда будете чувствовать себя словно дома, даже в самые суровые зимы. В «Сапун» нет лишних отвлечений: балконы, веранда и прицепленный гараж не предусмотрены, а всё, что действительно важно, сосредоточено в одной уютной зоне. Двускатная кровля с современной крышей обеспечивает естественную вентиляцию и защиту от атмосферных воздействий, а большая терраса становится идеальным местом для вечеров с семьей или друзей—здесь каждый вдох наполняется свежим ветром и лёгким запахом сосны. Жить в «Сапун» — значит наслаждаться простотой, комфортом и эстетикой. Простое, но элегантное решение для тех, кто хочет жить в гармонии с природой и при этом не отказываться от современных удобств. Если вы ищете место, где можно отдохнуть и почувствовать себя дома без компромиссов, этот дом – ваш идеальный выбор.

Характеристики дома

Архитектурный стиль
Американский/Канадский
Автоматизированное регулирование параметров теплоносителя
Нет
Балконы/лоджии
Отсутствуют
Чердачное помещение
Нет
Датчики протечки воды
Нет
Эксплуатируемая или зеленая кровля
Нет
Электроснабжение
2 варианта
Газоснабжение
2 варианта
Изоляция воздушного шума
Нет
Камин
Нет
Класс энергоэффективности
-
Класс энергосбережения
-
Количество надземных этажей
1
Круглогодичное проживание
Да
Материал кровли
Металлочерепица
Материал перекрытий
Монолитные железобетонные
Материал внешних стен
Газобетонные блоки
Материал внутренних перегородок
Блочные
Модульное строительство с конструкциями заводского изготовления
Нет
Объем надземной части
-
Основной материал фасадов
Штукатурка
Отопление
2 варианта
Площадь дома
108 м2
Площадь застройки
131 м2
Подвальное помещение
Нет
Показатель компактности здания
-
Приборы учета тепловой энергии
Нет
Пристроенный гараж/крытая автостоянка
Нет
Противопожарная система
Нет
Санузлы
1
Совмещенная кухня-гостиная
Да
Спальни
3
Терраса
Да
Тип фундамента
Плитный
Тип кровли
Двускатная
Толщина внешних стен
375 мм
Толщина внутренних перегородок
100 мм
Улучшенные шумовые характеристики
Нет
Вентиляция
2 варианта
Веранда
Нет
Водоотведение
2 варианта
Водоснабжение
2 варианта
Высота дома
6.8 м
Высота потолков
2.7 м

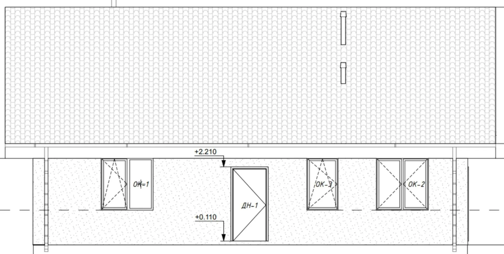
Планировка

Фасад дома

Александр

Закажите выезд инженера

Александр

Выездной инженер
Закажите выезд инженера для точной диагностики и профессиональной консультации по инженерным системам. Специалист приедет в удобное время, проведёт осмотр, рассчитает стоимость работ и подберёт оптимальные решения для вашего дома.


    Похожие проекты

    Ипотека и
    рассрочка
    Дом из клееного бруса «Златоуст»
    Стоимость от:
    8 871 480
    Проект от: 61 650
    Этажей 2
    Санузлы 3
    Спальни 3
    Смотреть
    Ипотека и
    рассрочка
    Дом из CLT «Озерки»
    Стоимость от:
    1 028 280
    Проект от: 73 800
    Этажей 1
    Санузлы 3
    Спальни 3
    Смотреть
    Ипотека и
    рассрочка
    Лесной — 183
    Стоимость от:
    12 241 460
    Проект от: 73 350
    Этажей 1
    Санузлы 2
    Спальни 3
    Смотреть
    Ипотека и
    рассрочка
    Смоленск
    Стоимость от:
    4 915 080
    Проект от: 36 900
    Этажей 2
    Санузлы 1
    Спальни 3
    Смотреть
    Ипотека и
    рассрочка
    Загородный дом Барн-84
    Стоимость от:
    4 450 985
    Проект от: 34 650
    Этажей 1
    Санузлы 1
    Спальни 2
    Смотреть
    Ипотека и
    рассрочка
    ВС103
    Стоимость от:
    7 740 260
    Проект от: 46 350
    Этажей 1
    Санузлы 1
    Спальни 3
    Смотреть

    Как узнать стоимость дома

    back
    Оставляете заявку
    Вы заполняете форму на сайте или звоните нам. Менеджер Лайвкрафт связывается с вами для уточнения деталей: тип дома, площадь, материалы, участок строительства.
    back
    Консультация и подбор решения
    Наш специалист помогает выбрать оптимальный тип дома и конструкцию с учётом бюджета, сроков и целей — будь то дом для постоянного проживания или дача.
    back
    Расчёт предварительной стоимости
    Инженер делает первичный расчёт стоимости строительства по вашим параметрам: фундамент, коробка, кровля, отделка. Вы получаете смету с разбивкой по этапам.
    back
    Корректировка и утверждение сметы
    При необходимости вносим изменения — например, замену материалов или сокращение этапов. После согласования формируется окончательная фиксированная смета.
    back
    Заключение договора и старт работ
    После утверждения сметы заключаем официальный договор с гарантией. Вы получаете прозрачный график и точную стоимость — без скрытых расходов.

    Заказать конусльтацию по:Авторский проект «Сапун»

    Фото 1 Авторский проект «Сапун»


      Наши
      контакты

      Дмитров
      Опорный проезд 28Б
      (индустриальный парк Ниагара)
      9:00 до 18:00

      Корзина