4.9
Рейтинг на основании 120 отзывов
Дмитров
Опорный проезд 28Б
(индустриальный парк Ниагара)
Бренд "Дмитров-Дело" c 2008 года на рынке строительства в Дмитрове
Звоните 9:00 до 18:00 8 (915) 055-33-61
Бренд "Дмитров-Дело" c 2008 года на рынке строительства в Дмитрове

Барн-хаус А-128

Стоимость проекта от:
60 300 ₽
БЕСПЛАТНО! ПРИ ЗАКАЗЕ СТРОИТЕЛЬСТВА
Стоимость строительства от:
8 663 100 ₽
Артикул ART-18690
Дата 26.12.2025
Архитектурный стиль Барнхаус
Количество надземных этажей 2
Круглогодичное проживание Да
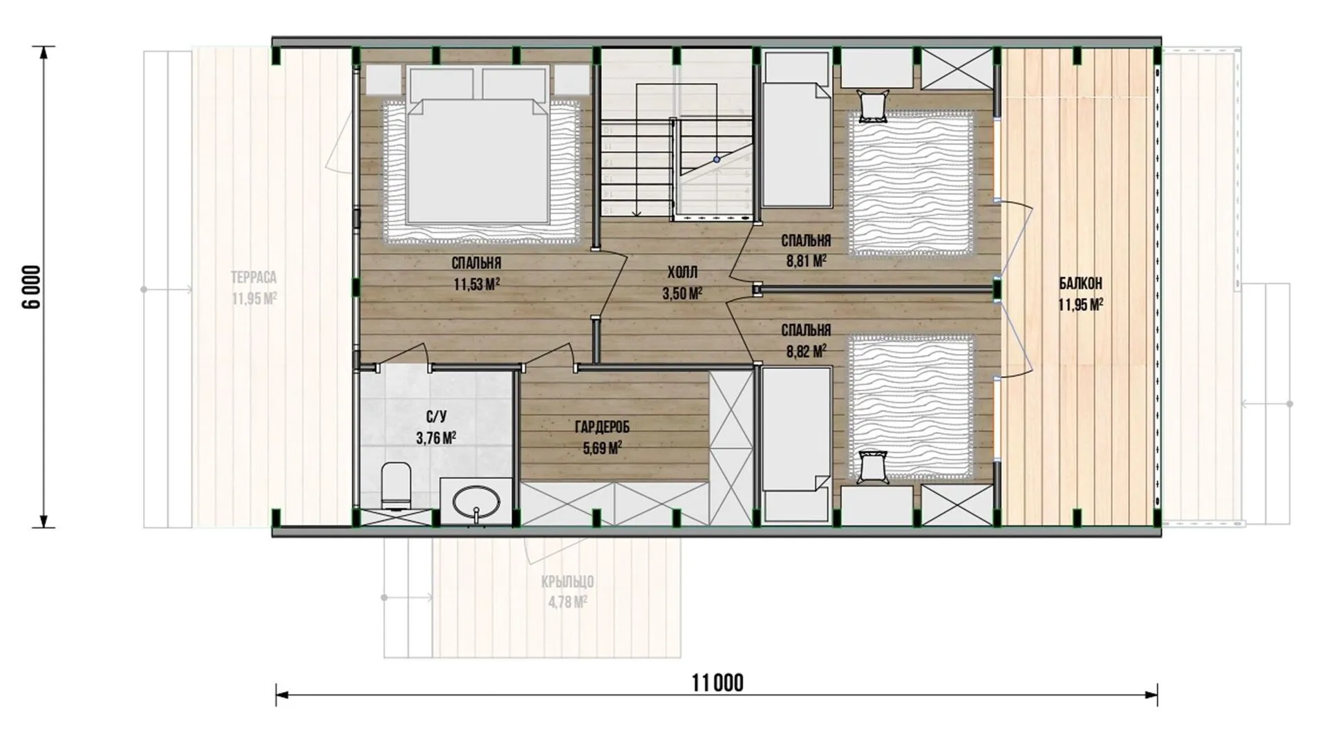
Площадь дома 134 м2
Санузлы 2
Спальни 4

Описание

Утончённый барн‑хаус А‑128 – это истинный симбиоз сельского очарования и современного комфорта. Окружённый густыми лесами и живописными полями, он хранит в себе тепло и простоту традиционных деревянных коттеджей, при этом раскрывая все преимущества жизни в целогодневном уюте. Лаконичные линии двускатной крыши подчёркивают его барн‑хаусный стиль, а изящный клейевой брус, переплетаясь под крышей, создаёт неповторимый ритм и естественность. Поэт бы не сомневался: здесь каждый уголок вдохновляет на творчество и отдых. Двухэтажная планировка располагает просторной гостиной с открытым пламени‑свечным камином, где можно проводить долгие вечера в компании друзей и семьи. Вечерние прогулки стали особенно приятными благодаря единственному балкону и обширной террасе, где можно наслаждаться закатами и звёздным небом. Несмотря на отсутствие прицепного гаража и чердачного помещения, каждый элемент этого дома продуман до мелочей, чтобы обеспечить удобство бытия без лишних компромиссов. Внутреннее пространство легко адаптируется под любые потребности, будь то уютный домашний офис, отдельная мастерская или современная открытая кухня со столовой. Барн‑хаус А‑128 приглашает почувствовать, как слияние традиций и современности создаёт идеальное место для жизни. Этот дом – не просто жильё, а стиль жизни, где каждый день начинается с вдохновения и завершается домашним уютом. Позвольте себе открыть дверь в мир, где красота природы встречается с изысканным дизайном, а каждый уголок наполняется теплом и гармонией.

Характеристики дома

Архитектурный стиль
Автоматизированное регулирование параметров теплоносителя
Да
Балконы/лоджии
1
Чердачное помещение
Нет
Датчики протечки воды
Да
Эксплуатируемая или зеленая кровля
Нет
Электроснабжение
Центральное
Газоснабжение
2 варианта
Изоляция воздушного шума
Да
Камин
Нет
Класс энергоэффективности
A+
Класс энергосбережения
A+
Количество надземных этажей
2
Круглогодичное проживание
Да
Материал кровли
Фальцевая кровля кровля из оцинкованных стальных листов
Материал перекрытий
Деревянные
Материал внешних стен
Материал внутренних перегородок
Деревянные
Модульное строительство с конструкциями заводского изготовления
Нет
Объем надземной части
-
Основной материал фасадов
Дерево
Отопление
Центральное
Площадь дома
134 м2
Площадь застройки
90 м2
Подвальное помещение
Нет
Показатель компактности здания
0.59
Приборы учета тепловой энергии
Да
Пристроенный гараж/крытая автостоянка
Нет
Противопожарная система
Нет
Санузлы
2
Совмещенная кухня-гостиная
Да
Спальни
4
Терраса
Да
Тип фундамента
Свайно-винтовой
Тип кровли
Толщина внешних стен
250 мм
Толщина внутренних перегородок
100 мм
Улучшенные шумовые характеристики
Да
Вентиляция
Естественная
Веранда
Нет
Водоотведение
Локальные очистные сооружения
Водоснабжение
Центральное
Высота дома
-
Высота потолков
2.9 м

Планировка

Фасад дома

Александр

Закажите выезд инженера

Александр

Выездной инженер
Закажите выезд инженера для точной диагностики и профессиональной консультации по инженерным системам. Специалист приедет в удобное время, проведёт осмотр, рассчитает стоимость работ и подберёт оптимальные решения для вашего дома.


    Похожие проекты

    Ипотека и
    рассрочка
    Одноэтажный Дом
    Стоимость от:
    6 464 920
    Проект от: 38 700
    Этажей 1
    Санузлы 1
    Спальни 3
    Смотреть
    Ипотека и
    рассрочка
    Одноэтажный дом FIXPLANS — 2132
    Стоимость от:
    244 420
    Проект от: 45 450
    Этажей 1
    Санузлы 2
    Спальни 2
    Смотреть
    Ипотека и
    рассрочка
    EFFECT LIGHT 88
    Стоимость от:
    5 689 200
    Проект от: 39 600
    Этажей 2
    Санузлы 2
    Спальни 3
    Смотреть
    Ипотека и
    рассрочка
    Кудиново
    Стоимость от:
    10 281 360
    Проект от: 71 550
    Этажей 2
    Санузлы 2
    Спальни 5
    Смотреть
    Ипотека и
    рассрочка
    Загородный дом с террасой -115
    Стоимость от:
    6 647 575
    Проект от: 51 750
    Этажей 1
    Санузлы 2
    Спальни 2
    Смотреть
    Ипотека и
    рассрочка
    Л-107 Comfort
    Стоимость от:
    8 005 140
    Проект от: 52 650
    Этажей 1
    Санузлы 2
    Спальни 3
    Смотреть

    Как узнать стоимость дома

    back
    Оставляете заявку
    Вы заполняете форму на сайте или звоните нам. Менеджер Лайвкрафт связывается с вами для уточнения деталей: тип дома, площадь, материалы, участок строительства.
    back
    Консультация и подбор решения
    Наш специалист помогает выбрать оптимальный тип дома и конструкцию с учётом бюджета, сроков и целей — будь то дом для постоянного проживания или дача.
    back
    Расчёт предварительной стоимости
    Инженер делает первичный расчёт стоимости строительства по вашим параметрам: фундамент, коробка, кровля, отделка. Вы получаете смету с разбивкой по этапам.
    back
    Корректировка и утверждение сметы
    При необходимости вносим изменения — например, замену материалов или сокращение этапов. После согласования формируется окончательная фиксированная смета.
    back
    Заключение договора и старт работ
    После утверждения сметы заключаем официальный договор с гарантией. Вы получаете прозрачный график и точную стоимость — без скрытых расходов.

    Заказать конусльтацию по:Барн-хаус А-128

    Фото 1 Барн-хаус А-128


      Наши
      контакты

      Дмитров
      Опорный проезд 28Б
      (индустриальный парк Ниагара)
      9:00 до 18:00

      Корзина