4.9
Рейтинг на основании 120 отзывов
Дмитров
Опорный проезд 28Б
(индустриальный парк Ниагара)
Бренд "Дмитров-Дело" c 2008 года на рынке строительства в Дмитрове
Звоните 9:00 до 18:00 8 (915) 055-33-61
Бренд "Дмитров-Дело" c 2008 года на рынке строительства в Дмитрове

Барн с антресолью и террасой

Стоимость проекта от:
49 050 ₽
БЕСПЛАТНО! ПРИ ЗАКАЗЕ СТРОИТЕЛЬСТВА
Стоимость строительства от:
7 766 160 ₽
Артикул ART-15303
Дата 25.12.2025
Архитектурный стиль Барнхаус
Количество надземных этажей 2
Круглогодичное проживание Да
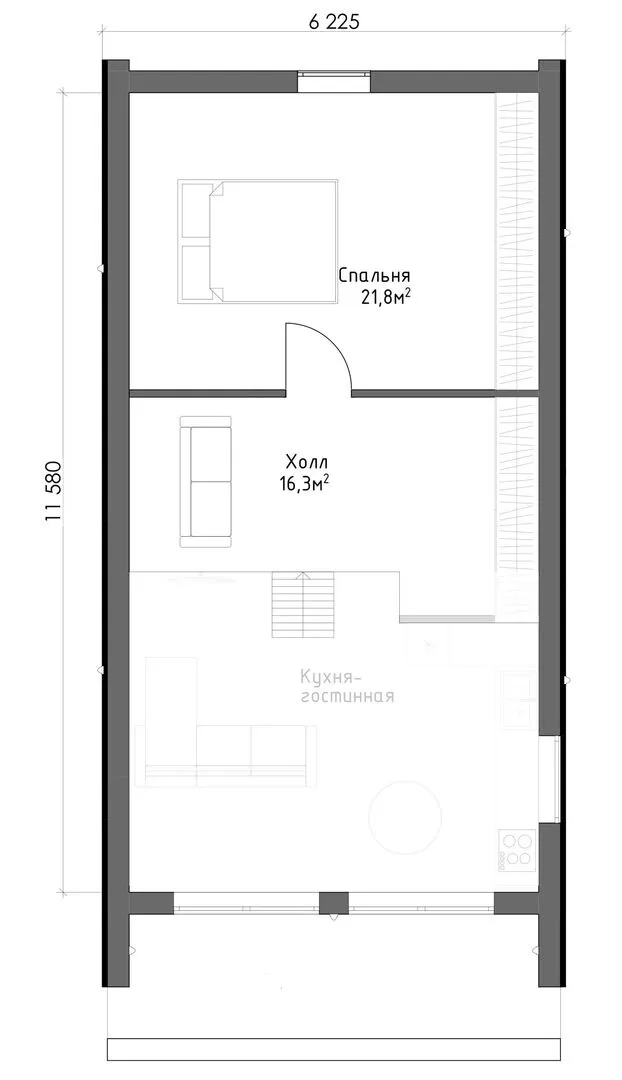
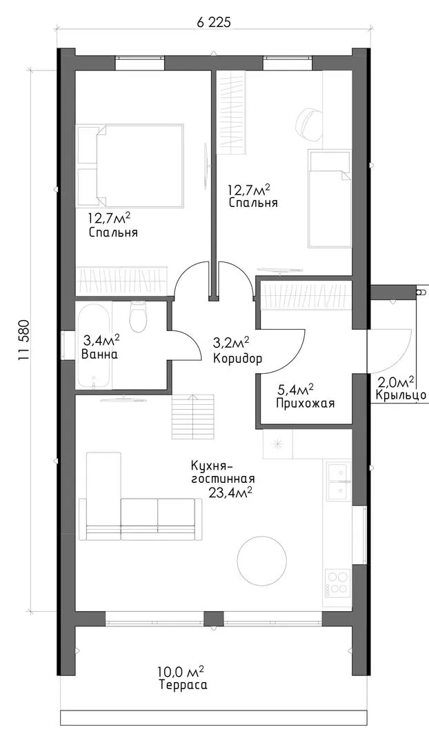
Площадь дома 109 м2
Санузлы 1
Спальни 3

Описание

Наслаждайтесь свежим воздухом и уютом под открытым небом в нашей уникальной барнхус-стилевой резиденции, где современность сочетается с романтикой сельского быта. Дом занимает два надземных этажа, выполненный из прочных газобетонных блоков, что гарантирует тепло и звукоизоляцию даже в самые прохладные зимние полдня. Двускатная крыша придает фасаду живой, динамичный вид, словно раскрывая перед вами простор и свободу. Особой гордостью проекта является просторная антресоль с мягкой освещённой площадкой, где можно организовать уголок для чтения, студию творчества или уютный вечерний лаунж с видом на закат. Тихая, уединённая терраса открывает доступ к живописному парку, где вы можете наслаждаться завтраками на свежем воздухе, проводя яркие летние вечера в окружении зелёных насаждений и легкого ветерка. Это место, где каждый квадратный метр продуман до мелочей, а детали говорят о вашем вкусе и стремлении к гармонии между простотой и комфортом.

Характеристики дома

Архитектурный стиль
Автоматизированное регулирование параметров теплоносителя
Нет
Балконы/лоджии
Отсутствуют
Чердачное помещение
Нет
Датчики протечки воды
Нет
Эксплуатируемая или зеленая кровля
Нет
Электроснабжение
Центральное
Газоснабжение
Индивидуальное
Изоляция воздушного шума
Нет
Камин
Нет
Класс энергоэффективности
-
Класс энергосбережения
-
Количество надземных этажей
2
Круглогодичное проживание
Да
Материал кровли
Фальцевая кровля из цинковых листов
Материал перекрытий
Деревянные
Материал внешних стен
Материал внутренних перегородок
Блочные
Модульное строительство с конструкциями заводского изготовления
Нет
Объем надземной части
400 м3
Основной материал фасадов
Фальцевая кровля кликфальц
Отопление
Индивидуальное
Площадь дома
109 м2
Площадь застройки
131 м2
Подвальное помещение
Нет
Показатель компактности здания
-
Приборы учета тепловой энергии
Нет
Пристроенный гараж/крытая автостоянка
Нет
Противопожарная система
Нет
Санузлы
1
Совмещенная кухня-гостиная
Да
Спальни
3
Терраса
Да
Тип фундамента
Свайно-ростверковый
Тип кровли
Толщина внешних стен
300 мм
Толщина внутренних перегородок
100 мм
Улучшенные шумовые характеристики
Нет
Вентиляция
Естественная
Веранда
Нет
Водоотведение
Локальные очистные сооружения
Водоснабжение
Индивидуальное
Высота дома
6 м
Высота потолков
2.7 м

Планировка

Фасад дома

Александр

Закажите выезд инженера

Александр

Выездной инженер
Закажите выезд инженера для точной диагностики и профессиональной консультации по инженерным системам. Специалист приедет в удобное время, проведёт осмотр, рассчитает стоимость работ и подберёт оптимальные решения для вашего дома.


    Похожие проекты

    Ипотека и
    рассрочка
    Проект ЕР-120
    Стоимость от:
    6 416 880
    Проект от: 48 150
    Этажей 2
    Санузлы 2
    Спальни 4
    Смотреть
    Ипотека и
    рассрочка
    Дом из профилированного бруса с террасой
    Стоимость от:
    9 015 600
    Проект от: 54 000
    Этажей 1
    Санузлы 1
    Спальни 3
    Смотреть
    Ипотека и
    рассрочка
    Аристократ 187
    Стоимость от:
    12 787 920
    Проект от: 82 350
    Этажей 2
    Санузлы 2
    Спальни 4
    Смотреть
    Ипотека и
    рассрочка
    УГЛОВОЙ БАРНХАУС 131.2м2
    Стоимость от:
    8 242 520
    Проект от: 58 950
    Этажей 1
    Санузлы 2
    Спальни 3
    Смотреть
    Ипотека и
    рассрочка
    S.Dom-112,5-2/2
    Стоимость от:
    6 085 560
    Проект от: 42 300
    Этажей 2
    Санузлы 1
    Спальни 3
    Смотреть
    Ипотека и
    рассрочка
    СД_6159
    Стоимость от:
    6 949 440
    Проект от: 43 200
    Этажей 2
    Санузлы 2
    Спальни 3
    Смотреть

    Как узнать стоимость дома

    back
    Оставляете заявку
    Вы заполняете форму на сайте или звоните нам. Менеджер Лайвкрафт связывается с вами для уточнения деталей: тип дома, площадь, материалы, участок строительства.
    back
    Консультация и подбор решения
    Наш специалист помогает выбрать оптимальный тип дома и конструкцию с учётом бюджета, сроков и целей — будь то дом для постоянного проживания или дача.
    back
    Расчёт предварительной стоимости
    Инженер делает первичный расчёт стоимости строительства по вашим параметрам: фундамент, коробка, кровля, отделка. Вы получаете смету с разбивкой по этапам.
    back
    Корректировка и утверждение сметы
    При необходимости вносим изменения — например, замену материалов или сокращение этапов. После согласования формируется окончательная фиксированная смета.
    back
    Заключение договора и старт работ
    После утверждения сметы заключаем официальный договор с гарантией. Вы получаете прозрачный график и точную стоимость — без скрытых расходов.

    Заказать конусльтацию по:Барн с антресолью и террасой

    Фото 1 Барн с антресолью и террасой


      Наши
      контакты

      Дмитров
      Опорный проезд 28Б
      (индустриальный парк Ниагара)
      9:00 до 18:00

      Корзина