4.9
Рейтинг на основании 120 отзывов
Дмитров
Опорный проезд 28Б
(индустриальный парк Ниагара)
Бренд "Дмитров-Дело" c 2008 года на рынке строительства в Дмитрове
Звоните 9:00 до 18:00 8 (915) 055-33-61
Бренд "Дмитров-Дело" c 2008 года на рынке строительства в Дмитрове

БАРН Серия 90

Стоимость проекта от:
41 400 ₽
БЕСПЛАТНО! ПРИ ЗАКАЗЕ СТРОИТЕЛЬСТВА
Стоимость строительства от:
5 115 660 ₽
Артикул ART-19380
Дата 26.12.2025
Архитектурный стиль Барнхаус
Количество надземных этажей 1
Круглогодичное проживание Да
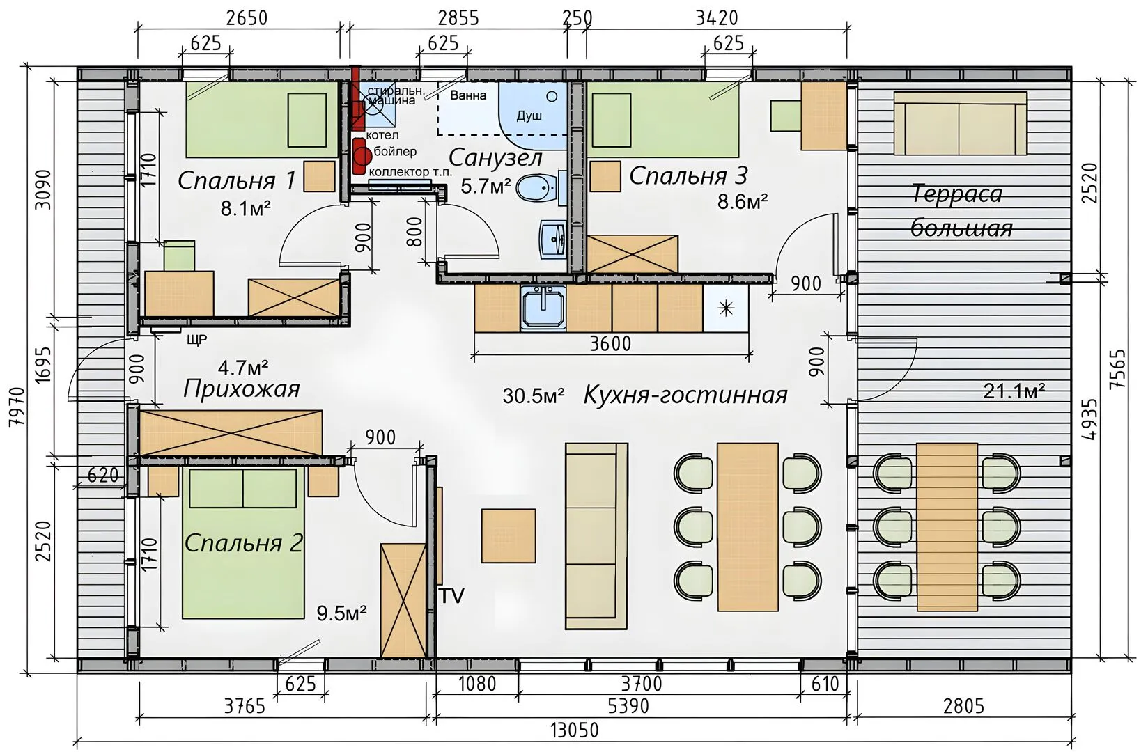
Площадь дома 92 м2
Санузлы 1
Спальни 3

Описание

Вдохновляющее сочетание природы и современности встречает вас с первых шагов к дому из серии **Barn 90**. Это уютный одноуровневый загородный уголок, где каждый сантиметр пропитан спокойствием и лёгкостью. Стеклянные окна открывают яркие виды на живописные ландшафты, придавая внутреннему пространству ощущение простора и воздушности. Гибкая планировка, выполненная в стиле барнхаус, сохраняет аутентичность, при этом дарит функциональность и современный комфорт. Собственный участок окружен живописными садами, а просторная терраса приглашает к беседам и уединённым вечерам за чашкой кофе. Фасад, выполненный из прочного деревянного каркаса, словно одевает дом в естественную «шкуру природы», придавая ему тёплый и гармоничный вид. Двускатная крыша добавляет традиционного шарма, а строгие линии создают современную эстетическую привлекательность. Внутри – открытая кухня с гостиной, где свет льётся через большие окна, а мягкие деревянные детали создают атмосферу уюта и уединения. Ключевые преимущества: круглогодичное проживание гарантирует комфорт в любое время, отсутствие лишних балконов и веранд, а наличие удобной террасы делает ваш дом идеальным для отдыха на свежем воздухе. Присутствие гаража к сожалению отсутствует, но это лишь подчёркивает идиллическую атмосферу сельского отдыха. Дом — это более чем жилище: это ваш личный оазис, где каждая деталь подбиралась так, чтобы дарить вам вдохновение и удовольствие каждый день.

Характеристики дома

Архитектурный стиль
Автоматизированное регулирование параметров теплоносителя
Да
Балконы/лоджии
Отсутствуют
Чердачное помещение
Нет
Датчики протечки воды
Нет
Эксплуатируемая или зеленая кровля
Нет
Электроснабжение
Центральное
Газоснабжение
Не предусмотрено
Изоляция воздушного шума
Да
Камин
Нет
Класс энергоэффективности
-
Класс энергосбережения
-
Количество надземных этажей
1
Круглогодичное проживание
Да
Материал кровли
Металлические листовые гофрированные профили
Материал перекрытий
Деревянные
Материал внешних стен
Материал внутренних перегородок
Гипсокартонные
Модульное строительство с конструкциями заводского изготовления
Нет
Объем надземной части
290 м3
Основной материал фасадов
Дерево
Отопление
Индивидуальное
Площадь дома
92 м2
Площадь застройки
103 м2
Подвальное помещение
Нет
Показатель компактности здания
-
Приборы учета тепловой энергии
Нет
Пристроенный гараж/крытая автостоянка
Нет
Противопожарная система
Нет
Санузлы
1
Совмещенная кухня-гостиная
Да
Спальни
3
Терраса
Да
Тип фундамента
Свайно-винтовой
Тип кровли
Толщина внешних стен
300 мм
Толщина внутренних перегородок
200 мм
Улучшенные шумовые характеристики
Нет
Вентиляция
Рекуперация
Веранда
Нет
Водоотведение
Локальные очистные сооружения
Водоснабжение
Индивидуальное
Высота дома
4.2 м
Высота потолков
3.2 м

Планировка

Фасад дома

Александр

Закажите выезд инженера

Александр

Выездной инженер
Закажите выезд инженера для точной диагностики и профессиональной консультации по инженерным системам. Специалист приедет в удобное время, проведёт осмотр, рассчитает стоимость работ и подберёт оптимальные решения для вашего дома.


    Похожие проекты

    Ипотека и
    рассрочка
    ФД 64
    Стоимость от:
    4 125 550
    Проект от: 29 250
    Этажей 1
    Санузлы 2
    Спальни 3
    Смотреть
    Ипотека и
    рассрочка
    Одноэтажный дом Д-132 Мила
    Стоимость от:
    9 625 440
    Проект от: 59 400
    Этажей 1
    Санузлы 2
    Спальни 3
    Смотреть
    Ипотека и
    рассрочка
    Одноэтажный дом НКвД-002_97_к
    Стоимость от:
    6 316 640
    Проект от: 43 650
    Этажей 1
    Санузлы 2
    Спальни 2
    Смотреть
    Ипотека и
    рассрочка
    Одноэтажный дом LIFE 110
    Стоимость от:
    5 815 700
    Проект от: 38 250
    Этажей 1
    Санузлы 1
    Спальни 2
    Смотреть
    Ипотека и
    рассрочка
    Одноэтажный дом СКАЙ-97
    Стоимость от:
    6 850 140
    Проект от: 43 650
    Этажей 1
    Санузлы 2
    Спальни 3
    Смотреть
    Ипотека и
    рассрочка
    Кипарис — 74
    Стоимость от:
    4 032 930
    Проект от: 29 700
    Этажей 1
    Санузлы 1
    Спальни 2
    Смотреть

    Как узнать стоимость дома

    back
    Оставляете заявку
    Вы заполняете форму на сайте или звоните нам. Менеджер Лайвкрафт связывается с вами для уточнения деталей: тип дома, площадь, материалы, участок строительства.
    back
    Консультация и подбор решения
    Наш специалист помогает выбрать оптимальный тип дома и конструкцию с учётом бюджета, сроков и целей — будь то дом для постоянного проживания или дача.
    back
    Расчёт предварительной стоимости
    Инженер делает первичный расчёт стоимости строительства по вашим параметрам: фундамент, коробка, кровля, отделка. Вы получаете смету с разбивкой по этапам.
    back
    Корректировка и утверждение сметы
    При необходимости вносим изменения — например, замену материалов или сокращение этапов. После согласования формируется окончательная фиксированная смета.
    back
    Заключение договора и старт работ
    После утверждения сметы заключаем официальный договор с гарантией. Вы получаете прозрачный график и точную стоимость — без скрытых расходов.

    Заказать конусльтацию по:БАРН Серия 90

    Фото 1 БАРН Серия 90


      Наши
      контакты

      Дмитров
      Опорный проезд 28Б
      (индустриальный парк Ниагара)
      9:00 до 18:00

      Корзина