4.9
Рейтинг на основании 120 отзывов
Дмитров
Опорный проезд 28Б
(индустриальный парк Ниагара)
Бренд "Дмитров-Дело" c 2008 года на рынке строительства в Дмитрове
Звоните 9:00 до 18:00 8 (915) 055-33-61
Бренд "Дмитров-Дело" c 2008 года на рынке строительства в Дмитрове

Barnhouse ВН 502 Макс

Стоимость проекта от:
31 050 ₽
БЕСПЛАТНО! ПРИ ЗАКАЗЕ СТРОИТЕЛЬСТВА
Стоимость строительства от:
4 658 280 ₽
Артикул ART-10374
Дата 25.12.2025
Архитектурный стиль Барнхаус
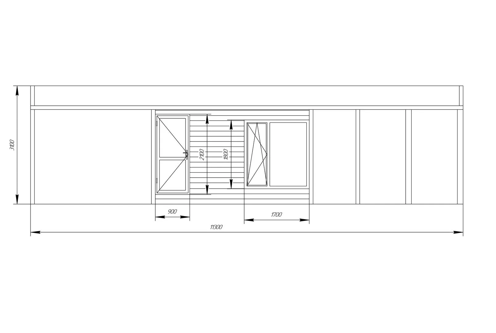
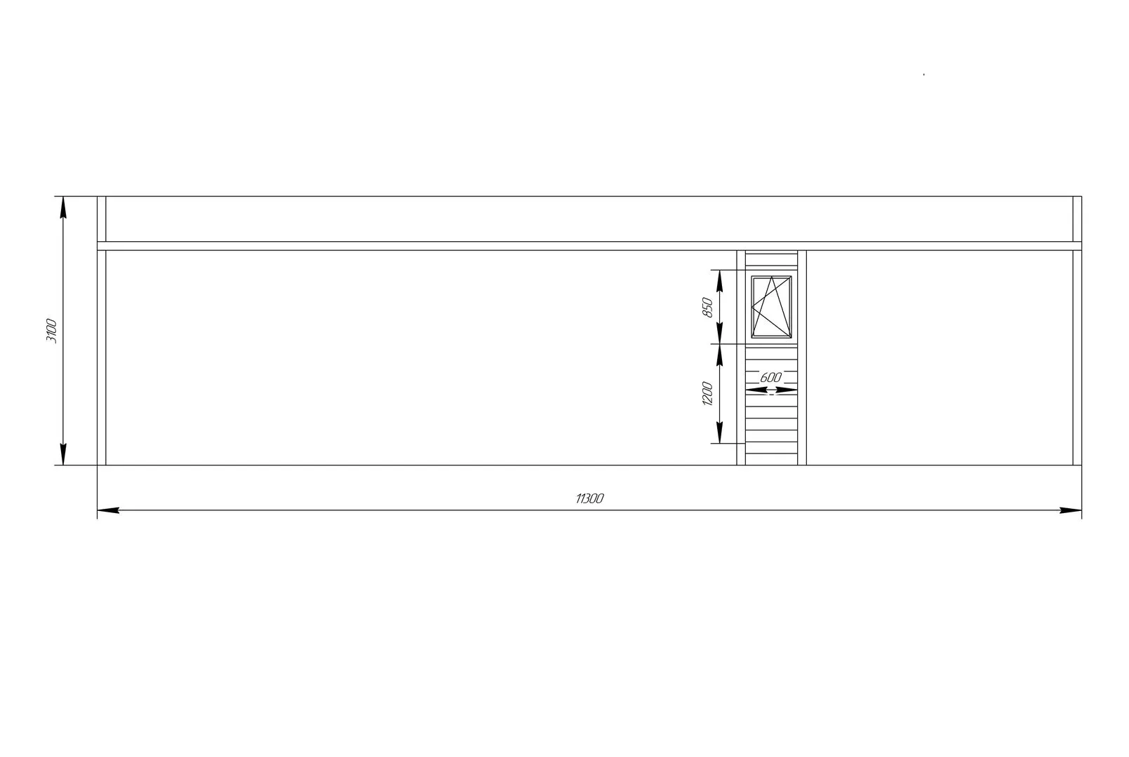
Количество надземных этажей 1
Круглогодичное проживание Да
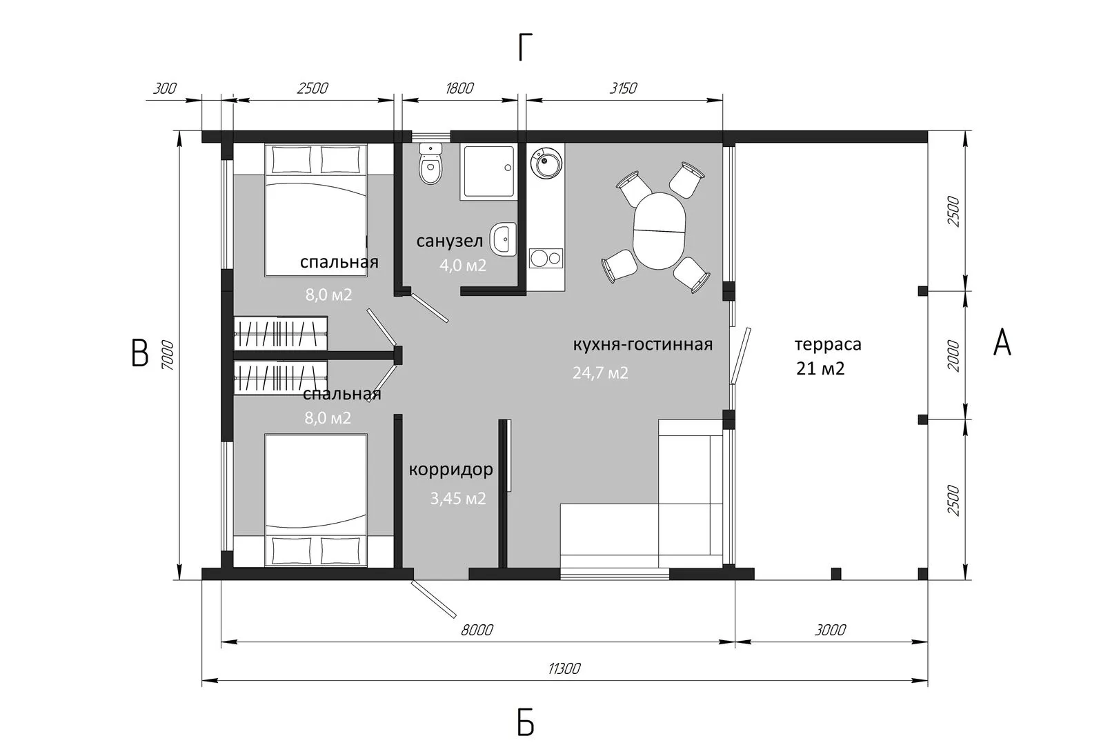
Площадь дома 69 м2
Санузлы 1
Спальни 2

Описание

**Дом Barnhouse ВН 502 Макс** – это воплощение скандинавской простоты и уюта, где каждая деталь продумана, чтобы дарить ощущение «домашнего уюта» в любое время года. Экономичная планировка на одном уровне позволяет легко обустроить пространство по своему вкусу: открытая зона кухни и гостиной создаёт идеальное место для семейных сборов, а большие окна наполняют интерьер естественным светом и открывают чудесный вид на окружающую зелёную природу. Профильные линии крыши и гармония дерева – главные атрибуты стиля «barnhouse», придающие дому вежливый, но выразительный внешний вид, а качественные древесные конструкции гарантируют долговечность и тепло. Внутри каждый уголок пропитан атмосферой спокойствия. Тёплый, светлый план – без балконов и веранд, но с просторной террасой, где можно завтракать на рассвете или пить кофе под открытым небом. Сухожитые крыши, деревянные стены в тонкие линии и ровный одноэтажный дизайн делают дом идеальным для круглогодичного проживания, легко поддающимся модернизации под индивидуальные пожелания. Присутствует всё, что нужно для комфорта: уютный спальник, функциональная кухонная зона, современная ванная и возможность обустроить небольшую мастерскую в уголке. Barnhouse ВН 502 Макс – это ваш ключ к гармоничному, устойчивому дому, где классика встречается с практичностью, а каждый день начинается с улыбки, глядя в объятия природы. Забудьте о суете городской жизни – откройте дверь в мир, где каждая деталь говорит «дом».

Характеристики дома

Архитектурный стиль
Автоматизированное регулирование параметров теплоносителя
Нет
Балконы/лоджии
Отсутствуют
Чердачное помещение
Нет
Датчики протечки воды
Нет
Эксплуатируемая или зеленая кровля
Нет
Электроснабжение
Центральное
Газоснабжение
Не предусмотрено
Изоляция воздушного шума
Да
Камин
Нет
Класс энергоэффективности
-
Класс энергосбережения
-
Количество надземных этажей
1
Круглогодичное проживание
Да
Материал кровли
Металлические листовые гофрированные профили
Материал перекрытий
Деревянные
Материал внешних стен
Материал внутренних перегородок
Деревянные
Модульное строительство с конструкциями заводского изготовления
Нет
Объем надземной части
-
Основной материал фасадов
Планкен
Отопление
Индивидуальное
Площадь дома
69 м2
Площадь застройки
79 м2
Подвальное помещение
Нет
Показатель компактности здания
-
Приборы учета тепловой энергии
Нет
Пристроенный гараж/крытая автостоянка
Нет
Противопожарная система
Нет
Санузлы
1
Совмещенная кухня-гостиная
Да
Спальни
2
Терраса
Да
Тип фундамента
Свайно-ростверковый
Тип кровли
Толщина внешних стен
270 мм
Толщина внутренних перегородок
120 мм
Улучшенные шумовые характеристики
Нет
Вентиляция
Принудительная
Веранда
Нет
Водоотведение
Локальные очистные сооружения
Водоснабжение
Индивидуальное
Высота дома
3.1 м
Высота потолков
2.8 м

Планировка

Фасад дома

Александр

Закажите выезд инженера

Александр

Выездной инженер
Закажите выезд инженера для точной диагностики и профессиональной консультации по инженерным системам. Специалист приедет в удобное время, проведёт осмотр, рассчитает стоимость работ и подберёт оптимальные решения для вашего дома.


    Похожие проекты

    Ипотека и
    рассрочка
    Дом хайтэк 1 этаж 112
    Стоимость от:
    6 978 840
    Проект от: 45 900
    Этажей 1
    Санузлы 2
    Спальни 2
    Смотреть
    Ипотека и
    рассрочка
    Проект загородного дома NHD-176
    Стоимость от:
    10 354 320
    Проект от: 64 350
    Этажей 2
    Санузлы 2
    Спальни 4
    Смотреть
    Ипотека и
    рассрочка
    Одноэтажный дом с террасой
    Стоимость от:
    10 875 480
    Проект от: 69 300
    Этажей 1
    Санузлы 2
    Спальни 3
    Смотреть
    Ипотека и
    рассрочка
    Загородный дом К-5
    Стоимость от:
    7 590 220
    Проект от: 45 450
    Этажей 1
    Санузлы 1
    Спальни 1
    Смотреть
    Ипотека и
    рассрочка
    Кирпичный дом 76 м2
    Стоимость от:
    5 714 720
    Проект от: 34 200
    Этажей 1
    Санузлы 2
    Спальни 3
    Смотреть
    Ипотека и
    рассрочка
    1005А «Остров сокровищ» — 4 спальни (мастер спальня) , терраса
    Стоимость от:
    11 468 880
    Проект от: 75 150
    Этажей 2
    Санузлы 3
    Спальни 4
    Смотреть

    Как узнать стоимость дома

    back
    Оставляете заявку
    Вы заполняете форму на сайте или звоните нам. Менеджер Лайвкрафт связывается с вами для уточнения деталей: тип дома, площадь, материалы, участок строительства.
    back
    Консультация и подбор решения
    Наш специалист помогает выбрать оптимальный тип дома и конструкцию с учётом бюджета, сроков и целей — будь то дом для постоянного проживания или дача.
    back
    Расчёт предварительной стоимости
    Инженер делает первичный расчёт стоимости строительства по вашим параметрам: фундамент, коробка, кровля, отделка. Вы получаете смету с разбивкой по этапам.
    back
    Корректировка и утверждение сметы
    При необходимости вносим изменения — например, замену материалов или сокращение этапов. После согласования формируется окончательная фиксированная смета.
    back
    Заключение договора и старт работ
    После утверждения сметы заключаем официальный договор с гарантией. Вы получаете прозрачный график и точную стоимость — без скрытых расходов.

    Заказать конусльтацию по:Barnhouse ВН 502 Макс

    Фото 1 Barnhouse ВН 502 Макс


      Наши
      контакты

      Дмитров
      Опорный проезд 28Б
      (индустриальный парк Ниагара)
      9:00 до 18:00

      Корзина