4.9
Рейтинг на основании 120 отзывов
Дмитров
Опорный проезд 28Б
(индустриальный парк Ниагара)
Бренд "Дмитров-Дело" c 2008 года на рынке строительства в Дмитрове
Звоните 9:00 до 18:00 8 (915) 055-33-61
Бренд "Дмитров-Дело" c 2008 года на рынке строительства в Дмитрове

Барнхаус 105

Стоимость проекта от:
56 700 ₽
БЕСПЛАТНО! ПРИ ЗАКАЗЕ СТРОИТЕЛЬСТВА
Стоимость строительства от:
7 927 920 ₽
Артикул ART-18077
Дата 26.12.2025
Архитектурный стиль Барнхаус
Количество надземных этажей 1
Круглогодичное проживание Да
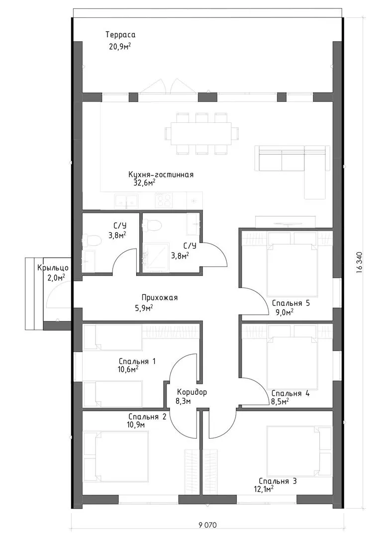
Площадь дома 126 м2
Санузлы 2
Спальни 5

Описание

Добро пожаловать в уютный барнхаус 105 – идеальное сочетание простоты, практичности и стиля. Этот одноэтажный дом, построенный из прочного деревянного каркаса, идеально подходит для круглогодичного проживания. Широкие, спокойные стены деревни с гобеленовидными окнами создают ощущение уюта, а классический двускатный крыша придаёт всей конструкции неповторимый характер. Внутреннее пространство обустроено так, чтобы каждая зона была функциональной и одновременно гостеприимной: открытая планировка гостиной позволяет свободно перемещаться и наслаждаться ярким естественным светом, а уютная кухня приглашает к творческим шоссе в мир домашнего творчества. Для любителей открытой природы и живой атмосферы придётся порадовать и просторная терраса, где можно наслаждаться свежим воздухом даже в прохладные дни. Удобное расположение в живописном районе, отсутствие ненужных балконов, веранд и прицепных гаражей делает дизайн здания простым и современным, а отсутствие чердака повышает практичность и экономию пространства. Барнхаус 105 – это не просто дом, а место, где каждая деталь продумывается, чтобы вы чувствовали себя дома уже с первых минут.

Характеристики дома

Архитектурный стиль
Автоматизированное регулирование параметров теплоносителя
Нет
Балконы/лоджии
Отсутствуют
Чердачное помещение
Нет
Датчики протечки воды
Нет
Эксплуатируемая или зеленая кровля
Нет
Электроснабжение
Центральное
Газоснабжение
Индивидуальное
Изоляция воздушного шума
Да
Камин
Нет
Класс энергоэффективности
-
Класс энергосбережения
-
Количество надземных этажей
1
Круглогодичное проживание
Да
Материал кровли
Фальцевая кровля из цинковых листов
Материал перекрытий
Деревянные
Материал внешних стен
Материал внутренних перегородок
Деревянные
Модульное строительство с конструкциями заводского изготовления
Нет
Объем надземной части
845 м3
Основной материал фасадов
Дерево
Отопление
Индивидуальное
Площадь дома
126 м2
Площадь застройки
148 м2
Подвальное помещение
Нет
Показатель компактности здания
-
Приборы учета тепловой энергии
Нет
Пристроенный гараж/крытая автостоянка
Нет
Противопожарная система
Нет
Санузлы
2
Совмещенная кухня-гостиная
Да
Спальни
5
Терраса
Да
Тип фундамента
Плитный
Тип кровли
Толщина внешних стен
200 мм
Толщина внутренних перегородок
100 мм
Улучшенные шумовые характеристики
Да
Вентиляция
Естественная
Веранда
Нет
Водоотведение
Локальные очистные сооружения
Водоснабжение
Индивидуальное
Высота дома
6.9 м
Высота потолков
4 м

Планировка

Фасад дома

Александр

Закажите выезд инженера

Александр

Выездной инженер
Закажите выезд инженера для точной диагностики и профессиональной консультации по инженерным системам. Специалист приедет в удобное время, проведёт осмотр, рассчитает стоимость работ и подберёт оптимальные решения для вашего дома.


    Похожие проекты

    Ипотека и
    рассрочка
    Гран-Парадизо
    Стоимость от:
    11 743 440
    Проект от: 76 950
    Этажей 2
    Санузлы 2
    Спальни 3
    Смотреть
    Ипотека и
    рассрочка
    Двухэтажный дом БРАИТ-33Г
    Стоимость от:
    15 842 880
    Проект от: 95 400
    Этажей 2
    Санузлы 2
    Спальни 4
    Смотреть
    Ипотека и
    рассрочка
    Двухэтажный дома Флагман мини
    Стоимость от:
    9 329 040
    Проект от: 58 950
    Этажей 2
    Санузлы 2
    Спальни 2
    Смотреть
    Ипотека и
    рассрочка
    Одноэтажный дом с террасой
    Стоимость от:
    4 519 680
    Проект от: 28 800
    Этажей 1
    Санузлы 1
    Спальни 2
    Смотреть
    Ипотека и
    рассрочка
    КЛ-102МУС
    Стоимость от:
    7 665 240
    Проект от: 45 900
    Этажей 1
    Санузлы 2
    Спальни 3
    Смотреть
    Ипотека и
    рассрочка
    Ангара
    Стоимость от:
    5 458 420
    Проект от: 38 700
    Этажей 1
    Санузлы 1
    Спальни 2
    Смотреть

    Как узнать стоимость дома

    back
    Оставляете заявку
    Вы заполняете форму на сайте или звоните нам. Менеджер Лайвкрафт связывается с вами для уточнения деталей: тип дома, площадь, материалы, участок строительства.
    back
    Консультация и подбор решения
    Наш специалист помогает выбрать оптимальный тип дома и конструкцию с учётом бюджета, сроков и целей — будь то дом для постоянного проживания или дача.
    back
    Расчёт предварительной стоимости
    Инженер делает первичный расчёт стоимости строительства по вашим параметрам: фундамент, коробка, кровля, отделка. Вы получаете смету с разбивкой по этапам.
    back
    Корректировка и утверждение сметы
    При необходимости вносим изменения — например, замену материалов или сокращение этапов. После согласования формируется окончательная фиксированная смета.
    back
    Заключение договора и старт работ
    После утверждения сметы заключаем официальный договор с гарантией. Вы получаете прозрачный график и точную стоимость — без скрытых расходов.

    Заказать конусльтацию по:Барнхаус 105

    Фото 1 Барнхаус 105


      Наши
      контакты

      Дмитров
      Опорный проезд 28Б
      (индустриальный парк Ниагара)
      9:00 до 18:00

      Корзина