4.9
Рейтинг на основании 120 отзывов
Дмитров
Опорный проезд 28Б
(индустриальный парк Ниагара)
Бренд "Дмитров-Дело" c 2008 года на рынке строительства в Дмитрове
Звоните 9:00 до 18:00 8 (915) 055-33-61
Бренд "Дмитров-Дело" c 2008 года на рынке строительства в Дмитрове

Барнхаус 63

Стоимость проекта от:
28 350 ₽
БЕСПЛАТНО! ПРИ ЗАКАЗЕ СТРОИТЕЛЬСТВА
Стоимость строительства от:
3 711 015 ₽
Артикул ART-1100
Дата 25.12.2025
Архитектурный стиль Барнхаус
Количество надземных этажей 1
Круглогодичное проживание Да
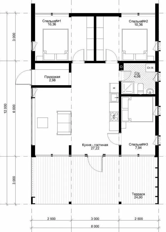
Площадь дома 63 м2
Санузлы 1
Спальни 3

Описание

**Barnhouse 63 – ваш новый дом мечты в простом, но стильном исполнении.** Этот просторный коттедж на одном уровне сочетает в себе традиционный барнхаус и современные удобства. Каркасно‑панельный корпус создаёт тепло и прочность, а двускатная крыша придаёт образу характер и элегантность. Всё, от уютных каминов до светлых просторных комнат, продумано до мелочей – каждый уголок обещает комфорт круглый год. **Комфорт и функциональность без излишних лишних деталей.** Здесь нет лишних балконов и террас, но обильная веранда открывает простору ощущение просторов загородной среды. Внутреннее планирование позволяет легко адаптировать пространство под ваши нужды – будь то семейный очаг, домашний офис или зона развлечений. Каркасно‑панельная конструкция упрощает обслуживание и гарантирует низкие эксплуатационные расходы, а отсутствие пристроенного гаража освободит место для большего количества зеленых насаждений или уютного сада. **Идеальное решение для тех, кто ищет уют и стиль в гармонии с природой.** Barnhouse 63 предлагает элегантный, но доступный вариант жилья, где каждый элемент продуман так, чтобы ваша жизнь была проще и ярче. Приглашаем вас открыть новое измерение уюта и комфорта в доме, где традиции встречаются с современностью.

Характеристики дома

Архитектурный стиль
Автоматизированное регулирование параметров теплоносителя
-
Балконы/лоджии
Отсутствуют
Чердачное помещение
Нет
Датчики протечки воды
-
Эксплуатируемая или зеленая кровля
-
Электроснабжение
Центральное
Газоснабжение
2 варианта
Изоляция воздушного шума
-
Камин
Нет
Класс энергоэффективности
-
Класс энергосбережения
-
Количество надземных этажей
1
Круглогодичное проживание
Да
Материал кровли
Стальные листовые гофрированные профили
Материал перекрытий
Деревянные
Материал внешних стен
Материал внутренних перегородок
Деревянные
Модульное строительство с конструкциями заводского изготовления
Нет
Объем надземной части
-
Основной материал фасадов
Дерево
Отопление
Индивидуальное
Площадь дома
63 м2
Площадь застройки
96 м2
Подвальное помещение
Нет
Показатель компактности здания
-
Приборы учета тепловой энергии
-
Пристроенный гараж/крытая автостоянка
Нет
Противопожарная система
Да
Санузлы
1
Совмещенная кухня-гостиная
Да
Спальни
3
Терраса
Нет
Тип фундамента
Свайно-винтовой
Тип кровли
Толщина внешних стен
200 мм
Толщина внутренних перегородок
120 мм
Улучшенные шумовые характеристики
-
Вентиляция
2 варианта
Веранда
Да
Водоотведение
2 варианта
Водоснабжение
2 варианта
Высота дома
-
Высота потолков
4 м

Планировка

Фасад дома

Информация скоро появится.

Александр

Закажите выезд инженера

Александр

Выездной инженер
Закажите выезд инженера для точной диагностики и профессиональной консультации по инженерным системам. Специалист приедет в удобное время, проведёт осмотр, рассчитает стоимость работ и подберёт оптимальные решения для вашего дома.


    Похожие проекты

    Ипотека и
    рассрочка
    Загородный дом проект М-235
    Стоимость от:
    10 290 940
    Проект от: 61 650
    Этажей 1
    Санузлы 2
    Спальни 3
    Смотреть
    Ипотека и
    рассрочка
    К150
    Стоимость от:
    10 498 800
    Проект от: 65 250
    Этажей 2
    Санузлы 3
    Спальни 4
    Смотреть
    Ипотека и
    рассрочка
    SVOI-24-2-98 Двухэтажный дом 98 кв.м.
    Стоимость от:
    7 093 920
    Проект от: 44 100
    Этажей 2
    Санузлы 2
    Спальни 3
    Смотреть
    Ипотека и
    рассрочка
    Альпийский
    Стоимость от:
    9 240 660
    Проект от: 55 350
    Этажей 1
    Санузлы 1
    Спальни 3
    Смотреть
    Ипотека и
    рассрочка
    Проект «Аксиома Барн»
    Стоимость от:
    2 915 400
    Проект от: 20 250
    Этажей 2
    Санузлы 1
    Спальни 2
    Смотреть
    Ипотека и
    рассрочка
    Одноэтажный дом S155
    Стоимость от:
    8 073 560
    Проект от: 53 100
    Этажей 1
    Санузлы 1
    Спальни 3
    Смотреть

    Как узнать стоимость дома

    back
    Оставляете заявку
    Вы заполняете форму на сайте или звоните нам. Менеджер Лайвкрафт связывается с вами для уточнения деталей: тип дома, площадь, материалы, участок строительства.
    back
    Консультация и подбор решения
    Наш специалист помогает выбрать оптимальный тип дома и конструкцию с учётом бюджета, сроков и целей — будь то дом для постоянного проживания или дача.
    back
    Расчёт предварительной стоимости
    Инженер делает первичный расчёт стоимости строительства по вашим параметрам: фундамент, коробка, кровля, отделка. Вы получаете смету с разбивкой по этапам.
    back
    Корректировка и утверждение сметы
    При необходимости вносим изменения — например, замену материалов или сокращение этапов. После согласования формируется окончательная фиксированная смета.
    back
    Заключение договора и старт работ
    После утверждения сметы заключаем официальный договор с гарантией. Вы получаете прозрачный график и точную стоимость — без скрытых расходов.

    Заказать конусльтацию по:Барнхаус 63

    Фото 1 Барнхаус 63


      Наши
      контакты

      Дмитров
      Опорный проезд 28Б
      (индустриальный парк Ниагара)
      9:00 до 18:00

      Корзина