4.9
Рейтинг на основании 120 отзывов
Дмитров
Опорный проезд 28Б
(индустриальный парк Ниагара)
Бренд "Дмитров-Дело" c 2008 года на рынке строительства в Дмитрове
Звоните 9:00 до 18:00 8 (915) 055-33-61
Бренд "Дмитров-Дело" c 2008 года на рынке строительства в Дмитрове

Барнхаус 68

Стоимость проекта от:
30 600 ₽
БЕСПЛАТНО! ПРИ ЗАКАЗЕ СТРОИТЕЛЬСТВА
Стоимость строительства от:
3 792 360 ₽
Артикул ART-6110
Дата 26.12.2025
Архитектурный стиль Барнхаус
Количество надземных этажей 1
Круглогодичное проживание Да
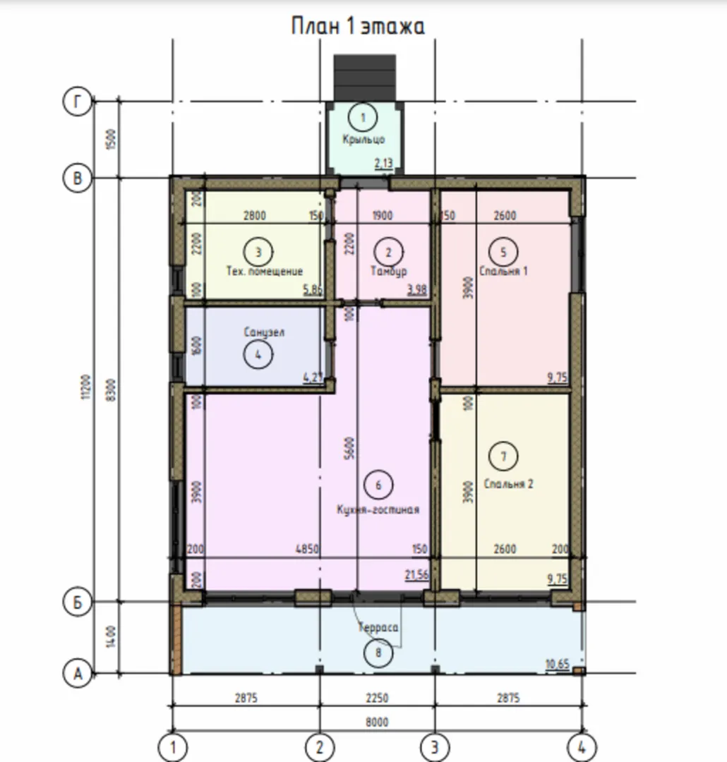
Площадь дома 68 м2
Санузлы 1
Спальни 2

Описание

**Уютный барнхаус 68 – ваш собственный уголок, где тепло и простота сливаются воедино.** Это первое жильё над землей, выполненное в винтажном стилистике барнхауса: деревянный каркас и ровная двухскатная крыша создают ощущение домашнего тепла и спокойствия. Площадь – не просто пространство, а открытая площадка для вдохновения: в зале мерцает свет, а просторные открытые стены позволяют легко переоборудовать комнаты под нужды семьи. Круглогодичное проживание гарантировано, так что даже в холодные дни можно наслаждаться теплом и уютом вашего собственного дома. **Террасная идиллия на открытом воздухе.** Ближе к дому располагается большая терраса – идеальное место для завтрака на рассвете или вечерних шезлонговых посиделок. Оставляя простор для сада, давая возможность выращивать свои плоды и травы, эта площадка превратится в ваше личное кафе под открытым небом. Несмотря на отсутствие гаража и балконов, дом открывает новые возможности: небольшая пристань рядом может стать вашим личным каяк-верфом или небольшим складским пространством. В каждой детали – гармония простоты и элегантности, которая делает барнхаус 68 идеальным выбором для тех, кто ценит душевный уют и индивидуальность своего жилища.

Характеристики дома

Архитектурный стиль
Автоматизированное регулирование параметров теплоносителя
-
Балконы/лоджии
Отсутствуют
Чердачное помещение
Нет
Датчики протечки воды
-
Эксплуатируемая или зеленая кровля
-
Электроснабжение
Центральное
Газоснабжение
Не предусмотрено
Изоляция воздушного шума
-
Камин
Нет
Класс энергоэффективности
-
Класс энергосбережения
-
Количество надземных этажей
1
Круглогодичное проживание
Да
Материал кровли
Фальцевая кровля Кликфальц
Материал перекрытий
Деревянные
Материал внешних стен
Материал внутренних перегородок
Деревянные
Модульное строительство с конструкциями заводского изготовления
Нет
Объем надземной части
271 м3
Основной материал фасадов
Фальцевая кровля кликфальц
Отопление
Индивидуальное
Площадь дома
68 м2
Площадь застройки
89 м2
Подвальное помещение
Нет
Показатель компактности здания
-
Приборы учета тепловой энергии
-
Пристроенный гараж/крытая автостоянка
Нет
Противопожарная система
Нет
Санузлы
1
Совмещенная кухня-гостиная
Да
Спальни
2
Терраса
Да
Тип фундамента
Свайный
Тип кровли
Толщина внешних стен
200 мм
Толщина внутренних перегородок
100 мм
Улучшенные шумовые характеристики
-
Вентиляция
Естественная
Веранда
Нет
Водоотведение
2 варианта
Водоснабжение
2 варианта
Высота дома
4.16 м
Высота потолков
4 м

Планировка

Фасад дома

Александр

Закажите выезд инженера

Александр

Выездной инженер
Закажите выезд инженера для точной диагностики и профессиональной консультации по инженерным системам. Специалист приедет в удобное время, проведёт осмотр, рассчитает стоимость работ и подберёт оптимальные решения для вашего дома.


    Похожие проекты

    Ипотека и
    рассрочка
    Одноэтажный дом СКАЙ-75
    Стоимость от:
    5 296 500
    Проект от: 33 750
    Этажей 1
    Санузлы 2
    Спальни 2
    Смотреть
    Ипотека и
    рассрочка
    Дом с мансардой ДБ-831
    Стоимость от:
    7 718 280
    Проект от: 52 650
    Этажей 2
    Санузлы 1
    Спальни 3
    Смотреть
    Ипотека и
    рассрочка
    Жуковского
    Стоимость от:
    5 489 660
    Проект от: 32 850
    Этажей 1
    Санузлы 1
    Спальни 3
    Смотреть
    Ипотека и
    рассрочка
    Одноэтажный дом в стиле Райта с гаражом
    Стоимость от:
    13 994 640
    Проект от: 86 400
    Этажей 1
    Санузлы 2
    Спальни 3
    Смотреть
    Ипотека и
    рассрочка
    Модульный дом FL 51 (ЩЕ51)
    Стоимость от:
    4 182 750
    Проект от: 33 750
    Этажей 1
    Санузлы 1
    Спальни 2
    Смотреть
    Ипотека и
    рассрочка
    Одноэтажный дом F-14273
    Стоимость от:
    15 901 600
    Проект от: 90 000
    Этажей 1
    Санузлы 2
    Спальни 4
    Смотреть

    Как узнать стоимость дома

    back
    Оставляете заявку
    Вы заполняете форму на сайте или звоните нам. Менеджер Лайвкрафт связывается с вами для уточнения деталей: тип дома, площадь, материалы, участок строительства.
    back
    Консультация и подбор решения
    Наш специалист помогает выбрать оптимальный тип дома и конструкцию с учётом бюджета, сроков и целей — будь то дом для постоянного проживания или дача.
    back
    Расчёт предварительной стоимости
    Инженер делает первичный расчёт стоимости строительства по вашим параметрам: фундамент, коробка, кровля, отделка. Вы получаете смету с разбивкой по этапам.
    back
    Корректировка и утверждение сметы
    При необходимости вносим изменения — например, замену материалов или сокращение этапов. После согласования формируется окончательная фиксированная смета.
    back
    Заключение договора и старт работ
    После утверждения сметы заключаем официальный договор с гарантией. Вы получаете прозрачный график и точную стоимость — без скрытых расходов.

    Заказать конусльтацию по:Барнхаус 68

    Фото 1 Барнхаус 68


      Наши
      контакты

      Дмитров
      Опорный проезд 28Б
      (индустриальный парк Ниагара)
      9:00 до 18:00

      Корзина