4.9
Рейтинг на основании 120 отзывов
Дмитров
Опорный проезд 28Б
(индустриальный парк Ниагара)
Бренд "Дмитров-Дело" c 2008 года на рынке строительства в Дмитрове
Звоните 9:00 до 18:00 8 (915) 055-33-61
Бренд "Дмитров-Дело" c 2008 года на рынке строительства в Дмитрове

Барнхаус 80

Стоимость проекта от:
37 350 ₽
БЕСПЛАТНО! ПРИ ЗАКАЗЕ СТРОИТЕЛЬСТВА
Стоимость строительства от:
200 860 ₽
Артикул ART-10965
Дата 25.12.2025
Архитектурный стиль -
Количество надземных этажей 1
Круглогодичное проживание Да
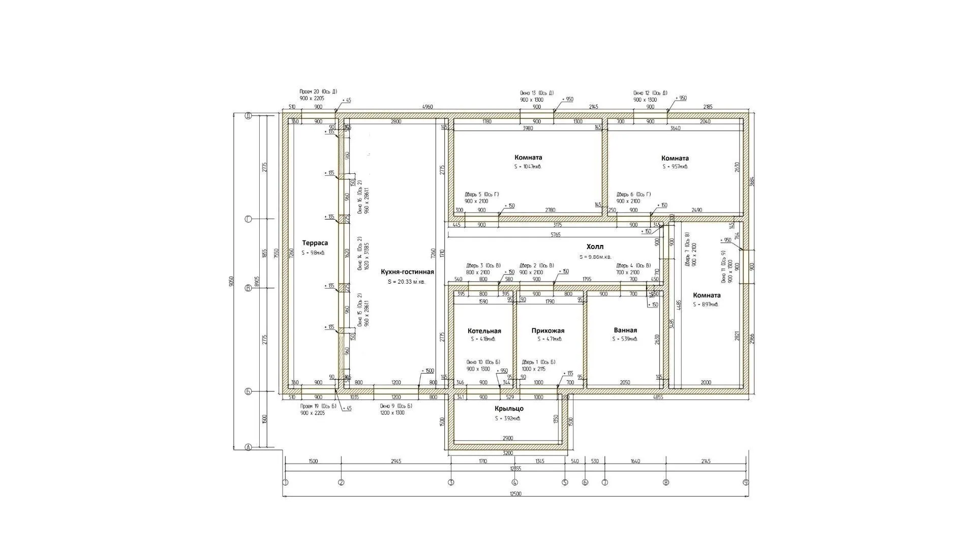
Площадь дома 83 м2
Санузлы 1
Спальни 3

Описание

Добро пожаловать в уютный Барнхаус 80 – идеальный выбор для тех, кто ценит простоту, комфорт и возможность жить в гармонии с природой в любое время года. Этот светлый и просторный одноурочный дом дарит ощущение домашнего тепла и стиля, сохраняя при этом непринужденную эстетику старых англосаксонских крестьянских усадеб. На первый взгляд кажется, что простота — это недостаток, но именно она превращается в настоящий плюс: открытая планировка, высокий потолок и лёгкая, почти ноты «птичьи шёпоты», проникающие сквозь большие окна, создают ощущение связи с открытым пространством. Барнхаус 80 – это место, где каждый день можно радоваться как веселью, наполненному солнцем, так и спокойной уютной атмосферой в холодные зимние вечера. Теплый камин, простая, но функциональная обеденная зона с изобилием естественного света, а также открытая кухня делают этот дом идеальным для семейной жизни, дружеских встреч и спокойных вечеров в компании любимых книг и ароматного кофе. Наличие просторной террасы приглашает насладиться свежим воздухом и живописным видом на окружающие просторы под открытым небом. Это дом, который позволяет забыть о суете большого города, а также напомнить о простоте истинного уюта. Убедитесь, что ваш новый стиль жизни начинается с нас!

Характеристики дома

Архитектурный стиль
-
Автоматизированное регулирование параметров теплоносителя
Да
Балконы/лоджии
Отсутствуют
Чердачное помещение
Нет
Датчики протечки воды
Нет
Эксплуатируемая или зеленая кровля
Нет
Электроснабжение
-
Газоснабжение
-
Изоляция воздушного шума
Нет
Камин
Нет
Класс энергоэффективности
-
Класс энергосбережения
-
Количество надземных этажей
1
Круглогодичное проживание
Да
Материал кровли
-
Материал перекрытий
-
Материал внешних стен
-
Материал внутренних перегородок
-
Модульное строительство с конструкциями заводского изготовления
Нет
Объем надземной части
240 м3
Основной материал фасадов
-
Отопление
-
Площадь дома
83 м2
Площадь застройки
99 м2
Подвальное помещение
Нет
Показатель компактности здания
-
Приборы учета тепловой энергии
Нет
Пристроенный гараж/крытая автостоянка
Нет
Противопожарная система
Нет
Санузлы
1
Совмещенная кухня-гостиная
Да
Спальни
3
Терраса
Да
Тип фундамента
-
Тип кровли
-
Толщина внешних стен
200 мм
Толщина внутренних перегородок
100 мм
Улучшенные шумовые характеристики
Нет
Вентиляция
-
Веранда
Нет
Водоотведение
-
Водоснабжение
-
Высота дома
5 м
Высота потолков
2.5 м

Планировка

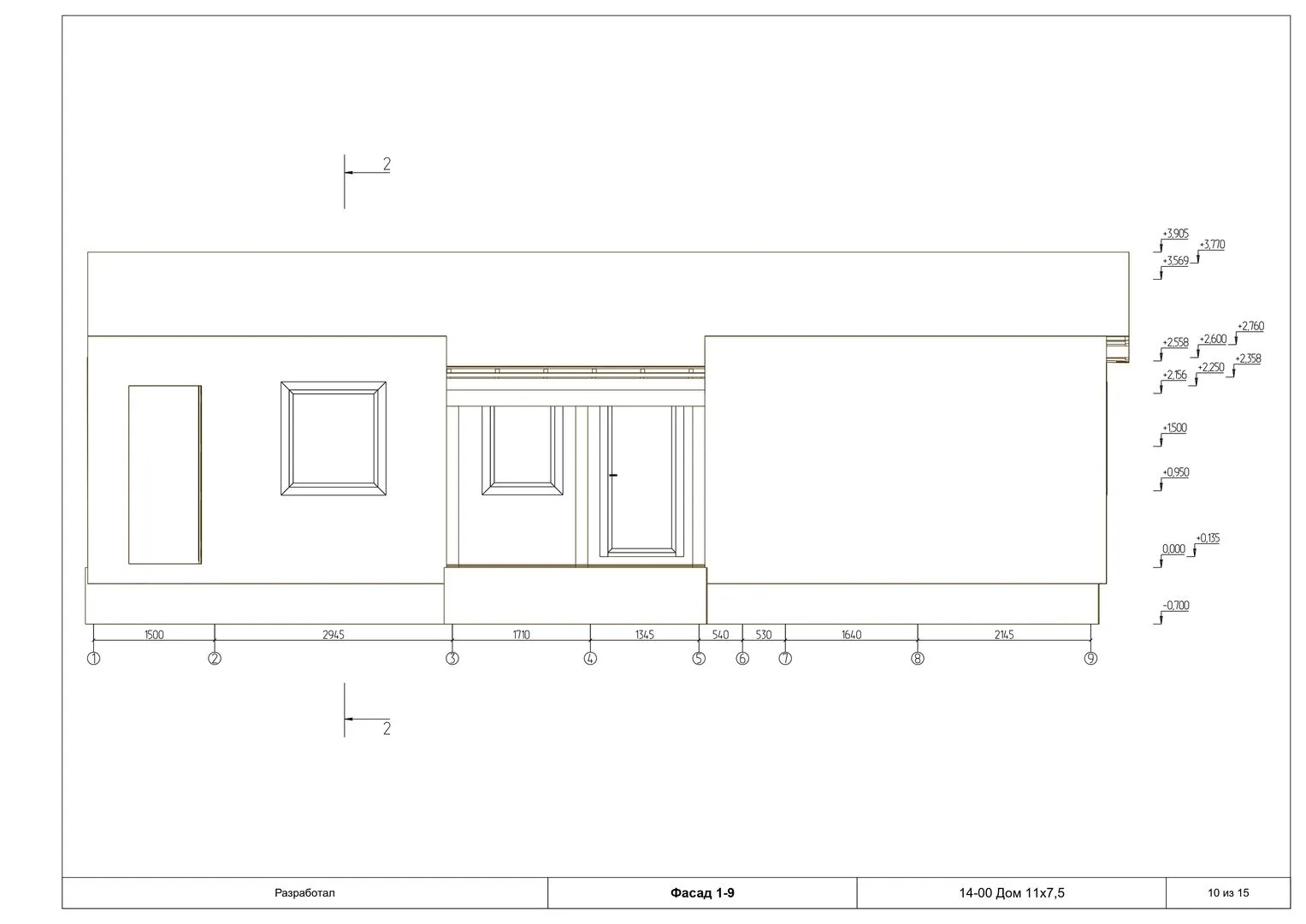
Фасад дома

Александр

Закажите выезд инженера

Александр

Выездной инженер
Закажите выезд инженера для точной диагностики и профессиональной консультации по инженерным системам. Специалист приедет в удобное время, проведёт осмотр, рассчитает стоимость работ и подберёт оптимальные решения для вашего дома.


    Похожие проекты

    Ипотека и
    рассрочка
    ВЕНТО-1
    Стоимость от:
    4 872 780
    Проект от: 31 050
    Этажей 1
    Санузлы 1
    Спальни 2
    Смотреть
    Ипотека и
    рассрочка
    Загородный дом АС-262
    Стоимость от:
    18 815 500
    Проект от: 123 750
    Этажей 1
    Санузлы 2
    Спальни 3
    Смотреть
    Ипотека и
    рассрочка
    S 2-101-1
    Стоимость от:
    7 093 920
    Проект от: 44 100
    Этажей 2
    Санузлы 2
    Спальни 3
    Смотреть
    Ипотека и
    рассрочка
    EFFECT LIGHT 118
    Стоимость от:
    7 628 700
    Проект от: 53 100
    Этажей 2
    Санузлы 3
    Спальни 4
    Смотреть
    Ипотека и
    рассрочка
    БалковДом двухэтажный с кирпичными фасадами 128,8
    Стоимость от:
    9 261 120
    Проект от: 57 600
    Этажей 2
    Санузлы 2
    Спальни 4
    Смотреть
    Ипотека и
    рассрочка
    Одноэтажный дом Light-124
    Стоимость от:
    8 756 880
    Проект от: 55 800
    Этажей 1
    Санузлы 2
    Спальни 4
    Смотреть

    Как узнать стоимость дома

    back
    Оставляете заявку
    Вы заполняете форму на сайте или звоните нам. Менеджер Лайвкрафт связывается с вами для уточнения деталей: тип дома, площадь, материалы, участок строительства.
    back
    Консультация и подбор решения
    Наш специалист помогает выбрать оптимальный тип дома и конструкцию с учётом бюджета, сроков и целей — будь то дом для постоянного проживания или дача.
    back
    Расчёт предварительной стоимости
    Инженер делает первичный расчёт стоимости строительства по вашим параметрам: фундамент, коробка, кровля, отделка. Вы получаете смету с разбивкой по этапам.
    back
    Корректировка и утверждение сметы
    При необходимости вносим изменения — например, замену материалов или сокращение этапов. После согласования формируется окончательная фиксированная смета.
    back
    Заключение договора и старт работ
    После утверждения сметы заключаем официальный договор с гарантией. Вы получаете прозрачный график и точную стоимость — без скрытых расходов.

    Заказать конусльтацию по:Барнхаус 80

    Фото 1 Барнхаус 80


      Наши
      контакты

      Дмитров
      Опорный проезд 28Б
      (индустриальный парк Ниагара)
      9:00 до 18:00

      Корзина