4.9
Рейтинг на основании 120 отзывов
Дмитров
Опорный проезд 28Б
(индустриальный парк Ниагара)
Бренд "Дмитров-Дело" c 2008 года на рынке строительства в Дмитрове
Звоните 9:00 до 18:00 8 (915) 055-33-61
Бренд "Дмитров-Дело" c 2008 года на рынке строительства в Дмитрове

Барнхаус 87

Стоимость проекта от:
32 850 ₽
БЕСПЛАТНО! ПРИ ЗАКАЗЕ СТРОИТЕЛЬСТВА
Стоимость строительства от:
4 071 210 ₽
Артикул ART-13122
Дата 25.12.2025
Архитектурный стиль Барнхаус
Количество надземных этажей 1
Круглогодичное проживание Да
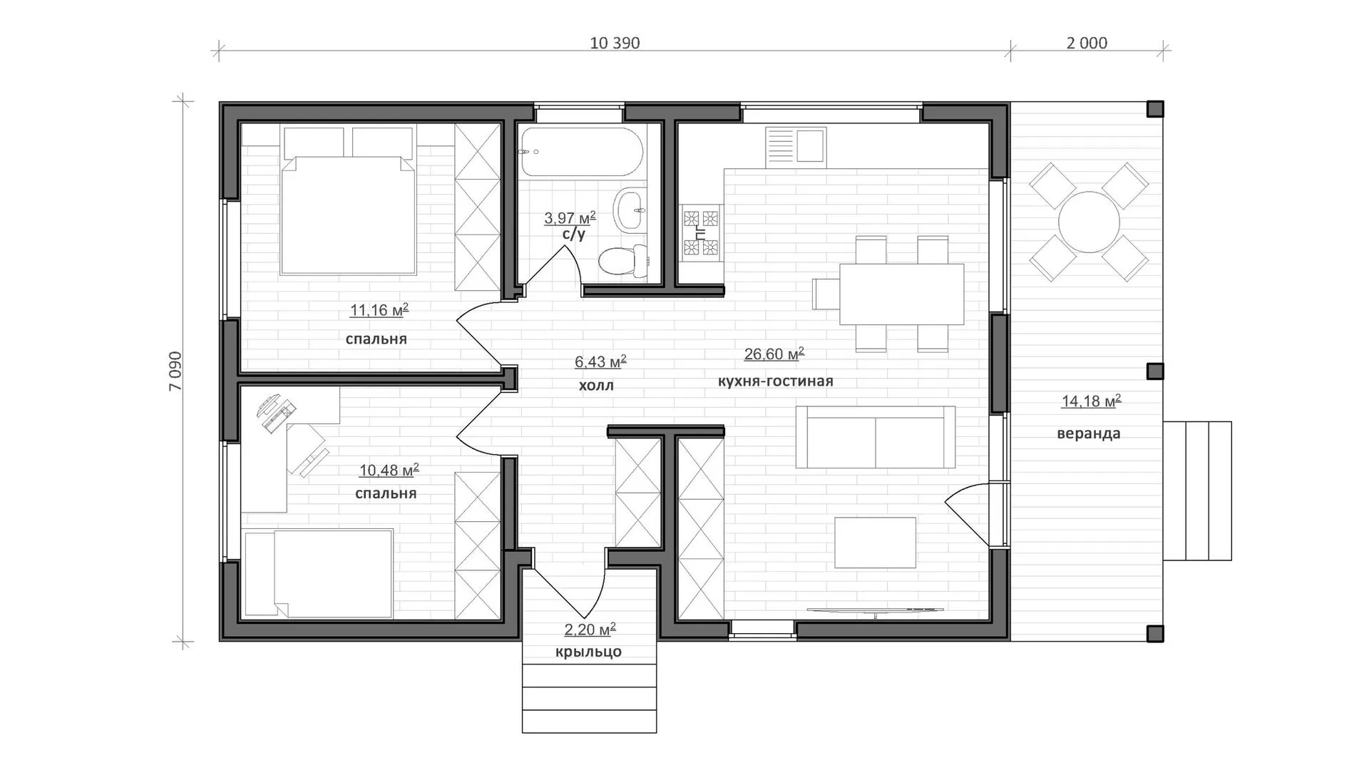
Площадь дома 73 м2
Санузлы 1
Спальни 2

Описание

Прекрасно соединив уют домашнего камина и свободный простор крестьянского двора, этот одноэтажный барнхаус 87 предлагает непревзойденный комфорт круглый год. С его массивной деревянной каркасной конструкцией и классической двускатной крышей, дом сохраняет тепло в холодную зиму и прохладу в жаркое лето, создавая идеальное место для семейного уюта и творческих проектов. Внутри просторные зоны с открытым планом позволяют легко адаптировать пространство под любые потребности – от семейных обедов до домашнего офиса. Уютная веранда, пронизанная тёплым лучами солнца, становится естественным продолжением внутреннего пространства, идеальным для завтраков на свежем воздухе или вечерних бесед под звёздами. Даже без встроенного гаража, прилегающая зона обеспечивает свободный доступ и парковку для гостей, а открытая площадка на заднем дворе оставляет пространство для сада, огорода или маленького крафтового уголка. Барнхаус 87 – это не просто дом, а место, где традиции и современные удобства встречаются в гармонии, приглашая вас создать там свои самые теплые воспоминания.

Характеристики дома

Архитектурный стиль
Автоматизированное регулирование параметров теплоносителя
Нет
Балконы/лоджии
Отсутствуют
Чердачное помещение
Нет
Датчики протечки воды
Нет
Эксплуатируемая или зеленая кровля
Нет
Электроснабжение
Центральное
Газоснабжение
Центральное
Изоляция воздушного шума
Да
Камин
Нет
Класс энергоэффективности
A+
Класс энергосбережения
A+
Количество надземных этажей
1
Круглогодичное проживание
Да
Материал кровли
Металлические листовые гофрированные профили
Материал перекрытий
Деревянные
Материал внешних стен
Материал внутренних перегородок
Деревянные
Модульное строительство с конструкциями заводского изготовления
Нет
Объем надземной части
340 м3
Основной материал фасадов
Планкен
Отопление
2 варианта
Площадь дома
73 м2
Площадь застройки
89 м2
Подвальное помещение
Нет
Показатель компактности здания
1.5
Приборы учета тепловой энергии
Нет
Пристроенный гараж/крытая автостоянка
Нет
Противопожарная система
Нет
Санузлы
1
Совмещенная кухня-гостиная
Да
Спальни
2
Терраса
Нет
Тип фундамента
Свайный
Тип кровли
Толщина внешних стен
195 мм
Толщина внутренних перегородок
145 мм
Улучшенные шумовые характеристики
Да
Вентиляция
3 варианта
Веранда
Да
Водоотведение
2 варианта
Водоснабжение
2 варианта
Высота дома
4.73 м
Высота потолков
3.5 м

Планировка

Фасад дома

Александр

Закажите выезд инженера

Александр

Выездной инженер
Закажите выезд инженера для точной диагностики и профессиональной консультации по инженерным системам. Специалист приедет в удобное время, проведёт осмотр, рассчитает стоимость работ и подберёт оптимальные решения для вашего дома.


    Похожие проекты

    Ипотека и
    рассрочка
    Витязь
    Стоимость от:
    2 659 030
    Проект от: 20 700
    Этажей 1
    Санузлы 1
    Спальни 2
    Смотреть
    Ипотека и
    рассрочка
    Одноэтажный дом из газоблока 8,78*15,50 «БС-150»
    Стоимость от:
    7 569 540
    Проект от: 48 150
    Этажей 1
    Санузлы 2
    Спальни 3
    Смотреть
    Ипотека и
    рассрочка
    Мэдисон
    Стоимость от:
    7 365 160
    Проект от: 44 100
    Этажей 1
    Санузлы 2
    Спальни 3
    Смотреть
    Ипотека и
    рассрочка
    Васнецово
    Стоимость от:
    8 142 420
    Проект от: 65 700
    Этажей 1
    Санузлы 2
    Спальни 3
    Смотреть
    Ипотека и
    рассрочка
    Brick 98
    Стоимость от:
    6 840 020
    Проект от: 40 950
    Этажей 1
    Санузлы 2
    Спальни 3
    Смотреть
    Ипотека и
    рассрочка
    Одноэтажный дом 102 кв.м. ЦН-102
    Стоимость от:
    6 232 710
    Проект от: 45 900
    Этажей 1
    Санузлы 1
    Спальни 3
    Смотреть

    Как узнать стоимость дома

    back
    Оставляете заявку
    Вы заполняете форму на сайте или звоните нам. Менеджер Лайвкрафт связывается с вами для уточнения деталей: тип дома, площадь, материалы, участок строительства.
    back
    Консультация и подбор решения
    Наш специалист помогает выбрать оптимальный тип дома и конструкцию с учётом бюджета, сроков и целей — будь то дом для постоянного проживания или дача.
    back
    Расчёт предварительной стоимости
    Инженер делает первичный расчёт стоимости строительства по вашим параметрам: фундамент, коробка, кровля, отделка. Вы получаете смету с разбивкой по этапам.
    back
    Корректировка и утверждение сметы
    При необходимости вносим изменения — например, замену материалов или сокращение этапов. После согласования формируется окончательная фиксированная смета.
    back
    Заключение договора и старт работ
    После утверждения сметы заключаем официальный договор с гарантией. Вы получаете прозрачный график и точную стоимость — без скрытых расходов.

    Заказать конусльтацию по:Барнхаус 87

    Фото 1 Барнхаус 87


      Наши
      контакты

      Дмитров
      Опорный проезд 28Б
      (индустриальный парк Ниагара)
      9:00 до 18:00

      Корзина