4.9
Рейтинг на основании 120 отзывов
Дмитров
Опорный проезд 28Б
(индустриальный парк Ниагара)
Бренд "Дмитров-Дело" c 2008 года на рынке строительства в Дмитрове
Звоните 9:00 до 18:00 8 (915) 055-33-61
Бренд "Дмитров-Дело" c 2008 года на рынке строительства в Дмитрове

Барнхаус с двумя террасами

Стоимость проекта от:
45 450 ₽
Стоимость строительства от:
5 616 105 ₽
Артикул ART-12560
Дата 25.12.2025
Архитектурный стиль Барнхаус
Количество надземных этажей 1
Круглогодичное проживание Да
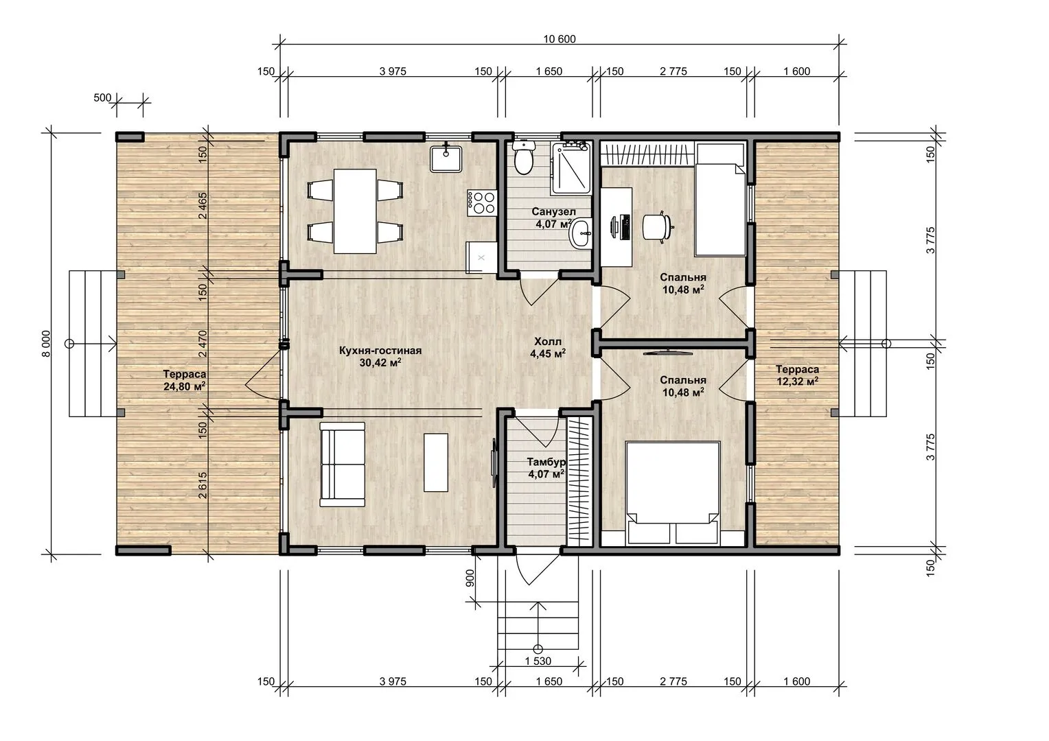
Площадь дома 101 м2
Санузлы 1
Спальни 2

Описание

Приветствуем вас в уединённом уголке, где традиции строительства встречаются с современным комфортом. Этот барнхаус изготавливается из натурального деревянного каркаса, который дарит помещению душевную теплоту и ощущение устойчивости. Двускатная крыша подчёркивает строгую эстетику, а плотная деревянная отделка создаёт атмосферу истинного уюта. Одноэтажность позволяет удобно планировать пространство: лёгкая ходьба от комнаты к комнате не вызывает лишних усилий, а ровные линии наполняют каждый уголок гармонией. Особенностью дома являются две просторные террасы, которые открываются на живописные виды и приглашают к долгим беседам, ужинам на открытом воздухе или просто наслаждению тишиной после долгого дня. Их можно использовать как площадку для отдыха, а также как место для уютного летнего сада. Круглогодичное проживание обеспечивает высокую комфортность благодаря теплоизоляции и современной вентиляции – в этом доме вы будете чувствовать себя дома даже в самые холодные зимы. Эта уютная резиденция – идеальный вариант для тех, кто ценит непринужденный, но в то же время элегантный стиль жизни. Отсутствие балконов, веранды и прицепного гаража лишь усиливает ощущение простора, делая пространство более свободным и легким. Здесь каждый уголок пропитан природным духом, а простота конструкции сочетается с гармонией современных материалов. Если вы мечтаете о гармоничном сочетании эстетики и функциональности, этот барнхаус станет вашим вдохновляющим выбором.

Характеристики дома

Архитектурный стиль
Барнхаус
Автоматизированное регулирование параметров теплоносителя
Нет
Балконы/лоджии
Отсутствуют
Чердачное помещение
Нет
Датчики протечки воды
Нет
Эксплуатируемая или зеленая кровля
Нет
Электроснабжение
Индивидуальное
Газоснабжение
Индивидуальное
Изоляция воздушного шума
Нет
Камин
Нет
Класс энергоэффективности
-
Класс энергосбережения
-
Количество надземных этажей
1
Круглогодичное проживание
Да
Материал кровли
Металлические рулонные или листовые материалы
Материал перекрытий
Деревянные
Материал внешних стен
Деревянные каркасные
Материал внутренних перегородок
Деревянные
Модульное строительство с конструкциями заводского изготовления
Нет
Объем надземной части
326 м3
Основной материал фасадов
Дерево
Отопление
Индивидуальное
Площадь дома
101 м2
Площадь застройки
114 м2
Подвальное помещение
Нет
Показатель компактности здания
-
Приборы учета тепловой энергии
Да
Пристроенный гараж/крытая автостоянка
Нет
Противопожарная система
Нет
Санузлы
1
Совмещенная кухня-гостиная
Да
Спальни
2
Терраса
Да
Тип фундамента
Свайно-винтовой
Тип кровли
Двускатная
Толщина внешних стен
150 мм
Толщина внутренних перегородок
150 мм
Улучшенные шумовые характеристики
Да
Вентиляция
Принудительная
Веранда
Нет
Водоотведение
Локальные очистные сооружения
Водоснабжение
Индивидуальное
Высота дома
4.8 м
Высота потолков
2.7 м

Планировка

Фасад дома

Александр

Закажите выезд инженера

Александр

Выездной инженер
Закажите выезд инженера для точной диагностики и профессиональной консультации по инженерным системам. Специалист приедет в удобное время, проведёт осмотр, рассчитает стоимость работ и подберёт оптимальные решения для вашего дома.


    Похожие проекты

    Ипотека и
    рассрочка
    Семейный дом АС-2439
    Стоимость от:
    11 494 560
    Проект от: 75 600
    Этажей 1
    Санузлы 2
    Спальни 3
    Смотреть
    Ипотека и
    рассрочка
    Проект загородного дома NHD-152
    Стоимость от:
    6 164 840
    Проект от: 36 900
    Этажей 1
    Санузлы 1
    Спальни 3
    Смотреть
    Ипотека и
    рассрочка
    Проект одноэтажного дома «Прага»
    Стоимость от:
    8 415 660
    Проект от: 55 350
    Этажей 1
    Санузлы 2
    Спальни 3
    Смотреть
    Ипотека и
    рассрочка
    Проект Клевер с плоской кровлей
    Стоимость от:
    7 001 280
    Проект от: 45 900
    Этажей 2
    Санузлы 2
    Спальни 3
    Смотреть
    Ипотека и
    рассрочка
    Загородный дом «Киран» 83,73
    Стоимость от:
    5 405 180
    Проект от: 35 550
    Этажей 1
    Санузлы 3
    Спальни 3
    Смотреть
    Ипотека и
    рассрочка
    Каркасный дом Сидней 148
    Стоимость от:
    8 618 400
    Проект от: 64 800
    Этажей 2
    Санузлы 2
    Спальни 7
    Смотреть

    Как узнать стоимость дома

    back
    Оставляете заявку
    Вы заполняете форму на сайте или звоните нам. Менеджер Лайвкрафт связывается с вами для уточнения деталей: тип дома, площадь, материалы, участок строительства.
    back
    Консультация и подбор решения
    Наш специалист помогает выбрать оптимальный тип дома и конструкцию с учётом бюджета, сроков и целей — будь то дом для постоянного проживания или дача.
    back
    Расчёт предварительной стоимости
    Инженер делает первичный расчёт стоимости строительства по вашим параметрам: фундамент, коробка, кровля, отделка. Вы получаете смету с разбивкой по этапам.
    back
    Корректировка и утверждение сметы
    При необходимости вносим изменения — например, замену материалов или сокращение этапов. После согласования формируется окончательная фиксированная смета.
    back
    Заключение договора и старт работ
    После утверждения сметы заключаем официальный договор с гарантией. Вы получаете прозрачный график и точную стоимость — без скрытых расходов.

    Заказать конусльтацию по:Барнхаус с двумя террасами

    Фото 1 Барнхаус с двумя террасами


      Наши
      контакты

      Дмитров
      Опорный проезд 28Б
      (индустриальный парк Ниагара)
      9:00 до 18:00