4.9
Рейтинг на основании 120 отзывов
Дмитров
Опорный проезд 28Б
(индустриальный парк Ниагара)
Бренд "Дмитров-Дело" c 2008 года на рынке строительства в Дмитрове
Звоните 9:00 до 18:00 8 (915) 055-33-61
Бренд "Дмитров-Дело" c 2008 года на рынке строительства в Дмитрове

Барнхаус «Шале»

Стоимость проекта от:
30 600 ₽
БЕСПЛАТНО! ПРИ ЗАКАЗЕ СТРОИТЕЛЬСТВА
Стоимость строительства от:
3 781 140 ₽
Артикул ART-17962
Дата 26.12.2025
Архитектурный стиль Барнхаус
Количество надземных этажей 1
Круглогодичное проживание Да
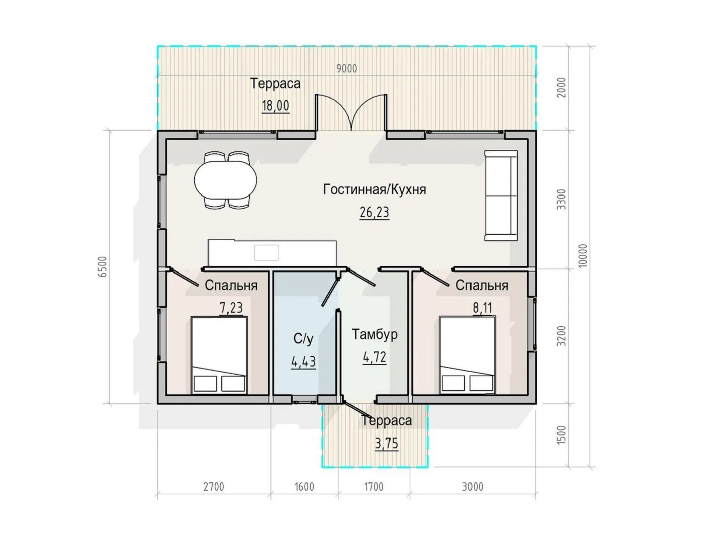
Площадь дома 68 м2
Санузлы 1
Спальни 2

Описание

Добро пожаловать в уютный барнхаус «Шале» – ваш персональный уголок, где каждая деталь пронизана естественностью и теплом. Дом располагается полностью на одном уровне, благодаря чему его можно свободно и спокойно использовать круглый год: просторные помещения, открытые проёмы и светлые зоны создают ощущение простора и свободы. Стены, выполненные из прочного деревянного каркаса, не только придают дому характерный антикварный вид, но и прекрасно сохраняют тепло, а в сочетании с двускатной крышей создают неповторимую архитектурную эстетику барнхауса, где традиции встречаются с современным комфортом. Сама площадка дарит особую атмосферу благодаря обширной террасы, где можно проводить уютные посиделки под открытым небом, наслаждаясь звёздным небом и ароматом свежего воздуха. Внутри «Шале» вы найдете продуманное планировочное решение: от просторных жилых зон, где ощущается каждая деталь, до функциональных кухонных и санузлов, где каждая линия и материал были подобраны с любовью и вниманием к деталям. Здесь нет лишних балконов, веранд, гаражей или чердаков – только чистота, простота и уют, позволяющие вам полностью расслабиться и сосредоточиться на том, что действительно важно. Это идеальный дом для тех, кто ищет гармонию между природой, архитектурой и личным комфортом, без компромиссов и лишних забот.

Характеристики дома

Архитектурный стиль
Автоматизированное регулирование параметров теплоносителя
Нет
Балконы/лоджии
Отсутствуют
Чердачное помещение
Нет
Датчики протечки воды
Нет
Эксплуатируемая или зеленая кровля
Нет
Электроснабжение
Индивидуальное
Газоснабжение
Индивидуальное
Изоляция воздушного шума
Нет
Камин
Нет
Класс энергоэффективности
-
Класс энергосбережения
-
Количество надземных этажей
1
Круглогодичное проживание
Да
Материал кровли
Металлические листовые гофрированные профили
Материал перекрытий
Деревянные
Материал внешних стен
Материал внутренних перегородок
Деревянные
Модульное строительство с конструкциями заводского изготовления
Нет
Объем надземной части
165 м3
Основной материал фасадов
Дерево
Отопление
Индивидуальное
Площадь дома
68 м2
Площадь застройки
75 м2
Подвальное помещение
Нет
Показатель компактности здания
-
Приборы учета тепловой энергии
Нет
Пристроенный гараж/крытая автостоянка
Нет
Противопожарная система
Нет
Санузлы
1
Совмещенная кухня-гостиная
Да
Спальни
2
Терраса
Да
Тип фундамента
Свайно-винтовой
Тип кровли
Толщина внешних стен
200 мм
Толщина внутренних перегородок
100 мм
Улучшенные шумовые характеристики
Нет
Вентиляция
Принудительная
Веранда
Нет
Водоотведение
Локальные очистные сооружения
Водоснабжение
Индивидуальное
Высота дома
4.58 м
Высота потолков
3 м

Планировка

Фасад дома

Александр

Закажите выезд инженера

Александр

Выездной инженер
Закажите выезд инженера для точной диагностики и профессиональной консультации по инженерным системам. Специалист приедет в удобное время, проведёт осмотр, рассчитает стоимость работ и подберёт оптимальные решения для вашего дома.


    Похожие проекты

    Ипотека и
    рассрочка
    Добрыня-1, 7.2х8.5 м
    Стоимость от:
    3 005 860
    Проект от: 23 400
    Этажей 1
    Санузлы 1
    Спальни 2
    Смотреть
    Ипотека и
    рассрочка
    Двухэтажный каркасный дом 8*9 «БС-171»
    Стоимость от:
    7 551 360
    Проект от: 53 550
    Этажей 2
    Санузлы 2
    Спальни 4
    Смотреть
    Ипотека и
    рассрочка
    Одноэтажный дом EURO-86B
    Стоимость от:
    6 073 320
    Проект от: 38 700
    Этажей 1
    Санузлы 1
    Спальни 3
    Смотреть
    Ипотека и
    рассрочка
    Мельник-2
    Стоимость от:
    8 191 920
    Проект от: 52 200
    Этажей 1
    Санузлы 1
    Спальни 3
    Смотреть
    Ипотека и
    рассрочка
    БАЙКАЛ-2
    Стоимость от:
    2 391 015
    Проект от: 19 350
    Этажей 1
    Санузлы 1
    Спальни 2
    Смотреть
    Ипотека и
    рассрочка
    Одноэтажный кирпичный дом GS-89
    Стоимость от:
    6 089 820
    Проект от: 36 450
    Этажей 1
    Санузлы 1
    Спальни 3
    Смотреть

    Как узнать стоимость дома

    back
    Оставляете заявку
    Вы заполняете форму на сайте или звоните нам. Менеджер Лайвкрафт связывается с вами для уточнения деталей: тип дома, площадь, материалы, участок строительства.
    back
    Консультация и подбор решения
    Наш специалист помогает выбрать оптимальный тип дома и конструкцию с учётом бюджета, сроков и целей — будь то дом для постоянного проживания или дача.
    back
    Расчёт предварительной стоимости
    Инженер делает первичный расчёт стоимости строительства по вашим параметрам: фундамент, коробка, кровля, отделка. Вы получаете смету с разбивкой по этапам.
    back
    Корректировка и утверждение сметы
    При необходимости вносим изменения — например, замену материалов или сокращение этапов. После согласования формируется окончательная фиксированная смета.
    back
    Заключение договора и старт работ
    После утверждения сметы заключаем официальный договор с гарантией. Вы получаете прозрачный график и точную стоимость — без скрытых расходов.

    Заказать конусльтацию по:Барнхаус «Шале»

    Фото 1 Барнхаус «Шале»


      Наши
      контакты

      Дмитров
      Опорный проезд 28Б
      (индустриальный парк Ниагара)
      9:00 до 18:00

      Корзина