4.9
Рейтинг на основании 120 отзывов
Дмитров
Опорный проезд 28Б
(индустриальный парк Ниагара)
Бренд "Дмитров-Дело" c 2008 года на рынке строительства в Дмитрове
Звоните 9:00 до 18:00 8 (915) 055-33-61
Бренд "Дмитров-Дело" c 2008 года на рынке строительства в Дмитрове

Байкал ВК-1

Стоимость проекта от:
83 250 ₽
БЕСПЛАТНО! ПРИ ЗАКАЗЕ СТРОИТЕЛЬСТВА
Стоимость строительства от:
13 616 400 ₽
Артикул ART-10009
Дата 25.12.2025
Архитектурный стиль Европейский
Количество надземных этажей 2
Круглогодичное проживание Да
Площадь дома 185 м2
Санузлы 2
Спальни 4

Описание

Добро пожаловать в «Байкал ВК‑1» – ваш новый уголок европейского уюта, где каждая деталь обративлена к комфорту и функциональности. Дом построен в строгом европейском стиле: ровные линии фасада, плавные очертания крыши и тонкая детализация создают ощущение современности и надежности. Внутри располагается два надземных этажа, где просторные комнаты, большие окна и светлые интерьеры дарят ощущение легкости и открытости. Пристроенный гараж и крытая автостоянка обеспечивают безопасное хранение авто даже в самые дождливые и снежные дни, избавляя от забот о внешних условиях. Кровля – плоская, что позволяет использовать её как практичное пространство для современных технологий: солнечные батареи, а также в будущем можно превратить её в уютный террасный уголок. Внешние стены, выполненные из полистиролбетона, гарантируют оптимальную теплоизоляцию, обеспечивая круглогодичную пригодность жилья: в холодный зимний вечер внутри всегда тепло, а в летний период прохлада сохраняется. В доме отсутствуют балконы, лоджии и веранда, но их место заполняют большие внутренние окна, пропускающие максимум естественного света и создающие атмосферу открытости и связи с природой. «Байкал ВК‑1» – это не просто дом, это комфортное убежище, где современная технология встречается с дизайнерской эстетикой. Он идеально подходит как для семейного проживания, так и для тех, кто ценит практичность и эстетическую гармонию. Ваша новая история начинается здесь – в доме, где каждая деталь продумана для вашего удобства, а европейский стиль делает каждый день ярче и легче.

Характеристики дома

Архитектурный стиль
Автоматизированное регулирование параметров теплоносителя
Нет
Балконы/лоджии
Отсутствуют
Чердачное помещение
Нет
Датчики протечки воды
Нет
Эксплуатируемая или зеленая кровля
Да
Электроснабжение
Индивидуальное
Газоснабжение
Не предусмотрено
Изоляция воздушного шума
Да
Камин
Нет
Класс энергоэффективности
A+
Класс энергосбережения
A+
Количество надземных этажей
2
Круглогодичное проживание
Да
Материал кровли
Рулонные битумные покрытия
Материал перекрытий
Иной вид материалов перекрытий
Материал внешних стен
Материал внутренних перегородок
Модульное строительство с конструкциями заводского изготовления
Нет
Объем надземной части
-
Основной материал фасадов
Штукатурка
Отопление
Индивидуальное
Площадь дома
185 м2
Площадь застройки
149 м2
Подвальное помещение
Нет
Показатель компактности здания
0.41
Приборы учета тепловой энергии
Нет
Пристроенный гараж/крытая автостоянка
Да
Противопожарная система
Нет
Санузлы
2
Совмещенная кухня-гостиная
Да
Спальни
4
Терраса
Нет
Тип фундамента
Ленточный
Тип кровли
Толщина внешних стен
400 мм
Толщина внутренних перегородок
150 мм
Улучшенные шумовые характеристики
Да
Вентиляция
Естественная
Веранда
Нет
Водоотведение
Локальные очистные сооружения
Водоснабжение
Индивидуальное
Высота дома
6.2 м
Высота потолков
2.8 м

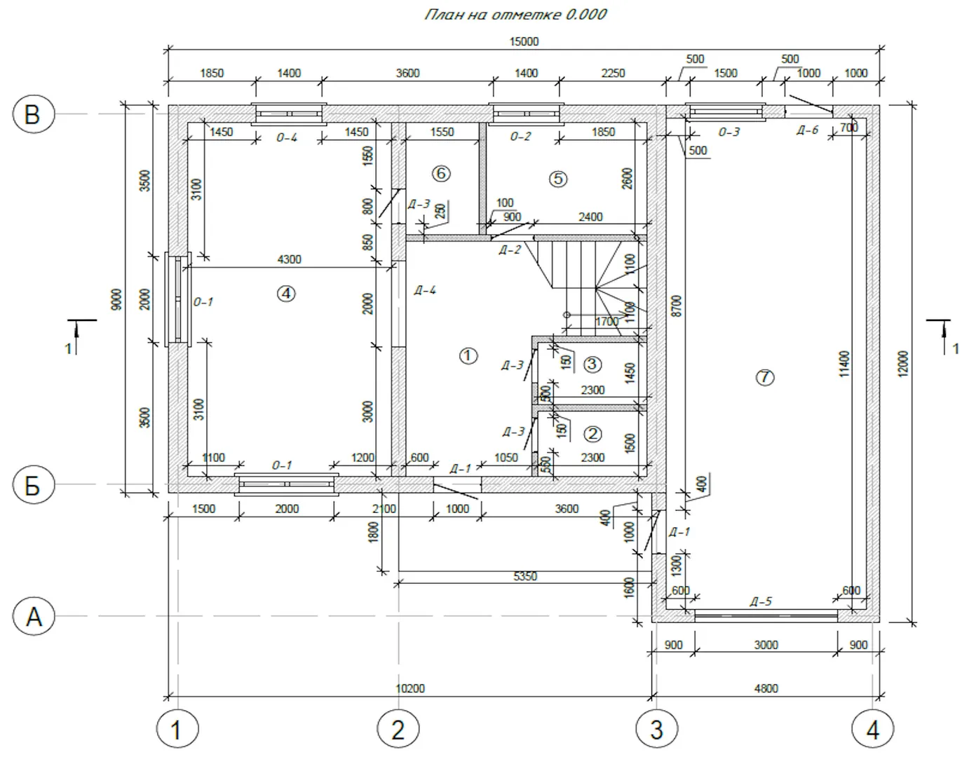
Планировка

Фасад дома

Александр

Закажите выезд инженера

Александр

Выездной инженер
Закажите выезд инженера для точной диагностики и профессиональной консультации по инженерным системам. Специалист приедет в удобное время, проведёт осмотр, рассчитает стоимость работ и подберёт оптимальные решения для вашего дома.


    Похожие проекты

    Ипотека и
    рассрочка
    Индивидуальный жилой дом 907-12-05/23-АР
    Стоимость от:
    7 609 200
    Проект от: 47 250
    Этажей 2
    Санузлы 2
    Спальни 3
    Смотреть
    Ипотека и
    рассрочка
    Идея- IBARN-АР
    Стоимость от:
    6 600 880
    Проект от: 46 800
    Этажей 1
    Санузлы 1
    Спальни 1
    Смотреть
    Ипотека и
    рассрочка
    Загородный дом «КостаРика»
    Стоимость от:
    9 236 700
    Проект от: 60 750
    Этажей 1
    Санузлы 3
    Спальни 3
    Смотреть
    Ипотека и
    рассрочка
    Проект загородного дома NHD-113
    Стоимость от:
    9 342 960
    Проект от: 58 050
    Этажей 2
    Санузлы 2
    Спальни 3
    Смотреть
    Ипотека и
    рассрочка
    Просто 115
    Стоимость от:
    8 415 440
    Проект от: 50 400
    Этажей 1
    Санузлы 1
    Спальни 3
    Смотреть
    Ипотека и
    рассрочка
    Одноэтажный дом
    Стоимость от:
    6 915 040
    Проект от: 41 400
    Этажей 1
    Санузлы 1
    Спальни 3
    Смотреть

    Как узнать стоимость дома

    back
    Оставляете заявку
    Вы заполняете форму на сайте или звоните нам. Менеджер Лайвкрафт связывается с вами для уточнения деталей: тип дома, площадь, материалы, участок строительства.
    back
    Консультация и подбор решения
    Наш специалист помогает выбрать оптимальный тип дома и конструкцию с учётом бюджета, сроков и целей — будь то дом для постоянного проживания или дача.
    back
    Расчёт предварительной стоимости
    Инженер делает первичный расчёт стоимости строительства по вашим параметрам: фундамент, коробка, кровля, отделка. Вы получаете смету с разбивкой по этапам.
    back
    Корректировка и утверждение сметы
    При необходимости вносим изменения — например, замену материалов или сокращение этапов. После согласования формируется окончательная фиксированная смета.
    back
    Заключение договора и старт работ
    После утверждения сметы заключаем официальный договор с гарантией. Вы получаете прозрачный график и точную стоимость — без скрытых расходов.

    Заказать конусльтацию по:Байкал ВК-1

    Фото 1 Байкал ВК-1


      Наши
      контакты

      Дмитров
      Опорный проезд 28Б
      (индустриальный парк Ниагара)
      9:00 до 18:00

      Корзина