4.9
Рейтинг на основании 120 отзывов
Дмитров
Опорный проезд 28Б
(индустриальный парк Ниагара)
Бренд "Дмитров-Дело" c 2008 года на рынке строительства в Дмитрове
Звоните 9:00 до 18:00 8 (915) 055-33-61
Бренд "Дмитров-Дело" c 2008 года на рынке строительства в Дмитрове

Байкал-ВК-4

Стоимость проекта от:
43 650 ₽
Стоимость строительства от:
7 507 940 ₽
Артикул ART-10215
Дата 25.12.2025
Архитектурный стиль Европейский
Количество надземных этажей 1
Круглогодичное проживание Да
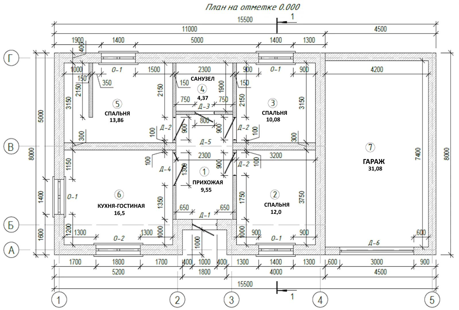
Площадь дома 97 м2
Санузлы 1
Спальни 3

Описание

Байкал‑ВК‑4 – это современный дом, созданный для тех, кто ценит комфорт и практичность. Один надземный этаж, европейский стиль выполнен в лаконичной элегантности: чистые линии, светлые фасады и аккуратная отделка придают ему уютный «домашний» вид, одновременно оставаясь на пике современных тенденций. Благодаря полиситиленбетону внешних стен и плоской крыше, дом сохраняет тепло в холодное время года и прохладу летом, что делает его идеальным для круглогодичного проживания. Без лишних балконов, веранд и чердака вы забудете о лишних заботах – все пространство использовано рационально для ваших потребностей. Пристроенный гараж с крытой автостоянкой обеспечивает безопасное хранение транспортных средств и удобный выход из подъезда. Простой, но стильный дизайн Байкал‑ВК‑4 создаст атмосферу уюта и благополучия, где каждый день начинается и заканчивается в гармонии с современными стандартами жизни.

Характеристики дома

Архитектурный стиль
Европейский
Автоматизированное регулирование параметров теплоносителя
Нет
Балконы/лоджии
Отсутствуют
Чердачное помещение
Нет
Датчики протечки воды
Нет
Эксплуатируемая или зеленая кровля
Да
Электроснабжение
Центральное
Газоснабжение
Не предусмотрено
Изоляция воздушного шума
Да
Камин
Нет
Класс энергоэффективности
-
Класс энергосбережения
-
Количество надземных этажей
1
Круглогодичное проживание
Да
Материал кровли
Битумно-полимерная или Битумно-резиновая мастика
Материал перекрытий
Иной вид материалов перекрытий
Материал внешних стен
Полистиролбетон
Материал внутренних перегородок
Полистиролбетон
Модульное строительство с конструкциями заводского изготовления
Нет
Объем надземной части
-
Основной материал фасадов
Штукатурка
Отопление
Индивидуальное
Площадь дома
97 м2
Площадь застройки
126 м2
Подвальное помещение
Нет
Показатель компактности здания
-
Приборы учета тепловой энергии
Нет
Пристроенный гараж/крытая автостоянка
Да
Противопожарная система
Нет
Санузлы
1
Совмещенная кухня-гостиная
Да
Спальни
3
Терраса
Нет
Тип фундамента
Ленточный
Тип кровли
Плоская
Толщина внешних стен
400 мм
Толщина внутренних перегородок
150 мм
Улучшенные шумовые характеристики
Да
Вентиляция
Естественная
Веранда
Нет
Водоотведение
Локальные очистные сооружения
Водоснабжение
Индивидуальное
Высота дома
4.2 м
Высота потолков
2.8 м

Планировка

Фасад дома

Александр

Закажите выезд инженера

Александр

Выездной инженер
Закажите выезд инженера для точной диагностики и профессиональной консультации по инженерным системам. Специалист приедет в удобное время, проведёт осмотр, рассчитает стоимость работ и подберёт оптимальные решения для вашего дома.


    Похожие проекты

    Ипотека и
    рассрочка
    Каркасный дом «Арго»
    Стоимость от:
    176 880
    Проект от: 30 150
    Этажей 2
    Санузлы 1
    Спальни 2
    Смотреть
    Ипотека и
    рассрочка
    Снежок
    Стоимость от:
    6 089 820
    Проект от: 36 450
    Этажей 1
    Санузлы 2
    Спальни 2
    Смотреть
    Ипотека и
    рассрочка
    Фрейя
    Стоимость от:
    6 220 060
    Проект от: 44 100
    Этажей 1
    Санузлы 1
    Спальни 3
    Смотреть
    Ипотека и
    рассрочка
    Дом полного заводского изготовления Nordic 75
    Стоимость от:
    5 331 480
    Проект от: 37 800
    Этажей 1
    Санузлы 2
    Спальни 2
    Смотреть
    Ипотека и
    рассрочка
    Дом с мансардой Лидер ЛК 9
    Стоимость от:
    5 865 600
    Проект от: 38 250
    Этажей 2
    Санузлы 1
    Спальни 3
    Смотреть
    Ипотека и
    рассрочка
    Одноэтажный дом c облицовкой кирпичом S-106
    Стоимость от:
    9 786 260
    Проект от: 55 350
    Этажей 1
    Санузлы 2
    Спальни 3
    Смотреть

    Как узнать стоимость дома

    back
    Оставляете заявку
    Вы заполняете форму на сайте или звоните нам. Менеджер Лайвкрафт связывается с вами для уточнения деталей: тип дома, площадь, материалы, участок строительства.
    back
    Консультация и подбор решения
    Наш специалист помогает выбрать оптимальный тип дома и конструкцию с учётом бюджета, сроков и целей — будь то дом для постоянного проживания или дача.
    back
    Расчёт предварительной стоимости
    Инженер делает первичный расчёт стоимости строительства по вашим параметрам: фундамент, коробка, кровля, отделка. Вы получаете смету с разбивкой по этапам.
    back
    Корректировка и утверждение сметы
    При необходимости вносим изменения — например, замену материалов или сокращение этапов. После согласования формируется окончательная фиксированная смета.
    back
    Заключение договора и старт работ
    После утверждения сметы заключаем официальный договор с гарантией. Вы получаете прозрачный график и точную стоимость — без скрытых расходов.

    Заказать конусльтацию по:Байкал-ВК-4

    Фото 1 Байкал-ВК-4


      Наши
      контакты

      Дмитров
      Опорный проезд 28Б
      (индустриальный парк Ниагара)
      9:00 до 18:00

      Корзина