4.9
Рейтинг на основании 120 отзывов
Дмитров
Опорный проезд 28Б
(индустриальный парк Ниагара)
Бренд "Дмитров-Дело" c 2008 года на рынке строительства в Дмитрове
Звоните 9:00 до 18:00 8 (915) 055-33-61
Бренд "Дмитров-Дело" c 2008 года на рынке строительства в Дмитрове

Байкал

Стоимость проекта от:
39 150 ₽
БЕСПЛАТНО! ПРИ ЗАКАЗЕ СТРОИТЕЛЬСТВА
Стоимость строительства от:
6 083 280 ₽
Артикул ART-17208
Дата 26.12.2025
Архитектурный стиль Европейский
Количество надземных этажей 2
Круглогодичное проживание Да
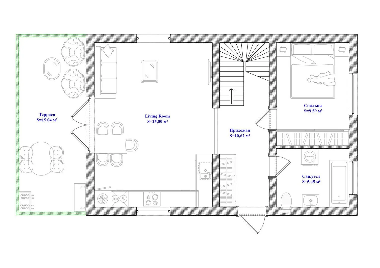
Площадь дома 87 м2
Санузлы 2
Спальни 4

Описание

**Современный европейский дом у Байкала** Приятно встретиться с уютом, который предлагает наш двухэтажный дом в круглогодичном комфортном стиле. Внутреннее пространство обретает свой характер благодаря чистым линиям, мягкому свету и просторным комнатам, рассчитанным на активную семейную жизнь. Внешний вид выдержан в классическо‑европейском стиле с монолитным железобетонным фасадом, который гарантирует надежную защиту от суровых климатических условий и добавляет дому устойчивую, современную элегантность. Двускатная крыша придает архитектуре динамичную форму, а каждая деталь продумана с учетом гармонии и комфорта. **Уникальность и практичность** Дом без балконов и веранд, но с просторной террасой — идеальное сочетание эстетики и функциональности. Тропинка ведет на панорамный залив, где можно наслаждаться морским бризом и рассветными красками озера. Отсутствие прикрепленных гаражей и чердачных помещений обуславливает гибкость планировки под ваши потребности: можно организовать отдельные залы, спа‑установку или просто уютный уголок для отдыха. Монолитное железобетонное покрытие обеспечивает долговечность, а современная система тепло- и звукоизоляции делает дом пригодным для круглогодичного проживания. Приглашаем вас открыть для себя новую эру жилья, где каждый элемент продуман до мелочей, а простор и свет создают ощущение дома, будто выросшего среди величественной природы Байкала.

Характеристики дома

Архитектурный стиль
Автоматизированное регулирование параметров теплоносителя
Да
Балконы/лоджии
Отсутствуют
Чердачное помещение
Нет
Датчики протечки воды
Нет
Эксплуатируемая или зеленая кровля
Нет
Электроснабжение
Центральное
Газоснабжение
Центральное
Изоляция воздушного шума
Да
Камин
Нет
Класс энергоэффективности
A++
Класс энергосбережения
A++
Количество надземных этажей
2
Круглогодичное проживание
Да
Материал кровли
Металлочерепица
Материал перекрытий
Деревянные
Материал внешних стен
Материал внутренних перегородок
Пенобетонные
Модульное строительство с конструкциями заводского изготовления
Нет
Объем надземной части
350 м3
Основной материал фасадов
Штукатурка
Отопление
2 варианта
Площадь дома
87 м2
Площадь застройки
100 м2
Подвальное помещение
Нет
Показатель компактности здания
0.74
Приборы учета тепловой энергии
Да
Пристроенный гараж/крытая автостоянка
Нет
Противопожарная система
Нет
Санузлы
2
Совмещенная кухня-гостиная
Да
Спальни
4
Терраса
Да
Тип фундамента
Плитный
Тип кровли
Толщина внешних стен
300 мм
Толщина внутренних перегородок
100 мм
Улучшенные шумовые характеристики
Да
Вентиляция
Естественная
Веранда
Нет
Водоотведение
2 варианта
Водоснабжение
2 варианта
Высота дома
7.19 м
Высота потолков
2.8 м

Планировка

Фасад дома

Александр

Закажите выезд инженера

Александр

Выездной инженер
Закажите выезд инженера для точной диагностики и профессиональной консультации по инженерным системам. Специалист приедет в удобное время, проведёт осмотр, рассчитает стоимость работ и подберёт оптимальные решения для вашего дома.


    Похожие проекты

    Ипотека и
    рассрочка
    Двухэтажный дом «ЭДМОНТОН»
    Стоимость от:
    9 893 400
    Проект от: 74 250
    Этажей 2
    Санузлы 2
    Спальни 4
    Смотреть
    Ипотека и
    рассрочка
    Каркасный одноэтажный дом «ДК 308»
    Стоимость от:
    4 624 400
    Проект от: 36 000
    Этажей 1
    Санузлы 1
    Спальни 3
    Смотреть
    Ипотека и
    рассрочка
    D100
    Стоимость от:
    7 290 140
    Проект от: 43 650
    Этажей 1
    Санузлы 2
    Спальни 3
    Смотреть
    Ипотека и
    рассрочка
    Проект загородного дома NHD-128
    Стоимость от:
    10 666 040
    Проект от: 63 900
    Этажей 1
    Санузлы 2
    Спальни 3
    Смотреть
    Ипотека и
    рассрочка
    Одноэтажный кирпичный дом PREMIUM — 158 m2 Серый облицовочный кирпич
    Стоимость от:
    9 548 000
    Проект от: 54 000
    Этажей 1
    Санузлы 2
    Спальни 3
    Смотреть
    Ипотека и
    рассрочка
    ИНДИВИДУАЛЬНЫЙ ЖИЛОЙ ДОМ F053
    Стоимость от:
    8 753 800
    Проект от: 49 500
    Этажей 1
    Санузлы 1
    Спальни 3
    Смотреть

    Как узнать стоимость дома

    back
    Оставляете заявку
    Вы заполняете форму на сайте или звоните нам. Менеджер Лайвкрафт связывается с вами для уточнения деталей: тип дома, площадь, материалы, участок строительства.
    back
    Консультация и подбор решения
    Наш специалист помогает выбрать оптимальный тип дома и конструкцию с учётом бюджета, сроков и целей — будь то дом для постоянного проживания или дача.
    back
    Расчёт предварительной стоимости
    Инженер делает первичный расчёт стоимости строительства по вашим параметрам: фундамент, коробка, кровля, отделка. Вы получаете смету с разбивкой по этапам.
    back
    Корректировка и утверждение сметы
    При необходимости вносим изменения — например, замену материалов или сокращение этапов. После согласования формируется окончательная фиксированная смета.
    back
    Заключение договора и старт работ
    После утверждения сметы заключаем официальный договор с гарантией. Вы получаете прозрачный график и точную стоимость — без скрытых расходов.

    Заказать конусльтацию по:Байкал

    Фото 1 Байкал


      Наши
      контакты

      Дмитров
      Опорный проезд 28Б
      (индустриальный парк Ниагара)
      9:00 до 18:00

      Корзина