4.9
Рейтинг на основании 120 отзывов
Дмитров
Опорный проезд 28Б
(индустриальный парк Ниагара)
Бренд "Дмитров-Дело" c 2008 года на рынке строительства в Дмитрове
Звоните 9:00 до 18:00 8 (915) 055-33-61
Бренд "Дмитров-Дело" c 2008 года на рынке строительства в Дмитрове

БГ 47

Стоимость проекта от:
69 750 ₽
Стоимость строительства от:
9 715 200 ₽
Артикул ART-6332
Дата 26.12.2025
Архитектурный стиль Скандинавский
Количество надземных этажей 2
Круглогодичное проживание Да
Площадь дома 155 м2
Санузлы 1
Спальни 2

Описание

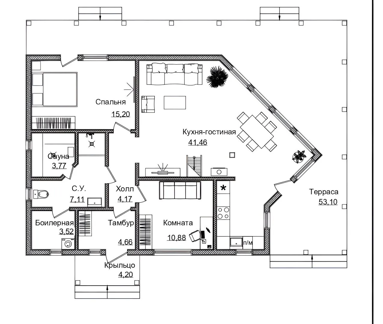
БГ 47 — это поистине уютная усадьба, оформленная в строгом, но одновременно теплом скандинавском стиле. Дом занимает два надземных этажа, каждый из которых раскрывает просторные и светлые помещения, наполненные натуральным материалом. Вы ощутите, как древесные стены впитывают мягкое, природное тепло, а большие окна, оставляя засеянные светом окнами, позволяют вам наслаждаться видом на лес и спокойствие круглый год. Круглогодичное проживание поддерживается изолированной конструкцией и двойными окнами, обеспечивая комфорт даже в самые суровые зимы. Трёплая, двускатная кровля подчеркивает лаконичный силуэт и придаёт дому очаровательный профиль. На верхней площадке располагается просторная терраса, где вы можете уединённо заварить кофе утром или провести вечерний перерыв с камины под звёздами. За стенами нет ни пристроенного гаража, ни крытой автостоянки, но это придаёт дому чистоту линий и ощущение открытости. Благоразумно выбранный материал – деревянный каркас – позволяет сохранять лёгкость и прочность, придавая каждому элементу структуры своеобразный характер. Одиннадцать квадратных метров на каждом уровне, продуманные планировки и высокие потолки с открытой конструкцией поддерживают чувство простора и плавности. Стиль скандинавского дизайна в сочетании с современными удобствами делает БГ 47 идеальным выбором для тех, кто ценит эстетику, гармонию с природой и уют семейного дома. Приня́л­ив решение жить здесь, вы получаете не просто жильё, а настоящее место, куда хочется возвращаться после трудного дня.

Характеристики дома

Архитектурный стиль
Скандинавский
Автоматизированное регулирование параметров теплоносителя
Нет
Балконы/лоджии
Отсутствуют
Чердачное помещение
Нет
Датчики протечки воды
Нет
Эксплуатируемая или зеленая кровля
Нет
Электроснабжение
2 варианта
Газоснабжение
2 варианта
Изоляция воздушного шума
Нет
Камин
Нет
Класс энергоэффективности
-
Класс энергосбережения
-
Количество надземных этажей
2
Круглогодичное проживание
Да
Материал кровли
Битумная черепица
Материал перекрытий
Деревянные по металлическим балкам
Материал внешних стен
Деревянные каркасные
Материал внутренних перегородок
Деревянные
Модульное строительство с конструкциями заводского изготовления
Нет
Объем надземной части
365 м3
Основной материал фасадов
Дерево
Отопление
2 варианта
Площадь дома
155 м2
Площадь застройки
100 м2
Подвальное помещение
Нет
Показатель компактности здания
-
Приборы учета тепловой энергии
Нет
Пристроенный гараж/крытая автостоянка
Нет
Противопожарная система
Нет
Санузлы
1
Совмещенная кухня-гостиная
Да
Спальни
2
Терраса
Да
Тип фундамента
Плитный
Тип кровли
Двускатная
Толщина внешних стен
350 мм
Толщина внутренних перегородок
300 мм
Улучшенные шумовые характеристики
Нет
Вентиляция
Рекуперация
Веранда
Нет
Водоотведение
Локальные очистные сооружения
Водоснабжение
2 варианта
Высота дома
4.56 м
Высота потолков
2.6 м

Планировка

Фасад дома

Александр

Закажите выезд инженера

Александр

Выездной инженер
Закажите выезд инженера для точной диагностики и профессиональной консультации по инженерным системам. Специалист приедет в удобное время, проведёт осмотр, рассчитает стоимость работ и подберёт оптимальные решения для вашего дома.


    Похожие проекты

    Ипотека и
    рассрочка
    Каркасный дом по проекту KR 770
    Стоимость от:
    5 713 840
    Проект от: 36 900
    Этажей 1
    Санузлы 1
    Спальни 2
    Смотреть
    Ипотека и
    рассрочка
    Загородный дом ВС-121
    Стоимость от:
    8 042 640
    Проект от: 49 950
    Этажей 2
    Санузлы 1
    Спальни 3
    Смотреть
    Ипотека и
    рассрочка
    Истра
    Стоимость от:
    14 603 760
    Проект от: 94 050
    Этажей 2
    Санузлы 3
    Спальни 5
    Смотреть
    Ипотека и
    рассрочка
    Проект 10
    Стоимость от:
    7 365 160
    Проект от: 44 100
    Этажей 1
    Санузлы 2
    Спальни 2
    Смотреть
    Ипотека и
    рассрочка
    Одноэтажный жилой дом с мансардой
    Стоимость от:
    11 836 660
    Проект от: 77 850
    Этажей 1
    Санузлы 2
    Спальни 3
    Смотреть
    Ипотека и
    рассрочка
    А100
    Стоимость от:
    7 295 200
    Проект от: 45 000
    Этажей 1
    Санузлы 2
    Спальни 3
    Смотреть

    Как узнать стоимость дома

    back
    Оставляете заявку
    Вы заполняете форму на сайте или звоните нам. Менеджер Лайвкрафт связывается с вами для уточнения деталей: тип дома, площадь, материалы, участок строительства.
    back
    Консультация и подбор решения
    Наш специалист помогает выбрать оптимальный тип дома и конструкцию с учётом бюджета, сроков и целей — будь то дом для постоянного проживания или дача.
    back
    Расчёт предварительной стоимости
    Инженер делает первичный расчёт стоимости строительства по вашим параметрам: фундамент, коробка, кровля, отделка. Вы получаете смету с разбивкой по этапам.
    back
    Корректировка и утверждение сметы
    При необходимости вносим изменения — например, замену материалов или сокращение этапов. После согласования формируется окончательная фиксированная смета.
    back
    Заключение договора и старт работ
    После утверждения сметы заключаем официальный договор с гарантией. Вы получаете прозрачный график и точную стоимость — без скрытых расходов.

    Заказать конусльтацию по:БГ 47

    Фото 1 БГ 47


      Наши
      контакты

      Дмитров
      Опорный проезд 28Б
      (индустриальный парк Ниагара)
      9:00 до 18:00

      Корзина