4.9
Рейтинг на основании 120 отзывов
Дмитров
Опорный проезд 28Б
(индустриальный парк Ниагара)
Бренд "Дмитров-Дело" c 2008 года на рынке строительства в Дмитрове
Звоните 9:00 до 18:00 8 (915) 055-33-61
Бренд "Дмитров-Дело" c 2008 года на рынке строительства в Дмитрове

Боровичок

Стоимость проекта от:
20 250 ₽
БЕСПЛАТНО! ПРИ ЗАКАЗЕ СТРОИТЕЛЬСТВА
Стоимость строительства от:
3 177 900 ₽
Артикул ART-3926
Дата 26.12.2025
Архитектурный стиль Скандинавский
Количество надземных этажей 1
Круглогодичное проживание Да
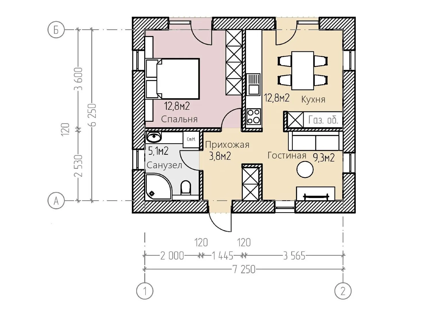
Площадь дома 45 м2
Санузлы 1
Спальни 1

Описание

Боровичок – это очаровательное скандинавское убежище, расположенное в тихой зеленой стороне, где каждый день начинается с мягкого света просачивающегося сквозь большие окна. Один надземный этаж – это открытый, светлый план, способный легко превратиться в просторную гостиную, уютное рабочее пространство или даже в домашний кинотеатр. Круглогодичное проживание предусмотрено: система утепления и водонепроницаемой конструкции делает его идеальным в любую погоду, а отсутствие крыльцов и веранд подчёркивает лаконичность дизайна, позволяя сосредоточиться на чистых линиях и естественном освещении. Взгляд в детали раскрывает, что внешние стены выполнены из монолитного железобетона, что гарантирует прочность и долговечность, а двускатная крыша привносит в дом характерный скандинавский архитектурный штрих, подчеркивающий простоту и функциональность. Дизайн без чердачного помещения и без лишних балконов сохраняет чистый внешний вид, а легкая, но плотная кровля защищает от непогоды, придавая дому уверенность и тишину. Боровичок – это место, где простота встречается с элегантностью, а уютные пространства создают атмосферу спокойствия и вдохновляют на собственное творчество. Не имея прикрепённого гаража, он приглашает владельца к новой, более экологичной мобильности, открывая двери к велосипедным маршрутам и прогулкам среди сосновых лесов. Здесь каждый сантиметр сделан для вашего комфорта, и каждая деталь – шаг к новой, более свободной жизни.

Характеристики дома

Архитектурный стиль
Автоматизированное регулирование параметров теплоносителя
Нет
Балконы/лоджии
Отсутствуют
Чердачное помещение
Нет
Датчики протечки воды
Нет
Эксплуатируемая или зеленая кровля
Нет
Электроснабжение
Центральное
Газоснабжение
Центральное
Изоляция воздушного шума
Нет
Камин
Нет
Класс энергоэффективности
-
Класс энергосбережения
-
Количество надземных этажей
1
Круглогодичное проживание
Да
Материал кровли
Металлочерепица
Материал перекрытий
Деревянные
Материал внешних стен
Материал внутренних перегородок
Гипсокартонные
Модульное строительство с конструкциями заводского изготовления
Нет
Объем надземной части
112 м3
Основной материал фасадов
Штукатурка
Отопление
Индивидуальное
Площадь дома
45 м2
Площадь застройки
53 м2
Подвальное помещение
Нет
Показатель компактности здания
-
Приборы учета тепловой энергии
Нет
Пристроенный гараж/крытая автостоянка
Нет
Противопожарная система
Нет
Санузлы
1
Совмещенная кухня-гостиная
Да
Спальни
1
Терраса
Нет
Тип фундамента
Плитный
Тип кровли
Толщина внешних стен
250 мм
Толщина внутренних перегородок
100 мм
Улучшенные шумовые характеристики
Нет
Вентиляция
Естественная
Веранда
Нет
Водоотведение
Локальные очистные сооружения
Водоснабжение
Центральное
Высота дома
4.5 м
Высота потолков
2.5 м

Планировка

Фасад дома

Александр

Закажите выезд инженера

Александр

Выездной инженер
Закажите выезд инженера для точной диагностики и профессиональной консультации по инженерным системам. Специалист приедет в удобное время, проведёт осмотр, рассчитает стоимость работ и подберёт оптимальные решения для вашего дома.


    Похожие проекты

    Ипотека и
    рассрочка
    Елена, 113
    Стоимость от:
    7 626 960
    Проект от: 48 600
    Этажей 1
    Санузлы 2
    Спальни 3
    Смотреть
    Ипотека и
    рассрочка
    Ананас 72
    Стоимость от:
    5 735 840
    Проект от: 32 400
    Этажей 1
    Санузлы 1
    Спальни 3
    Смотреть
    Ипотека и
    рассрочка
    Одноэтажный дом по проекту КД161
    Стоимость от:
    5 820 650
    Проект от: 42 750
    Этажей 1
    Санузлы 1
    Спальни 3
    Смотреть
    Ипотека и
    рассрочка
    Дом из арболита с террасой одноэтажный
    Стоимость от:
    8 824 420
    Проект от: 54 450
    Этажей 1
    Санузлы 2
    Спальни 3
    Смотреть
    Ипотека и
    рассрочка
    SKANDIK-60
    Стоимость от:
    3 478 200
    Проект от: 27 000
    Этажей 1
    Санузлы 1
    Спальни 1
    Смотреть
    Ипотека и
    рассрочка
    Серия «КЛАССИКА» КД-9
    Стоимость от:
    7 155 300
    Проект от: 54 900
    Этажей 2
    Санузлы 2
    Спальни 3
    Смотреть

    Как узнать стоимость дома

    back
    Оставляете заявку
    Вы заполняете форму на сайте или звоните нам. Менеджер Лайвкрафт связывается с вами для уточнения деталей: тип дома, площадь, материалы, участок строительства.
    back
    Консультация и подбор решения
    Наш специалист помогает выбрать оптимальный тип дома и конструкцию с учётом бюджета, сроков и целей — будь то дом для постоянного проживания или дача.
    back
    Расчёт предварительной стоимости
    Инженер делает первичный расчёт стоимости строительства по вашим параметрам: фундамент, коробка, кровля, отделка. Вы получаете смету с разбивкой по этапам.
    back
    Корректировка и утверждение сметы
    При необходимости вносим изменения — например, замену материалов или сокращение этапов. После согласования формируется окончательная фиксированная смета.
    back
    Заключение договора и старт работ
    После утверждения сметы заключаем официальный договор с гарантией. Вы получаете прозрачный график и точную стоимость — без скрытых расходов.

    Заказать конусльтацию по:Боровичок

    Фото 1 Боровичок


      Наши
      контакты

      Дмитров
      Опорный проезд 28Б
      (индустриальный парк Ниагара)
      9:00 до 18:00

      Корзина