4.9
Рейтинг на основании 120 отзывов
Дмитров
Опорный проезд 28Б
(индустриальный парк Ниагара)
Бренд "Дмитров-Дело" c 2008 года на рынке строительства в Дмитрове
Звоните 9:00 до 18:00 8 (915) 055-33-61
Бренд "Дмитров-Дело" c 2008 года на рынке строительства в Дмитрове

Бриз-104

Стоимость проекта от:
45 450 ₽
БЕСПЛАТНО! ПРИ ЗАКАЗЕ СТРОИТЕЛЬСТВА
Стоимость строительства от:
6 410 470 ₽
Артикул ART-12996
Дата 25.12.2025
Архитектурный стиль Европейский
Количество надземных этажей 1
Круглогодичное проживание Да
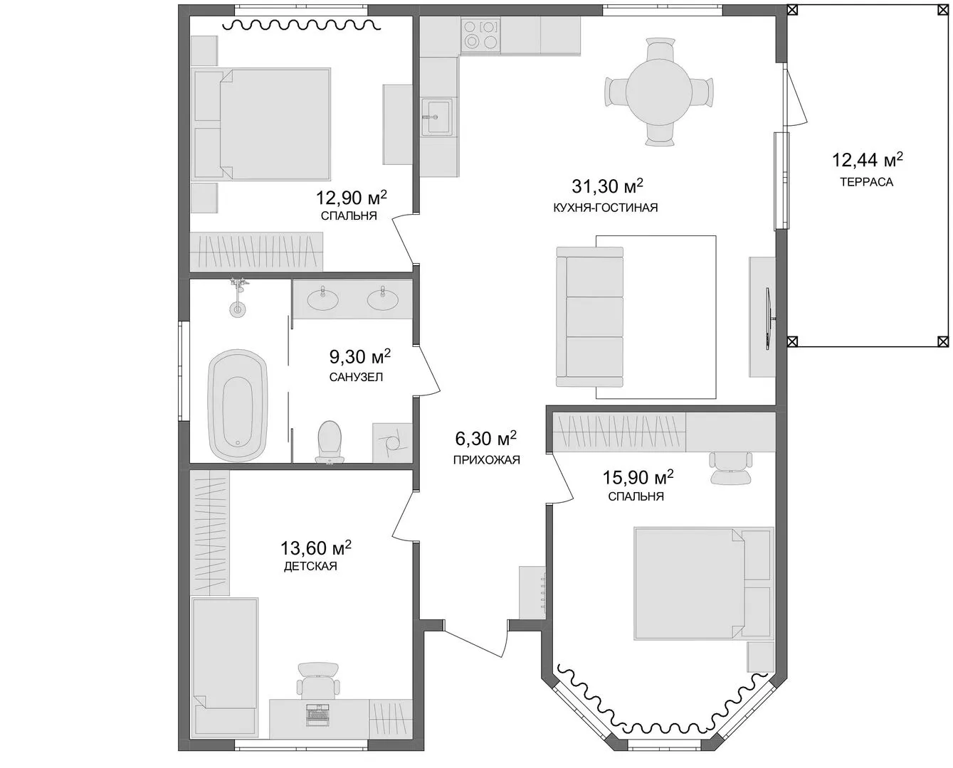
Площадь дома 101 м2
Санузлы 1
Спальни 3

Описание

Наслаждайтесь уютом и практичностью в доме **Бриз‑104** — стильном одноэтажном жилище, вдохновлённом классикой европейского дизайна. Его просторные, светлые интерьеры создают идеальные условия для круглый‑годного проживания, а современная теплоизоляция из SIP‑панелей гарантирует экономию энергии и приятную температуру даже в самые холодные дни. Внутри вас ждёт открытая планировка, где свободно располагаться — будь то семейный обед за обеденным столом, совместные занятия спортом в гостиной или уютный уголок для вечерних чтений. Дом оснащён вместительным чердачным помещением, которое можно легко превратить в дополнительный жилой уголок, рабочий кабинет или студию творчества. Большая терраса приглашает проводить время на свежем воздухе, устраивать барбекю и просто наслаждаться природой, не покидая собственный двёр. Несмотря на отсутствие веранд и прицепённого гаража, рядом с домом предусмотрены удобные места для парковки, а лёгкая, многоскобленная крыша подчёркивает элегантность фасада и придаёт ему характерный европейский шарм. Выбирая **Бриз‑104**, вы делаете ставку на комфорт, энергоэффективность и стильную эстетику, которую ценят каждый современный семьянин. Это ваш новый дом, где каждая деталь продумана до мелочей, а уют становится вашим постоянным спутником. 🚪🌿

Характеристики дома

Архитектурный стиль
Автоматизированное регулирование параметров теплоносителя
Да
Балконы/лоджии
Отсутствуют
Чердачное помещение
Да
Датчики протечки воды
Нет
Эксплуатируемая или зеленая кровля
Нет
Электроснабжение
Центральное
Газоснабжение
Не предусмотрено
Изоляция воздушного шума
Нет
Камин
Нет
Класс энергоэффективности
-
Класс энергосбережения
-
Количество надземных этажей
1
Круглогодичное проживание
Да
Материал кровли
Металлочерепица
Материал перекрытий
Деревянные
Материал внешних стен
Материал внутренних перегородок
Гипсокартонные
Модульное строительство с конструкциями заводского изготовления
Нет
Объем надземной части
284 м3
Основной материал фасадов
Сайдинг
Отопление
Индивидуальное
Площадь дома
101 м2
Площадь застройки
104 м2
Подвальное помещение
Нет
Показатель компактности здания
-
Приборы учета тепловой энергии
Да
Пристроенный гараж/крытая автостоянка
Нет
Противопожарная система
Нет
Санузлы
1
Совмещенная кухня-гостиная
Да
Спальни
3
Терраса
Да
Тип фундамента
Свайный
Тип кровли
Толщина внешних стен
192 мм
Толщина внутренних перегородок
150 мм
Улучшенные шумовые характеристики
Нет
Вентиляция
Принудительная
Веранда
Нет
Водоотведение
Локальные очистные сооружения
Водоснабжение
Центральное
Высота дома
4.4 м
Высота потолков
2.8 м

Планировка

Фасад дома

Александр

Закажите выезд инженера

Александр

Выездной инженер
Закажите выезд инженера для точной диагностики и профессиональной консультации по инженерным системам. Специалист приедет в удобное время, проведёт осмотр, рассчитает стоимость работ и подберёт оптимальные решения для вашего дома.


    Похожие проекты

    Ипотека и
    рассрочка
    Двухэтажный дом из клееного бруса БД-46
    Стоимость от:
    13 322 640
    Проект от: 81 450
    Этажей 2
    Санузлы 3
    Спальни 3
    Смотреть
    Ипотека и
    рассрочка
    Двухэтажный дом Сойка
    Стоимость от:
    8 043 840
    Проект от: 56 700
    Этажей 2
    Санузлы 2
    Спальни 5
    Смотреть
    Ипотека и
    рассрочка
    Двухэтажный дом из СИП панелей «100 друзей»
    Стоимость от:
    5 179 200
    Проект от: 36 000
    Этажей 2
    Санузлы 2
    Спальни 3
    Смотреть
    Ипотека и
    рассрочка
    Дом «Флоки 99» в скандинавском стиле
    Стоимость от:
    5 722 695
    Проект от: 44 550
    Этажей 1
    Санузлы 1
    Спальни 2
    Смотреть
    Ипотека и
    рассрочка
    Одноэтажный каркасно-щитовой дом
    Стоимость от:
    5 507 150
    Проект от: 42 750
    Этажей 1
    Санузлы 1
    Спальни 3
    Смотреть
    Ипотека и
    рассрочка
    Двухэтажный дом с камином на террасе БРАИТ-41
    Стоимость от:
    11 898 960
    Проект от: 71 550
    Этажей 2
    Санузлы 2
    Спальни 3
    Смотреть

    Как узнать стоимость дома

    back
    Оставляете заявку
    Вы заполняете форму на сайте или звоните нам. Менеджер Лайвкрафт связывается с вами для уточнения деталей: тип дома, площадь, материалы, участок строительства.
    back
    Консультация и подбор решения
    Наш специалист помогает выбрать оптимальный тип дома и конструкцию с учётом бюджета, сроков и целей — будь то дом для постоянного проживания или дача.
    back
    Расчёт предварительной стоимости
    Инженер делает первичный расчёт стоимости строительства по вашим параметрам: фундамент, коробка, кровля, отделка. Вы получаете смету с разбивкой по этапам.
    back
    Корректировка и утверждение сметы
    При необходимости вносим изменения — например, замену материалов или сокращение этапов. После согласования формируется окончательная фиксированная смета.
    back
    Заключение договора и старт работ
    После утверждения сметы заключаем официальный договор с гарантией. Вы получаете прозрачный график и точную стоимость — без скрытых расходов.

    Заказать конусльтацию по:Бриз-104

    Фото 1 Бриз-104


      Наши
      контакты

      Дмитров
      Опорный проезд 28Б
      (индустриальный парк Ниагара)
      9:00 до 18:00

      Корзина