4.9
Рейтинг на основании 120 отзывов
Дмитров
Опорный проезд 28Б
(индустриальный парк Ниагара)
Бренд "Дмитров-Дело" c 2008 года на рынке строительства в Дмитрове
Звоните 9:00 до 18:00 8 (915) 055-33-61
Бренд "Дмитров-Дело" c 2008 года на рынке строительства в Дмитрове

Бриз-70

Стоимость проекта от:
31 950 ₽
БЕСПЛАТНО! ПРИ ЗАКАЗЕ СТРОИТЕЛЬСТВА
Стоимость строительства от:
4 182 255 ₽
Артикул ART-12872
Дата 25.12.2025
Архитектурный стиль Хайтек
Количество надземных этажей 1
Круглогодичное проживание Да
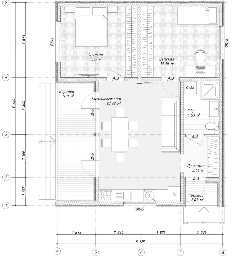
Площадь дома 71 м2
Санузлы 1
Спальни 2

Описание

Бриз‑70 – это воплощение современного, но при этом комфортного быта, где каждая деталь продумана до совершенства. Архитектурный стиль хай‑тек придает дому динамичность и элегантность, а обилие открытых пространств внутри и вокруг позволяет почувствовать связь с природой даже в серых, холодных буднях. Пространственный план одного надземного этажа спроектирован так, чтобы каждый сантиметр использовался эффективно, а пространство остаётся свободным, воздушным и функциональным. Ключевое в выборе Бриза‑70 – круглогодичное проживание. Благодаря использованию SIP‑панелей и односкатной кровли дом обеспечивает отличную теплоизоляцию и защиту от ветра, дождей и снегов, оставаясь при этом энергоэффективным. Выход на просторную веранду – это идеальное место для утреннего кофе под солнцем, летнего барбекю и тихих вечеров при бокале вина, а не наличие балконов или террас лишь подчеркивает уют и практичность. Эта модель – воплощение практичных решений без потери эстетики: ровные линии, современные материалы и продуманная инженерия делают Бриз‑70 идеальным выбором для тех, кто ценит изысканный стиль, тепло и комфорт своего дома. Пусть каждый день в вашем новом доме будет наполнен просторами, светом и ощущением дома, где каждое утро начинается с радости быть рядом с тем, что действительно важно.

Характеристики дома

Архитектурный стиль
Автоматизированное регулирование параметров теплоносителя
Да
Балконы/лоджии
Отсутствуют
Чердачное помещение
Нет
Датчики протечки воды
Нет
Эксплуатируемая или зеленая кровля
Нет
Электроснабжение
Центральное
Газоснабжение
Центральное
Изоляция воздушного шума
Да
Камин
Нет
Класс энергоэффективности
-
Класс энергосбережения
-
Количество надземных этажей
1
Круглогодичное проживание
Да
Материал кровли
Стальные листовые гофрированные профили
Материал перекрытий
Деревянные
Материал внешних стен
Материал внутренних перегородок
Гипсокартонные
Модульное строительство с конструкциями заводского изготовления
Да
Объем надземной части
245 м3
Основной материал фасадов
Планкен
Отопление
Индивидуальное
Площадь дома
71 м2
Площадь застройки
80 м2
Подвальное помещение
Нет
Показатель компактности здания
-
Приборы учета тепловой энергии
Нет
Пристроенный гараж/крытая автостоянка
Нет
Противопожарная система
Нет
Санузлы
1
Совмещенная кухня-гостиная
Да
Спальни
2
Терраса
Нет
Тип фундамента
Свайно-винтовой
Тип кровли
Толщина внешних стен
174 мм
Толщина внутренних перегородок
124 мм
Улучшенные шумовые характеристики
Да
Вентиляция
Рекуперация
Веранда
Да
Водоотведение
Локальные очистные сооружения
Водоснабжение
Центральное
Высота дома
3.5 м
Высота потолков
2.6 м

Планировка

Фасад дома

Александр

Закажите выезд инженера

Александр

Выездной инженер
Закажите выезд инженера для точной диагностики и профессиональной консультации по инженерным системам. Специалист приедет в удобное время, проведёт осмотр, рассчитает стоимость работ и подберёт оптимальные решения для вашего дома.


    Похожие проекты

    Ипотека и
    рассрочка
    Дом «Comfort» серии «NOVA» с навесом
    Стоимость от:
    6 358 550
    Проект от: 49 500
    Этажей 1
    Санузлы 1
    Спальни 3
    Смотреть
    Ипотека и
    рассрочка
    Альпийская Панорама
    Стоимость от:
    17 342 820
    Проект от: 103 950
    Этажей 1
    Санузлы 2
    Спальни 5
    Смотреть
    Ипотека и
    рассрочка
    Cape cod wood-78
    Стоимость от:
    4 937 790
    Проект от: 35 100
    Этажей 1
    Санузлы 1
    Спальни 2
    Смотреть
    Ипотека и
    рассрочка
    Загородный дом 78м2
    Стоимость от:
    5 864 760
    Проект от: 35 100
    Этажей 1
    Санузлы 1
    Спальни 3
    Смотреть
    Ипотека и
    рассрочка
    А103
    Стоимость от:
    249 260
    Проект от: 46 350
    Этажей 1
    Санузлы 1
    Спальни 3
    Смотреть
    Ипотека и
    рассрочка
    Nordic 150
    Стоимость от:
    9 520 500
    Проект от: 67 500
    Этажей 1
    Санузлы 2
    Спальни 4
    Смотреть

    Как узнать стоимость дома

    back
    Оставляете заявку
    Вы заполняете форму на сайте или звоните нам. Менеджер Лайвкрафт связывается с вами для уточнения деталей: тип дома, площадь, материалы, участок строительства.
    back
    Консультация и подбор решения
    Наш специалист помогает выбрать оптимальный тип дома и конструкцию с учётом бюджета, сроков и целей — будь то дом для постоянного проживания или дача.
    back
    Расчёт предварительной стоимости
    Инженер делает первичный расчёт стоимости строительства по вашим параметрам: фундамент, коробка, кровля, отделка. Вы получаете смету с разбивкой по этапам.
    back
    Корректировка и утверждение сметы
    При необходимости вносим изменения — например, замену материалов или сокращение этапов. После согласования формируется окончательная фиксированная смета.
    back
    Заключение договора и старт работ
    После утверждения сметы заключаем официальный договор с гарантией. Вы получаете прозрачный график и точную стоимость — без скрытых расходов.

    Заказать конусльтацию по:Бриз-70

    Фото 1 Бриз-70


      Наши
      контакты

      Дмитров
      Опорный проезд 28Б
      (индустриальный парк Ниагара)
      9:00 до 18:00

      Корзина