4.9
Рейтинг на основании 120 отзывов
Дмитров
Опорный проезд 28Б
(индустриальный парк Ниагара)
Бренд "Дмитров-Дело" c 2008 года на рынке строительства в Дмитрове
Звоните 9:00 до 18:00 8 (915) 055-33-61
Бренд "Дмитров-Дело" c 2008 года на рынке строительства в Дмитрове

Брусовой дом ТА-94

Стоимость проекта от:
42 300 ₽
БЕСПЛАТНО! ПРИ ЗАКАЗЕ СТРОИТЕЛЬСТВА
Стоимость строительства от:
6 922 560 ₽
Артикул ART-20645
Дата 26.12.2025
Архитектурный стиль Классический
Количество надземных этажей 2
Круглогодичное проживание Да
Площадь дома 94 м2
Санузлы 1
Спальни 1

Описание

Сокровище классической древесной архитектуры — брусовой дом TA‑94 приглашает в уютную и теплую атмосферу, где каждая деталь продумана для комфортного круглогодичного проживания. Его массивные пиленые бруски, окрашенные в естественный светлый оттенок, создают ощущение гармонии с природой, а двускатная крыша подчеркивает традиционный стиль, придавая фасаду элегантность и прочность. Два надземных этажа позволяют обустроить пространство по вашим индивидуальным потребностям: большой простор для семейного уюта, зоны отдыха и рабочие кабинеты. Внутри дома царит свет и простор благодаря широкой планировке и большим окнам, пропускающим мягкий солнечный свет и прохладные ветра в холодное время года. Простой, но при этом изысканный архитектурный стиль делает каждое помещение уютным и одновременно современным. Внутри можно смело планировать свою мечту: детская комната, кабинет за столом, теплая гостиная с камином, полностью открытая к душевному уединению. Отсутствие внешних балконов и веранд не умоляет комфорта — все удобства внутри: удобные жилые зоны, кухня, санузлы — гармонично вписаны в общую концепцию. Ваша новая резиденция TA‑94 — это сочетание традиций с современными технологиями строительства, которое подарит вам ощущение уюта, уединения и настоящего семейного очага. Приглашаем вас открыть для себя всё, что делает этот дом настоящим домом вашего мира.

Характеристики дома

Архитектурный стиль
Автоматизированное регулирование параметров теплоносителя
Нет
Балконы/лоджии
Отсутствуют
Чердачное помещение
Нет
Датчики протечки воды
Нет
Эксплуатируемая или зеленая кровля
Нет
Электроснабжение
Центральное
Газоснабжение
Не предусмотрено
Изоляция воздушного шума
Нет
Камин
Нет
Класс энергоэффективности
-
Класс энергосбережения
-
Количество надземных этажей
2
Круглогодичное проживание
Да
Материал кровли
Битумные листы
Материал перекрытий
Деревянные
Материал внешних стен
Материал внутренних перегородок
Деревянные
Модульное строительство с конструкциями заводского изготовления
Нет
Объем надземной части
-
Основной материал фасадов
Дерево
Отопление
Индивидуальное
Площадь дома
94 м2
Площадь застройки
69 м2
Подвальное помещение
Нет
Показатель компактности здания
-
Приборы учета тепловой энергии
Нет
Пристроенный гараж/крытая автостоянка
Нет
Противопожарная система
Нет
Санузлы
1
Совмещенная кухня-гостиная
Да
Спальни
1
Терраса
Нет
Тип фундамента
Ленточный
Тип кровли
Толщина внешних стен
175 мм
Толщина внутренних перегородок
175 мм
Улучшенные шумовые характеристики
Нет
Вентиляция
Естественная
Веранда
Нет
Водоотведение
Локальные очистные сооружения
Водоснабжение
Индивидуальное
Высота дома
7.58 м
Высота потолков
2.8 м

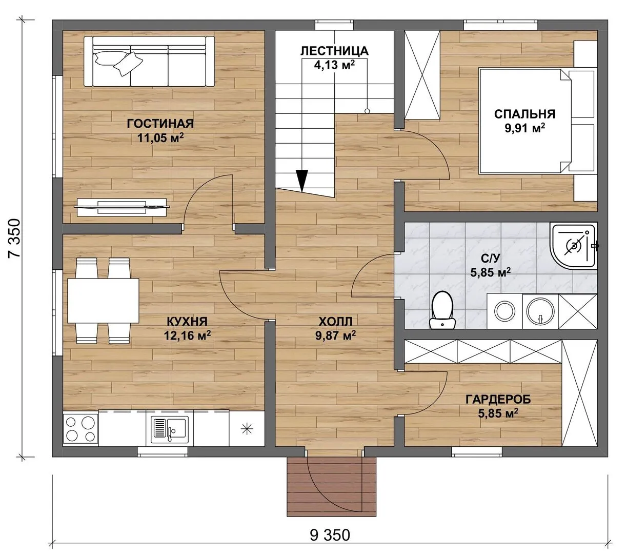
Планировка

Фасад дома

Александр

Закажите выезд инженера

Александр

Выездной инженер
Закажите выезд инженера для точной диагностики и профессиональной консультации по инженерным системам. Специалист приедет в удобное время, проведёт осмотр, рассчитает стоимость работ и подберёт оптимальные решения для вашего дома.


    Похожие проекты

    Ипотека и
    рассрочка
    Мадэра 120
    Стоимость от:
    7 616 400
    Проект от: 54 000
    Этажей 1
    Санузлы 2
    Спальни 3
    Смотреть
    Ипотека и
    рассрочка
    Classic 7
    Стоимость от:
    7 586 480
    Проект от: 46 800
    Этажей 1
    Санузлы 1
    Спальни 3
    Смотреть
    Ипотека и
    рассрочка
    Дом комфорт-класса с минималистичной архитектурой «TALO NEO 76»
    Стоимость от:
    6 473 940
    Проект от: 45 900
    Этажей 1
    Санузлы 2
    Спальни 2
    Смотреть
    Ипотека и
    рассрочка
    Деревянный дом Катен
    Стоимость от:
    6 826 160
    Проект от: 44 100
    Этажей 1
    Санузлы 2
    Спальни 3
    Смотреть
    Ипотека и
    рассрочка
    Барн 87 — Одноэтажный Барн ВМ 87
    Стоимость от:
    5 521 890
    Проект от: 39 150
    Этажей 1
    Санузлы 1
    Спальни 2
    Смотреть
    Ипотека и
    рассрочка
    НЖ-42
    Стоимость от:
    4 739 460
    Проект от: 28 350
    Этажей 1
    Санузлы 1
    Спальни 2
    Смотреть

    Как узнать стоимость дома

    back
    Оставляете заявку
    Вы заполняете форму на сайте или звоните нам. Менеджер Лайвкрафт связывается с вами для уточнения деталей: тип дома, площадь, материалы, участок строительства.
    back
    Консультация и подбор решения
    Наш специалист помогает выбрать оптимальный тип дома и конструкцию с учётом бюджета, сроков и целей — будь то дом для постоянного проживания или дача.
    back
    Расчёт предварительной стоимости
    Инженер делает первичный расчёт стоимости строительства по вашим параметрам: фундамент, коробка, кровля, отделка. Вы получаете смету с разбивкой по этапам.
    back
    Корректировка и утверждение сметы
    При необходимости вносим изменения — например, замену материалов или сокращение этапов. После согласования формируется окончательная фиксированная смета.
    back
    Заключение договора и старт работ
    После утверждения сметы заключаем официальный договор с гарантией. Вы получаете прозрачный график и точную стоимость — без скрытых расходов.

    Заказать конусльтацию по:Брусовой дом ТА-94

    Фото 1 Брусовой дом ТА-94


      Наши
      контакты

      Дмитров
      Опорный проезд 28Б
      (индустриальный парк Ниагара)
      9:00 до 18:00

      Корзина