4.9
Рейтинг на основании 120 отзывов
Дмитров
Опорный проезд 28Б
(индустриальный парк Ниагара)
Бренд "Дмитров-Дело" c 2008 года на рынке строительства в Дмитрове
Звоните 9:00 до 18:00 8 (915) 055-33-61
Бренд "Дмитров-Дело" c 2008 года на рынке строительства в Дмитрове

ЧЗ-Второй Свет

Стоимость проекта от:
45 000 ₽
БЕСПЛАТНО! ПРИ ЗАКАЗЕ СТРОИТЕЛЬСТВА
Стоимость строительства от:
7 515 200 ₽
Артикул ART-17528
Дата 26.12.2025
Архитектурный стиль Классический
Количество надземных этажей 1
Круглогодичное проживание Да
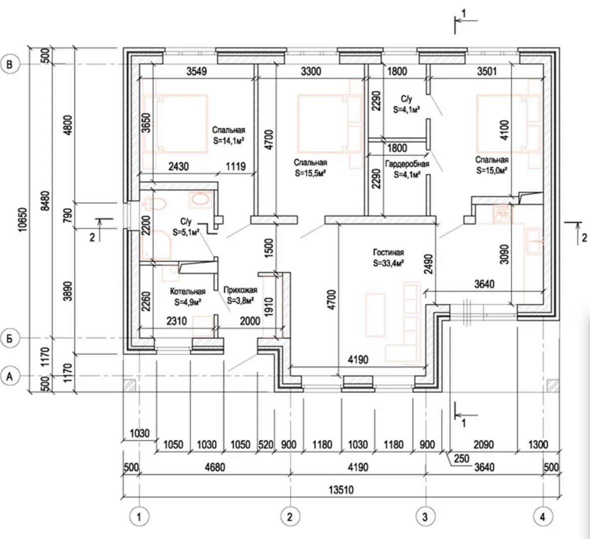
Площадь дома 100 м2
Санузлы 2
Спальни 3

Описание

ЧЗ‑Второй Свет – это воплощение традиционного русского уюта с нотками современного комфорта. Здание выполнено в классическом стиле, обрамленном массивными кирпичными стенами, которые дарят ощущение надёжности и стабильности. Один надземный этаж позволяет сконцентрировать все необходимые помещения на плавном внутреннем пространстве, а комбинированная кровля подчёркивает элегантность фасада, придавая дому мягкие линии и динамичную кривую. Ключевая особенность – просторное чердачное помещение, которое можно превратить в уютный подвал, мастерскую, комнату для хобби или просто вместительное кладовое место. В доме предусмотрено круглогодичное проживание, а классический интерьер – это сочетание строгих линий и мягких деталей, создающее атмосферу тепла и благополучия. Отсутствие балконов и веранд делает здание более компактным и удобным для семей, ценящих внутреннюю гармонию, а отсутствие крытых стоянок и прицепов позволяет сохранить чистый и аккуратный внешний вид. Этот дом – идеальное решение для тех, кто ищет сочетание традиционной архитектуры с практичными удобствами современного быта. Его классический облик, крепкие кирпичные стены и функциональное чердачное пространство делают каждый день проживания ярким и запоминающимся, а простор и тепло внутри создают настоящий уютный уголок для всей семьи.

Характеристики дома

Архитектурный стиль
Автоматизированное регулирование параметров теплоносителя
Нет
Балконы/лоджии
Отсутствуют
Чердачное помещение
Да
Датчики протечки воды
Нет
Эксплуатируемая или зеленая кровля
Нет
Электроснабжение
Центральное
Газоснабжение
Не предусмотрено
Изоляция воздушного шума
Нет
Камин
Нет
Класс энергоэффективности
-
Класс энергосбережения
-
Количество надземных этажей
1
Круглогодичное проживание
Да
Материал кровли
Металлочерепица
Материал перекрытий
Деревянные по металлическим балкам
Материал внешних стен
Материал внутренних перегородок
Кирпичные
Модульное строительство с конструкциями заводского изготовления
Нет
Объем надземной части
720 м3
Основной материал фасадов
Облицовочный кирпич
Отопление
Индивидуальное
Площадь дома
100 м2
Площадь застройки
143 м2
Подвальное помещение
Нет
Показатель компактности здания
-
Приборы учета тепловой энергии
Нет
Пристроенный гараж/крытая автостоянка
Нет
Противопожарная система
Нет
Санузлы
2
Совмещенная кухня-гостиная
Да
Спальни
3
Терраса
Нет
Тип фундамента
Свайно-ростверковый
Тип кровли
Толщина внешних стен
490 мм
Толщина внутренних перегородок
120 мм
Улучшенные шумовые характеристики
Нет
Вентиляция
Естественная
Веранда
Нет
Водоотведение
Локальные очистные сооружения
Водоснабжение
Индивидуальное
Высота дома
5.1 м
Высота потолков
2.94 м

Планировка

Фасад дома

Александр

Закажите выезд инженера

Александр

Выездной инженер
Закажите выезд инженера для точной диагностики и профессиональной консультации по инженерным системам. Специалист приедет в удобное время, проведёт осмотр, рассчитает стоимость работ и подберёт оптимальные решения для вашего дома.


    Похожие проекты

    Ипотека и
    рассрочка
    Сканди S+
    Стоимость от:
    10 936 200
    Проект от: 67 500
    Этажей 1
    Санузлы 2
    Спальни 3
    Смотреть
    Ипотека и
    рассрочка
    Мамонтово-9
    Стоимость от:
    10 085 400
    Проект от: 70 200
    Этажей 2
    Санузлы 2
    Спальни 5
    Смотреть
    Ипотека и
    рассрочка
    Лазурный
    Стоимость от:
    10 516 000
    Проект от: 63 000
    Этажей 1
    Санузлы 2
    Спальни 3
    Смотреть
    Ипотека и
    рассрочка
    IDEA 185
    Стоимость от:
    12 861 600
    Проект от: 87 750
    Этажей 2
    Санузлы 4
    Спальни 4
    Смотреть
    Ипотека и
    рассрочка
    Одноэтажный дом «Скандинавский»
    Стоимость от:
    6 512 000
    Проект от: 45 000
    Этажей 1
    Санузлы 2
    Спальни 3
    Смотреть
    Ипотека и
    рассрочка
    Астерия К85-1 (Каркасный дом)
    Стоимость от:
    4 927 450
    Проект от: 38 250
    Этажей 1
    Санузлы 1
    Спальни 2
    Смотреть

    Как узнать стоимость дома

    back
    Оставляете заявку
    Вы заполняете форму на сайте или звоните нам. Менеджер Лайвкрафт связывается с вами для уточнения деталей: тип дома, площадь, материалы, участок строительства.
    back
    Консультация и подбор решения
    Наш специалист помогает выбрать оптимальный тип дома и конструкцию с учётом бюджета, сроков и целей — будь то дом для постоянного проживания или дача.
    back
    Расчёт предварительной стоимости
    Инженер делает первичный расчёт стоимости строительства по вашим параметрам: фундамент, коробка, кровля, отделка. Вы получаете смету с разбивкой по этапам.
    back
    Корректировка и утверждение сметы
    При необходимости вносим изменения — например, замену материалов или сокращение этапов. После согласования формируется окончательная фиксированная смета.
    back
    Заключение договора и старт работ
    После утверждения сметы заключаем официальный договор с гарантией. Вы получаете прозрачный график и точную стоимость — без скрытых расходов.

    Заказать конусльтацию по:ЧЗ-Второй Свет

    Фото 1 ЧЗ-Второй Свет


      Наши
      контакты

      Дмитров
      Опорный проезд 28Б
      (индустриальный парк Ниагара)
      9:00 до 18:00

      Корзина